4.9
Рейтинг на основании 120 отзывов
Дмитров
Опорный проезд 28Б
(индустриальный парк Ниагара)
Бренд "Дмитров-Дело" c 2008 года на рынке строительства в Дмитрове
Звоните 9:00 до 18:00 8 (915) 055-33-61
Бренд "Дмитров-Дело" c 2008 года на рынке строительства в Дмитрове

ЛИГА_Н-3-Ц

Стоимость проекта от:
94 950 ₽
БЕСПЛАТНО! ПРИ ЗАКАЗЕ СТРОИТЕЛЬСТВА
Стоимость строительства от:
15 228 460 ₽
Артикул ART-18968
Дата 26.12.2025
Архитектурный стиль Классический
Количество надземных этажей 3
Круглогодичное проживание Да
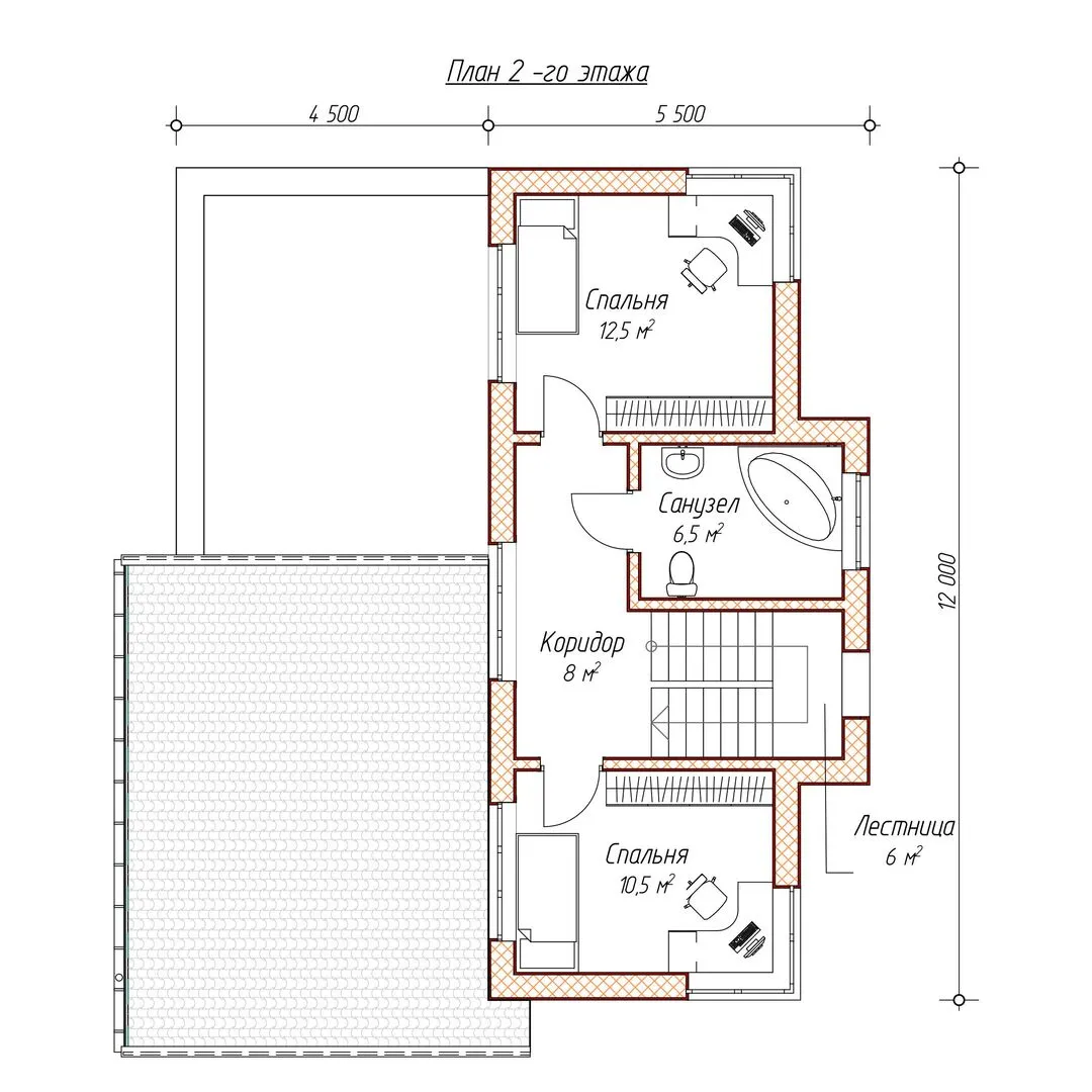
Площадь дома 211 м2
Санузлы 2
Спальни 3

Описание

**ЛИГА Н‑3‑Ц** – это воплощение комфорта и элегантности в чистом, классическом стиле. Три надземных этажа, продуманные до деталий, предоставляют простор для семьи, в которой каждый найдет свою уютную нишу. Пространственный план и продуманное распределение световых потоков создают ощущение лёгкости и свежести, а к тому же в доме предусмотрено круглогодичное проживание, так что холодные зимние ночи будут ощущаться как теплый плед. Внешний вид здания подчеркнут материалом, которым покрыты стены – полиэстеробетоном, что гарантирует долговечность и износостойкость. Современная комбинированная кровля обеспечивает не только эстетическую завершенность, но и надёжную защиту от непогоды. Пристроенный гараж и крытая автостоянка избавят от лишних забот, а уютная терраса станет идеальным местом для вечерних посиделок и семейных пикников. Это дом, где классика встречается с современными удобствами, создавая идеальное место для вашего семейного уюта.

Характеристики дома

Архитектурный стиль
Автоматизированное регулирование параметров теплоносителя
Да
Балконы/лоджии
Отсутствуют
Чердачное помещение
Нет
Датчики протечки воды
Нет
Эксплуатируемая или зеленая кровля
Нет
Электроснабжение
Центральное
Газоснабжение
Не предусмотрено
Изоляция воздушного шума
Да
Камин
Нет
Класс энергоэффективности
B
Класс энергосбережения
A
Количество надземных этажей
3
Круглогодичное проживание
Да
Материал кровли
Битумная черепица
Материал перекрытий
Монолитные железобетонные
Материал внешних стен
Материал внутренних перегородок
Модульное строительство с конструкциями заводского изготовления
Нет
Объем надземной части
634 м3
Основной материал фасадов
Штукатурка
Отопление
Индивидуальное
Площадь дома
211 м2
Площадь застройки
198 м2
Подвальное помещение
Нет
Показатель компактности здания
0.52
Приборы учета тепловой энергии
Да
Пристроенный гараж/крытая автостоянка
Да
Противопожарная система
Да
Санузлы
2
Совмещенная кухня-гостиная
Нет
Спальни
3
Терраса
Да
Тип фундамента
Плитный
Тип кровли
Толщина внешних стен
400 мм
Толщина внутренних перегородок
200 мм
Улучшенные шумовые характеристики
Да
Вентиляция
2 варианта
Веранда
Нет
Водоотведение
Локальные очистные сооружения
Водоснабжение
Индивидуальное
Высота дома
7.5 м
Высота потолков
3 м

Планировка

Фасад дома

Александр

Закажите выезд инженера

Александр

Выездной инженер
Закажите выезд инженера для точной диагностики и профессиональной консультации по инженерным системам. Специалист приедет в удобное время, проведёт осмотр, рассчитает стоимость работ и подберёт оптимальные решения для вашего дома.


    Похожие проекты

    Ипотека и
    рассрочка
    Жилой дом № 9
    Стоимость от:
    7 238 400
    Проект от: 45 000
    Этажей 2
    Санузлы 2
    Спальни 5
    Смотреть
    Ипотека и
    рассрочка
    Двухэтажный загородный дом «Спрингсайд»
    Стоимость от:
    7 062 300
    Проект от: 53 100
    Этажей 2
    Санузлы 2
    Спальни 4
    Смотреть
    Ипотека и
    рассрочка
    Одноэтажный каркасно-щитовой дом
    Стоимость от:
    5 507 150
    Проект от: 42 750
    Этажей 1
    Санузлы 1
    Спальни 3
    Смотреть
    Ипотека и
    рассрочка
    Проект B 021
    Стоимость от:
    7 403 660
    Проект от: 41 850
    Этажей 1
    Санузлы 2
    Спальни 3
    Смотреть
    Ипотека и
    рассрочка
    Одноэтажный дом Fixplans — 1979
    Стоимость от:
    13 064 700
    Проект от: 83 250
    Этажей 1
    Санузлы 2
    Спальни 3
    Смотреть
    Ипотека и
    рассрочка
    Одноэтажный дом СКАЙ-75
    Стоимость от:
    5 296 500
    Проект от: 33 750
    Этажей 1
    Санузлы 2
    Спальни 2
    Смотреть

    Как узнать стоимость дома

    back
    Оставляете заявку
    Вы заполняете форму на сайте или звоните нам. Менеджер Лайвкрафт связывается с вами для уточнения деталей: тип дома, площадь, материалы, участок строительства.
    back
    Консультация и подбор решения
    Наш специалист помогает выбрать оптимальный тип дома и конструкцию с учётом бюджета, сроков и целей — будь то дом для постоянного проживания или дача.
    back
    Расчёт предварительной стоимости
    Инженер делает первичный расчёт стоимости строительства по вашим параметрам: фундамент, коробка, кровля, отделка. Вы получаете смету с разбивкой по этапам.
    back
    Корректировка и утверждение сметы
    При необходимости вносим изменения — например, замену материалов или сокращение этапов. После согласования формируется окончательная фиксированная смета.
    back
    Заключение договора и старт работ
    После утверждения сметы заключаем официальный договор с гарантией. Вы получаете прозрачный график и точную стоимость — без скрытых расходов.

    Заказать конусльтацию по:ЛИГА_Н-3-Ц

    Фото 1 ЛИГА_Н-3-Ц


      Наши
      контакты

      Дмитров
      Опорный проезд 28Б
      (индустриальный парк Ниагара)
      9:00 до 18:00

      Корзина