4.9
Рейтинг на основании 120 отзывов
Дмитров
Опорный проезд 28Б
(индустриальный парк Ниагара)
Бренд "Дмитров-Дело" c 2008 года на рынке строительства в Дмитрове
Звоните 9:00 до 18:00 8 (915) 055-33-61
Бренд "Дмитров-Дело" c 2008 года на рынке строительства в Дмитрове

М3

Стоимость проекта от:
60 300 ₽
БЕСПЛАТНО! ПРИ ЗАКАЗЕ СТРОИТЕЛЬСТВА
Стоимость строительства от:
10 065 880 ₽
Артикул ART-19136
Дата 26.12.2025
Архитектурный стиль Скандинавский
Количество надземных этажей 1
Круглогодичное проживание Да
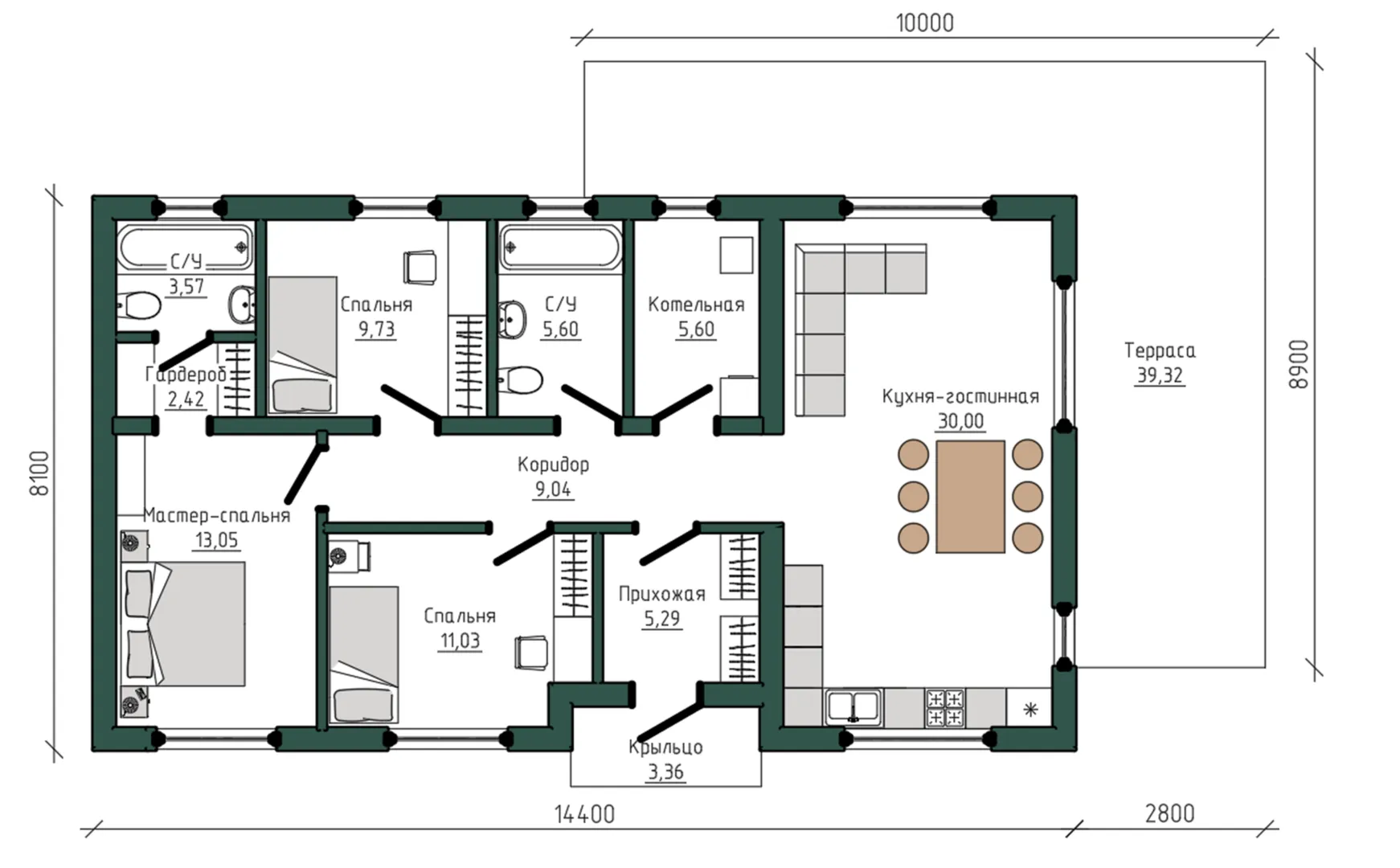
Площадь дома 134 м2
Санузлы 2
Спальни 3

Описание

Одиннадцать метров широкого пространства, но внутри ощущается, как будто дом раскрывает каждому уголку теплоту и свет. Скандинавский стиль в его чистых линиях и открытых проёмах приглашает вам в лёгкую, воздушную обстановку, где каждая комната живёт в гармонии с природой. Построенный из газобетонных блоков, он гарантирует высокий уровень тепло‑ и звукоизоляции, а двускатная крыша подчёркивает его простоту и элегантность. Дом предназначен для круглогодичного проживания и создаёт незабываемую атмосферу уюта в любое время года. Внутри — световые коридоры, просторные комнаты и уютная кухня, а снаружи — терраса, где можно провести время за чашкой чая, слушая шум улиц, или устроить небольшую летнюю гриль‑вечеру. Отсутствие балконов, веранд, гаражных помещений и чердака делает интерьер максимально светлым и воздушным, а отсутствие заглушающих конструкций позволяет легко адаптировать пространство под любые ваши потребности. Если вы цените простоту в сочетании с функциональностью, ищете место, где каждый день можно расслабиться с видом на природу, а ваша жизнь будет полна комфорта и спокойствия – этот дом для вас. Здесь с каждой стеной, крышей и углом вам будет понятно, что это — ваш новый уютный уголок, созданный под ваши желания и образ жизни.

Характеристики дома

Архитектурный стиль
Автоматизированное регулирование параметров теплоносителя
Нет
Балконы/лоджии
Отсутствуют
Чердачное помещение
Нет
Датчики протечки воды
Нет
Эксплуатируемая или зеленая кровля
Нет
Электроснабжение
Центральное
Газоснабжение
Центральное
Изоляция воздушного шума
Нет
Камин
Нет
Класс энергоэффективности
-
Класс энергосбережения
-
Количество надземных этажей
1
Круглогодичное проживание
Да
Материал кровли
Металлочерепица
Материал перекрытий
Деревянные
Материал внешних стен
Материал внутренних перегородок
Блочные
Модульное строительство с конструкциями заводского изготовления
Нет
Объем надземной части
740 м3
Основной материал фасадов
Штукатурка
Отопление
Индивидуальное
Площадь дома
134 м2
Площадь застройки
154 м2
Подвальное помещение
Нет
Показатель компактности здания
-
Приборы учета тепловой энергии
Нет
Пристроенный гараж/крытая автостоянка
Нет
Противопожарная система
Нет
Санузлы
2
Совмещенная кухня-гостиная
Да
Спальни
3
Терраса
Да
Тип фундамента
Свайно-ростверковый
Тип кровли
Толщина внешних стен
300 мм
Толщина внутренних перегородок
100 мм
Улучшенные шумовые характеристики
Нет
Вентиляция
Естественная
Веранда
Нет
Водоотведение
Локальные очистные сооружения
Водоснабжение
2 варианта
Высота дома
6 м
Высота потолков
2.7 м

Планировка

Фасад дома

Александр

Закажите выезд инженера

Александр

Выездной инженер
Закажите выезд инженера для точной диагностики и профессиональной консультации по инженерным системам. Специалист приедет в удобное время, проведёт осмотр, рассчитает стоимость работ и подберёт оптимальные решения для вашего дома.


    Похожие проекты

    Ипотека и
    рассрочка
    Жилой дом № 15
    Стоимость от:
    7 890 300
    Проект от: 47 250
    Этажей 1
    Санузлы 2
    Спальни 4
    Смотреть
    Ипотека и
    рассрочка
    Пазелы 1960
    Стоимость от:
    10 591 020
    Проект от: 63 450
    Этажей 1
    Санузлы 2
    Спальни 3
    Смотреть
    Ипотека и
    рассрочка
    Тула
    Стоимость от:
    3 839 220
    Проект от: 22 950
    Этажей 1
    Санузлы 1
    Спальни 1
    Смотреть
    Ипотека и
    рассрочка
    Одноэтажный дом Basic
    Стоимость от:
    5 296 500
    Проект от: 33 750
    Этажей 1
    Санузлы 2
    Спальни 3
    Смотреть
    Ипотека и
    рассрочка
    Загородный дом — Белиан
    Стоимость от:
    11 218 560
    Проект от: 80 550
    Этажей 2
    Санузлы 2
    Спальни 4
    Смотреть
    Ипотека и
    рассрочка
    Загородный дом КД-20
    Стоимость от:
    10 811 040
    Проект от: 74 700
    Этажей 2
    Санузлы 2
    Спальни 2
    Смотреть

    Как узнать стоимость дома

    back
    Оставляете заявку
    Вы заполняете форму на сайте или звоните нам. Менеджер Лайвкрафт связывается с вами для уточнения деталей: тип дома, площадь, материалы, участок строительства.
    back
    Консультация и подбор решения
    Наш специалист помогает выбрать оптимальный тип дома и конструкцию с учётом бюджета, сроков и целей — будь то дом для постоянного проживания или дача.
    back
    Расчёт предварительной стоимости
    Инженер делает первичный расчёт стоимости строительства по вашим параметрам: фундамент, коробка, кровля, отделка. Вы получаете смету с разбивкой по этапам.
    back
    Корректировка и утверждение сметы
    При необходимости вносим изменения — например, замену материалов или сокращение этапов. После согласования формируется окончательная фиксированная смета.
    back
    Заключение договора и старт работ
    После утверждения сметы заключаем официальный договор с гарантией. Вы получаете прозрачный график и точную стоимость — без скрытых расходов.

    Заказать конусльтацию по:М3

    Фото 1 М3


      Наши
      контакты

      Дмитров
      Опорный проезд 28Б
      (индустриальный парк Ниагара)
      9:00 до 18:00

      Корзина