4.9
Рейтинг на основании 120 отзывов
Дмитров
Опорный проезд 28Б
(индустриальный парк Ниагара)
Бренд "Дмитров-Дело" c 2008 года на рынке строительства в Дмитрове
Звоните 9:00 до 18:00 8 (915) 055-33-61
Бренд "Дмитров-Дело" c 2008 года на рынке строительства в Дмитрове

Малеевка

Стоимость проекта от:
59 850 ₽
БЕСПЛАТНО! ПРИ ЗАКАЗЕ СТРОИТЕЛЬСТВА
Стоимость строительства от:
8 419 565 ₽
Артикул ART-18986
Дата 26.12.2025
Архитектурный стиль Классический
Количество надземных этажей 1
Круглогодичное проживание Да
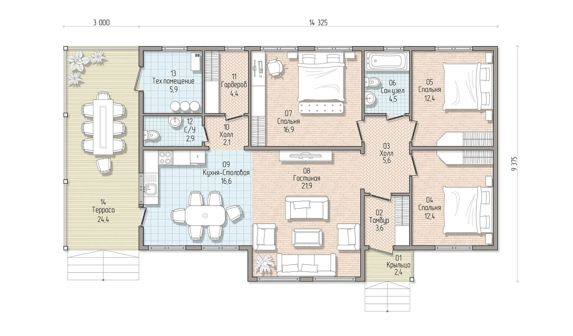
Площадь дома 133 м2
Санузлы 2
Спальни 3

Описание

Приветствуем вас в уютном уголке, где классика встречается с современностью, а каждый уголок пропитан комфортом. Этот одинэтажный дом в классическом стиле с комбинированной кровлей — идеальное место для тех, кто ценит спокойствие и простоту без лишних деталей. Благодаря использованию SIP‑панелей в наружных стенах, ваш новый уютный уголок быстро «подтянется» теплоизоляцией и станет «сердцем» дома в любое время года. Здесь предусмотрено круглогодичное проживание: нет лишних этажей, которые требуют подъёма по лестнице, и всё находится на одном уровне, что особенно удобно для детей, пожилых людей или гостей с ограниченной мобильностью. Вместе с вместительным чердачным пространством, которое можно превратить в гостиную, кабинет или мастерскую, у вас появляется возможность реализовать любые идеи. А открытая терраса приглашает к вечерам на свежем воздухе, где можно наслаждаться закатами и уютными беседами без балконов и веранд, но с достаточным пространством на свежем воздухе. Дом, созданный с учётом всех современных требований к энергоэффективности и долговечности, станет вашим надёжным спутником в любые сезоны. Его изысканный внешний вид, сочетание традиционных деталей и технологичных решений делает его идеальным выбором для тех, кто хочет жить в гармонии с природой и при этом не отказываться от удобств современного строительства. Приглашаем вам открыть дверь в ваш новый дом – где каждый уголок наполнен теплом и уютом.

Характеристики дома

Архитектурный стиль
Автоматизированное регулирование параметров теплоносителя
Нет
Балконы/лоджии
Отсутствуют
Чердачное помещение
Да
Датчики протечки воды
Нет
Эксплуатируемая или зеленая кровля
Нет
Электроснабжение
Центральное
Газоснабжение
2 варианта
Изоляция воздушного шума
Нет
Камин
Нет
Класс энергоэффективности
-
Класс энергосбережения
-
Количество надземных этажей
1
Круглогодичное проживание
Да
Материал кровли
Металлочерепица
Материал перекрытий
Деревянные
Материал внешних стен
Материал внутренних перегородок
Деревянные
Модульное строительство с конструкциями заводского изготовления
Да
Объем надземной части
477 м3
Основной материал фасадов
Сайдинг
Отопление
Индивидуальное
Площадь дома
133 м2
Площадь застройки
149 м2
Подвальное помещение
Нет
Показатель компактности здания
-
Приборы учета тепловой энергии
Нет
Пристроенный гараж/крытая автостоянка
Нет
Противопожарная система
Нет
Санузлы
2
Совмещенная кухня-гостиная
Да
Спальни
3
Терраса
Да
Тип фундамента
Свайно-винтовой
Тип кровли
Толщина внешних стен
174 мм
Толщина внутренних перегородок
150 мм
Улучшенные шумовые характеристики
Нет
Вентиляция
Естественная
Веранда
Нет
Водоотведение
Локальные очистные сооружения
Водоснабжение
2 варианта
Высота дома
5.7 м
Высота потолков
2.8 м

Планировка

Фасад дома

Александр

Закажите выезд инженера

Александр

Выездной инженер
Закажите выезд инженера для точной диагностики и профессиональной консультации по инженерным системам. Специалист приедет в удобное время, проведёт осмотр, рассчитает стоимость работ и подберёт оптимальные решения для вашего дома.


    Похожие проекты

    Ипотека и
    рассрочка
    Проект № 352
    Стоимость от:
    7 061 040
    Проект от: 45 450
    Этажей 2
    Санузлы 2
    Спальни 4
    Смотреть
    Ипотека и
    рассрочка
    Дом Ингрид 197
    Стоимость от:
    9 334 160
    Проект от: 57 600
    Этажей 1
    Санузлы 2
    Спальни 3
    Смотреть
    Ипотека и
    рассрочка
    Орион
    Стоимость от:
    5 367 120
    Проект от: 34 200
    Этажей 1
    Санузлы 1
    Спальни 2
    Смотреть
    Ипотека и
    рассрочка
    А-дом 54
    Стоимость от:
    4 259 520
    Проект от: 30 600
    Этажей 2
    Санузлы 1
    Спальни 2
    Смотреть
    Ипотека и
    рассрочка
    Одноэтажный жилой дом «Орион»
    Стоимость от:
    8 403 780
    Проект от: 53 550
    Этажей 1
    Санузлы 1
    Спальни 3
    Смотреть
    Ипотека и
    рассрочка
    Одноэтажный коттедж КС 041
    Стоимость от:
    9 771 080
    Проект от: 60 300
    Этажей 1
    Санузлы 2
    Спальни 3
    Смотреть

    Как узнать стоимость дома

    back
    Оставляете заявку
    Вы заполняете форму на сайте или звоните нам. Менеджер Лайвкрафт связывается с вами для уточнения деталей: тип дома, площадь, материалы, участок строительства.
    back
    Консультация и подбор решения
    Наш специалист помогает выбрать оптимальный тип дома и конструкцию с учётом бюджета, сроков и целей — будь то дом для постоянного проживания или дача.
    back
    Расчёт предварительной стоимости
    Инженер делает первичный расчёт стоимости строительства по вашим параметрам: фундамент, коробка, кровля, отделка. Вы получаете смету с разбивкой по этапам.
    back
    Корректировка и утверждение сметы
    При необходимости вносим изменения — например, замену материалов или сокращение этапов. После согласования формируется окончательная фиксированная смета.
    back
    Заключение договора и старт работ
    После утверждения сметы заключаем официальный договор с гарантией. Вы получаете прозрачный график и точную стоимость — без скрытых расходов.

    Заказать конусльтацию по:Малеевка

    Фото 1 Малеевка


      Наши
      контакты

      Дмитров
      Опорный проезд 28Б
      (индустриальный парк Ниагара)
      9:00 до 18:00

      Корзина