4.9
Рейтинг на основании 120 отзывов
Дмитров
Опорный проезд 28Б
(индустриальный парк Ниагара)
Бренд "Дмитров-Дело" c 2008 года на рынке строительства в Дмитрове
Звоните 9:00 до 18:00 8 (915) 055-33-61
Бренд "Дмитров-Дело" c 2008 года на рынке строительства в Дмитрове

Малина 111

Стоимость проекта от:
49 950 ₽
БЕСПЛАТНО! ПРИ ЗАКАЗЕ СТРОИТЕЛЬСТВА
Стоимость строительства от:
7 908 240 ₽
Артикул ART-13463
Дата 25.12.2025
Архитектурный стиль Европейский
Количество надземных этажей 2
Круглогодичное проживание Да
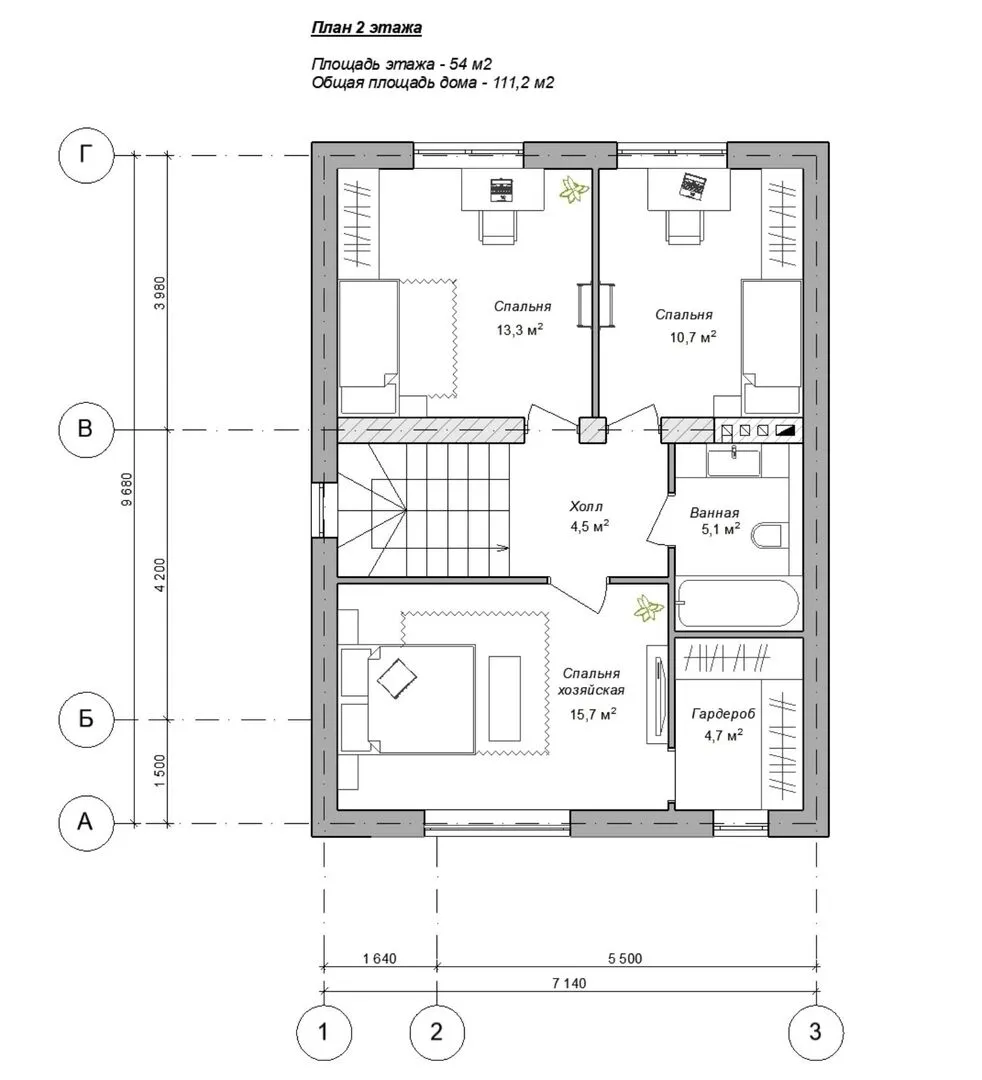
Площадь дома 111 м2
Санузлы 2
Спальни 4

Описание

Представляем вашему вниманию изысканный дом "Малина 111" — воплощение европейского комфорта и утончённой эстетики, расположенный в живописном районе, где хочется жить круглый год. Благодаря двум надземным этажам вы обретаете достаточное пространство для привычной семьи, сохраняя при этом ощущение лёгкости и простора. Полная проходимость по дому и продуманная планировка позволяют уютно разместиться каждому жильцу: от светлых комнат до тихих уголков для отдыха. Дом выполнен в классическом европейском стиле, где чистая форма и внимательное обращение к деталям делают его неповторимым. Керамический блок, используемый в отделке внешних стен, придаёт фасаду стойкость и элегантность, а двускатная крыша подчёркивает гармоничные линии здания. Внутри вы найдёте просторные, хорошо освещённые помещения, а наличие всех необходимых коммуникаций на каждом этаже делает проживание удобным и комфортным в любое время года. "Малина 111" предназначен для тех, кто ценит истинное качество жилья, стремясь к гармонии между уютом, функциональностью и эстетикой. Здесь нет лишних балконов и веранд, зато присутствует ровно то, что делает дом особенным – внимание к деталям, продуманная конструкция и возможность круглогодичного проживания. Приходите и убедитесь сами, что истинный дом — это место, где каждый элемент создан для вашего благополучия.

Характеристики дома

Архитектурный стиль
Автоматизированное регулирование параметров теплоносителя
Нет
Балконы/лоджии
Отсутствуют
Чердачное помещение
Нет
Датчики протечки воды
Нет
Эксплуатируемая или зеленая кровля
Нет
Электроснабжение
2 варианта
Газоснабжение
2 варианта
Изоляция воздушного шума
Да
Камин
Нет
Класс энергоэффективности
A+
Класс энергосбережения
A+
Количество надземных этажей
2
Круглогодичное проживание
Да
Материал кровли
Фальцевая кровля Кликфальц
Материал перекрытий
Монолитные железобетонные
Материал внешних стен
Материал внутренних перегородок
Кирпичные
Модульное строительство с конструкциями заводского изготовления
Нет
Объем надземной части
524 м3
Основной материал фасадов
Искусственный камень
Отопление
Индивидуальное
Площадь дома
111 м2
Площадь застройки
69 м2
Подвальное помещение
Нет
Показатель компактности здания
1
Приборы учета тепловой энергии
Нет
Пристроенный гараж/крытая автостоянка
Нет
Противопожарная система
Нет
Санузлы
2
Совмещенная кухня-гостиная
Да
Спальни
4
Терраса
Нет
Тип фундамента
Свайно-ростверковый
Тип кровли
Толщина внешних стен
380 мм
Толщина внутренних перегородок
100 мм
Улучшенные шумовые характеристики
Нет
Вентиляция
Принудительная
Веранда
Нет
Водоотведение
2 варианта
Водоснабжение
2 варианта
Высота дома
8.16 м
Высота потолков
2.8 м

Планировка

Фасад дома

Александр

Закажите выезд инженера

Александр

Выездной инженер
Закажите выезд инженера для точной диагностики и профессиональной консультации по инженерным системам. Специалист приедет в удобное время, проведёт осмотр, рассчитает стоимость работ и подберёт оптимальные решения для вашего дома.


    Похожие проекты

    Ипотека и
    рассрочка
    S.Dom-98-2
    Стоимость от:
    5 116 560
    Проект от: 35 550
    Этажей 2
    Санузлы 1
    Спальни 4
    Смотреть
    Ипотека и
    рассрочка
    Барнхаус одноэтажный
    Стоимость от:
    3 625 050
    Проект от: 29 250
    Этажей 1
    Санузлы 1
    Спальни 2
    Смотреть
    Ипотека и
    рассрочка
    Современное шале из арболита-Мечта
    Стоимость от:
    7 252 520
    Проект от: 47 700
    Этажей 1
    Санузлы 2
    Спальни 3
    Смотреть
    Ипотека и
    рассрочка
    Одноэтажный дом Фюссен 9,3х12.5
    Стоимость от:
    7 184 100
    Проект от: 47 250
    Этажей 1
    Санузлы 1
    Спальни 3
    Смотреть
    Ипотека и
    рассрочка
    Двухэтажный каркасный дом 8*9 «БС-171»
    Стоимость от:
    7 551 360
    Проект от: 53 550
    Этажей 2
    Санузлы 2
    Спальни 4
    Смотреть
    Ипотека и
    рассрочка
    Антверпен
    Стоимость от:
    8 890 560
    Проект от: 60 300
    Этажей 2
    Санузлы 2
    Спальни 4
    Смотреть

    Как узнать стоимость дома

    back
    Оставляете заявку
    Вы заполняете форму на сайте или звоните нам. Менеджер Лайвкрафт связывается с вами для уточнения деталей: тип дома, площадь, материалы, участок строительства.
    back
    Консультация и подбор решения
    Наш специалист помогает выбрать оптимальный тип дома и конструкцию с учётом бюджета, сроков и целей — будь то дом для постоянного проживания или дача.
    back
    Расчёт предварительной стоимости
    Инженер делает первичный расчёт стоимости строительства по вашим параметрам: фундамент, коробка, кровля, отделка. Вы получаете смету с разбивкой по этапам.
    back
    Корректировка и утверждение сметы
    При необходимости вносим изменения — например, замену материалов или сокращение этапов. После согласования формируется окончательная фиксированная смета.
    back
    Заключение договора и старт работ
    После утверждения сметы заключаем официальный договор с гарантией. Вы получаете прозрачный график и точную стоимость — без скрытых расходов.

    Заказать конусльтацию по:Малина 111

    Фото 1 Малина 111


      Наши
      контакты

      Дмитров
      Опорный проезд 28Б
      (индустриальный парк Ниагара)
      9:00 до 18:00

      Корзина