4.9
Рейтинг на основании 120 отзывов
Дмитров
Опорный проезд 28Б
(индустриальный парк Ниагара)
Бренд "Дмитров-Дело" c 2008 года на рынке строительства в Дмитрове
Звоните 9:00 до 18:00 8 (915) 055-33-61
Бренд "Дмитров-Дело" c 2008 года на рынке строительства в Дмитрове

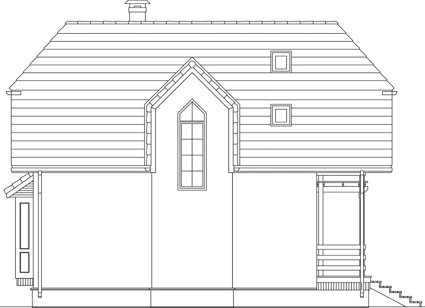
Мансардный дом Звенигород M

Стоимость проекта от:
55 350 ₽
БЕСПЛАТНО! ПРИ ЗАКАЗЕ СТРОИТЕЛЬСТВА
Стоимость строительства от:
8 022 720 ₽
Артикул ART-14230
Дата 25.12.2025
Архитектурный стиль Скандинавский
Количество надземных этажей 2
Круглогодичное проживание Да
Площадь дома 123 м2
Санузлы 2
Спальни 3

Описание

Звенигород **M** – это изящный мансардный дом, спроектированный в вечно свежем и функциональном скандинавском стиле. В комфортабельном двухуровневом доме вы ощутите уют и тепло круглый год: изысканная отделка, большие окна, которые наполняют пространство естественным светом, и надежная комбинированная крыша защищают от непогоды. Внешние деревянные каркасы придают вашему дому характерный «натуральный» вид и обеспечивают теплоизоляцию. Дом с одной балконной лоджией и просторным чердачным помещением дарит идеальное сочетание приватности и функциональности. Вы сможете создавать собственные уголки творчества, хранить сезонную одежду, книги или инструменты – всё под рукой. Небольшая, но очень уютная терраса станет вашим секретным уголком, где можно пить ароматный кофе или наслаждаться видом на зеленые просторы. Никаких прикладных гаражей и веранды, но всё же вы получите всю необходимую свободу. Этот дом – идеальная база для тех, кто ценит чистый, минималистичный дизайн и хочет жить в гармонии с природой, но при этом иметь всё необходимое для комфортной жизни в любое время года. Приходите и убедитесь, что стиль и функциональность могут идти рука об руку.

Характеристики дома

Архитектурный стиль
Автоматизированное регулирование параметров теплоносителя
Да
Балконы/лоджии
1
Чердачное помещение
Да
Датчики протечки воды
Нет
Эксплуатируемая или зеленая кровля
Нет
Электроснабжение
2 варианта
Газоснабжение
2 варианта
Изоляция воздушного шума
Да
Камин
Да
Класс энергоэффективности
-
Класс энергосбережения
-
Количество надземных этажей
2
Круглогодичное проживание
Да
Материал кровли
Цементно-песчаная черепица
Материал перекрытий
Деревянные
Материал внешних стен
Материал внутренних перегородок
Гипсокартонные
Модульное строительство с конструкциями заводского изготовления
Нет
Объем надземной части
-
Основной материал фасадов
Облицовочный кирпич
Отопление
2 варианта
Площадь дома
123 м2
Площадь застройки
83 м2
Подвальное помещение
Нет
Показатель компактности здания
-
Приборы учета тепловой энергии
Да
Пристроенный гараж/крытая автостоянка
Нет
Противопожарная система
Нет
Санузлы
2
Совмещенная кухня-гостиная
Да
Спальни
3
Терраса
Да
Тип фундамента
Свайно-ростверковый
Тип кровли
Толщина внешних стен
355 мм
Толщина внутренних перегородок
120 мм
Улучшенные шумовые характеристики
Да
Вентиляция
2 варианта
Веранда
Нет
Водоотведение
2 варианта
Водоснабжение
2 варианта
Высота дома
8.1 м
Высота потолков
2.7 м

Планировка

Фасад дома

Александр

Закажите выезд инженера

Александр

Выездной инженер
Закажите выезд инженера для точной диагностики и профессиональной консультации по инженерным системам. Специалист приедет в удобное время, проведёт осмотр, рассчитает стоимость работ и подберёт оптимальные решения для вашего дома.


    Похожие проекты

    Ипотека и
    рассрочка
    Загородный дом из газобетона «M»
    Стоимость от:
    11 331 600
    Проект от: 74 250
    Этажей 2
    Санузлы 3
    Спальни 5
    Смотреть
    Ипотека и
    рассрочка
    Барнхаус АС-2447
    Стоимость от:
    8 249 760
    Проект от: 51 300
    Этажей 2
    Санузлы 2
    Спальни 3
    Смотреть
    Ипотека и
    рассрочка
    GS-100
    Стоимость от:
    7 290 140
    Проект от: 43 650
    Этажей 1
    Санузлы 2
    Спальни 3
    Смотреть
    Ипотека и
    рассрочка
    Каркасно-фахверковый дом «Вестерос»
    Стоимость от:
    8 405 650
    Проект от: 65 250
    Этажей 1
    Санузлы 2
    Спальни 3
    Смотреть
    Ипотека и
    рассрочка
    Небольшой дом в стиле хай-тек с гаражом S-137
    Стоимость от:
    12 504 000
    Проект от: 76 500
    Этажей 2
    Санузлы 2
    Спальни 4
    Смотреть
    Ипотека и
    рассрочка
    Одноэтажный загородный дом «РОУЗ»
    Стоимость от:
    4 874 485
    Проект от: 34 650
    Этажей 1
    Санузлы 1
    Спальни 3
    Смотреть

    Как узнать стоимость дома

    back
    Оставляете заявку
    Вы заполняете форму на сайте или звоните нам. Менеджер Лайвкрафт связывается с вами для уточнения деталей: тип дома, площадь, материалы, участок строительства.
    back
    Консультация и подбор решения
    Наш специалист помогает выбрать оптимальный тип дома и конструкцию с учётом бюджета, сроков и целей — будь то дом для постоянного проживания или дача.
    back
    Расчёт предварительной стоимости
    Инженер делает первичный расчёт стоимости строительства по вашим параметрам: фундамент, коробка, кровля, отделка. Вы получаете смету с разбивкой по этапам.
    back
    Корректировка и утверждение сметы
    При необходимости вносим изменения — например, замену материалов или сокращение этапов. После согласования формируется окончательная фиксированная смета.
    back
    Заключение договора и старт работ
    После утверждения сметы заключаем официальный договор с гарантией. Вы получаете прозрачный график и точную стоимость — без скрытых расходов.

    Заказать конусльтацию по:Мансардный дом Звенигород M

    Фото 1 Мансардный дом Звенигород M


      Наши
      контакты

      Дмитров
      Опорный проезд 28Б
      (индустриальный парк Ниагара)
      9:00 до 18:00

      Корзина