4.9
Рейтинг на основании 120 отзывов
Дмитров
Опорный проезд 28Б
(индустриальный парк Ниагара)
Бренд "Дмитров-Дело" c 2008 года на рынке строительства в Дмитрове
Звоните 9:00 до 18:00 8 (915) 055-33-61
Бренд "Дмитров-Дело" c 2008 года на рынке строительства в Дмитрове

Мансардный загородный дом с террасой «СИП-103»

Стоимость проекта от:
44 550 ₽
БЕСПЛАТНО! ПРИ ЗАКАЗЕ СТРОИТЕЛЬСТВА
Стоимость строительства от:
6 522 360 ₽
Артикул ART-17312
Дата 26.12.2025
Архитектурный стиль Классический
Количество надземных этажей 2
Круглогодичное проживание Да
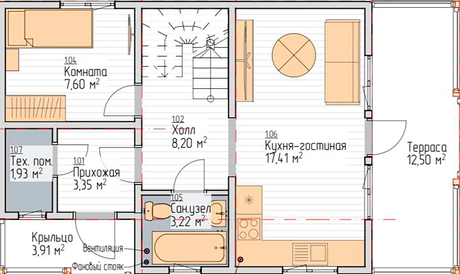
Площадь дома 99 м2
Санузлы 2
Спальни 5

Описание

**Мансардный загородный дом «SIP‑103»** – это воплощение утончённой классической эстетики в сердце природы. Два надземных этажа, соединённые величественной двускатной крышей, создают простор для уютных семейных встреч и гармоничных моментов отдыха. Современные SIP‑панели, объединённые лаконичными линиями фасада, дарят тепло и энергоэффективность, а просторные оконные про­раммы пропускают солнечный свет, наполняя комнаты живой энергией. Вдохновляющий внутренний ритм построен так, чтобы каждый уголок приглашал к отдыху, будь то чтение старой книги в тихой гостиной или общение с близкими в светлой кухне. Терраса «SIP‑103» – площадка, открывающая неповторимые виды на окрестный ландшафт. Именно здесь можно наслаждаться вечными рассветами и шёпотом ветра даже в самые прохладные месяцы года, ведь за счёт двойных слоёв SIP‑панелей ваш дом остаётся теплом и уютом круглый год. Внутренний двор, окружённый мягкой изгородью, обретает статус личного убежища от шума городского движения, где можно провести выходные за пикником, а вечером – под звёздным небом, слушая шёпот ночной природы. «SIP‑103» – это не просто дом, это ваш личный уголок спокойствия, где классика встречается с технологией. Отсутствие балконов и веранд не делает его неполноценным, а наоборот подчёркивает аккуратность линий и упрощает планировку интерьера: свободное пространство делает каждый приём гостей и повседневные утренние ритуалы по-настоящему особенным. В этом доме каждый элемент задуман так, чтобы придавать комфорт и эстетическое наслаждение жизнью, даря вам ощущение уюта и благополучия в каждом дне.

Характеристики дома

Архитектурный стиль
Автоматизированное регулирование параметров теплоносителя
Нет
Балконы/лоджии
Отсутствуют
Чердачное помещение
Нет
Датчики протечки воды
Нет
Эксплуатируемая или зеленая кровля
Нет
Электроснабжение
Индивидуальное
Газоснабжение
Не предусмотрено
Изоляция воздушного шума
Нет
Камин
Нет
Класс энергоэффективности
-
Класс энергосбережения
-
Количество надземных этажей
2
Круглогодичное проживание
Да
Материал кровли
Металлочерепица
Материал перекрытий
Деревянные
Материал внешних стен
Материал внутренних перегородок
Деревянные
Модульное строительство с конструкциями заводского изготовления
Нет
Объем надземной части
653 м3
Основной материал фасадов
Фасадная плитка
Отопление
Индивидуальное
Площадь дома
99 м2
Площадь застройки
55 м2
Подвальное помещение
Нет
Показатель компактности здания
-
Приборы учета тепловой энергии
Нет
Пристроенный гараж/крытая автостоянка
Нет
Противопожарная система
Нет
Санузлы
2
Совмещенная кухня-гостиная
Да
Спальни
5
Терраса
Да
Тип фундамента
Свайно-винтовой
Тип кровли
Толщина внешних стен
174 мм
Толщина внутренних перегородок
124 мм
Улучшенные шумовые характеристики
Нет
Вентиляция
2 варианта
Веранда
Нет
Водоотведение
Локальные очистные сооружения
Водоснабжение
Индивидуальное
Высота дома
6.6 м
Высота потолков
2.5 м

Планировка

Фасад дома

Александр

Закажите выезд инженера

Александр

Выездной инженер
Закажите выезд инженера для точной диагностики и профессиональной консультации по инженерным системам. Специалист приедет в удобное время, проведёт осмотр, рассчитает стоимость работ и подберёт оптимальные решения для вашего дома.


    Похожие проекты

    Ипотека и
    рассрочка
    Багульник
    Стоимость от:
    5 621 660
    Проект от: 41 400
    Этажей 1
    Санузлы 1
    Спальни 2
    Смотреть
    Ипотека и
    рассрочка
    Загородный дом «Капучино»
    Стоимость от:
    6 002 700
    Проект от: 38 250
    Этажей 1
    Санузлы 1
    Спальни 2
    Смотреть
    Ипотека и
    рассрочка
    Загородный дом Б4
    Стоимость от:
    6 251 520
    Проект от: 43 200
    Этажей 1
    Санузлы 1
    Спальни 2
    Смотреть
    Ипотека и
    рассрочка
    85/1
    Стоимость от:
    6 389 900
    Проект от: 38 250
    Этажей 1
    Санузлы 1
    Спальни 3
    Смотреть
    Ипотека и
    рассрочка
    Плёс 2
    Стоимость от:
    6 291 780
    Проект от: 35 550
    Этажей 1
    Санузлы 2
    Спальни 3
    Смотреть
    Ипотека и
    рассрочка
    Одноэтажный дом Голландия
    Стоимость от:
    11 056 980
    Проект от: 62 550
    Этажей 1
    Санузлы 2
    Спальни 3
    Смотреть

    Как узнать стоимость дома

    back
    Оставляете заявку
    Вы заполняете форму на сайте или звоните нам. Менеджер Лайвкрафт связывается с вами для уточнения деталей: тип дома, площадь, материалы, участок строительства.
    back
    Консультация и подбор решения
    Наш специалист помогает выбрать оптимальный тип дома и конструкцию с учётом бюджета, сроков и целей — будь то дом для постоянного проживания или дача.
    back
    Расчёт предварительной стоимости
    Инженер делает первичный расчёт стоимости строительства по вашим параметрам: фундамент, коробка, кровля, отделка. Вы получаете смету с разбивкой по этапам.
    back
    Корректировка и утверждение сметы
    При необходимости вносим изменения — например, замену материалов или сокращение этапов. После согласования формируется окончательная фиксированная смета.
    back
    Заключение договора и старт работ
    После утверждения сметы заключаем официальный договор с гарантией. Вы получаете прозрачный график и точную стоимость — без скрытых расходов.

    Заказать конусльтацию по:Мансардный загородный дом с террасой «СИП-103»

    Фото 1 Мансардный загородный дом с террасой «СИП-103»


      Наши
      контакты

      Дмитров
      Опорный проезд 28Б
      (индустриальный парк Ниагара)
      9:00 до 18:00

      Корзина