4.9
Рейтинг на основании 120 отзывов
Дмитров
Опорный проезд 28Б
(индустриальный парк Ниагара)
Бренд "Дмитров-Дело" c 2008 года на рынке строительства в Дмитрове
Звоните 9:00 до 18:00 8 (915) 055-33-61
Бренд "Дмитров-Дело" c 2008 года на рынке строительства в Дмитрове

Марматер 81

Стоимость проекта от:
36 450 ₽
БЕСПЛАТНО! ПРИ ЗАКАЗЕ СТРОИТЕЛЬСТВА
Стоимость строительства от:
4 851 060 ₽
Артикул ART-19373
Дата 26.12.2025
Архитектурный стиль Европейский
Количество надземных этажей 2
Круглогодичное проживание Да
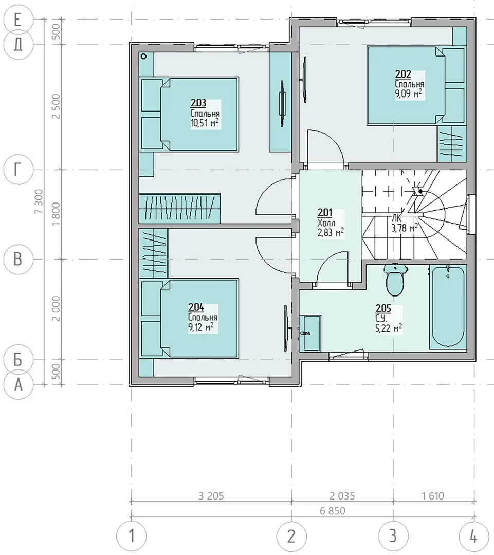
Площадь дома 81 м2
Санузлы 2
Спальни 4

Описание

В сердце живописного уголка, где свежий ветер и чистый воздух сливаются в гармонию, открывается уютный двухэтажный дом в европейском стиле – настоящий оазис для тех, кто ценит комфорт и атмосферу домашнего уюта. Благодаря использованию прочного деревянного каркаса и классической двускатной крыше, конструкция гарантирует теплоизоляцию и защиту от непогоды, позволяя наслаждаться полноценным круглогодичным проживанием. Просторные комнаты с высокими потолками и аккуратными окнами наполняются естественным светом, создавая теплоту и спокойствие в каждом уголке. В интерьере дом раскрывает элегантный баланс традиционных европейских элементов и современного удобства. Чистые линии фасада придают ему строгую элегантность, а отсутствие барельефных балконов и веранд подчеркивает лаконичность и функциональность. Просторные жилые площади изолированы от шума, а большие окна открывают панораму зелёных окрестностей, делая каждый день особенным. Принятые решения по материалам и дизайну позволяют создать теплую и благоприятную атмосферу, куда каждый человек будет с удовольствием возвращаться. Если в вашей жизни важна простота, но при этом вы хотите наслаждаться уютом и атмосферой европейского стиля, то этот дом – идеальный выбор. Удобство городской инфраструктуры в шаговой доступности, а также возможность организовать собственный гараж или автомобильную стоянку поблизости позволяют полностью погрузиться в комфортную рутину. Закажите просмотр уже сегодня и ощутите, как дом становится не просто строением, а вашим новым уютным уголком полного счастья.

Характеристики дома

Архитектурный стиль
Автоматизированное регулирование параметров теплоносителя
Нет
Балконы/лоджии
Отсутствуют
Чердачное помещение
Нет
Датчики протечки воды
Нет
Эксплуатируемая или зеленая кровля
Нет
Электроснабжение
Не предусмотрено
Газоснабжение
Не предусмотрено
Изоляция воздушного шума
Нет
Камин
Нет
Класс энергоэффективности
-
Класс энергосбережения
-
Количество надземных этажей
2
Круглогодичное проживание
Да
Материал кровли
Металлочерепица
Материал перекрытий
Деревянные
Материал внешних стен
Материал внутренних перегородок
Деревянные
Модульное строительство с конструкциями заводского изготовления
Нет
Объем надземной части
223 м3
Основной материал фасадов
Дерево
Отопление
Не предусмотрено
Площадь дома
81 м2
Площадь застройки
43 м2
Подвальное помещение
Нет
Показатель компактности здания
-
Приборы учета тепловой энергии
Нет
Пристроенный гараж/крытая автостоянка
Нет
Противопожарная система
Нет
Санузлы
2
Совмещенная кухня-гостиная
Да
Спальни
4
Терраса
Нет
Тип фундамента
Свайно-винтовой
Тип кровли
Толщина внешних стен
190 мм
Толщина внутренних перегородок
145 мм
Улучшенные шумовые характеристики
Да
Вентиляция
Естественная
Веранда
Нет
Водоотведение
Не предусмотрено
Водоснабжение
Не предусмотрено
Высота дома
6.5 м
Высота потолков
2.7 м

Планировка

Фасад дома

Александр

Закажите выезд инженера

Александр

Выездной инженер
Закажите выезд инженера для точной диагностики и профессиональной консультации по инженерным системам. Специалист приедет в удобное время, проведёт осмотр, рассчитает стоимость работ и подберёт оптимальные решения для вашего дома.


    Похожие проекты

    Ипотека и
    рассрочка
    Уютное семейное гнездышко с панорамой
    Стоимость от:
    6 765 000
    Проект от: 40 500
    Этажей 1
    Санузлы 2
    Спальни 3
    Смотреть
    Ипотека и
    рассрочка
    Дом с мансардным этажом в стиле шале Д-4
    Стоимость от:
    10 238 160
    Проект от: 62 550
    Этажей 2
    Санузлы 1
    Спальни 2
    Смотреть
    Ипотека и
    рассрочка
    Проект Ладога
    Стоимость от:
    7 085 980
    Проект от: 40 050
    Этажей 1
    Санузлы 1
    Спальни 3
    Смотреть
    Ипотека и
    рассрочка
    Ддом-41
    Стоимость от:
    6 384 000
    Проект от: 45 000
    Этажей 2
    Санузлы 2
    Спальни 4
    Смотреть
    Ипотека и
    рассрочка
    Пилигрим 2
    Стоимость от:
    10 210 640
    Проект от: 59 400
    Этажей 1
    Санузлы 2
    Спальни 3
    Смотреть
    Ипотека и
    рассрочка
    Одноэтажный дом по проекту Латен Макс — 114 м2
    Стоимость от:
    8 050 680
    Проект от: 51 300
    Этажей 1
    Санузлы 3
    Спальни 3
    Смотреть

    Как узнать стоимость дома

    back
    Оставляете заявку
    Вы заполняете форму на сайте или звоните нам. Менеджер Лайвкрафт связывается с вами для уточнения деталей: тип дома, площадь, материалы, участок строительства.
    back
    Консультация и подбор решения
    Наш специалист помогает выбрать оптимальный тип дома и конструкцию с учётом бюджета, сроков и целей — будь то дом для постоянного проживания или дача.
    back
    Расчёт предварительной стоимости
    Инженер делает первичный расчёт стоимости строительства по вашим параметрам: фундамент, коробка, кровля, отделка. Вы получаете смету с разбивкой по этапам.
    back
    Корректировка и утверждение сметы
    При необходимости вносим изменения — например, замену материалов или сокращение этапов. После согласования формируется окончательная фиксированная смета.
    back
    Заключение договора и старт работ
    После утверждения сметы заключаем официальный договор с гарантией. Вы получаете прозрачный график и точную стоимость — без скрытых расходов.

    Заказать конусльтацию по:Марматер 81

    Фото 1 Марматер 81


      Наши
      контакты

      Дмитров
      Опорный проезд 28Б
      (индустриальный парк Ниагара)
      9:00 до 18:00

      Корзина