4.9
Рейтинг на основании 120 отзывов
Дмитров
Опорный проезд 28Б
(индустриальный парк Ниагара)
Бренд "Дмитров-Дело" c 2008 года на рынке строительства в Дмитрове
Звоните 9:00 до 18:00 8 (915) 055-33-61
Бренд "Дмитров-Дело" c 2008 года на рынке строительства в Дмитрове

Марматер

Стоимость проекта от:
41 850 ₽
БЕСПЛАТНО! ПРИ ЗАКАЗЕ СТРОИТЕЛЬСТВА
Стоимость строительства от:
5 569 260 ₽
Артикул ART-14044
Дата 25.12.2025
Архитектурный стиль Европейский
Количество надземных этажей 2
Круглогодичное проживание Да
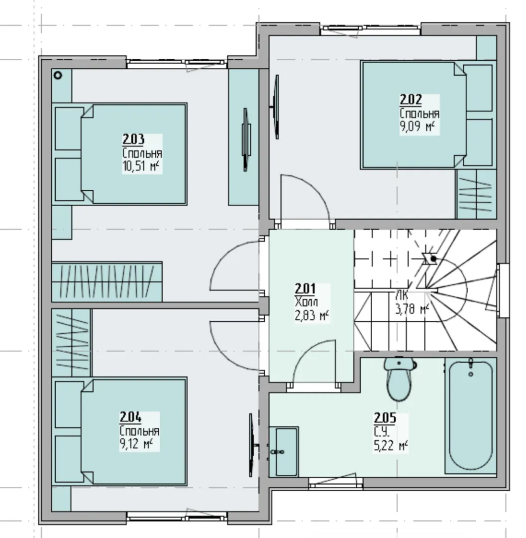
Площадь дома 93 м2
Санузлы 2
Спальни 4

Описание

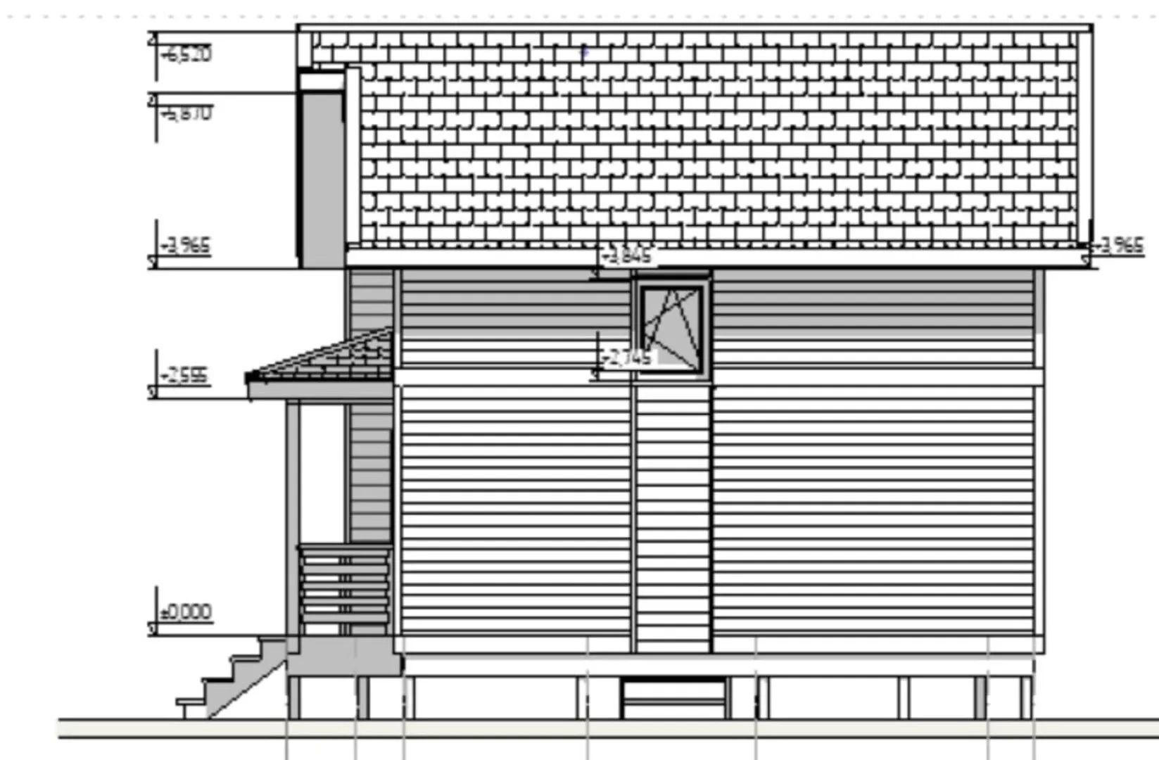
**Добро пожаловать в уютный уголок европейской классики, построенный из натуральной древесины.** Эта двухэтажная каркасная резиденция — настоящий дом мечты для тех, кто ценит сочетание традиций с современным комфортом. Солнечная терраса, открывающая вид на живописный ландшафт, становится идеальным местом для семейных перекусов, романтических вечеров на свежем воздухе и летних барбекю. Легкая, почти безупречная конструкция из дерева дарит тёплую и приятную атмосферу, а строгий двускатный профиль над крышей подчёркивает строгую европейскую эстетику. **Никаких компромиссов с комфортом**: в доме предусмотрено круглогодичное проживание, благодаря чему вы можете наслаждаться светлым, яркой обстановкой даже в холодные зимние дни. Отсутствие балконов и веранд не мешает ему выглядеть непременно живописным, ведь все уютные уголки пронизаны натуральным светом. Просторные внутренние помещения, выполненные в европейском стиле, создают ощущение благородства и спокойствия. Это идеальный дом для тех, кто ищет спокойствие и гармонию в сердце природы, но при этом нуждается в простом и удобном месте для жизни. Если вы мечтаете о собственном уютном пространстве, где каждый элемент говорит о качестве и заботе, этот дом откроет новые горизонты комфорта и стиля. Забронируйте просмотр и убедитесь, что ваш идеальный дом действительно существует.

Характеристики дома

Архитектурный стиль
Автоматизированное регулирование параметров теплоносителя
Нет
Балконы/лоджии
Отсутствуют
Чердачное помещение
Нет
Датчики протечки воды
Нет
Эксплуатируемая или зеленая кровля
Нет
Электроснабжение
Не предусмотрено
Газоснабжение
Не предусмотрено
Изоляция воздушного шума
Да
Камин
Нет
Класс энергоэффективности
-
Класс энергосбережения
-
Количество надземных этажей
2
Круглогодичное проживание
Да
Материал кровли
Металлочерепица
Материал перекрытий
Деревянные
Материал внешних стен
Материал внутренних перегородок
Деревянные
Модульное строительство с конструкциями заводского изготовления
Нет
Объем надземной части
360 м3
Основной материал фасадов
Дерево
Отопление
Не предусмотрено
Площадь дома
93 м2
Площадь застройки
58 м2
Подвальное помещение
Нет
Показатель компактности здания
-
Приборы учета тепловой энергии
Нет
Пристроенный гараж/крытая автостоянка
Нет
Противопожарная система
Нет
Санузлы
2
Совмещенная кухня-гостиная
Да
Спальни
4
Терраса
Да
Тип фундамента
Свайно-винтовой
Тип кровли
Толщина внешних стен
190 мм
Толщина внутренних перегородок
145 мм
Улучшенные шумовые характеристики
Да
Вентиляция
Естественная
Веранда
Нет
Водоотведение
Не предусмотрено
Водоснабжение
Не предусмотрено
Высота дома
6.5 м
Высота потолков
2.7 м

Планировка

Фасад дома

Александр

Закажите выезд инженера

Александр

Выездной инженер
Закажите выезд инженера для точной диагностики и профессиональной консультации по инженерным системам. Специалист приедет в удобное время, проведёт осмотр, рассчитает стоимость работ и подберёт оптимальные решения для вашего дома.


    Похожие проекты

    Ипотека и
    рассрочка
    Одноэтажный дом «Дарина»
    Стоимость от:
    5 735 840
    Проект от: 32 400
    Этажей 1
    Санузлы 1
    Спальни 3
    Смотреть
    Ипотека и
    рассрочка
    С-135 Лойк
    Стоимость от:
    7 838 820
    Проект от: 49 950
    Этажей 1
    Санузлы 1
    Спальни 3
    Смотреть
    Ипотека и
    рассрочка
    Одноэтажный дом с 3 спальнями, гостиной и выходом на террасу SAGRES1
    Стоимость от:
    12 486 540
    Проект от: 70 650
    Этажей 1
    Санузлы 2
    Спальни 3
    Смотреть
    Ипотека и
    рассрочка
    Дом из клееного бруса «Агидель»
    Стоимость от:
    9 130 440
    Проект от: 63 450
    Этажей 2
    Санузлы 2
    Спальни 4
    Смотреть
    Ипотека и
    рассрочка
    Одноэтажный дом «BLOSSOM»
    Стоимость от:
    7 890 300
    Проект от: 47 250
    Этажей 1
    Санузлы 2
    Спальни 3
    Смотреть
    Ипотека и
    рассрочка
    Одноэтажный жилой дом «Сириус»
    Стоимость от:
    6 567 660
    Проект от: 41 850
    Этажей 1
    Санузлы 2
    Спальни 3
    Смотреть

    Как узнать стоимость дома

    back
    Оставляете заявку
    Вы заполняете форму на сайте или звоните нам. Менеджер Лайвкрафт связывается с вами для уточнения деталей: тип дома, площадь, материалы, участок строительства.
    back
    Консультация и подбор решения
    Наш специалист помогает выбрать оптимальный тип дома и конструкцию с учётом бюджета, сроков и целей — будь то дом для постоянного проживания или дача.
    back
    Расчёт предварительной стоимости
    Инженер делает первичный расчёт стоимости строительства по вашим параметрам: фундамент, коробка, кровля, отделка. Вы получаете смету с разбивкой по этапам.
    back
    Корректировка и утверждение сметы
    При необходимости вносим изменения — например, замену материалов или сокращение этапов. После согласования формируется окончательная фиксированная смета.
    back
    Заключение договора и старт работ
    После утверждения сметы заключаем официальный договор с гарантией. Вы получаете прозрачный график и точную стоимость — без скрытых расходов.

    Заказать конусльтацию по:Марматер

    Фото 1 Марматер


      Наши
      контакты

      Дмитров
      Опорный проезд 28Б
      (индустриальный парк Ниагара)
      9:00 до 18:00

      Корзина