4.9
Рейтинг на основании 120 отзывов
Дмитров
Опорный проезд 28Б
(индустриальный парк Ниагара)
Бренд "Дмитров-Дело" c 2008 года на рынке строительства в Дмитрове
Звоните 9:00 до 18:00 8 (915) 055-33-61
Бренд "Дмитров-Дело" c 2008 года на рынке строительства в Дмитрове

Матчино

Стоимость проекта от:
48 600 ₽
БЕСПЛАТНО! ПРИ ЗАКАЗЕ СТРОИТЕЛЬСТВА
Стоимость строительства от:
6 343 920 ₽
Артикул ART-20002
Дата 26.12.2025
Архитектурный стиль Русский
Количество надземных этажей 2
Круглогодичное проживание Да
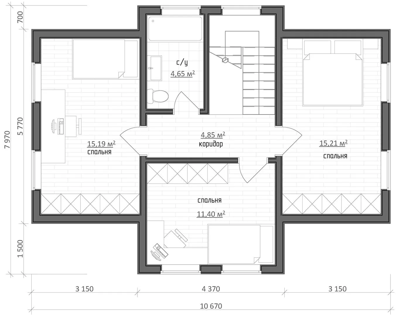
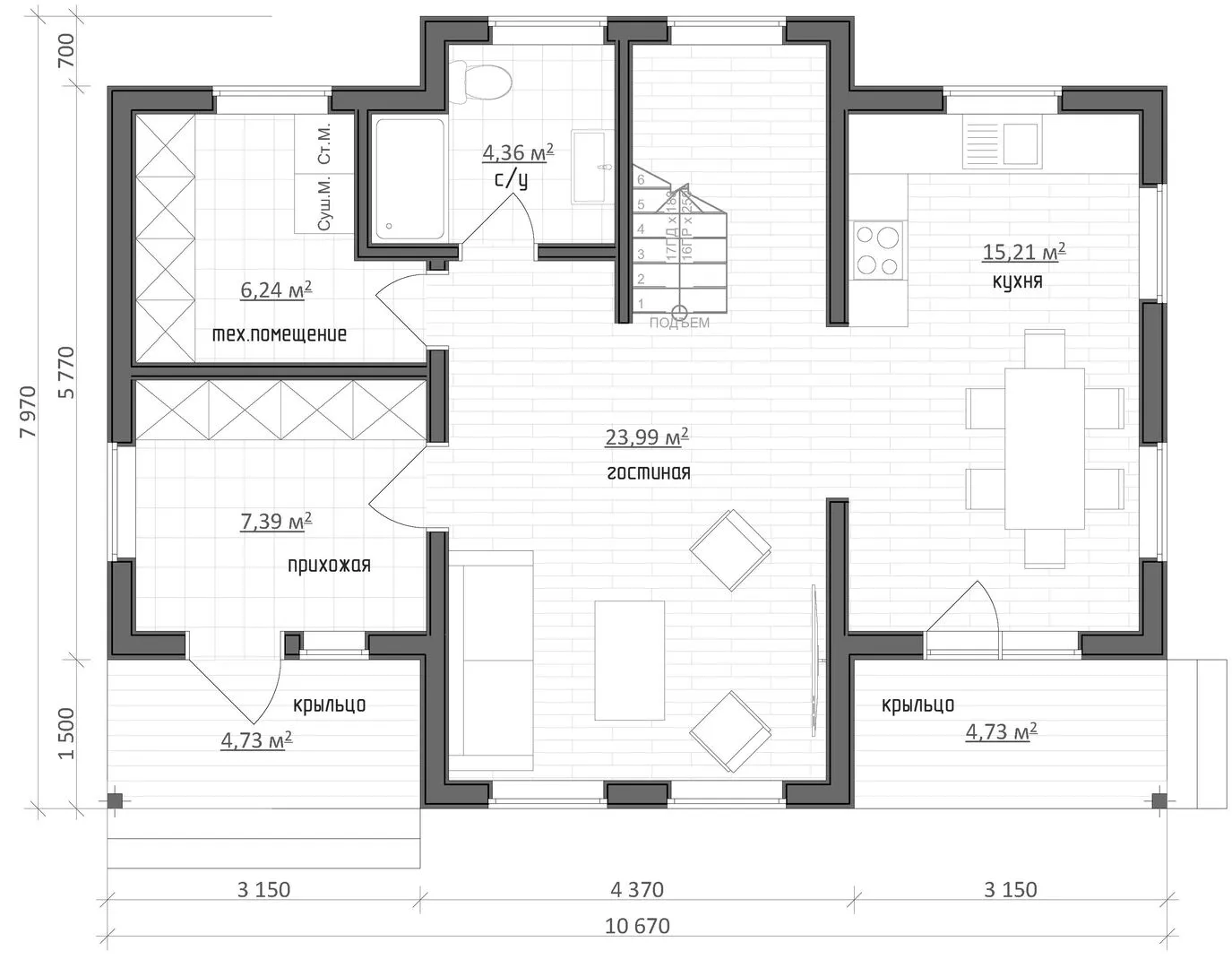
Площадь дома 108 м2
Санузлы 2
Спальни 3

Описание

Добро пожаловать в наш уютный дом Матчино, где традиционный русский стиль встречается с теплом домашнего очага. Величественно расположенный в тихой части города, он сочетает в себе классику и уют, даря ощущение истинного русского гостеприимства. Твердый деревянный каркас, гармонично сочетающийся с двойной скатной крышей, придаёт дому облик старинного замка, но в то же время гарантирует надёжность и тепло даже в самые холодные дни. Два надземных этажа позволяют организовать пространство так, как вы пожелаете: просторная гостиная с величественной каминой станет центром семейных встреч, а отдельные комнаты — уютными уголками для чтения и отдыха. Круглогодичное проживание обеспечивает комфорт в любой поре года: тепло от центрального отопления, а также тепло, исходящее от керамических плиток, создаёт неповторимую атмосферу уюта. В интерьере присутствуют продуманные детали: панельные стены, натуральный паркет и большие окна, впускающие свет, делают каждый уголок дома живым и вдохновляющим. Уникальная архитектура и тщательно подобранные материалы гарантируют, что ваш дом Матчино будет служить вам и вашим близким долгие годы. Отсутствие лишних пристроек и открытого пространства создают идеальное сочетание простора и приватности. Не упустите шанс стать владельцем этого прекрасного уголка русской души, где традиции сохраняются, а уют обнимает каждого нового гостя.

Характеристики дома

Архитектурный стиль
Автоматизированное регулирование параметров теплоносителя
Нет
Балконы/лоджии
Отсутствуют
Чердачное помещение
Нет
Датчики протечки воды
Нет
Эксплуатируемая или зеленая кровля
Нет
Электроснабжение
Центральное
Газоснабжение
Центральное
Изоляция воздушного шума
Да
Камин
Нет
Класс энергоэффективности
A+
Класс энергосбережения
A+
Количество надземных этажей
2
Круглогодичное проживание
Да
Материал кровли
Битумная черепица
Материал перекрытий
Деревянные
Материал внешних стен
Материал внутренних перегородок
Деревянные
Модульное строительство с конструкциями заводского изготовления
Нет
Объем надземной части
483 м3
Основной материал фасадов
Дерево
Отопление
Индивидуальное
Площадь дома
108 м2
Площадь застройки
80 м2
Подвальное помещение
Нет
Показатель компактности здания
0.9
Приборы учета тепловой энергии
Нет
Пристроенный гараж/крытая автостоянка
Нет
Противопожарная система
Нет
Санузлы
2
Совмещенная кухня-гостиная
Нет
Спальни
3
Терраса
Нет
Тип фундамента
Свайный
Тип кровли
Толщина внешних стен
200 мм
Толщина внутренних перегородок
150 мм
Улучшенные шумовые характеристики
Да
Вентиляция
Естественная
Веранда
Нет
Водоотведение
2 варианта
Водоснабжение
2 варианта
Высота дома
6.4 м
Высота потолков
2.9 м

Планировка

Фасад дома

Александр

Закажите выезд инженера

Александр

Выездной инженер
Закажите выезд инженера для точной диагностики и профессиональной консультации по инженерным системам. Специалист приедет в удобное время, проведёт осмотр, рассчитает стоимость работ и подберёт оптимальные решения для вашего дома.


    Похожие проекты

    Ипотека и
    рассрочка
    Юрсана
    Стоимость от:
    8 044 680
    Проект от: 54 900
    Этажей 2
    Санузлы 2
    Спальни 5
    Смотреть
    Ипотека и
    рассрочка
    Двухэтажный дом с террасой 59-22КД
    Стоимость от:
    9 828 360
    Проект от: 67 050
    Этажей 2
    Санузлы 2
    Спальни 4
    Смотреть
    Ипотека и
    рассрочка
    Двухэтажный дом «ЮЛИЯ»
    Стоимость от:
    4 435 560
    Проект от: 33 300
    Этажей 2
    Санузлы 1
    Спальни 3
    Смотреть
    Ипотека и
    рассрочка
    Сухум
    Стоимость от:
    11 212 080
    Проект от: 84 150
    Этажей 2
    Санузлы 3
    Спальни 5
    Смотреть
    Ипотека и
    рассрочка
    Загородный дом «Оптимум» площадью застройки 110м2
    Стоимость от:
    6 539 940
    Проект от: 39 150
    Этажей 1
    Санузлы 1
    Спальни 4
    Смотреть
    Ипотека и
    рассрочка
    «Аревков»
    Стоимость от:
    6 942 600
    Проект от: 52 200
    Этажей 2
    Санузлы 2
    Спальни 3
    Смотреть

    Как узнать стоимость дома

    back
    Оставляете заявку
    Вы заполняете форму на сайте или звоните нам. Менеджер Лайвкрафт связывается с вами для уточнения деталей: тип дома, площадь, материалы, участок строительства.
    back
    Консультация и подбор решения
    Наш специалист помогает выбрать оптимальный тип дома и конструкцию с учётом бюджета, сроков и целей — будь то дом для постоянного проживания или дача.
    back
    Расчёт предварительной стоимости
    Инженер делает первичный расчёт стоимости строительства по вашим параметрам: фундамент, коробка, кровля, отделка. Вы получаете смету с разбивкой по этапам.
    back
    Корректировка и утверждение сметы
    При необходимости вносим изменения — например, замену материалов или сокращение этапов. После согласования формируется окончательная фиксированная смета.
    back
    Заключение договора и старт работ
    После утверждения сметы заключаем официальный договор с гарантией. Вы получаете прозрачный график и точную стоимость — без скрытых расходов.

    Заказать конусльтацию по:Матчино

    Фото 1 Матчино


      Наши
      контакты

      Дмитров
      Опорный проезд 28Б
      (индустриальный парк Ниагара)
      9:00 до 18:00

      Корзина