4.9
Рейтинг на основании 120 отзывов
Дмитров
Опорный проезд 28Б
(индустриальный парк Ниагара)
Бренд "Дмитров-Дело" c 2008 года на рынке строительства в Дмитрове
Звоните 9:00 до 18:00 8 (915) 055-33-61
Бренд "Дмитров-Дело" c 2008 года на рынке строительства в Дмитрове

Микеа 5 Second Floor

Стоимость проекта от:
102 150 ₽
БЕСПЛАТНО! ПРИ ЗАКАЗЕ СТРОИТЕЛЬСТВА
Стоимость строительства от:
15 587 280 ₽
Артикул ART-16238
Дата 26.12.2025
Архитектурный стиль Скандинавский
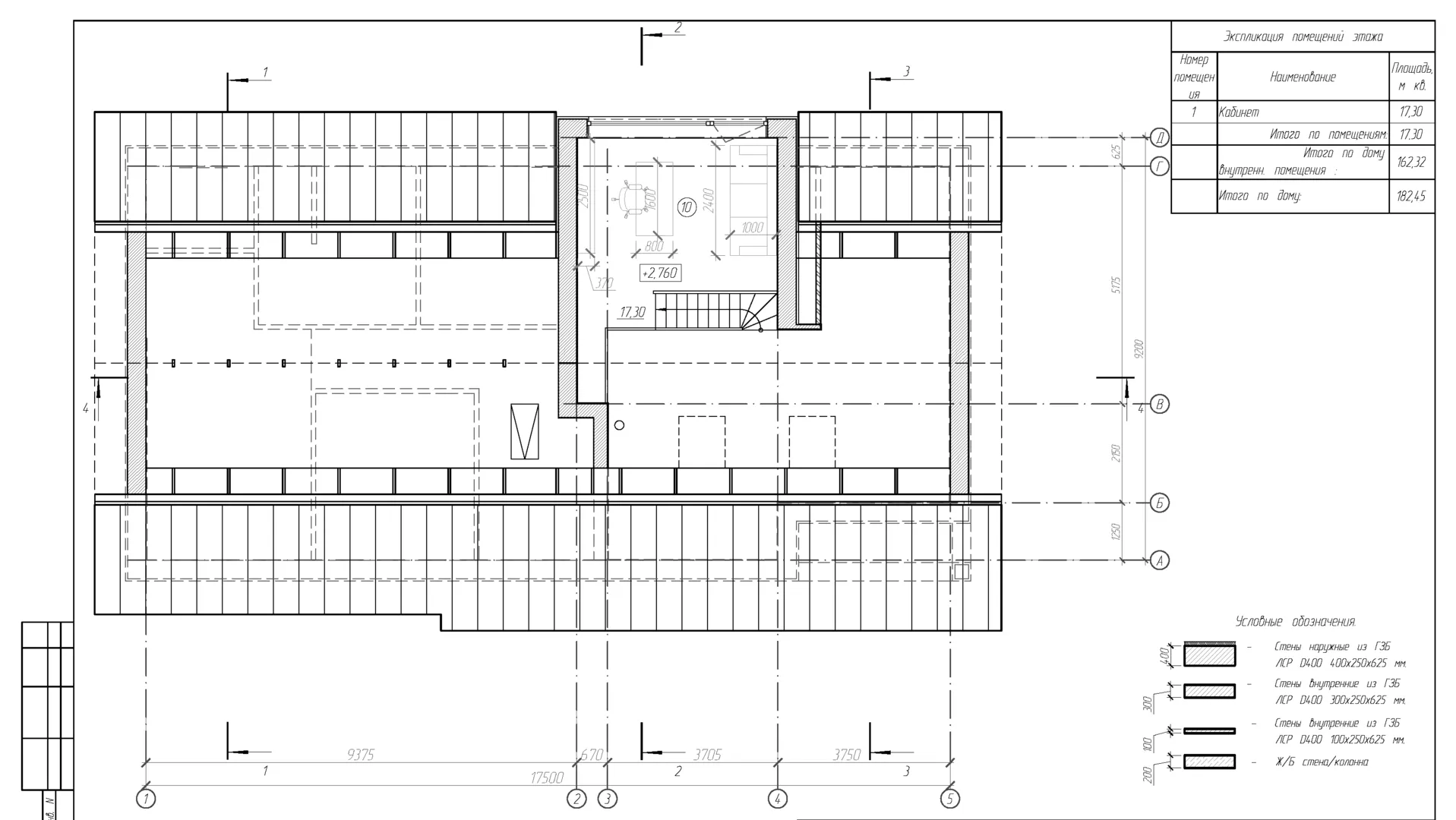
Количество надземных этажей 2
Круглогодичное проживание Да
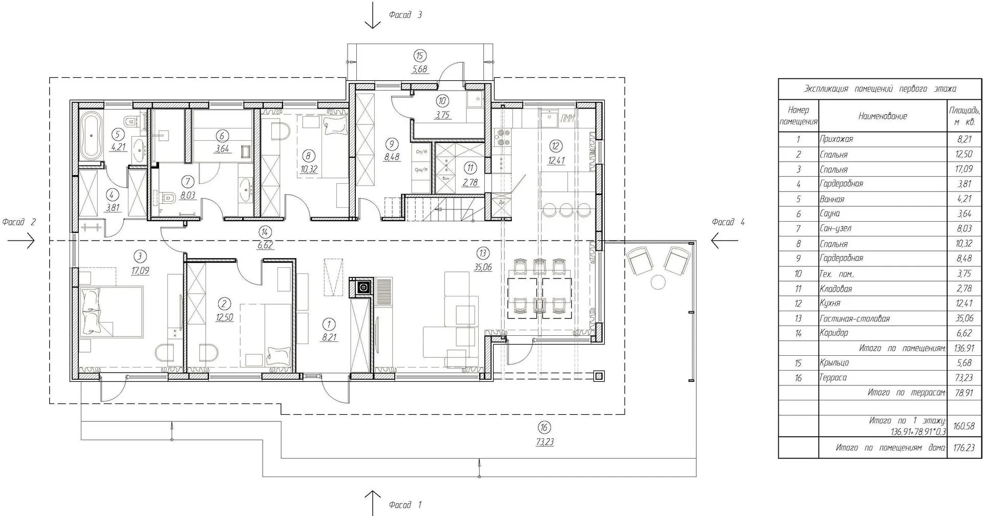
Площадь дома 227 м2
Санузлы 2
Спальни 3

Описание

Небольшой, но величественный уголок уединения – это “Микеа 5 Second Floor”. С двумя надземными этажами, каменные стены, выдержанные в скандинавском стиле, создают ощущение тёплой современности и гармонии с природой. Легкая двускатная крыша подчёркивает лаконичную, но при этом уютную архитектуру, и позволяет собирать солнце зимой, а в летние дни – держать прохладу во внутренних пространствах. Эксплуатация дома в любое время года – это ключ к его привлекательности. Внутренние помещения обильно пропитаны солнечным светом, благодаря большому количеству окон и высокому потолку. Скрытый крошечный, но функциональный «чердачный» уголок служит уютным личным пространством, где каждый момент будет пронизан спокойствием. Внешние участки позволяют гостям наслаждаться прогулками по живописной территории, а наличие террасы открывает возможность собирать любимые напитки под открытым небом. Хотя в доме отсутствуют балконы, вернда и пристроенный гараж, но все это компенсируется простотой и практичностью его дизайна: небольшая крытая автостоянка в окрестностях, а простые двускатные крыши и кирпичные стены обеспечивают дополнительную прочность и надежность. В итоге “Микеа 5 Second Floor” – это идеальное сочетание скандинавского спокойствия и функционального уюта, идеальное место для тех, кто ценит чистые линии, но не упускает возможности провести время на свежем воздухе, наслаждаясь неповторимыми видами и непредсказуемыми погодными условиями.

Характеристики дома

Архитектурный стиль
Автоматизированное регулирование параметров теплоносителя
Нет
Балконы/лоджии
Отсутствуют
Чердачное помещение
Нет
Датчики протечки воды
Нет
Эксплуатируемая или зеленая кровля
Нет
Электроснабжение
Центральное
Газоснабжение
Центральное
Изоляция воздушного шума
Нет
Камин
Нет
Класс энергоэффективности
-
Класс энергосбережения
-
Количество надземных этажей
2
Круглогодичное проживание
Да
Материал кровли
Фальцевая кровля кровля из оцинкованных стальных листов
Материал перекрытий
Деревянные
Материал внешних стен
Материал внутренних перегородок
Кирпичные
Модульное строительство с конструкциями заводского изготовления
Нет
Объем надземной части
765 м3
Основной материал фасадов
Штукатурка
Отопление
Индивидуальное
Площадь дома
227 м2
Площадь застройки
263 м2
Подвальное помещение
Нет
Показатель компактности здания
-
Приборы учета тепловой энергии
Нет
Пристроенный гараж/крытая автостоянка
Нет
Противопожарная система
Нет
Санузлы
2
Совмещенная кухня-гостиная
Да
Спальни
3
Терраса
Да
Тип фундамента
Плитный
Тип кровли
Толщина внешних стен
250 мм
Толщина внутренних перегородок
120 мм
Улучшенные шумовые характеристики
Нет
Вентиляция
Естественная
Веранда
Нет
Водоотведение
2 варианта
Водоснабжение
2 варианта
Высота дома
5.6 м
Высота потолков
2.9 м

Планировка

Фасад дома

Александр

Закажите выезд инженера

Александр

Выездной инженер
Закажите выезд инженера для точной диагностики и профессиональной консультации по инженерным системам. Специалист приедет в удобное время, проведёт осмотр, рассчитает стоимость работ и подберёт оптимальные решения для вашего дома.


    Похожие проекты

    Ипотека и
    рассрочка
    Одноэтажный дом из арболита с террасой
    Стоимость от:
    9 042 880
    Проект от: 55 800
    Этажей 1
    Санузлы 1
    Спальни 3
    Смотреть
    Ипотека и
    рассрочка
    Двухэтажный дом в стиле Барнхаус Домодедово М297
    Стоимость от:
    14 977 680
    Проект от: 93 150
    Этажей 2
    Санузлы 3
    Спальни 4
    Смотреть
    Ипотека и
    рассрочка
    Одноэтажный дом из Бруса 7х9
    Стоимость от:
    4 544 540
    Проект от: 25 650
    Этажей 1
    Санузлы 1
    Спальни 3
    Смотреть
    Ипотека и
    рассрочка
    Симгоры
    Стоимость от:
    9 045 960
    Проект от: 69 300
    Этажей 2
    Санузлы 1
    Спальни 4
    Смотреть
    Ипотека и
    рассрочка
    SVOI-24-2-98 Двухэтажный дом 98 кв.м.
    Стоимость от:
    7 093 920
    Проект от: 44 100
    Этажей 2
    Санузлы 2
    Спальни 3
    Смотреть
    Ипотека и
    рассрочка
    Ниагара
    Стоимость от:
    8 799 840
    Проект от: 56 700
    Этажей 2
    Санузлы 2
    Спальни 5
    Смотреть

    Как узнать стоимость дома

    back
    Оставляете заявку
    Вы заполняете форму на сайте или звоните нам. Менеджер Лайвкрафт связывается с вами для уточнения деталей: тип дома, площадь, материалы, участок строительства.
    back
    Консультация и подбор решения
    Наш специалист помогает выбрать оптимальный тип дома и конструкцию с учётом бюджета, сроков и целей — будь то дом для постоянного проживания или дача.
    back
    Расчёт предварительной стоимости
    Инженер делает первичный расчёт стоимости строительства по вашим параметрам: фундамент, коробка, кровля, отделка. Вы получаете смету с разбивкой по этапам.
    back
    Корректировка и утверждение сметы
    При необходимости вносим изменения — например, замену материалов или сокращение этапов. После согласования формируется окончательная фиксированная смета.
    back
    Заключение договора и старт работ
    После утверждения сметы заключаем официальный договор с гарантией. Вы получаете прозрачный график и точную стоимость — без скрытых расходов.

    Заказать конусльтацию по:Микеа 5 Second Floor

    Фото 1 Микеа 5 Second Floor


      Наши
      контакты

      Дмитров
      Опорный проезд 28Б
      (индустриальный парк Ниагара)
      9:00 до 18:00

      Корзина