4.9
Рейтинг на основании 120 отзывов
Дмитров
Опорный проезд 28Б
(индустриальный парк Ниагара)
Бренд "Дмитров-Дело" c 2008 года на рынке строительства в Дмитрове
Звоните 9:00 до 18:00 8 (915) 055-33-61
Бренд "Дмитров-Дело" c 2008 года на рынке строительства в Дмитрове

Микея 5

Стоимость проекта от:
49 950 ₽
Стоимость строительства от:
6 190 470 ₽
Артикул ART-14332
Дата 25.12.2025
Архитектурный стиль Барнхаус
Количество надземных этажей 1
Круглогодичное проживание Да
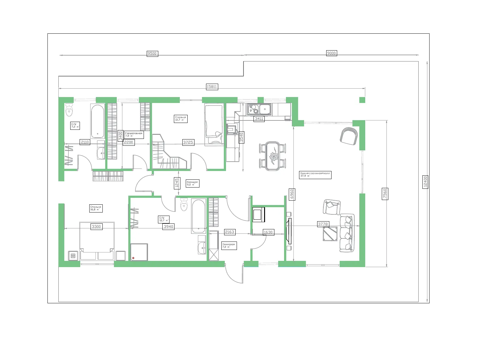
Площадь дома 111 м2
Санузлы 2
Спальни 2

Описание

Вас ждёт уют в стиле истинного барнхауса – неповторимый гармоничный союз деревянного каркаса и современного комфорта. Дом “Микея 5” представляет собой элегантный одноповерховый корпус, где каждая деталь продумана так, чтобы дарить тепло и ощущение дома с первого взгляда. Внутреннее пространство открыто, свободно от перегородок, и позволяет наслаждаться светом, льющимся сквозь большие окна. Грубый, но при этом тонко обрабатываемый древесный материал обрамляет комнаты, создавая ощущение природной гармонии и долгосрочной устойчивости. Крыша в двускатном виде не только подчёркивает строгую геометрию, но и эффективно отводит дождь и снег, позволяя спокойно жить круглый год. В доме отсутствуют пристроенный гараж, но это вовсе не является преградой – свободное пространство на заднем дворе легко превращается в мини‑са́н, сад или детскую площадку. Удобно расположенная парковка рядом обеспечивает легкий доступ к дому. Несмотря на простоту внешней формы, "Микея 5" предлагает все условные стандарты комфорта: отопление, вентиляция, современные коммуникации – все это скрыто в сердце деревянного каркаса, при этом сохраняя естественную, теплую атмосферу. Выбирая этот дом, вы открываете дверь в мир, где уют и функциональность идут рука об руку, а классический барнхаус превращается в ваше личное убежище. Это идеальное решение для тех, кто ценит простоту, качество и гармонию с природой, но при этом хочет жить в современной, удобной среде. Почувствуйте разницу – от первого шага в гостиную до вечернего отдыха у камина, и дайте своей семье простор, где каждый уголок будет наполнен мягким светом и добротой.

Характеристики дома

Архитектурный стиль
Барнхаус
Автоматизированное регулирование параметров теплоносителя
Нет
Балконы/лоджии
Отсутствуют
Чердачное помещение
Нет
Датчики протечки воды
Нет
Эксплуатируемая или зеленая кровля
Нет
Электроснабжение
Центральное
Газоснабжение
Не предусмотрено
Изоляция воздушного шума
Нет
Камин
Нет
Класс энергоэффективности
-
Класс энергосбережения
-
Количество надземных этажей
1
Круглогодичное проживание
Да
Материал кровли
Композитная черепица
Материал перекрытий
Деревянные
Материал внешних стен
Деревянные каркасные
Материал внутренних перегородок
Деревянные
Модульное строительство с конструкциями заводского изготовления
Нет
Объем надземной части
-
Основной материал фасадов
Дерево
Отопление
Индивидуальное
Площадь дома
111 м2
Площадь застройки
229 м2
Подвальное помещение
Нет
Показатель компактности здания
-
Приборы учета тепловой энергии
Нет
Пристроенный гараж/крытая автостоянка
Нет
Противопожарная система
Нет
Санузлы
2
Совмещенная кухня-гостиная
Да
Спальни
2
Терраса
Нет
Тип фундамента
Свайный
Тип кровли
Двускатная
Толщина внешних стен
250 мм
Толщина внутренних перегородок
200 мм
Улучшенные шумовые характеристики
Нет
Вентиляция
Естественная
Веранда
Нет
Водоотведение
Локальные очистные сооружения
Водоснабжение
Индивидуальное
Высота дома
5.5 м
Высота потолков
2.9 м

Планировка

Фасад дома

Александр

Закажите выезд инженера

Александр

Выездной инженер
Закажите выезд инженера для точной диагностики и профессиональной консультации по инженерным системам. Специалист приедет в удобное время, проведёт осмотр, рассчитает стоимость работ и подберёт оптимальные решения для вашего дома.


    Похожие проекты

    Ипотека и
    рассрочка
    Двухэтажный дом «Премьер» 10,8х9,55м
    Стоимость от:
    8 801 160
    Проект от: 66 150
    Этажей 2
    Санузлы 2
    Спальни 4
    Смотреть
    Ипотека и
    рассрочка
    Проект «Луза»
    Стоимость от:
    11 194 500
    Проект от: 76 500
    Этажей 2
    Санузлы 2
    Спальни 5
    Смотреть
    Ипотека и
    рассрочка
    Райли
    Стоимость от:
    5 952 540
    Проект от: 39 150
    Этажей 1
    Санузлы 2
    Спальни 3
    Смотреть
    Ипотека и
    рассрочка
    Cape cod plaster finish-78
    Стоимость от:
    4 937 790
    Проект от: 35 100
    Этажей 1
    Санузлы 1
    Спальни 2
    Смотреть
    Ипотека и
    рассрочка
    Одноэтажный кирпичный дом COMFORT — 118 m2 (Белый облицовочный кирпич)
    Стоимость от:
    7 085 980
    Проект от: 40 050
    Этажей 1
    Санузлы 1
    Спальни 3
    Смотреть
    Ипотека и
    рассрочка
    Проект №2 Двухэтажный дом из кирпича
    Стоимость от:
    6 660 480
    Проект от: 41 400
    Этажей 2
    Санузлы 2
    Спальни 3
    Смотреть

    Как узнать стоимость дома

    back
    Оставляете заявку
    Вы заполняете форму на сайте или звоните нам. Менеджер Лайвкрафт связывается с вами для уточнения деталей: тип дома, площадь, материалы, участок строительства.
    back
    Консультация и подбор решения
    Наш специалист помогает выбрать оптимальный тип дома и конструкцию с учётом бюджета, сроков и целей — будь то дом для постоянного проживания или дача.
    back
    Расчёт предварительной стоимости
    Инженер делает первичный расчёт стоимости строительства по вашим параметрам: фундамент, коробка, кровля, отделка. Вы получаете смету с разбивкой по этапам.
    back
    Корректировка и утверждение сметы
    При необходимости вносим изменения — например, замену материалов или сокращение этапов. После согласования формируется окончательная фиксированная смета.
    back
    Заключение договора и старт работ
    После утверждения сметы заключаем официальный договор с гарантией. Вы получаете прозрачный график и точную стоимость — без скрытых расходов.

    Заказать конусльтацию по:Микея 5

    Фото 1 Микея 5


      Наши
      контакты

      Дмитров
      Опорный проезд 28Б
      (индустриальный парк Ниагара)
      9:00 до 18:00