4.9
Рейтинг на основании 120 отзывов
Дмитров
Опорный проезд 28Б
(индустриальный парк Ниагара)
Бренд "Дмитров-Дело" c 2008 года на рынке строительства в Дмитрове
Звоните 9:00 до 18:00 8 (915) 055-33-61
Бренд "Дмитров-Дело" c 2008 года на рынке строительства в Дмитрове

Милан

Стоимость проекта от:
85 950 ₽
БЕСПЛАТНО! ПРИ ЗАКАЗЕ СТРОИТЕЛЬСТВА
Стоимость строительства от:
12 597 840 ₽
Артикул ART-15376
Дата 25.12.2025
Архитектурный стиль Классический
Количество надземных этажей 2
Круглогодичное проживание Да
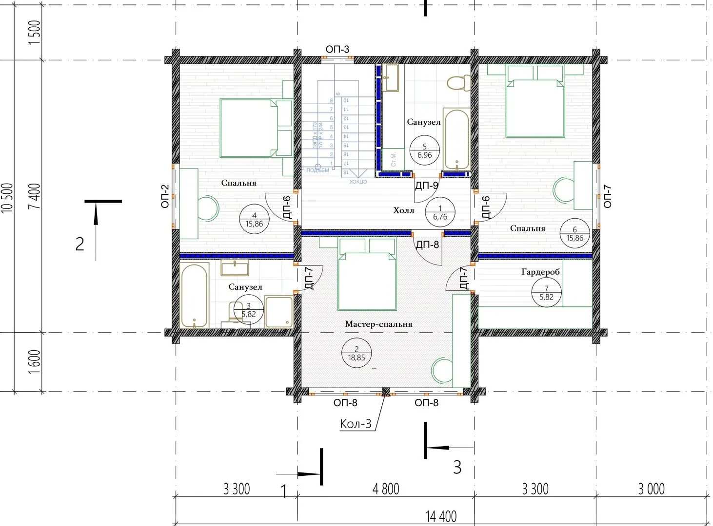
Площадь дома 191 м2
Санузлы 3
Спальни 4

Описание

Вас приветствует уютный двухэтажный дом, где каждая деталь продумана до мелочей, чтобы создать ощущение тепла и стабильности. Классический архитектурный стиль с его элегантными линиями и величественным фасадом выполнен из качественного клеёного бруса, сохраняя традиционное обаяние и придавая структуре прочность и долговечность. Благодаря комбинированной кровле этот дом одинаково комфортен в любое время года – будь то жаркое лето, прохладная осень, снежная зима или солнечный весенний рассвет. Величественная веранда приглашает гостей насладиться свежим воздухом и панорамным видом на живописный окрестный ландшафт. Удобные, открыты помещения создают идеальное пространство для уютных семейных обедов, романтических вечеров и просто заслуженного отдыха. Дом не предусматривает отдельный гараж или крытую стоянку, а пространство внутри оптимально использовано: простора нет в чердачных помещениях, но открытые, светлые полутайники придают ощущение простора и легкости. Этот дом – идеальное решение для тех, кто ценит домашний комфорт, функциональность и не боится отдать себе слово классике, создавая в своем сердце собственный уголок покоя.

Характеристики дома

Архитектурный стиль
Автоматизированное регулирование параметров теплоносителя
Нет
Балконы/лоджии
Отсутствуют
Чердачное помещение
Нет
Датчики протечки воды
Нет
Эксплуатируемая или зеленая кровля
Нет
Электроснабжение
Центральное
Газоснабжение
Не предусмотрено
Изоляция воздушного шума
Нет
Камин
Нет
Класс энергоэффективности
-
Класс энергосбережения
-
Количество надземных этажей
2
Круглогодичное проживание
Да
Материал кровли
Металлочерепица
Материал перекрытий
Деревянные
Материал внешних стен
Материал внутренних перегородок
Гипсокартонные
Модульное строительство с конструкциями заводского изготовления
Нет
Объем надземной части
689 м3
Основной материал фасадов
Дерево
Отопление
Индивидуальное
Площадь дома
191 м2
Площадь застройки
142 м2
Подвальное помещение
Нет
Показатель компактности здания
-
Приборы учета тепловой энергии
Нет
Пристроенный гараж/крытая автостоянка
Нет
Противопожарная система
Нет
Санузлы
3
Совмещенная кухня-гостиная
Нет
Спальни
4
Терраса
Нет
Тип фундамента
Свайный
Тип кровли
Толщина внешних стен
200 мм
Толщина внутренних перегородок
100 мм
Улучшенные шумовые характеристики
Нет
Вентиляция
Естественная
Веранда
Да
Водоотведение
Не предусмотрено
Водоснабжение
Индивидуальное
Высота дома
7.73 м
Высота потолков
2.98 м

Планировка

Фасад дома

Александр

Закажите выезд инженера

Александр

Выездной инженер
Закажите выезд инженера для точной диагностики и профессиональной консультации по инженерным системам. Специалист приедет в удобное время, проведёт осмотр, рассчитает стоимость работ и подберёт оптимальные решения для вашего дома.


    Похожие проекты

    Ипотека и
    рассрочка
    Берлин-120-114-Б
    Стоимость от:
    11 986 700
    Проект от: 69 750
    Этажей 1
    Санузлы 1
    Спальни 3
    Смотреть
    Ипотека и
    рассрочка
    Каркасный дом В-50-120
    Стоимость от:
    4 378 920
    Проект от: 32 850
    Этажей 2
    Санузлы 1
    Спальни 3
    Смотреть
    Ипотека и
    рассрочка
    Fachwerk Village 218
    Стоимость от:
    14 915 560
    Проект от: 98 100
    Этажей 1
    Санузлы 2
    Спальни 3
    Смотреть
    Ипотека и
    рассрочка
    Проект дома КС-2
    Стоимость от:
    9 659 760
    Проект от: 58 050
    Этажей 2
    Санузлы 2
    Спальни 4
    Смотреть
    Ипотека и
    рассрочка
    SV-90M
    Стоимость от:
    8 865 560
    Проект от: 53 100
    Этажей 1
    Санузлы 2
    Спальни 3
    Смотреть
    Ипотека и
    рассрочка
    Проект Модульный дом серии Lite 42v1
    Стоимость от:
    2 724 645
    Проект от: 22 050
    Этажей 1
    Санузлы 1
    Спальни 2
    Смотреть

    Как узнать стоимость дома

    back
    Оставляете заявку
    Вы заполняете форму на сайте или звоните нам. Менеджер Лайвкрафт связывается с вами для уточнения деталей: тип дома, площадь, материалы, участок строительства.
    back
    Консультация и подбор решения
    Наш специалист помогает выбрать оптимальный тип дома и конструкцию с учётом бюджета, сроков и целей — будь то дом для постоянного проживания или дача.
    back
    Расчёт предварительной стоимости
    Инженер делает первичный расчёт стоимости строительства по вашим параметрам: фундамент, коробка, кровля, отделка. Вы получаете смету с разбивкой по этапам.
    back
    Корректировка и утверждение сметы
    При необходимости вносим изменения — например, замену материалов или сокращение этапов. После согласования формируется окончательная фиксированная смета.
    back
    Заключение договора и старт работ
    После утверждения сметы заключаем официальный договор с гарантией. Вы получаете прозрачный график и точную стоимость — без скрытых расходов.

    Заказать конусльтацию по:Милан

    Фото 1 Милан


      Наши
      контакты

      Дмитров
      Опорный проезд 28Б
      (индустриальный парк Ниагара)
      9:00 до 18:00

      Корзина