4.9
Рейтинг на основании 120 отзывов
Дмитров
Опорный проезд 28Б
(индустриальный парк Ниагара)
Бренд "Дмитров-Дело" c 2008 года на рынке строительства в Дмитрове
Звоните 9:00 до 18:00 8 (915) 055-33-61
Бренд "Дмитров-Дело" c 2008 года на рынке строительства в Дмитрове

Модульный дом Астра

Стоимость проекта от:
25 200 ₽
БЕСПЛАТНО! ПРИ ЗАКАЗЕ СТРОИТЕЛЬСТВА
Стоимость строительства от:
3 421 880 ₽
Артикул ART-3901
Дата 26.12.2025
Архитектурный стиль Барнхаус
Количество надземных этажей 1
Круглогодичное проживание Да
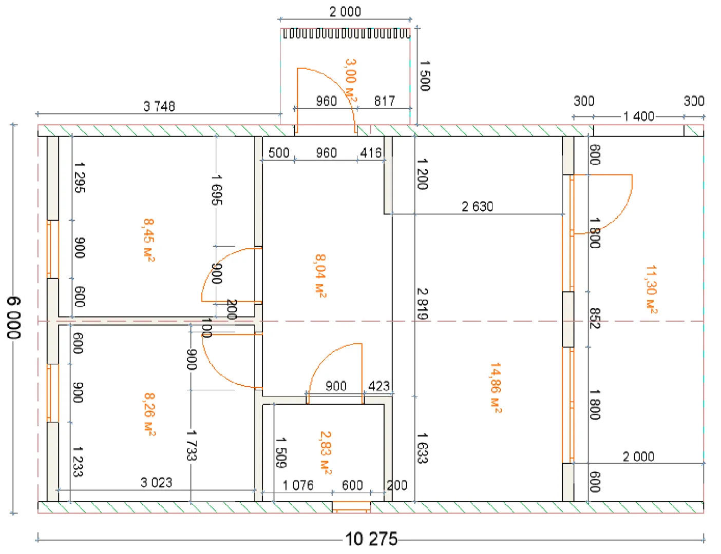
Площадь дома 56 м2
Санузлы 1
Спальни 2

Описание

Пусть ваш дом станет гармоничным продолжением вашего образа жизни — и уютным убежищем, и современной инвестицией. Модульный «Астра» — одиннадцатые этажей, но без лишних перегородок создаёт открытое, светлое пространство, как в большом загородном особняке. Архитектурный стиль барнхауса подчёркивает уют и современную эстетику: массивные балки, плавные линии и крупные окна делают каждый день особенным. Благодаря возможности круглогодичного проживания, вы будете наслаждаться комфортабельным жильем даже в холодные дни, а наружные стены из SIP‑панелей гарантируют тепло и энергоэффективность. Восхищает не только планировка, но и внимание к деталям: на первом этаже уютно расположилась веранда и балкон/лоджия, где можно наслаждаться первым лучом утреннего солнца или вечерним закатом. Чердачное пространство и просторная терраса открывают новые возможности для творчества — будь то небольшая мастерская, игровая зона для детей или место для уединённого отдыха. Встроенный гараж отсутствует, но это даёт свободу в креативном планировании прилегающей территории. Двускатная крыша в неотразительном барнхаус-стиле придаёт дому величественность, а при правильном освещении превращается в настоящий архитектурный шедевр. «Астра» — это не просто модульный дом: это воплощение вашей мечты о просторе, тепле и индивидуальности. Стройте свой уголок с уверенностью: от материалов до деталей планировки всё продумано до мелочей, чтобы вы могли полностью погрузиться в комфорт и вдохновение, которые приносят качественные и стильные дома.

Характеристики дома

Архитектурный стиль
Автоматизированное регулирование параметров теплоносителя
-
Балконы/лоджии
1
Чердачное помещение
Да
Датчики протечки воды
-
Эксплуатируемая или зеленая кровля
-
Электроснабжение
Индивидуальное
Газоснабжение
Индивидуальное
Изоляция воздушного шума
-
Камин
Нет
Класс энергоэффективности
-
Класс энергосбережения
-
Количество надземных этажей
1
Круглогодичное проживание
Да
Материал кровли
Металлические листовые гофрированные профили
Материал перекрытий
Деревянные
Материал внешних стен
Материал внутренних перегородок
Деревянные
Модульное строительство с конструкциями заводского изготовления
Нет
Объем надземной части
180 м3
Основной материал фасадов
Планкен
Отопление
Индивидуальное
Площадь дома
56 м2
Площадь застройки
63 м2
Подвальное помещение
Нет
Показатель компактности здания
-
Приборы учета тепловой энергии
-
Пристроенный гараж/крытая автостоянка
Нет
Противопожарная система
Нет
Санузлы
1
Совмещенная кухня-гостиная
Да
Спальни
2
Терраса
Да
Тип фундамента
Свайно-винтовой
Тип кровли
Толщина внешних стен
150 мм
Толщина внутренних перегородок
100 мм
Улучшенные шумовые характеристики
-
Вентиляция
Рекуперация
Веранда
Да
Водоотведение
Локальные очистные сооружения
Водоснабжение
Индивидуальное
Высота дома
3.3 м
Высота потолков
3.2 м

Планировка

Фасад дома

Александр

Закажите выезд инженера

Александр

Выездной инженер
Закажите выезд инженера для точной диагностики и профессиональной консультации по инженерным системам. Специалист приедет в удобное время, проведёт осмотр, рассчитает стоимость работ и подберёт оптимальные решения для вашего дома.


    Похожие проекты

    Ипотека и
    рассрочка
    Двухэтажный загородный дом И-720
    Стоимость от:
    11 364 480
    Проект от: 68 400
    Этажей 2
    Санузлы 2
    Спальни 4
    Смотреть
    Ипотека и
    рассрочка
    ДОМ СП-064GD
    Стоимость от:
    13 968 000
    Проект от: 90 000
    Этажей 2
    Санузлы 2
    Спальни 4
    Смотреть
    Ипотека и
    рассрочка
    Двухэтажный дом в современном стиле
    Стоимость от:
    8 391 600
    Проект от: 63 000
    Этажей 2
    Санузлы 2
    Спальни 3
    Смотреть
    Ипотека и
    рассрочка
    Каркасный дома Яуза 137
    Стоимость от:
    8 215 080
    Проект от: 61 650
    Этажей 2
    Санузлы 3
    Спальни 4
    Смотреть
    Ипотека и
    рассрочка
    Одноэтажный проект «Аврора 8»
    Стоимость от:
    5 656 420
    Проект от: 31 950
    Этажей 1
    Санузлы 1
    Спальни 3
    Смотреть
    Ипотека и
    рассрочка
    Загородный дом — 130.01
    Стоимость от:
    10 499 280
    Проект от: 64 800
    Этажей 1
    Санузлы 2
    Спальни 4
    Смотреть

    Как узнать стоимость дома

    back
    Оставляете заявку
    Вы заполняете форму на сайте или звоните нам. Менеджер Лайвкрафт связывается с вами для уточнения деталей: тип дома, площадь, материалы, участок строительства.
    back
    Консультация и подбор решения
    Наш специалист помогает выбрать оптимальный тип дома и конструкцию с учётом бюджета, сроков и целей — будь то дом для постоянного проживания или дача.
    back
    Расчёт предварительной стоимости
    Инженер делает первичный расчёт стоимости строительства по вашим параметрам: фундамент, коробка, кровля, отделка. Вы получаете смету с разбивкой по этапам.
    back
    Корректировка и утверждение сметы
    При необходимости вносим изменения — например, замену материалов или сокращение этапов. После согласования формируется окончательная фиксированная смета.
    back
    Заключение договора и старт работ
    После утверждения сметы заключаем официальный договор с гарантией. Вы получаете прозрачный график и точную стоимость — без скрытых расходов.

    Заказать конусльтацию по:Модульный дом Астра

    Фото 1 Модульный дом Астра


      Наши
      контакты

      Дмитров
      Опорный проезд 28Б
      (индустриальный парк Ниагара)
      9:00 до 18:00

      Корзина