4.9
Рейтинг на основании 120 отзывов
Дмитров
Опорный проезд 28Б
(индустриальный парк Ниагара)
Бренд "Дмитров-Дело" c 2008 года на рынке строительства в Дмитрове
Звоните 9:00 до 18:00 8 (915) 055-33-61
Бренд "Дмитров-Дело" c 2008 года на рынке строительства в Дмитрове

Монреаль — 55

Стоимость проекта от:
24 300 ₽
БЕСПЛАТНО! ПРИ ЗАКАЗЕ СТРОИТЕЛЬСТВА
Стоимость строительства от:
4 064 280 ₽
Артикул ART-5486
Дата 26.12.2025
Архитектурный стиль Классический
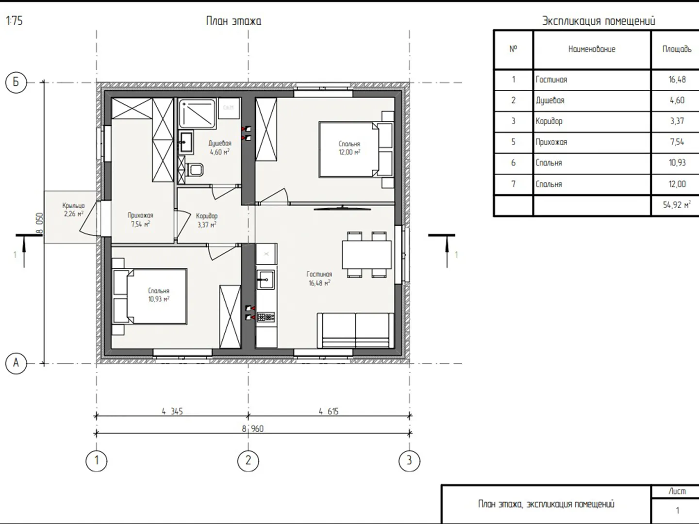
Количество надземных этажей 1
Круглогодичное проживание Да
Площадь дома 54 м2
Санузлы 1
Спальни 2

Описание

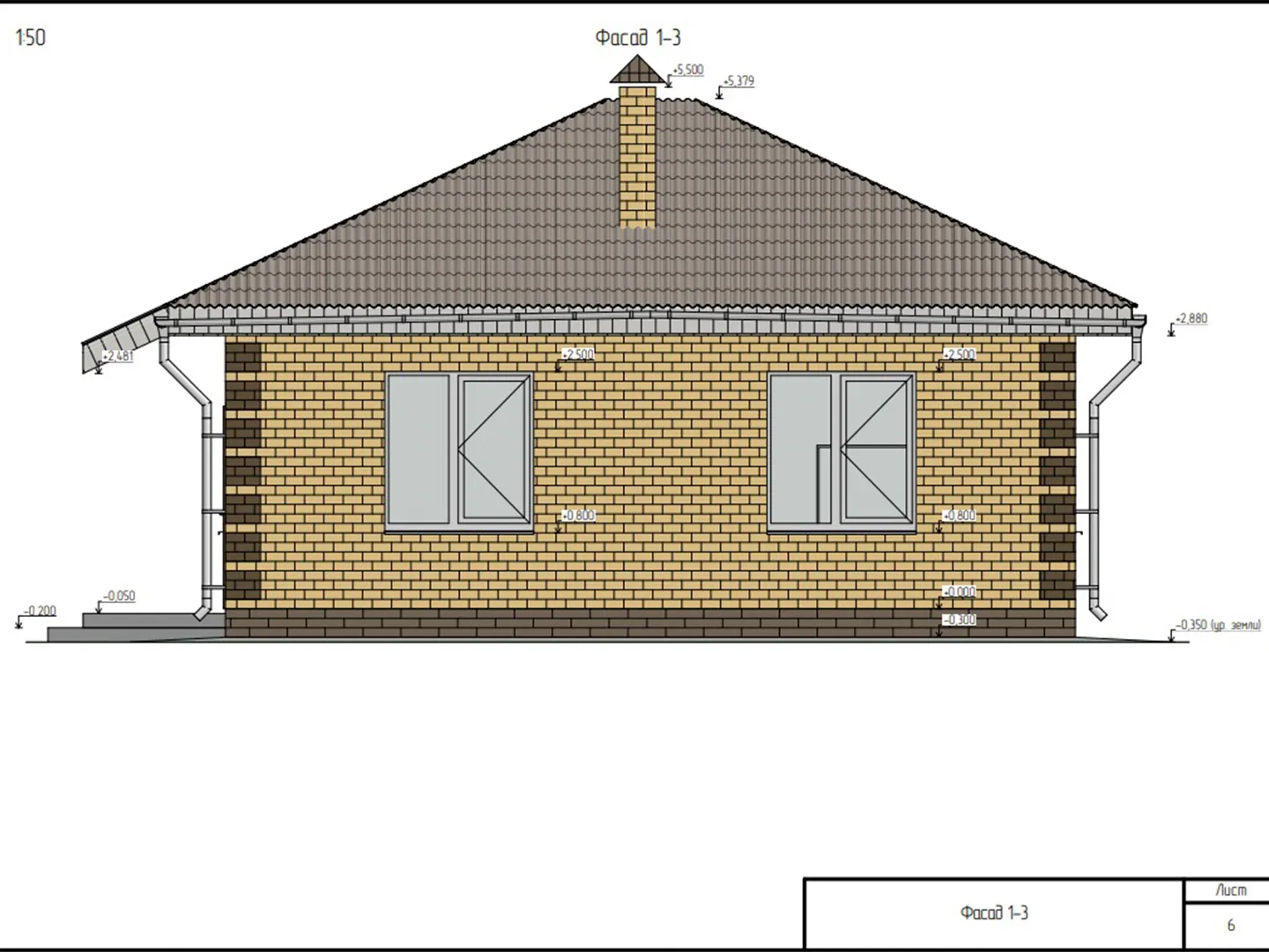
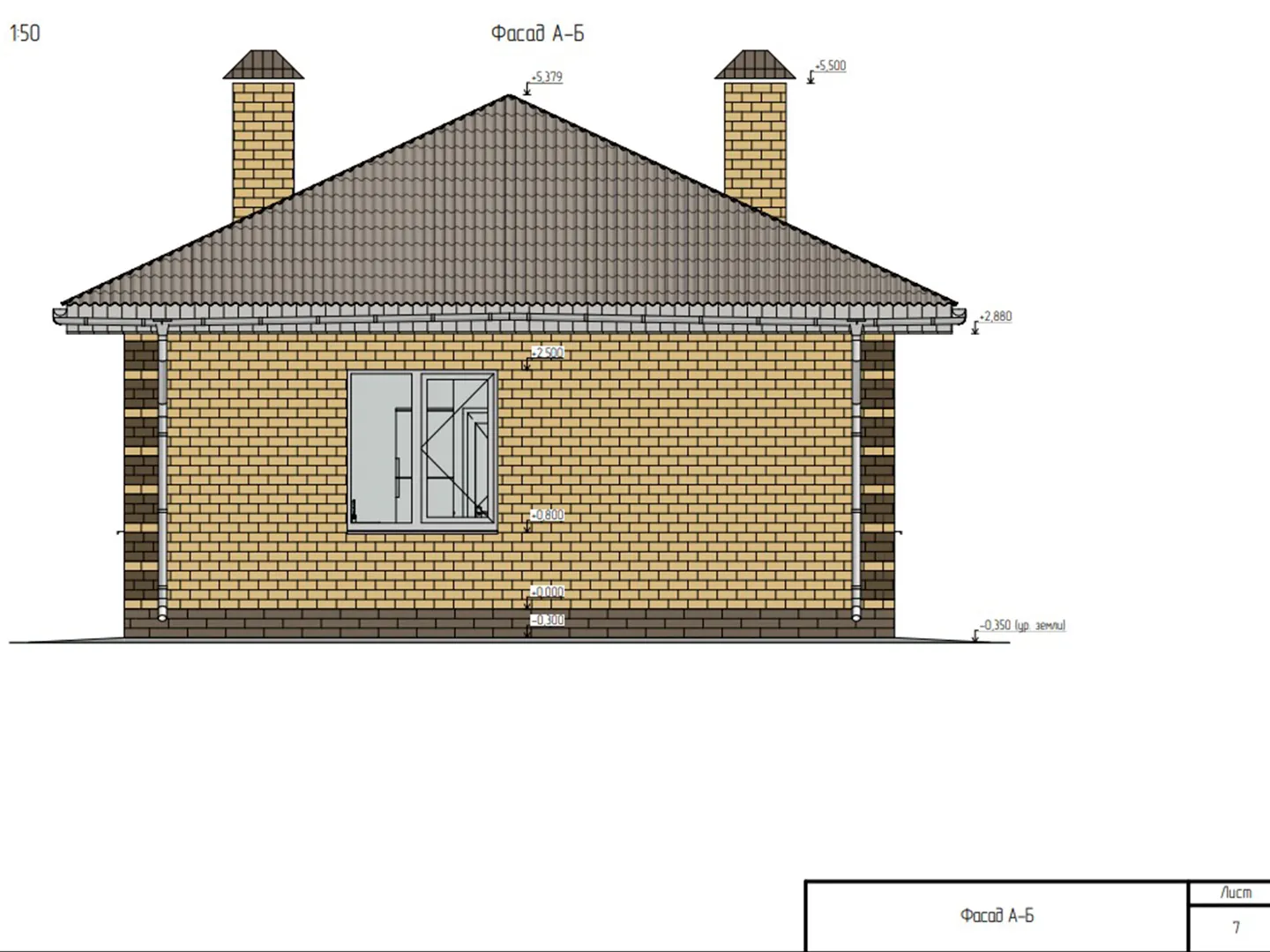
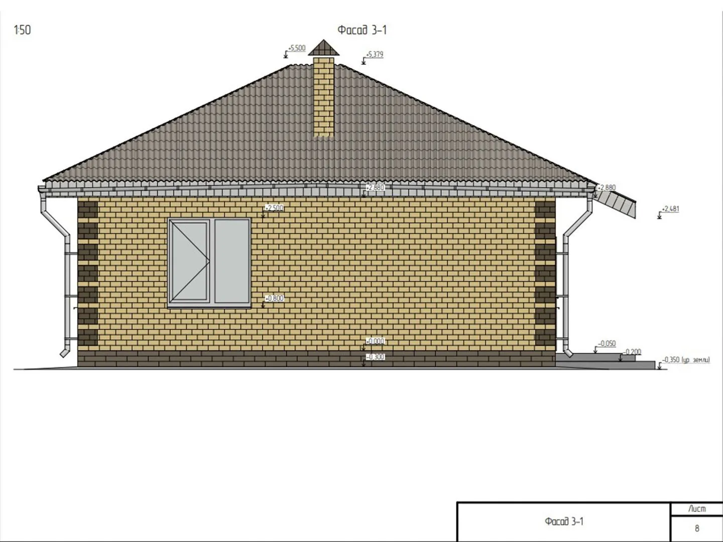
В сердце Монреаля, в уединённом уголке, где уютные улицы переплетаются с историческим колоритом, вы найдёте этот очаровательный дом площадью 55 м². Его классический стиль в сочетании с качественным постройным материалом — газобетонными блоками — создаёт чувство надёжности и гармоничности. Уютно обиталище с одной жилой плантацией, где даже небольшие детали, такие как тщательно продуманные оконные проёмы и ровная четырехскатная, валмовая крыша, подчёркивают простоту и элегантность. Это идеальное место для тех, кто ценит спокойствие и комфорт круглый год. Хотя балконы, веранда и прицеп к гаражу отсутствуют, дом компенсирует это практичностью и гибкостью: просторный чердачный отсвет позволяет превратить недостающую площадь в функциональный уголок для хранения, дополнительной рабочей зоны или уютного домашнего кинотеатра. Тёпло изнутри, защищённый от холода и шума внешних улиц, делает квартиру пригодной для круглогодичного проживания без компромиссов. Этот дом объединяет в себе классическую красоту с упором на качество и практичность, чтобы вы могли полностью погрузиться в атмосферу тихой уверенности и домашнего уюта.

Характеристики дома

Архитектурный стиль
Автоматизированное регулирование параметров теплоносителя
-
Балконы/лоджии
Отсутствуют
Чердачное помещение
Да
Датчики протечки воды
-
Эксплуатируемая или зеленая кровля
-
Электроснабжение
Центральное
Газоснабжение
Центральное
Изоляция воздушного шума
-
Камин
Нет
Класс энергоэффективности
-
Класс энергосбережения
-
Количество надземных этажей
1
Круглогодичное проживание
Да
Материал кровли
Металлочерепица
Материал перекрытий
Монолитные железобетонные
Материал внешних стен
Материал внутренних перегородок
Блочные
Модульное строительство с конструкциями заводского изготовления
Нет
Объем надземной части
100 м3
Основной материал фасадов
Облицовочный кирпич
Отопление
Центральное
Площадь дома
54 м2
Площадь застройки
54 м2
Подвальное помещение
Нет
Показатель компактности здания
-
Приборы учета тепловой энергии
-
Пристроенный гараж/крытая автостоянка
Нет
Противопожарная система
Нет
Санузлы
1
Совмещенная кухня-гостиная
Да
Спальни
2
Терраса
Нет
Тип фундамента
Свайно-ростверковый
Толщина внешних стен
450 мм
Толщина внутренних перегородок
100 мм
Улучшенные шумовые характеристики
-
Вентиляция
Естественная
Веранда
Нет
Водоотведение
Центральное
Водоснабжение
Центральное
Высота дома
5.5 м
Высота потолков
2.8 м

Планировка

Фасад дома

Александр

Закажите выезд инженера

Александр

Выездной инженер
Закажите выезд инженера для точной диагностики и профессиональной консультации по инженерным системам. Специалист приедет в удобное время, проведёт осмотр, рассчитает стоимость работ и подберёт оптимальные решения для вашего дома.


    Похожие проекты

    Ипотека и
    рассрочка
    МОЦАРТ 112
    Стоимость от:
    7 663 040
    Проект от: 50 400
    Этажей 1
    Санузлы 2
    Спальни 3
    Смотреть
    Ипотека и
    рассрочка
    Классический дом_150м
    Стоимость от:
    9 987 600
    Проект от: 67 950
    Этажей 2
    Санузлы 2
    Спальни 3
    Смотреть
    Ипотека и
    рассрочка
    «Титов»
    Стоимость от:
    4 219 765
    Проект от: 32 850
    Этажей 1
    Санузлы 1
    Спальни 2
    Смотреть
    Ипотека и
    рассрочка
    Бальмонт
    Стоимость от:
    5 507 150
    Проект от: 42 750
    Этажей 1
    Санузлы 1
    Спальни 2
    Смотреть
    Ипотека и
    рассрочка
    Проект А006
    Стоимость от:
    8 683 200
    Проект от: 54 000
    Этажей 2
    Санузлы 2
    Спальни 3
    Смотреть
    Ипотека и
    рассрочка
    Хютте 116
    Стоимость от:
    7 899 600
    Проект от: 51 750
    Этажей 2
    Санузлы 2
    Спальни 3
    Смотреть

    Как узнать стоимость дома

    back
    Оставляете заявку
    Вы заполняете форму на сайте или звоните нам. Менеджер Лайвкрафт связывается с вами для уточнения деталей: тип дома, площадь, материалы, участок строительства.
    back
    Консультация и подбор решения
    Наш специалист помогает выбрать оптимальный тип дома и конструкцию с учётом бюджета, сроков и целей — будь то дом для постоянного проживания или дача.
    back
    Расчёт предварительной стоимости
    Инженер делает первичный расчёт стоимости строительства по вашим параметрам: фундамент, коробка, кровля, отделка. Вы получаете смету с разбивкой по этапам.
    back
    Корректировка и утверждение сметы
    При необходимости вносим изменения — например, замену материалов или сокращение этапов. После согласования формируется окончательная фиксированная смета.
    back
    Заключение договора и старт работ
    После утверждения сметы заключаем официальный договор с гарантией. Вы получаете прозрачный график и точную стоимость — без скрытых расходов.

    Заказать конусльтацию по:Монреаль — 55

    Фото 1 Монреаль — 55


      Наши
      контакты

      Дмитров
      Опорный проезд 28Б
      (индустриальный парк Ниагара)
      9:00 до 18:00

      Корзина