4.9
Рейтинг на основании 120 отзывов
Дмитров
Опорный проезд 28Б
(индустриальный парк Ниагара)
Бренд "Дмитров-Дело" c 2008 года на рынке строительства в Дмитрове
Звоните 9:00 до 18:00 8 (915) 055-33-61
Бренд "Дмитров-Дело" c 2008 года на рынке строительства в Дмитрове

МС_Белая_1

Стоимость проекта от:
99 900 ₽
БЕСПЛАТНО! ПРИ ЗАКАЗЕ СТРОИТЕЛЬСТВА
Стоимость строительства от:
15 238 080 ₽
Артикул ART-20395
Дата 26.12.2025
Архитектурный стиль Европейский
Количество надземных этажей 2
Круглогодичное проживание Да
Площадь дома 222 м2
Санузлы 3
Спальни 4

Описание

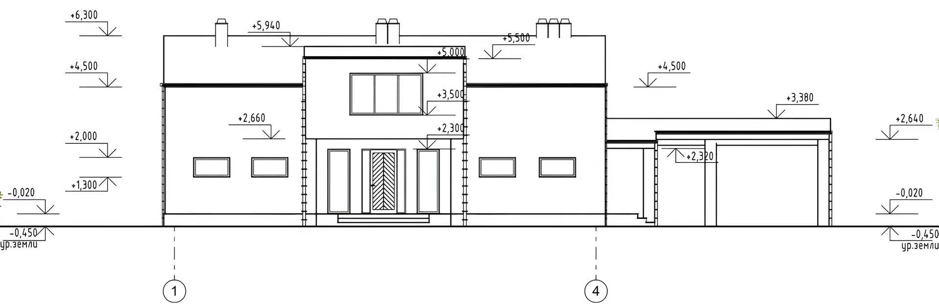
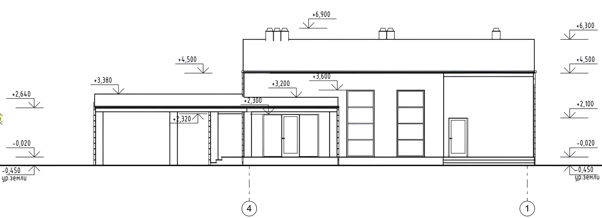
**Собака-рыцарь «Белая» – 2‑этажный дом мечты.** Вдохновленный элегантной европейской архитектурой, этот уютный коттедж сочетает в себе простоту и изысканность. Современные газобетонные блоки придают фасаду свежий, белоснежный свет, а двускатная кровля делает дом настоящей олицетворением классического европейского стиля. За счёт круглогодичного обустроения в доме можно наслаждаться комфортом в любое время года: тепло и тепло, даже в самые прохладные дни, благодаря продуманной теплоизоляции и качественным стеклопакетам. Открытая, просторная терраса приглашает к активному отдыху и вечерним беседам на свежем воздухе, а прицепный гараж/крытая автостоянка обеспечивает удобство хранения и безопасности вашего авто. Дом не имеет балконов и веранд, чтобы сохранить строгую элегантность фасада, но это не мешает почувствовать связь с природой — большие окна пропускают свет и открывают панорамный вид на прилегающую местность. Быть владельцем «Белой» значит жить в гармоничном и современном интерьере, где каждая деталь продумана: от аккуратной отделки до функциональной планировки. Это идеальное место для тех, кто ценит классический европейский стиль и комфорт в доме, готовом к кругогоднему проживанию.

Характеристики дома

Архитектурный стиль
Автоматизированное регулирование параметров теплоносителя
Нет
Балконы/лоджии
Отсутствуют
Чердачное помещение
Нет
Датчики протечки воды
Нет
Эксплуатируемая или зеленая кровля
Нет
Электроснабжение
Центральное
Газоснабжение
Центральное
Изоляция воздушного шума
Нет
Камин
Да
Класс энергоэффективности
-
Класс энергосбережения
-
Количество надземных этажей
2
Круглогодичное проживание
Да
Материал кровли
Фальцевая кровля Кликфальц
Материал перекрытий
Монолитные железобетонные
Материал внешних стен
Материал внутренних перегородок
Блочные
Модульное строительство с конструкциями заводского изготовления
Нет
Объем надземной части
-
Основной материал фасадов
Планкен
Отопление
Индивидуальное
Площадь дома
222 м2
Площадь застройки
177 м2
Подвальное помещение
Да
Показатель компактности здания
-
Приборы учета тепловой энергии
Нет
Пристроенный гараж/крытая автостоянка
Да
Противопожарная система
Нет
Санузлы
3
Совмещенная кухня-гостиная
Да
Спальни
4
Терраса
Да
Тип фундамента
Плитный
Тип кровли
Толщина внешних стен
400 мм
Толщина внутренних перегородок
150 мм
Улучшенные шумовые характеристики
Нет
Вентиляция
Естественная
Веранда
Нет
Водоотведение
Локальные очистные сооружения
Водоснабжение
Центральное
Высота дома
6.3 м
Высота потолков
3.2 м

Планировка

Фасад дома

Александр

Закажите выезд инженера

Александр

Выездной инженер
Закажите выезд инженера для точной диагностики и профессиональной консультации по инженерным системам. Специалист приедет в удобное время, проведёт осмотр, рассчитает стоимость работ и подберёт оптимальные решения для вашего дома.


    Похожие проекты

    Ипотека и
    рассрочка
    Brick 137
    Стоимость от:
    10 290 940
    Проект от: 61 650
    Этажей 1
    Санузлы 2
    Спальни 3
    Смотреть
    Ипотека и
    рассрочка
    Каркасный дом по проекту «Торонто»
    Стоимость от:
    6 896 400
    Проект от: 51 750
    Этажей 2
    Санузлы 2
    Спальни 4
    Смотреть
    Ипотека и
    рассрочка
    ДОМ СП-075KD
    Стоимость от:
    7 192 800
    Проект от: 54 000
    Этажей 2
    Санузлы 3
    Спальни 2
    Смотреть
    Ипотека и
    рассрочка
    Евпатория
    Стоимость от:
    8 101 440
    Проект от: 52 200
    Этажей 2
    Санузлы 1
    Спальни 2
    Смотреть
    Ипотека и
    рассрочка
    Одноэтажный дом с панорамными окнами КП-218
    Стоимость от:
    6 727 820
    Проект от: 47 700
    Этажей 1
    Санузлы 1
    Спальни 4
    Смотреть
    Ипотека и
    рассрочка
    П2-85-сп4
    Стоимость от:
    7 781 760
    Проект от: 46 800
    Этажей 2
    Санузлы 2
    Спальни 4
    Смотреть

    Как узнать стоимость дома

    back
    Оставляете заявку
    Вы заполняете форму на сайте или звоните нам. Менеджер Лайвкрафт связывается с вами для уточнения деталей: тип дома, площадь, материалы, участок строительства.
    back
    Консультация и подбор решения
    Наш специалист помогает выбрать оптимальный тип дома и конструкцию с учётом бюджета, сроков и целей — будь то дом для постоянного проживания или дача.
    back
    Расчёт предварительной стоимости
    Инженер делает первичный расчёт стоимости строительства по вашим параметрам: фундамент, коробка, кровля, отделка. Вы получаете смету с разбивкой по этапам.
    back
    Корректировка и утверждение сметы
    При необходимости вносим изменения — например, замену материалов или сокращение этапов. После согласования формируется окончательная фиксированная смета.
    back
    Заключение договора и старт работ
    После утверждения сметы заключаем официальный договор с гарантией. Вы получаете прозрачный график и точную стоимость — без скрытых расходов.

    Заказать конусльтацию по:МС_Белая_1

    Фото 1 МС_Белая_1


      Наши
      контакты

      Дмитров
      Опорный проезд 28Б
      (индустриальный парк Ниагара)
      9:00 до 18:00

      Корзина