4.9
Рейтинг на основании 120 отзывов
Дмитров
Опорный проезд 28Б
(индустриальный парк Ниагара)
Бренд "Дмитров-Дело" c 2008 года на рынке строительства в Дмитрове
Звоните 9:00 до 18:00 8 (915) 055-33-61
Бренд "Дмитров-Дело" c 2008 года на рынке строительства в Дмитрове

«Неаполь без тамбура»

Стоимость проекта от:
46 800 ₽
БЕСПЛАТНО! ПРИ ЗАКАЗЕ СТРОИТЕЛЬСТВА
Стоимость строительства от:
7 527 360 ₽
Артикул ART-16598
Дата 26.12.2025
Архитектурный стиль Европейский
Количество надземных этажей 2
Круглогодичное проживание Да
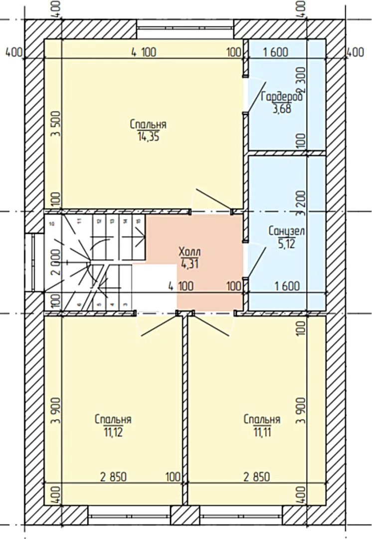
Площадь дома 104 м2
Санузлы 2
Спальни 3

Описание

**«Неаполь без тамбура» – идеальное сочетание европейской элегантности и уютной домашней атмосферы.** Двухэтажный дом воплощает в себе классический европейский стиль: строгие линии, панельные фасады, гармоничное сочетание тёплых и холодных оттенков. Несмотря на отсутствие балконов, лоджий, веранд и гаража, в каждом помещении ощущается свежий, солнечный заряд благодаря обширным окнам и светлой планировке. Название дома говорит само за себя – здесь каждый день будет как прогулка по средиземноморскому ритму, но без лишних шумов и суеты. Материалы, использованные в облике зданий, – газобетонные блоки, которые обеспечивают отличную тепло- и звукоизоляцию, а двускатная крыша добавляет дома величественности и защиту от непогоды. Проект выполнен с учётом круглогодичного проживания: внутренние пространства хорошо утеплены, вентиляция регулирует влажность, а большие окна пропускают свет даже в пасмурные дни. Этажи разделены так, чтобы приватность и общие зоны сосуществовали в гармонии, создавая идеальное место для семейной жизни, творчества и отдыха. Дом «Неаполь без тамбура» – это воплощение комфорта, эстетики и современных удобств, без лишней суеты. Он подходит как для тех, кто ищет спокойное семейное гнездышко, так и для тех, кто ценит качество строительства и энергоэффективность. Приглашаем вас лично убедиться в его прелестях и создать свой собственный уголок под названием «Неаполь» без лишних хлопот.

Характеристики дома

Архитектурный стиль
Автоматизированное регулирование параметров теплоносителя
Нет
Балконы/лоджии
Отсутствуют
Чердачное помещение
Нет
Датчики протечки воды
Нет
Эксплуатируемая или зеленая кровля
Нет
Электроснабжение
2 варианта
Газоснабжение
2 варианта
Изоляция воздушного шума
Нет
Камин
Нет
Класс энергоэффективности
-
Класс энергосбережения
-
Количество надземных этажей
2
Круглогодичное проживание
Да
Материал кровли
Металлочерепица
Материал перекрытий
Сборные железобетонные
Материал внешних стен
Материал внутренних перегородок
Блочные
Модульное строительство с конструкциями заводского изготовления
Нет
Объем надземной части
432 м3
Основной материал фасадов
Штукатурка
Отопление
2 варианта
Площадь дома
104 м2
Площадь застройки
68 м2
Подвальное помещение
Нет
Показатель компактности здания
-
Приборы учета тепловой энергии
Нет
Пристроенный гараж/крытая автостоянка
Нет
Противопожарная система
Нет
Санузлы
2
Совмещенная кухня-гостиная
Да
Спальни
3
Терраса
Нет
Тип фундамента
Свайно-ростверковый
Тип кровли
Толщина внешних стен
400 мм
Толщина внутренних перегородок
100 мм
Улучшенные шумовые характеристики
Нет
Вентиляция
Естественная
Веранда
Нет
Водоотведение
2 варианта
Водоснабжение
2 варианта
Высота дома
7.25 м
Высота потолков
3.1 м

Планировка

Фасад дома

Александр

Закажите выезд инженера

Александр

Выездной инженер
Закажите выезд инженера для точной диагностики и профессиональной консультации по инженерным системам. Специалист приедет в удобное время, проведёт осмотр, рассчитает стоимость работ и подберёт оптимальные решения для вашего дома.


    Похожие проекты

    Ипотека и
    рассрочка
    Дом из газобетона Мирамар-М
    Стоимость от:
    7 619 760
    Проект от: 49 050
    Этажей 2
    Санузлы 2
    Спальни 4
    Смотреть
    Ипотека и
    рассрочка
    Метелица
    Стоимость от:
    198 440
    Проект от: 36 900
    Этажей 1
    Санузлы 1
    Спальни 3
    Смотреть
    Ипотека и
    рассрочка
    Проект Лоренц -140
    Стоимость от:
    8 498 700
    Проект от: 63 900
    Этажей 2
    Санузлы 2
    Спальни 4
    Смотреть
    Ипотека и
    рассрочка
    ВЕГАС
    Стоимость от:
    8 415 440
    Проект от: 50 400
    Этажей 1
    Санузлы 1
    Спальни 3
    Смотреть
    Ипотека и
    рассрочка
    Компактный
    Стоимость от:
    4 115 870
    Проект от: 31 950
    Этажей 1
    Санузлы 1
    Спальни 2
    Смотреть
    Ипотека и
    рассрочка
    Озерная Долина
    Стоимость от:
    8 694 600
    Проект от: 65 250
    Этажей 2
    Санузлы 2
    Спальни 4
    Смотреть

    Как узнать стоимость дома

    back
    Оставляете заявку
    Вы заполняете форму на сайте или звоните нам. Менеджер Лайвкрафт связывается с вами для уточнения деталей: тип дома, площадь, материалы, участок строительства.
    back
    Консультация и подбор решения
    Наш специалист помогает выбрать оптимальный тип дома и конструкцию с учётом бюджета, сроков и целей — будь то дом для постоянного проживания или дача.
    back
    Расчёт предварительной стоимости
    Инженер делает первичный расчёт стоимости строительства по вашим параметрам: фундамент, коробка, кровля, отделка. Вы получаете смету с разбивкой по этапам.
    back
    Корректировка и утверждение сметы
    При необходимости вносим изменения — например, замену материалов или сокращение этапов. После согласования формируется окончательная фиксированная смета.
    back
    Заключение договора и старт работ
    После утверждения сметы заключаем официальный договор с гарантией. Вы получаете прозрачный график и точную стоимость — без скрытых расходов.

    Заказать конусльтацию по:«Неаполь без тамбура»

    Фото 1 «Неаполь без тамбура»


      Наши
      контакты

      Дмитров
      Опорный проезд 28Б
      (индустриальный парк Ниагара)
      9:00 до 18:00

      Корзина