4.9
Рейтинг на основании 120 отзывов
Дмитров
Опорный проезд 28Б
(индустриальный парк Ниагара)
Бренд "Дмитров-Дело" c 2008 года на рынке строительства в Дмитрове
Звоните 9:00 до 18:00 8 (915) 055-33-61
Бренд "Дмитров-Дело" c 2008 года на рынке строительства в Дмитрове

Небольшой дом в стиле хай-тек с гаражом S-137

Стоимость проекта от:
76 500 ₽
БЕСПЛАТНО! ПРИ ЗАКАЗЕ СТРОИТЕЛЬСТВА
Стоимость строительства от:
12 504 000 ₽
Артикул ART-13628
Дата 25.12.2025
Архитектурный стиль Хайтек
Количество надземных этажей 2
Круглогодичное проживание Да
Площадь дома 170 м2
Санузлы 2
Спальни 4

Описание

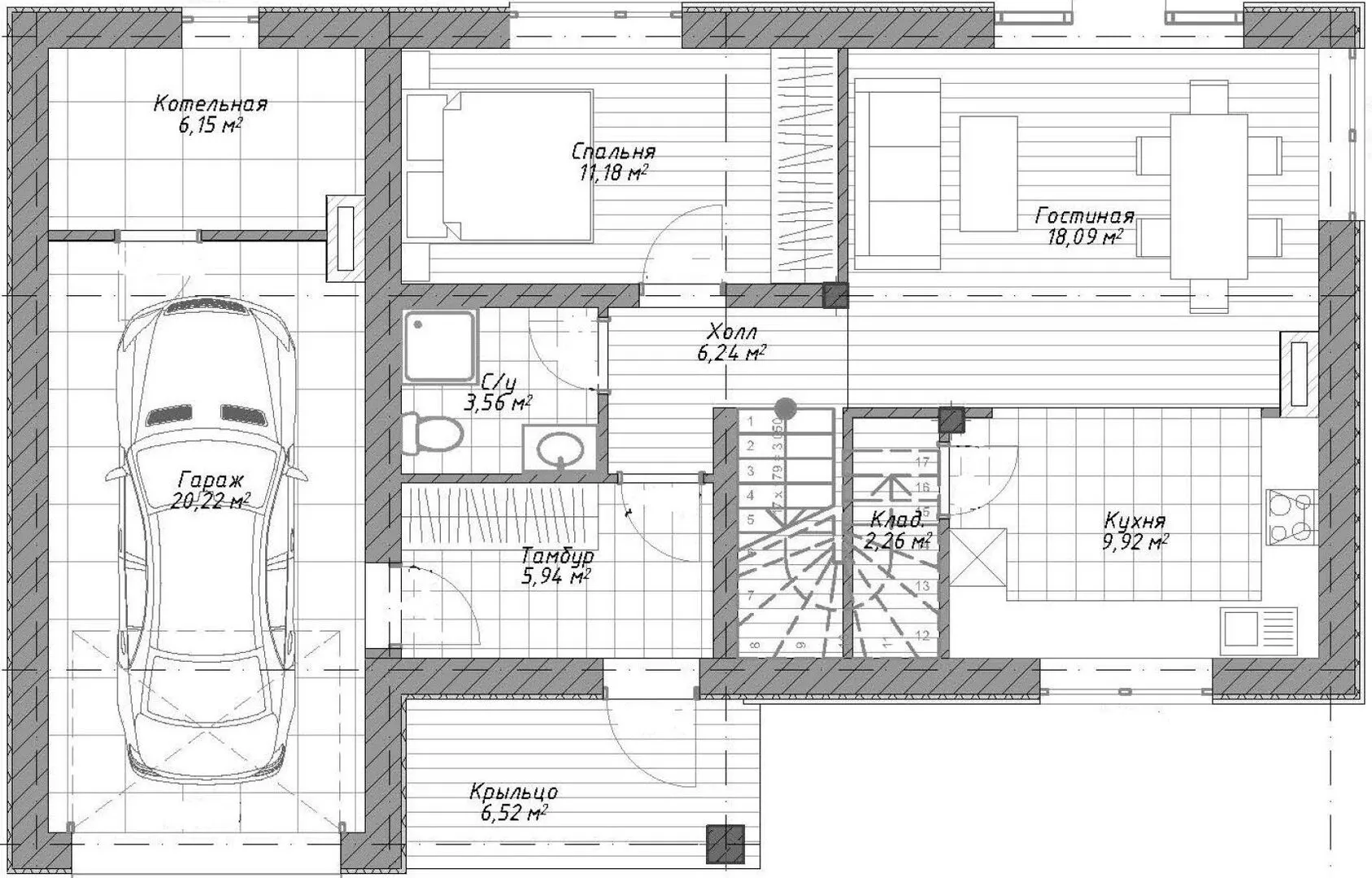
Небольшой дом в стиле хай‑тек, который прекрасно сочетает в себе современную эстетику и практичность. Благодаря двум надземным этажам и круглогодичному обустройству вы сможете наслаждаться комфортной жизнью в любое время года, пока уютный интерьер хранит тепло и свет внутри. Внешние стены выполнены из газобетонных блоков, обеспечивающих отличную тепло‑ и звукоизоляцию, а плоская крыша придаёт фасаду лаконичный и современный вид. Пристроенный гараж S‑137 (кроватая автостоянка) обеспечивает быструю и безопасную парковку, избавляя от лишних хлопот. Терраса, открывающаяся с задней части дома, станет вашим личным уголком для прогулок, чтения книги или вечеров с друзьями под открытым небом. Внутреннее пространство продумано до мелочей: просторные комнаты, функциональная кухня, светлые стены и панорамные окна создают ощущение простора и связи с внешним миром. Без балконов и веранд, но с богатой внутренней планировкой, этот дом идеально подходит для тех, кто ценит лаконичность, высокие технологии и комфорт, не привлекая лишней суеты к своему дому.

Характеристики дома

Архитектурный стиль
Автоматизированное регулирование параметров теплоносителя
Да
Балконы/лоджии
Отсутствуют
Чердачное помещение
Нет
Датчики протечки воды
Да
Эксплуатируемая или зеленая кровля
Нет
Электроснабжение
Центральное
Газоснабжение
Центральное
Изоляция воздушного шума
Да
Камин
Нет
Класс энергоэффективности
-
Класс энергосбережения
-
Количество надземных этажей
2
Круглогодичное проживание
Да
Материал кровли
Битумная мастика
Материал перекрытий
Монолитные железобетонные
Материал внешних стен
Материал внутренних перегородок
Блочные
Модульное строительство с конструкциями заводского изготовления
Нет
Объем надземной части
-
Основной материал фасадов
Штукатурка
Отопление
Центральное
Площадь дома
170 м2
Площадь застройки
114 м2
Подвальное помещение
Нет
Показатель компактности здания
-
Приборы учета тепловой энергии
Да
Пристроенный гараж/крытая автостоянка
Да
Противопожарная система
Нет
Санузлы
2
Совмещенная кухня-гостиная
Да
Спальни
4
Терраса
Да
Тип фундамента
Ленточный
Тип кровли
Толщина внешних стен
425 мм
Толщина внутренних перегородок
100 мм
Улучшенные шумовые характеристики
Да
Вентиляция
Естественная
Веранда
Нет
Водоотведение
Локальные очистные сооружения
Водоснабжение
Центральное
Высота дома
6.6 м
Высота потолков
3 м

Планировка

Фасад дома

Александр

Закажите выезд инженера

Александр

Выездной инженер
Закажите выезд инженера для точной диагностики и профессиональной консультации по инженерным системам. Специалист приедет в удобное время, проведёт осмотр, рассчитает стоимость работ и подберёт оптимальные решения для вашего дома.


    Похожие проекты

    Ипотека и
    рассрочка
    Одноэтажный дом 90 кв.м КБ-054
    Стоимость от:
    6 765 000
    Проект от: 40 500
    Этажей 1
    Санузлы 1
    Спальни 3
    Смотреть
    Ипотека и
    рассрочка
    Дом из клееного бруса РП-11229
    Стоимость от:
    9 218 880
    Проект от: 59 400
    Этажей 2
    Санузлы 1
    Спальни 3
    Смотреть
    Ипотека и
    рассрочка
    ДомPRO 98-3К-К
    Стоимость от:
    7 800 760
    Проект от: 44 100
    Этажей 1
    Санузлы 2
    Спальни 3
    Смотреть
    Ипотека и
    рассрочка
    Загородный дом C-I 79
    Стоимость от:
    3 468 300
    Проект от: 27 000
    Этажей 1
    Санузлы 1
    Спальни 2
    Смотреть
    Ипотека и
    рассрочка
    Каркасный дом Шведский 29
    Стоимость от:
    6 971 250
    Проект от: 56 250
    Этажей 1
    Санузлы 2
    Спальни 4
    Смотреть
    Ипотека и
    рассрочка
    Индивидуальный дом 140
    Стоимость от:
    9 334 160
    Проект от: 57 600
    Этажей 1
    Санузлы 2
    Спальни 3
    Смотреть

    Как узнать стоимость дома

    back
    Оставляете заявку
    Вы заполняете форму на сайте или звоните нам. Менеджер Лайвкрафт связывается с вами для уточнения деталей: тип дома, площадь, материалы, участок строительства.
    back
    Консультация и подбор решения
    Наш специалист помогает выбрать оптимальный тип дома и конструкцию с учётом бюджета, сроков и целей — будь то дом для постоянного проживания или дача.
    back
    Расчёт предварительной стоимости
    Инженер делает первичный расчёт стоимости строительства по вашим параметрам: фундамент, коробка, кровля, отделка. Вы получаете смету с разбивкой по этапам.
    back
    Корректировка и утверждение сметы
    При необходимости вносим изменения — например, замену материалов или сокращение этапов. После согласования формируется окончательная фиксированная смета.
    back
    Заключение договора и старт работ
    После утверждения сметы заключаем официальный договор с гарантией. Вы получаете прозрачный график и точную стоимость — без скрытых расходов.

    Заказать конусльтацию по:Небольшой дом в стиле хай-тек с гаражом S-137

    Фото 1 Небольшой дом в стиле хай-тек с гаражом S-137


      Наши
      контакты

      Дмитров
      Опорный проезд 28Б
      (индустриальный парк Ниагара)
      9:00 до 18:00

      Корзина