4.9
Рейтинг на основании 120 отзывов
Дмитров
Опорный проезд 28Б
(индустриальный парк Ниагара)
Бренд "Дмитров-Дело" c 2008 года на рынке строительства в Дмитрове
Звоните 9:00 до 18:00 8 (915) 055-33-61
Бренд "Дмитров-Дело" c 2008 года на рынке строительства в Дмитрове

Небольшой классический двухэтажный дом

Стоимость проекта от:
76 050 ₽
БЕСПЛАТНО! ПРИ ЗАКАЗЕ СТРОИТЕЛЬСТВА
Стоимость строительства от:
12 232 560 ₽
Артикул ART-16128
Дата 25.12.2025
Архитектурный стиль Классический
Количество надземных этажей 2
Круглогодичное проживание Да
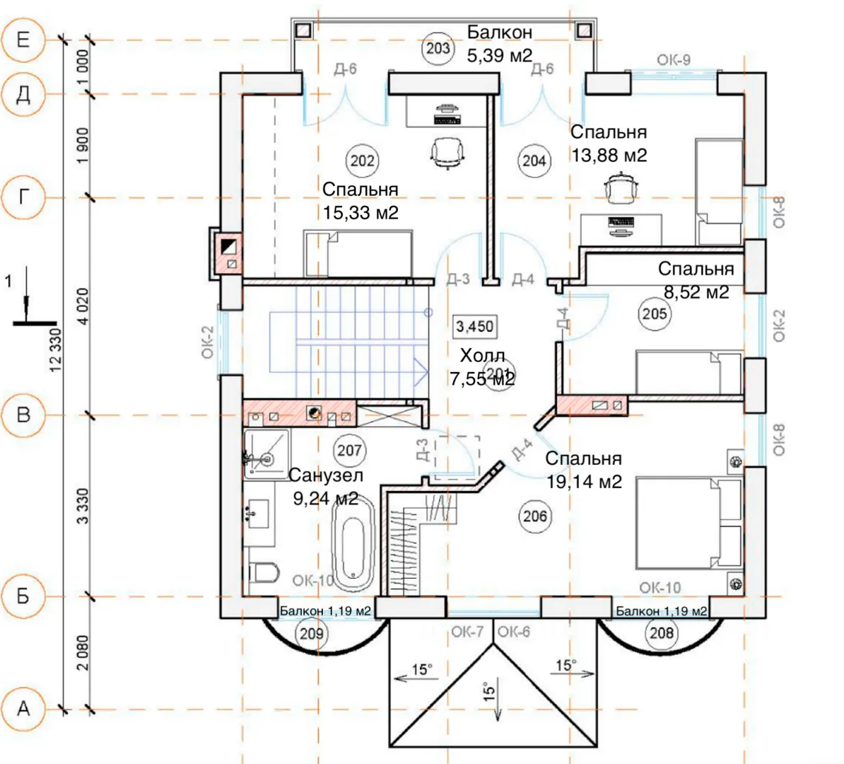
Площадь дома 169 м2
Санузлы 2
Спальни 4

Описание

Добро пожаловать в уютный уголок, где каждая деталь обрисовывает атмосферу домашнего тепла и изысканного комфорта. Этот двухэтажный классический дом сочетает в себе элегантность прошлых эпох с современным подходом к функциональности. Просторные жилые комнаты открываются на трёх балконах, позволяя наслаждаться рассветами и закатами с разных ракурсов. Четырехскатная вальмовая крыша добавляет здания нотки грандиозности, а открытый чердак превращает дом в идеальное место для хобби, библиотеки или уютного уголка для чтения. Незабываемое ощущение уюта достигается благодаря сочетанию качественных газобетонных стен, которые обеспечивают тепло- и звукоизоляцию, и просторной террасы, где можно устроить барбекю или провести вечер у огня. Балконы, соединённые аккуратными лоджиями, создают ощущение легкости и открытости, а отсутствие перегородок по внутренним стенам дарит свободу и гибкость планировки. Внутри вы найдете продуманную расстановку комнат, где каждое помещение излучает свет и комфорт, а открытый чердак даёт дополнительные помещения для хранения или хранения личных сокровищ. Этот дом — идеальный выбор для тех, кто ценит гармонию между традицией и удобством. Он прекрасно подойдет как для семьи с детьми, так и для пары, ищущей тихий уголок для отдыха от городской суеты. Просторные залы, тихие уголки у окна и уютный двор вокруг дарят ощущение, будто вы живёте в собственном уютном раю, где каждый день начинается с улыбки. Приятно жить в этом доме, ведь он создан не только для комфортного проживания, но и для того, чтобы делать ваш дом источником радости и вдохновения.

Характеристики дома

Архитектурный стиль
Автоматизированное регулирование параметров теплоносителя
Да
Балконы/лоджии
3
Чердачное помещение
Да
Датчики протечки воды
Да
Эксплуатируемая или зеленая кровля
Нет
Электроснабжение
Центральное
Газоснабжение
Центральное
Изоляция воздушного шума
Да
Камин
Да
Класс энергоэффективности
B
Класс энергосбережения
A
Количество надземных этажей
2
Круглогодичное проживание
Да
Материал кровли
Металлочерепица
Материал перекрытий
Монолитные железобетонные
Материал внешних стен
Материал внутренних перегородок
Кирпичные
Модульное строительство с конструкциями заводского изготовления
Нет
Объем надземной части
1126 м3
Основной материал фасадов
Штукатурка
Отопление
Индивидуальное
Площадь дома
169 м2
Площадь застройки
121 м2
Подвальное помещение
Нет
Показатель компактности здания
0.84
Приборы учета тепловой энергии
Да
Пристроенный гараж/крытая автостоянка
Нет
Противопожарная система
Нет
Санузлы
2
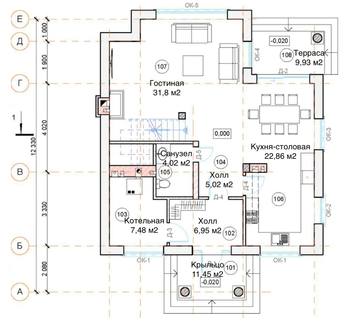
Совмещенная кухня-гостиная
Да
Спальни
4
Терраса
Да
Тип фундамента
Свайно-ростверковый
Толщина внешних стен
400 мм
Толщина внутренних перегородок
120 мм
Улучшенные шумовые характеристики
Да
Вентиляция
Естественная
Веранда
Нет
Водоотведение
Центральное
Водоснабжение
Центральное
Высота дома
8.88 м
Высота потолков
3.1 м

Планировка

Фасад дома

Александр

Закажите выезд инженера

Александр

Выездной инженер
Закажите выезд инженера для точной диагностики и профессиональной консультации по инженерным системам. Специалист приедет в удобное время, проведёт осмотр, рассчитает стоимость работ и подберёт оптимальные решения для вашего дома.


    Похожие проекты

    Ипотека и
    рассрочка
    Бьерн — дом заводского изготовления (ПРЕФАБ)
    Стоимость от:
    338 800
    Проект от: 63 000
    Этажей 1
    Санузлы 2
    Спальни 3
    Смотреть
    Ипотека и
    рассрочка
    Одноэтажный дом с террасой и большой кухней-гостинной
    Стоимость от:
    9 240 660
    Проект от: 55 350
    Этажей 1
    Санузлы 2
    Спальни 3
    Смотреть
    Ипотека и
    рассрочка
    Семейный 2
    Стоимость от:
    7 959 600
    Проект от: 45 000
    Этажей 1
    Санузлы 2
    Спальни 3
    Смотреть
    Ипотека и
    рассрочка
    К-7
    Стоимость от:
    6 014 800
    Проект от: 36 000
    Этажей 1
    Санузлы 2
    Спальни 3
    Смотреть
    Ипотека и
    рассрочка
    Одноэтажный дом по проекту «Nest L — 62,12 м2»
    Стоимость от:
    4 941 640
    Проект от: 27 900
    Этажей 1
    Санузлы 1
    Спальни 3
    Смотреть
    Ипотека и
    рассрочка
    Ривьера Барн
    Стоимость от:
    4 059 165
    Проект от: 32 850
    Этажей 1
    Санузлы 1
    Спальни 2
    Смотреть

    Как узнать стоимость дома

    back
    Оставляете заявку
    Вы заполняете форму на сайте или звоните нам. Менеджер Лайвкрафт связывается с вами для уточнения деталей: тип дома, площадь, материалы, участок строительства.
    back
    Консультация и подбор решения
    Наш специалист помогает выбрать оптимальный тип дома и конструкцию с учётом бюджета, сроков и целей — будь то дом для постоянного проживания или дача.
    back
    Расчёт предварительной стоимости
    Инженер делает первичный расчёт стоимости строительства по вашим параметрам: фундамент, коробка, кровля, отделка. Вы получаете смету с разбивкой по этапам.
    back
    Корректировка и утверждение сметы
    При необходимости вносим изменения — например, замену материалов или сокращение этапов. После согласования формируется окончательная фиксированная смета.
    back
    Заключение договора и старт работ
    После утверждения сметы заключаем официальный договор с гарантией. Вы получаете прозрачный график и точную стоимость — без скрытых расходов.

    Заказать конусльтацию по:Небольшой классический двухэтажный дом

    Фото 1 Небольшой классический двухэтажный дом


      Наши
      контакты

      Дмитров
      Опорный проезд 28Б
      (индустриальный парк Ниагара)
      9:00 до 18:00

      Корзина