4.9
Рейтинг на основании 120 отзывов
Дмитров
Опорный проезд 28Б
(индустриальный парк Ниагара)
Бренд "Дмитров-Дело" c 2008 года на рынке строительства в Дмитрове
Звоните 9:00 до 18:00 8 (915) 055-33-61
Бренд "Дмитров-Дело" c 2008 года на рынке строительства в Дмитрове

Next-94

Стоимость проекта от:
42 300 ₽
БЕСПЛАТНО! ПРИ ЗАКАЗЕ СТРОИТЕЛЬСТВА
Стоимость строительства от:
7 276 280 ₽
Артикул ART-1255
Дата 25.12.2025
Архитектурный стиль Минимализм
Количество надземных этажей 1
Круглогодичное проживание Да
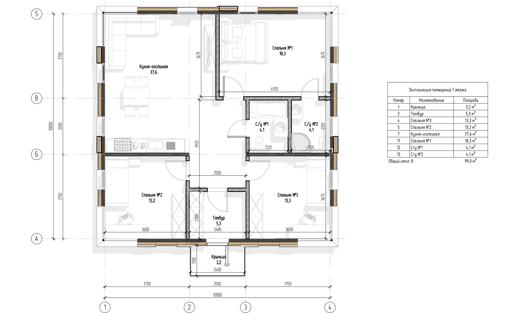
Площадь дома 94 м2
Санузлы 2
Спальни 3

Описание

**Next‑94 – дом, где современность встречается с минимализмом.** Эта уникальная единичная площадка, открытая для жизни в любое время года, сочетает в себе простоту и элегантность. Внутренний план — свободный, одна открытая палата, где естественный свет льется сквозь большие окна, создавая ощущение пространства и лёгкости. Современный монолитный железобетон придаёт дому непоколебимую устойчивость и долговечность, а плоская крыша подчёркивает лаконичность архитектурных линий. Вдохновлённый эстетикой минимализма, Next‑94 обделён лишним: в доме нет балконов, лоджий, веранд и чердак­ов. Это сделает ваш комфорт более управляемым и избавит от ненужных забот. Простота наружного оформления позволяет легко вписать дом в любое окружение, будь то тихий жилой район или динамичный городской центр. Выбирая Next‑94, вы получаете не просто помещение, а пространство, где каждая деталь продумана и служит вашему благополучию. Удобство открытых пространств, надёжность конструкции и безупречный дизайн создают идеальную основу для жизни в гармонии с собой и окружающим миром. Присоединяйтесь к тем, кто ценит чистую линию и уют без лишних украшений.

Характеристики дома

Архитектурный стиль
Автоматизированное регулирование параметров теплоносителя
-
Балконы/лоджии
Отсутствуют
Чердачное помещение
Нет
Датчики протечки воды
-
Эксплуатируемая или зеленая кровля
-
Электроснабжение
Центральное
Газоснабжение
2 варианта
Изоляция воздушного шума
-
Камин
Нет
Класс энергоэффективности
-
Класс энергосбережения
-
Количество надземных этажей
1
Круглогодичное проживание
Да
Материал кровли
ПВХ мембраны
Материал перекрытий
Деревянные по металлическим балкам
Материал внешних стен
Материал внутренних перегородок
Блочные
Модульное строительство с конструкциями заводского изготовления
Нет
Объем надземной части
625 м3
Основной материал фасадов
Штукатурка
Отопление
Центральное
Площадь дома
94 м2
Площадь застройки
156 м2
Подвальное помещение
Нет
Показатель компактности здания
-
Приборы учета тепловой энергии
-
Пристроенный гараж/крытая автостоянка
Нет
Противопожарная система
Нет
Санузлы
2
Совмещенная кухня-гостиная
Да
Спальни
3
Терраса
Нет
Тип фундамента
Ленточный
Тип кровли
Толщина внешних стен
150 мм
Толщина внутренних перегородок
120 мм
Улучшенные шумовые характеристики
-
Вентиляция
2 варианта
Веранда
Нет
Водоотведение
2 варианта
Водоснабжение
2 варианта
Высота дома
4 м
Высота потолков
2.77 м

Планировка

Фасад дома

Александр

Закажите выезд инженера

Александр

Выездной инженер
Закажите выезд инженера для точной диагностики и профессиональной консультации по инженерным системам. Специалист приедет в удобное время, проведёт осмотр, рассчитает стоимость работ и подберёт оптимальные решения для вашего дома.


    Похожие проекты

    Ипотека и
    рассрочка
    НОРВИЧ
    Стоимость от:
    8 166 345
    Проект от: 58 050
    Этажей 1
    Санузлы 2
    Спальни 3
    Смотреть
    Ипотека и
    рассрочка
    Речной
    Стоимость от:
    8 370 240
    Проект от: 58 950
    Этажей 2
    Санузлы 2
    Спальни 4
    Смотреть
    Ипотека и
    рассрочка
    Первомай
    Стоимость от:
    9 315 680
    Проект от: 55 800
    Этажей 1
    Санузлы 2
    Спальни 3
    Смотреть
    Ипотека и
    рассрочка
    Марматер 96
    Стоимость от:
    5 745 600
    Проект от: 43 200
    Этажей 2
    Санузлы 2
    Спальни 4
    Смотреть
    Ипотека и
    рассрочка
    Одноэтажный дом с тремя спальнями, камином и террасой
    Стоимость от:
    7 440 180
    Проект от: 44 550
    Этажей 1
    Санузлы 2
    Спальни 3
    Смотреть
    Ипотека и
    рассрочка
    Одноэтажный кирпичный дом PREMIUM — 158 m2 Белый облицовочный кирпич
    Стоимость от:
    9 548 000
    Проект от: 54 000
    Этажей 1
    Санузлы 2
    Спальни 3
    Смотреть

    Как узнать стоимость дома

    back
    Оставляете заявку
    Вы заполняете форму на сайте или звоните нам. Менеджер Лайвкрафт связывается с вами для уточнения деталей: тип дома, площадь, материалы, участок строительства.
    back
    Консультация и подбор решения
    Наш специалист помогает выбрать оптимальный тип дома и конструкцию с учётом бюджета, сроков и целей — будь то дом для постоянного проживания или дача.
    back
    Расчёт предварительной стоимости
    Инженер делает первичный расчёт стоимости строительства по вашим параметрам: фундамент, коробка, кровля, отделка. Вы получаете смету с разбивкой по этапам.
    back
    Корректировка и утверждение сметы
    При необходимости вносим изменения — например, замену материалов или сокращение этапов. После согласования формируется окончательная фиксированная смета.
    back
    Заключение договора и старт работ
    После утверждения сметы заключаем официальный договор с гарантией. Вы получаете прозрачный график и точную стоимость — без скрытых расходов.

    Заказать конусльтацию по:Next-94

    Фото 1 Next-94


      Наши
      контакты

      Дмитров
      Опорный проезд 28Б
      (индустриальный парк Ниагара)
      9:00 до 18:00

      Корзина