4.9
Рейтинг на основании 120 отзывов
Дмитров
Опорный проезд 28Б
(индустриальный парк Ниагара)
Бренд "Дмитров-Дело" c 2008 года на рынке строительства в Дмитрове
Звоните 9:00 до 18:00 8 (915) 055-33-61
Бренд "Дмитров-Дело" c 2008 года на рынке строительства в Дмитрове

Ниагара

Стоимость проекта от:
56 700 ₽
БЕСПЛАТНО! ПРИ ЗАКАЗЕ СТРОИТЕЛЬСТВА
Стоимость строительства от:
8 799 840 ₽
Артикул ART-11343
Дата 25.12.2025
Архитектурный стиль Европейский
Количество надземных этажей 2
Круглогодичное проживание Да
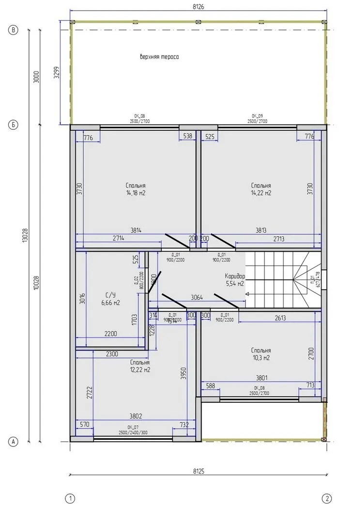
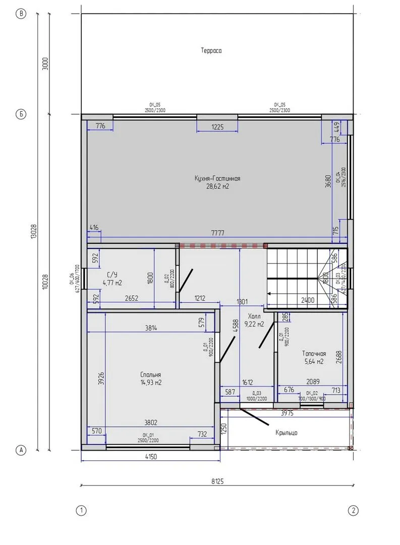
Площадь дома 126 м2
Санузлы 2
Спальни 5

Описание

Ниагара – это уютный двухэтажный дом, созданный с учётом потребностей современной семьи. Его европейский дизайн сочетает в себе традиционную простоту и современную функциональность: светлые, просторные комнаты, открытая планировка и лёгкое, ровное освещение, которое делает каждый день особенным. Сочетание SIP‑панелей на внешних стенах и классической двускатной крыши не только гарантирует долгую службу конструкции, но и создаёт тепло и акустическую изоляцию, позволяя жить здесь круглый год, без лишних забот о перепадах температур и шумах улицы. Внутри дом раскрывает свою практичность: просторный полкровный коридор ведёт к уютным зонам – гостиной с большой кухней, где можно готовить семейные праздники, и балкона, который, хотя и отсутствует, заменена просторной террасой, открывающей виды на прилегающий сад. Технически дом оснащён всем необходимым: двухэтажный фасад, глиняные крыши, прочные материалы и простая, но элегантная отделка. Такой набор позволяет каждому найти свой уголок комфорта: будь то вечерняя чашка кофе на терасс в летний день или семейный уютный вечер на уютном диване с видом на закат. Приглашаем вас открыть для себя все преимущества дома Ниагара – ваш новый, надежный и вдохновляющий дом, готовый стать настоящим местом для семейных радостей, творческой самореализации и тёплых воспоминаний. Согласитесь, именно здесь ваш комфорт станет главным приоритетом. 🌿🏡

Характеристики дома

Архитектурный стиль
Автоматизированное регулирование параметров теплоносителя
Нет
Балконы/лоджии
Отсутствуют
Чердачное помещение
Нет
Датчики протечки воды
Нет
Эксплуатируемая или зеленая кровля
Нет
Электроснабжение
Центральное
Газоснабжение
Центральное
Изоляция воздушного шума
Нет
Камин
Нет
Класс энергоэффективности
-
Класс энергосбережения
-
Количество надземных этажей
2
Круглогодичное проживание
Да
Материал кровли
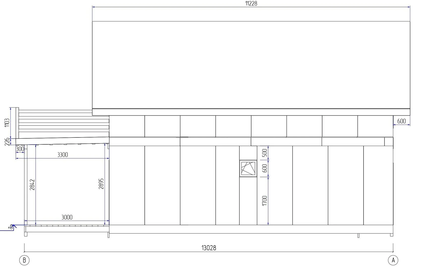
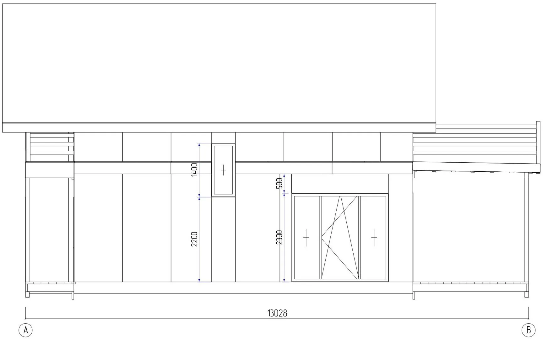
Металлочерепица
Материал перекрытий
Деревянные
Материал внешних стен
Материал внутренних перегородок
Гипсокартонные
Модульное строительство с конструкциями заводского изготовления
Нет
Объем надземной части
530 м3
Основной материал фасадов
Штукатурка
Отопление
Индивидуальное
Площадь дома
126 м2
Площадь застройки
105 м2
Подвальное помещение
Нет
Показатель компактности здания
-
Приборы учета тепловой энергии
Нет
Пристроенный гараж/крытая автостоянка
Нет
Противопожарная система
Нет
Санузлы
2
Совмещенная кухня-гостиная
Да
Спальни
5
Терраса
Да
Тип фундамента
Плитный
Тип кровли
Толщина внешних стен
174 мм
Толщина внутренних перегородок
150 мм
Улучшенные шумовые характеристики
Нет
Вентиляция
Рекуперация
Веранда
Нет
Водоотведение
2 варианта
Водоснабжение
2 варианта
Высота дома
7.3 м
Высота потолков
2.8 м

Планировка

Фасад дома

Александр

Закажите выезд инженера

Александр

Выездной инженер
Закажите выезд инженера для точной диагностики и профессиональной консультации по инженерным системам. Специалист приедет в удобное время, проведёт осмотр, рассчитает стоимость работ и подберёт оптимальные решения для вашего дома.


    Похожие проекты

    Ипотека и
    рассрочка
    БГ 38
    Стоимость от:
    8 785 920
    Проект от: 57 600
    Этажей 2
    Санузлы 2
    Спальни 2
    Смотреть
    Ипотека и
    рассрочка
    Загородный дом К-81
    Стоимость от:
    5 664 240
    Проект от: 36 450
    Этажей 2
    Санузлы 2
    Спальни 3
    Смотреть
    Ипотека и
    рассрочка
    Современный одноэтажный коттедж с встроенным гаражом S3-162-1 (Zx160)
    Стоимость от:
    15 616 040
    Проект от: 90 900
    Этажей 1
    Санузлы 3
    Спальни 3
    Смотреть
    Ипотека и
    рассрочка
    Проект ГБ-253
    Стоимость от:
    17 371 920
    Проект от: 113 850
    Этажей 2
    Санузлы 3
    Спальни 4
    Смотреть
    Ипотека и
    рассрочка
    Mikea 5
    Стоимость от:
    10 440 980
    Проект от: 62 550
    Этажей 1
    Санузлы 2
    Спальни 3
    Смотреть
    Ипотека и
    рассрочка
    Шале 8
    Стоимость от:
    17 001 360
    Проект от: 107 550
    Этажей 2
    Санузлы 2
    Спальни 3
    Смотреть

    Как узнать стоимость дома

    back
    Оставляете заявку
    Вы заполняете форму на сайте или звоните нам. Менеджер Лайвкрафт связывается с вами для уточнения деталей: тип дома, площадь, материалы, участок строительства.
    back
    Консультация и подбор решения
    Наш специалист помогает выбрать оптимальный тип дома и конструкцию с учётом бюджета, сроков и целей — будь то дом для постоянного проживания или дача.
    back
    Расчёт предварительной стоимости
    Инженер делает первичный расчёт стоимости строительства по вашим параметрам: фундамент, коробка, кровля, отделка. Вы получаете смету с разбивкой по этапам.
    back
    Корректировка и утверждение сметы
    При необходимости вносим изменения — например, замену материалов или сокращение этапов. После согласования формируется окончательная фиксированная смета.
    back
    Заключение договора и старт работ
    После утверждения сметы заключаем официальный договор с гарантией. Вы получаете прозрачный график и точную стоимость — без скрытых расходов.

    Заказать конусльтацию по:Ниагара

    Фото 1 Ниагара


      Наши
      контакты

      Дмитров
      Опорный проезд 28Б
      (индустриальный парк Ниагара)
      9:00 до 18:00

      Корзина