4.9
Рейтинг на основании 120 отзывов
Дмитров
Опорный проезд 28Б
(индустриальный парк Ниагара)
Бренд "Дмитров-Дело" c 2008 года на рынке строительства в Дмитрове
Звоните 9:00 до 18:00 8 (915) 055-33-61
Бренд "Дмитров-Дело" c 2008 года на рынке строительства в Дмитрове

NODO-150. Одноэтажный дом с крыльцом и террасой

Стоимость проекта от:
67 500 ₽
БЕСПЛАТНО! ПРИ ЗАКАЗЕ СТРОИТЕЛЬСТВА
Стоимость строительства от:
11 266 200 ₽
Артикул ART-15696
Дата 25.12.2025
Архитектурный стиль Европейский
Количество надземных этажей 1
Круглогодичное проживание Да
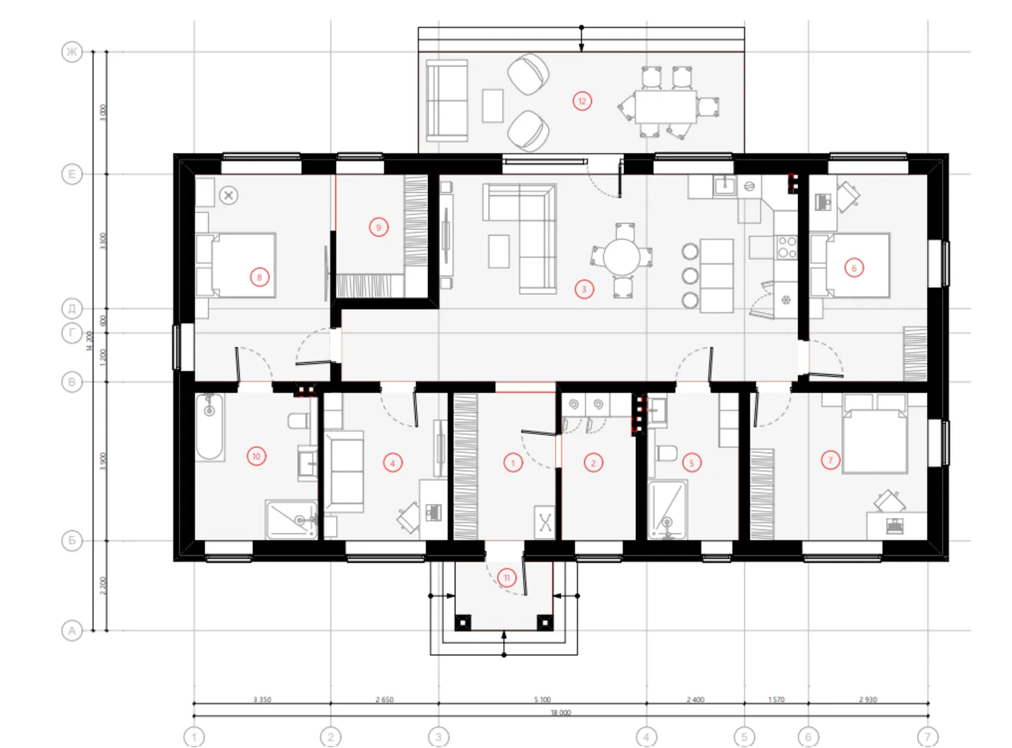
Площадь дома 150 м2
Санузлы 2
Спальни 3

Описание

Небольшой, но уютный уголок европейского стиля – дом NODO‑150 приглашает вас ощутить гармонию простоты и практичности. Это одноэтажное жильё с живописным крыльцом и просторной террасой, где каждый день начинается со света и свежего воздуха. Плиточные стены из высококачественного керамического блока сохраняют тепло в холодное время года, а четырёхскатная вальмовая крыша добавляет классический вид, скрывающий от дождя и ветра уют вашего двора. Внутри предусмотрены светлые, пропитанные естественным светом помещения, а также чердачное пространство, идеальное для хранения или превращения в тихую комнату отдыха. Дом спроектирован с учётом круглогодичного проживания: изоляция, теплоизоляция и водонепроницаемость создают комфорт даже в самые суровые зимы. На террасе можно устроить вечерний отдых в компании друзей, а тихий уголок за приёмной станет вашим личным убежищем от суеты. Если вы мечтаете о доме, где европейский шарм сочетается с функциональностью, NODO‑150 – ваш идеальный выбор. Позвольте себе окунуться в атмосферу тепла и уюта, где каждое утро будет начинаться с улыбки.

Характеристики дома

Архитектурный стиль
Автоматизированное регулирование параметров теплоносителя
Нет
Балконы/лоджии
Отсутствуют
Чердачное помещение
Да
Датчики протечки воды
Нет
Эксплуатируемая или зеленая кровля
Нет
Электроснабжение
Центральное
Газоснабжение
Не предусмотрено
Изоляция воздушного шума
Нет
Камин
Нет
Класс энергоэффективности
-
Класс энергосбережения
-
Количество надземных этажей
1
Круглогодичное проживание
Да
Материал кровли
Металлочерепица
Материал перекрытий
Сборные железобетонные
Материал внешних стен
Материал внутренних перегородок
Кирпичные
Модульное строительство с конструкциями заводского изготовления
Нет
Объем надземной части
874 м3
Основной материал фасадов
Облицовочный кирпич
Отопление
Индивидуальное
Площадь дома
150 м2
Площадь застройки
223 м2
Подвальное помещение
Нет
Показатель компактности здания
-
Приборы учета тепловой энергии
Нет
Пристроенный гараж/крытая автостоянка
Нет
Противопожарная система
Нет
Санузлы
2
Совмещенная кухня-гостиная
Да
Спальни
3
Терраса
Да
Тип фундамента
Свайно-ростверковый
Толщина внешних стен
500 мм
Толщина внутренних перегородок
250 мм
Улучшенные шумовые характеристики
Нет
Вентиляция
Естественная
Веранда
Нет
Водоотведение
Локальные очистные сооружения
Водоснабжение
Центральное
Высота дома
5.81 м
Высота потолков
3 м

Планировка

Фасад дома

Александр

Закажите выезд инженера

Александр

Выездной инженер
Закажите выезд инженера для точной диагностики и профессиональной консультации по инженерным системам. Специалист приедет в удобное время, проведёт осмотр, рассчитает стоимость работ и подберёт оптимальные решения для вашего дома.


    Похожие проекты

    Ипотека и
    рассрочка
    Современная классика ПР-1
    Стоимость от:
    10 103 940
    Проект от: 57 150
    Этажей 1
    Санузлы 1
    Спальни 3
    Смотреть
    Ипотека и
    рассрочка
    №310
    Стоимость от:
    6 779 520
    Проект от: 43 200
    Этажей 1
    Санузлы 1
    Спальни 3
    Смотреть
    Ипотека и
    рассрочка
    Загородный дом «Изумруд»
    Стоимость от:
    14 830 200
    Проект от: 94 500
    Этажей 1
    Санузлы 2
    Спальни 3
    Смотреть
    Ипотека и
    рассрочка
    Brick 113
    Стоимость от:
    7 665 240
    Проект от: 45 900
    Этажей 1
    Санузлы 2
    Спальни 3
    Смотреть
    Ипотека и
    рассрочка
    Одноэтажный каменный дом «Венера»
    Стоимость от:
    8 040 340
    Проект от: 48 150
    Этажей 1
    Санузлы 2
    Спальни 2
    Смотреть
    Ипотека и
    рассрочка
    Двухэтажный дом в классическом стиле Г-132
    Стоимость от:
    6 989 640
    Проект от: 47 700
    Этажей 2
    Санузлы 2
    Спальни 5
    Смотреть

    Как узнать стоимость дома

    back
    Оставляете заявку
    Вы заполняете форму на сайте или звоните нам. Менеджер Лайвкрафт связывается с вами для уточнения деталей: тип дома, площадь, материалы, участок строительства.
    back
    Консультация и подбор решения
    Наш специалист помогает выбрать оптимальный тип дома и конструкцию с учётом бюджета, сроков и целей — будь то дом для постоянного проживания или дача.
    back
    Расчёт предварительной стоимости
    Инженер делает первичный расчёт стоимости строительства по вашим параметрам: фундамент, коробка, кровля, отделка. Вы получаете смету с разбивкой по этапам.
    back
    Корректировка и утверждение сметы
    При необходимости вносим изменения — например, замену материалов или сокращение этапов. После согласования формируется окончательная фиксированная смета.
    back
    Заключение договора и старт работ
    После утверждения сметы заключаем официальный договор с гарантией. Вы получаете прозрачный график и точную стоимость — без скрытых расходов.

    Заказать конусльтацию по:NODO-150. Одноэтажный дом с крыльцом и террасой

    Фото 1 NODO-150. Одноэтажный дом с крыльцом и террасой


      Наши
      контакты

      Дмитров
      Опорный проезд 28Б
      (индустриальный парк Ниагара)
      9:00 до 18:00

      Корзина