4.9
Рейтинг на основании 120 отзывов
Дмитров
Опорный проезд 28Б
(индустриальный парк Ниагара)
Бренд "Дмитров-Дело" c 2008 года на рынке строительства в Дмитрове
Звоните 9:00 до 18:00 8 (915) 055-33-61
Бренд "Дмитров-Дело" c 2008 года на рынке строительства в Дмитрове

Nordic 130

Стоимость проекта от:
57 600 ₽
БЕСПЛАТНО! ПРИ ЗАКАЗЕ СТРОИТЕЛЬСТВА
Стоимость строительства от:
8 124 160 ₽
Артикул ART-11116
Дата 25.12.2025
Архитектурный стиль Скандинавский
Количество надземных этажей 1
Круглогодичное проживание Да
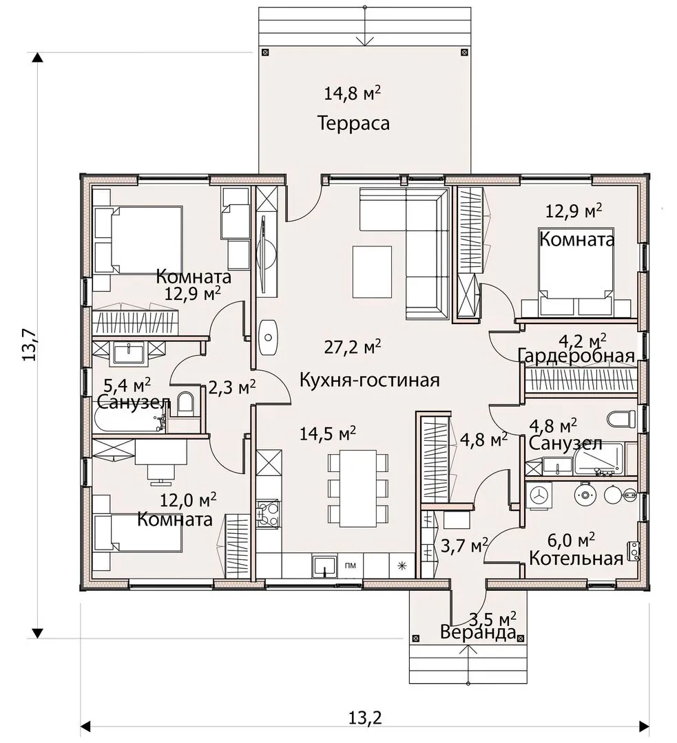
Площадь дома 128 м2
Санузлы 2
Спальни 3

Описание

Нордич 130 – это воплощение скандинавского минимализма в сочетании с комфортом круглогодичного проживания. В едином, светлом этаже без излишеств каждый сантиметр пространства использован на пользу живого и функционального дизайна: просторные комнатные зоны, аккуратные уголки для чтения и уютные обеденные места, наполненные природным светом. Без балконов и лоджий дом раскрывается в безмятежную гармонию, а веранда и терраса становятся вашими личными оазисами для вечерних встреч с близкими и утренних чашек кофе на свежем воздухе. Скандинавский стиль выражен в чистых линиях, приглушённых оттенках и применении натуральных материалов. Каркасно‑панельные стены не только обеспечивают отличную теплоизоляцию, но и делают строительство быстрым и экономичным, а двускатная крыша придаёт дому строгую геометрию и ощущение надёжности. Отсутствие прицепного гаража или крытой автостоянки не стоит на пути к функциональности – компактный, но вместительный гараж, встроенный в планировку, оставил всё пространство для семейных дел и хобби. Идеальное решение для тех, кто ценит простоту, экологичность и комфорт в одном месте. Нордич 130 станет вашим надежным домом сегодня, а завтрашним уютом, где каждый момент – это праздник простых, но благородных ощущений. Выбирая этот дом, вы выбираете стиль жизни, в котором каждый день начинается с гармонии, а заканчивается в тепле семейного уюта.

Характеристики дома

Архитектурный стиль
Автоматизированное регулирование параметров теплоносителя
Да
Балконы/лоджии
Отсутствуют
Чердачное помещение
Нет
Датчики протечки воды
Да
Эксплуатируемая или зеленая кровля
Нет
Электроснабжение
2 варианта
Газоснабжение
2 варианта
Изоляция воздушного шума
Да
Камин
Нет
Класс энергоэффективности
-
Класс энергосбережения
-
Количество надземных этажей
1
Круглогодичное проживание
Да
Материал кровли
Металлочерепица
Материал перекрытий
Деревянные
Материал внешних стен
Материал внутренних перегородок
Гипсокартонные
Модульное строительство с конструкциями заводского изготовления
Нет
Объем надземной части
685 м3
Основной материал фасадов
Дерево
Отопление
2 варианта
Площадь дома
128 м2
Площадь застройки
148 м2
Подвальное помещение
Нет
Показатель компактности здания
-
Приборы учета тепловой энергии
Да
Пристроенный гараж/крытая автостоянка
Нет
Противопожарная система
Нет
Санузлы
2
Совмещенная кухня-гостиная
Да
Спальни
3
Терраса
Да
Тип фундамента
Свайный
Тип кровли
Толщина внешних стен
326 мм
Толщина внутренних перегородок
175 мм
Улучшенные шумовые характеристики
Да
Вентиляция
Рекуперация
Веранда
Да
Водоотведение
2 варианта
Водоснабжение
2 варианта
Высота дома
5.47 м
Высота потолков
3.42 м

Планировка

Фасад дома

Александр

Закажите выезд инженера

Александр

Выездной инженер
Закажите выезд инженера для точной диагностики и профессиональной консультации по инженерным системам. Специалист приедет в удобное время, проведёт осмотр, рассчитает стоимость работ и подберёт оптимальные решения для вашего дома.


    Похожие проекты

    Ипотека и
    рассрочка
    007
    Стоимость от:
    6 847 720
    Проект от: 38 700
    Этажей 1
    Санузлы 1
    Спальни 2
    Смотреть
    Ипотека и
    рассрочка
    CN 127
    Стоимость от:
    9 315 680
    Проект от: 55 800
    Этажей 1
    Санузлы 2
    Спальни 3
    Смотреть
    Ипотека и
    рассрочка
    Загородный дом ВС-101
    Стоимость от:
    19 157 600
    Проект от: 126 000
    Этажей 1
    Санузлы 4
    Спальни 3
    Смотреть
    Ипотека и
    рассрочка
    Барн 64
    Стоимость от:
    5 286 600
    Проект от: 40 500
    Этажей 2
    Санузлы 1
    Спальни 3
    Смотреть
    Ипотека и
    рассрочка
    Одноэтажный BARN 30
    Стоимость от:
    1 673 100
    Проект от: 13 500
    Этажей 1
    Санузлы 1
    Спальни 1
    Смотреть
    Ипотека и
    рассрочка
    Дом из клееного бруса «ХВОЙНЫЙ»
    Стоимость от:
    8 387 500
    Проект от: 51 750
    Этажей 1
    Санузлы 2
    Спальни 3
    Смотреть

    Как узнать стоимость дома

    back
    Оставляете заявку
    Вы заполняете форму на сайте или звоните нам. Менеджер Лайвкрафт связывается с вами для уточнения деталей: тип дома, площадь, материалы, участок строительства.
    back
    Консультация и подбор решения
    Наш специалист помогает выбрать оптимальный тип дома и конструкцию с учётом бюджета, сроков и целей — будь то дом для постоянного проживания или дача.
    back
    Расчёт предварительной стоимости
    Инженер делает первичный расчёт стоимости строительства по вашим параметрам: фундамент, коробка, кровля, отделка. Вы получаете смету с разбивкой по этапам.
    back
    Корректировка и утверждение сметы
    При необходимости вносим изменения — например, замену материалов или сокращение этапов. После согласования формируется окончательная фиксированная смета.
    back
    Заключение договора и старт работ
    После утверждения сметы заключаем официальный договор с гарантией. Вы получаете прозрачный график и точную стоимость — без скрытых расходов.

    Заказать конусльтацию по:Nordic 130

    Фото 1 Nordic 130


      Наши
      контакты

      Дмитров
      Опорный проезд 28Б
      (индустриальный парк Ниагара)
      9:00 до 18:00

      Корзина