4.9
Рейтинг на основании 120 отзывов
Дмитров
Опорный проезд 28Б
(индустриальный парк Ниагара)
Бренд "Дмитров-Дело" c 2008 года на рынке строительства в Дмитрове
Звоните 9:00 до 18:00 8 (915) 055-33-61
Бренд "Дмитров-Дело" c 2008 года на рынке строительства в Дмитрове

Норвегия 12-88-АС

Стоимость проекта от:
43 650 ₽
БЕСПЛАТНО! ПРИ ЗАКАЗЕ СТРОИТЕЛЬСТВА
Стоимость строительства от:
7 290 140 ₽
Артикул ART-16645
Дата 26.12.2025
Архитектурный стиль Скандинавский
Количество надземных этажей 1
Круглогодичное проживание Да
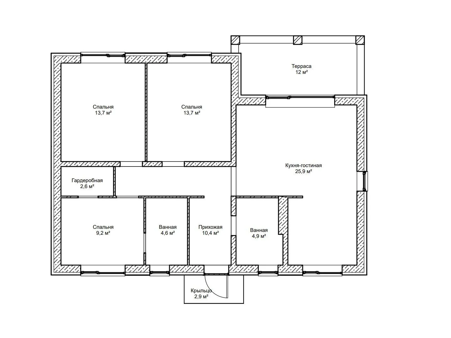
Площадь дома 97 м2
Санузлы 2
Спальни 3

Описание

Норвегия 12‑88‑АС – это уютный одноэтажный дом, созданный для тех, кто ценит простоту и надежность скандинавского дизайна. Внутри встречает вас тепло современных отделок, а наружный кирпичный фасад придаёт ему характерный, стойкий вид. Выбирая этот дом, вы гарантируетесь круглогодичным комфортом: крепкая двухскатная крыша и качественная изоляция защищают от суровых птичек, сохраняя стабильную температуру даже в самые холодные дни. Отпугните суету городской суеты и насладитесь собственным уголком спокойствия. Просторная терраса – идеальное место для рассветных кофе, вечерних закатов или пикников на свежем воздухе, где каждый гость почувствует вкус свободы. Хотя балконы, веранда и автосарай отсутствуют, все же вам доступна возможность создать свой собственный уголок уединения, воспользовавшись простором дома и окружающей природой. Если вы мечтаете о спокойной жизни в стиле скандинавского очарования, где каждый кирпич, каждая линия и каждый угол наполнены уютом и функциональностью, то дом 12‑88‑АС станет вашим идеальным выбором. С ним вы получите не просто стены, а настоящий дом, в котором каждая деталь напоминает о гармонии с природой и умении жить в простоте с большим удовольствием.

Характеристики дома

Архитектурный стиль
Автоматизированное регулирование параметров теплоносителя
Да
Балконы/лоджии
Отсутствуют
Чердачное помещение
Нет
Датчики протечки воды
Нет
Эксплуатируемая или зеленая кровля
Нет
Электроснабжение
Центральное
Газоснабжение
Центральное
Изоляция воздушного шума
Да
Камин
Нет
Класс энергоэффективности
A
Класс энергосбережения
A
Количество надземных этажей
1
Круглогодичное проживание
Да
Материал кровли
Металлочерепица
Материал перекрытий
Деревянные
Материал внешних стен
Материал внутренних перегородок
Кирпичные
Модульное строительство с конструкциями заводского изготовления
Нет
Объем надземной части
495 м3
Основной материал фасадов
Штукатурка
Отопление
Индивидуальное
Площадь дома
97 м2
Площадь застройки
123 м2
Подвальное помещение
Нет
Показатель компактности здания
0.8
Приборы учета тепловой энергии
Да
Пристроенный гараж/крытая автостоянка
Нет
Противопожарная система
Нет
Санузлы
2
Совмещенная кухня-гостиная
Да
Спальни
3
Терраса
Да
Тип фундамента
Свайно-ростверковый
Тип кровли
Толщина внешних стен
360 мм
Толщина внутренних перегородок
100 мм
Улучшенные шумовые характеристики
Да
Вентиляция
Естественная
Веранда
Нет
Водоотведение
Локальные очистные сооружения
Водоснабжение
2 варианта
Высота дома
5.1 м
Высота потолков
2.9 м

Планировка

Фасад дома

Александр

Закажите выезд инженера

Александр

Выездной инженер
Закажите выезд инженера для точной диагностики и профессиональной консультации по инженерным системам. Специалист приедет в удобное время, проведёт осмотр, рассчитает стоимость работ и подберёт оптимальные решения для вашего дома.


    Похожие проекты

    Ипотека и
    рассрочка
    Брусовой дом с гаражом ТА-92
    Стоимость от:
    8 666 240
    Проект от: 50 400
    Этажей 1
    Санузлы 1
    Спальни 2
    Смотреть
    Ипотека и
    рассрочка
    Дом с эркером Б039
    Стоимость от:
    6 688 880
    Проект от: 37 800
    Этажей 1
    Санузлы 1
    Спальни 2
    Смотреть
    Ипотека и
    рассрочка
    Дом «современный стиль» 2 этажа
    Стоимость от:
    13 316 160
    Проект от: 87 300
    Этажей 2
    Санузлы 2
    Спальни 2
    Смотреть
    Ипотека и
    рассрочка
    Дом ОПТИМУМ 150 С МАНСАРДОЙ
    Стоимость от:
    9 583 680
    Проект от: 66 150
    Этажей 2
    Санузлы 2
    Спальни 3
    Смотреть
    Ипотека и
    рассрочка
    РП-171,2/24
    Стоимость от:
    12 650 880
    Проект от: 77 400
    Этажей 2
    Санузлы 2
    Спальни 5
    Смотреть
    Ипотека и
    рассрочка
    Проект дома 200-87
    Стоимость от:
    15 787 200
    Проект от: 103 500
    Этажей 2
    Санузлы 4
    Спальни 5
    Смотреть

    Как узнать стоимость дома

    back
    Оставляете заявку
    Вы заполняете форму на сайте или звоните нам. Менеджер Лайвкрафт связывается с вами для уточнения деталей: тип дома, площадь, материалы, участок строительства.
    back
    Консультация и подбор решения
    Наш специалист помогает выбрать оптимальный тип дома и конструкцию с учётом бюджета, сроков и целей — будь то дом для постоянного проживания или дача.
    back
    Расчёт предварительной стоимости
    Инженер делает первичный расчёт стоимости строительства по вашим параметрам: фундамент, коробка, кровля, отделка. Вы получаете смету с разбивкой по этапам.
    back
    Корректировка и утверждение сметы
    При необходимости вносим изменения — например, замену материалов или сокращение этапов. После согласования формируется окончательная фиксированная смета.
    back
    Заключение договора и старт работ
    После утверждения сметы заключаем официальный договор с гарантией. Вы получаете прозрачный график и точную стоимость — без скрытых расходов.

    Заказать конусльтацию по:Норвегия 12-88-АС

    Фото 1 Норвегия 12-88-АС


      Наши
      контакты

      Дмитров
      Опорный проезд 28Б
      (индустриальный парк Ниагара)
      9:00 до 18:00

      Корзина