4.9
Рейтинг на основании 120 отзывов
Дмитров
Опорный проезд 28Б
(индустриальный парк Ниагара)
Бренд "Дмитров-Дело" c 2008 года на рынке строительства в Дмитрове
Звоните 9:00 до 18:00 8 (915) 055-33-61
Бренд "Дмитров-Дело" c 2008 года на рынке строительства в Дмитрове

НОРВЕГИЯ 150

Стоимость проекта от:
74 250 ₽
БЕСПЛАТНО! ПРИ ЗАКАЗЕ СТРОИТЕЛЬСТВА
Стоимость строительства от:
11 331 600 ₽
Артикул ART-11493
Дата 25.12.2025
Архитектурный стиль Скандинавский
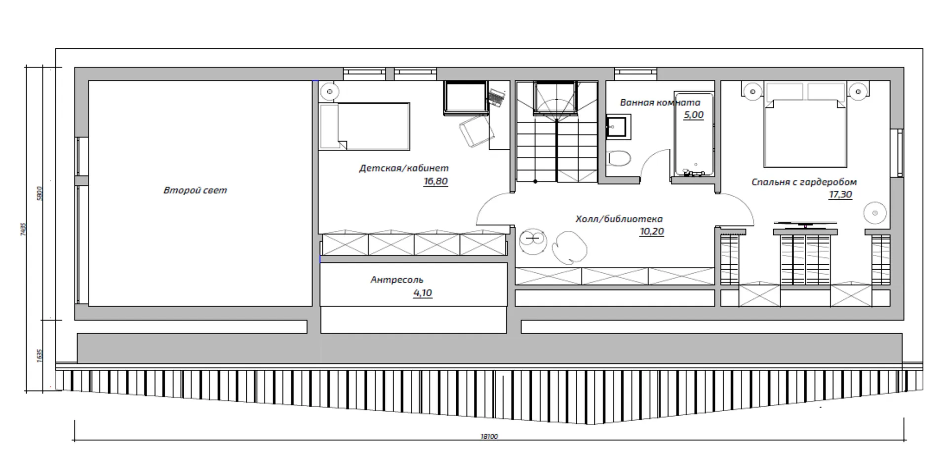
Количество надземных этажей 2
Круглогодичное проживание Да
Площадь дома 165 м2
Санузлы 2
Спальни 3

Описание

Представляем вашему вниманию современный уединенный дом 150, построенный в строгом и в то же время светлом скандинавском стиле. Его двухэтажный план создаёт ощущение просторного и открытого пространства, а каждая деталь проработана с учётом круглогодичного проживания на территории Норвегии. Площадь фасада, выполненного из каркасно-панельной технологии, сочетает в себе лёгкость, тепло изоляции и простоту обслуживания, а классический двускатный профиль крыши подчёркивает элегантную линию архитектуры и обеспечивает надёжность в любых погодных условиях. Притягательно простое общее решение без лишних элементов – отсутствуют балконы, лоджии и веранда, а прицепной гараж и крытая парковка не предусмотрены. Вместо этого здесь – уютная просторная терраса, где можно наслаждаться долгими зимними вечерами и вечерними прогулками по живописным ландшафтам. Тщательно подобранные материалы, энергоэффективные окна и продвинутая утеплённая система делают этот дом идеальным выбором для тех, кто ценит комфорт, стиль и высокое качество жизни в любой поре года.

Характеристики дома

Архитектурный стиль
Автоматизированное регулирование параметров теплоносителя
Да
Балконы/лоджии
Отсутствуют
Чердачное помещение
Нет
Датчики протечки воды
Да
Эксплуатируемая или зеленая кровля
Нет
Электроснабжение
2 варианта
Газоснабжение
Не предусмотрено
Изоляция воздушного шума
Да
Камин
Нет
Класс энергоэффективности
-
Класс энергосбережения
-
Количество надземных этажей
2
Круглогодичное проживание
Да
Материал кровли
Фальцевая кровля Кликфальц
Материал перекрытий
Деревянные
Материал внешних стен
Материал внутренних перегородок
Деревянные
Модульное строительство с конструкциями заводского изготовления
Да
Объем надземной части
-
Основной материал фасадов
Дерево
Отопление
2 варианта
Площадь дома
165 м2
Площадь застройки
134 м2
Подвальное помещение
Нет
Показатель компактности здания
-
Приборы учета тепловой энергии
Да
Пристроенный гараж/крытая автостоянка
Нет
Противопожарная система
Да
Санузлы
2
Совмещенная кухня-гостиная
Да
Спальни
3
Терраса
Да
Тип фундамента
Плитный
Тип кровли
Толщина внешних стен
300 мм
Толщина внутренних перегородок
150 мм
Улучшенные шумовые характеристики
Да
Вентиляция
3 варианта
Веранда
Нет
Водоотведение
2 варианта
Водоснабжение
2 варианта
Высота дома
8.5 м
Высота потолков
2.7 м

Планировка

Фасад дома

Александр

Закажите выезд инженера

Александр

Выездной инженер
Закажите выезд инженера для точной диагностики и профессиональной консультации по инженерным системам. Специалист приедет в удобное время, проведёт осмотр, рассчитает стоимость работ и подберёт оптимальные решения для вашего дома.


    Похожие проекты

    Ипотека и
    рассрочка
    Статус 10х11 Яхрома
    Стоимость от:
    5 202 450
    Проект от: 40 500
    Этажей 1
    Санузлы 1
    Спальни 3
    Смотреть
    Ипотека и
    рассрочка
    Индивидуальный жилой дом 700-09-11/21-АР
    Стоимость от:
    9 236 040
    Проект от: 61 650
    Этажей 1
    Санузлы 1
    Спальни 2
    Смотреть
    Ипотека и
    рассрочка
    КСТ Д-08
    Стоимость от:
    11 949 120
    Проект от: 75 600
    Этажей 2
    Санузлы 3
    Спальни 4
    Смотреть
    Ипотека и
    рассрочка
    Загородный дом Д-84
    Стоимость от:
    5 136 300
    Проект от: 35 100
    Этажей 2
    Санузлы 1
    Спальни 2
    Смотреть
    Ипотека и
    рассрочка
    Загородный дом Европейский-103
    Стоимость от:
    5 970 910
    Проект от: 46 350
    Этажей 1
    Санузлы 2
    Спальни 3
    Смотреть
    Ипотека и
    рассрочка
    Дом Классический 90 м2
    Стоимость от:
    5 755 920
    Проект от: 39 150
    Этажей 2
    Санузлы 2
    Спальни 2
    Смотреть

    Как узнать стоимость дома

    back
    Оставляете заявку
    Вы заполняете форму на сайте или звоните нам. Менеджер Лайвкрафт связывается с вами для уточнения деталей: тип дома, площадь, материалы, участок строительства.
    back
    Консультация и подбор решения
    Наш специалист помогает выбрать оптимальный тип дома и конструкцию с учётом бюджета, сроков и целей — будь то дом для постоянного проживания или дача.
    back
    Расчёт предварительной стоимости
    Инженер делает первичный расчёт стоимости строительства по вашим параметрам: фундамент, коробка, кровля, отделка. Вы получаете смету с разбивкой по этапам.
    back
    Корректировка и утверждение сметы
    При необходимости вносим изменения — например, замену материалов или сокращение этапов. После согласования формируется окончательная фиксированная смета.
    back
    Заключение договора и старт работ
    После утверждения сметы заключаем официальный договор с гарантией. Вы получаете прозрачный график и точную стоимость — без скрытых расходов.

    Заказать конусльтацию по:НОРВЕГИЯ 150

    Фото 1 НОРВЕГИЯ 150


      Наши
      контакты

      Дмитров
      Опорный проезд 28Б
      (индустриальный парк Ниагара)
      9:00 до 18:00

      Корзина