4.9
Рейтинг на основании 120 отзывов
Дмитров
Опорный проезд 28Б
(индустриальный парк Ниагара)
Бренд "Дмитров-Дело" c 2008 года на рынке строительства в Дмитрове
Звоните 9:00 до 18:00 8 (915) 055-33-61
Бренд "Дмитров-Дело" c 2008 года на рынке строительства в Дмитрове

Одноэтажное шале №734

Стоимость проекта от:
64 800 ₽
БЕСПЛАТНО! ПРИ ЗАКАЗЕ СТРОИТЕЛЬСТВА
Стоимость строительства от:
10 169 280 ₽
Артикул ART-10545
Дата 25.12.2025
Архитектурный стиль Шале
Количество надземных этажей 1
Круглогодичное проживание Да
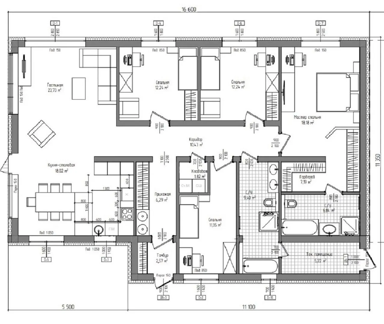
Площадь дома 144 м2
Санузлы 2
Спальни 4

Описание

Насладитесь уютом настоящего шале в одном из самых живописных уголков региона – дом №734 приглашает вас окунуться в атмосферу природного тепла и спокойствия. Одноэтажная постройка, выполненная в традиционном стиле шале, сочетает в себе гармоничную простоту и элегантность. Из газобетонных блоков внешних стен и двускатной крыши образуется крепкая, но в то же время дружелюбная к природе конструкция, способная пережить любые климатические изменения, обеспечивая идеальные условия для круглогодичного проживания. Внутри пространство раскрывается мягким светом и атмосферой домашнего уюта. Внутренний дворик, окружённый лесным рощами, позволяет ощутить связь с природой, даже не выходя из дома. Уютный интерьер с открытыми полками, деревянными столешницами и камином создаёт неповторимый колорит, который делает каждый момент по‑дому. Отсутствие лишних балконов и веранд не мешает вам насладиться свежим воздухом – ведь уютных уголков внутри дома достаточно, чтобы почувствовать себя как дома. Приглашаем вас открыть для себя настоящий оазис уюта, где каждая деталь продумана до мелочей, но при этом сохранила простоту и душевность. Дом №734 – это ваше новое место для отдыха, работы и вдохновения. Звоните прямо сейчас, чтобы спланировать тур и убедиться, что идеальный шале уже готов к встрече с вами.

Характеристики дома

Архитектурный стиль
Автоматизированное регулирование параметров теплоносителя
Нет
Балконы/лоджии
Отсутствуют
Чердачное помещение
Нет
Датчики протечки воды
Нет
Эксплуатируемая или зеленая кровля
Нет
Электроснабжение
Не предусмотрено
Газоснабжение
Не предусмотрено
Изоляция воздушного шума
Нет
Камин
Нет
Класс энергоэффективности
-
Класс энергосбережения
-
Количество надземных этажей
1
Круглогодичное проживание
Да
Материал кровли
Металлочерепица
Материал перекрытий
Деревянные
Материал внешних стен
Материал внутренних перегородок
Кирпичные
Модульное строительство с конструкциями заводского изготовления
Нет
Объем надземной части
973 м3
Основной материал фасадов
Штукатурка
Отопление
Не предусмотрено
Площадь дома
144 м2
Площадь застройки
257 м2
Подвальное помещение
Нет
Показатель компактности здания
-
Приборы учета тепловой энергии
Нет
Пристроенный гараж/крытая автостоянка
Нет
Противопожарная система
Нет
Санузлы
2
Совмещенная кухня-гостиная
Да
Спальни
4
Терраса
Нет
Тип фундамента
Плитный
Тип кровли
Толщина внешних стен
470 мм
Толщина внутренних перегородок
120 мм
Улучшенные шумовые характеристики
Нет
Вентиляция
Естественная
Веранда
Нет
Водоотведение
Не предусмотрено
Водоснабжение
Не предусмотрено
Высота дома
3.5 м
Высота потолков
3 м

Планировка

Фасад дома

Александр

Закажите выезд инженера

Александр

Выездной инженер
Закажите выезд инженера для точной диагностики и профессиональной консультации по инженерным системам. Специалист приедет в удобное время, проведёт осмотр, рассчитает стоимость работ и подберёт оптимальные решения для вашего дома.


    Похожие проекты

    Ипотека и
    рассрочка
    Двухэтажный дом Победа Эстетика 137м2
    Стоимость от:
    9 409 680
    Проект от: 61 650
    Этажей 2
    Санузлы 2
    Спальни 5
    Смотреть
    Ипотека и
    рассрочка
    Загородный дом ПСК-146
    Стоимость от:
    8 761 610
    Проект от: 64 350
    Этажей 1
    Санузлы 2
    Спальни 3
    Смотреть
    Ипотека и
    рассрочка
    Одноэтажный жилой дом СВ-148
    Стоимость от:
    9 510 380
    Проект от: 62 550
    Этажей 1
    Санузлы 2
    Спальни 3
    Смотреть
    Ипотека и
    рассрочка
    Сахалин 92
    Стоимость от:
    6 214 560
    Проект от: 39 600
    Этажей 1
    Санузлы 1
    Спальни 3
    Смотреть
    Ипотека и
    рассрочка
    Двухэтажный дом 130 кв.м. РП-2
    Стоимость от:
    9 079 200
    Проект от: 58 500
    Этажей 2
    Санузлы 2
    Спальни 3
    Смотреть
    Ипотека и
    рассрочка
    Двухэтажный дом DH 217
    Стоимость от:
    15 162 480
    Проект от: 97 650
    Этажей 2
    Санузлы 3
    Спальни 4
    Смотреть

    Как узнать стоимость дома

    back
    Оставляете заявку
    Вы заполняете форму на сайте или звоните нам. Менеджер Лайвкрафт связывается с вами для уточнения деталей: тип дома, площадь, материалы, участок строительства.
    back
    Консультация и подбор решения
    Наш специалист помогает выбрать оптимальный тип дома и конструкцию с учётом бюджета, сроков и целей — будь то дом для постоянного проживания или дача.
    back
    Расчёт предварительной стоимости
    Инженер делает первичный расчёт стоимости строительства по вашим параметрам: фундамент, коробка, кровля, отделка. Вы получаете смету с разбивкой по этапам.
    back
    Корректировка и утверждение сметы
    При необходимости вносим изменения — например, замену материалов или сокращение этапов. После согласования формируется окончательная фиксированная смета.
    back
    Заключение договора и старт работ
    После утверждения сметы заключаем официальный договор с гарантией. Вы получаете прозрачный график и точную стоимость — без скрытых расходов.

    Заказать конусльтацию по:Одноэтажное шале №734

    Фото 1 Одноэтажное шале №734


      Наши
      контакты

      Дмитров
      Опорный проезд 28Б
      (индустриальный парк Ниагара)
      9:00 до 18:00

      Корзина