4.9
Рейтинг на основании 120 отзывов
Дмитров
Опорный проезд 28Б
(индустриальный парк Ниагара)
Бренд "Дмитров-Дело" c 2008 года на рынке строительства в Дмитрове
Звоните 9:00 до 18:00 8 (915) 055-33-61
Бренд "Дмитров-Дело" c 2008 года на рынке строительства в Дмитрове

Одноэтажный B-175

Стоимость проекта от:
43 200 ₽
БЕСПЛАТНО! ПРИ ЗАКАЗЕ СТРОИТЕЛЬСТВА
Стоимость строительства от:
6 568 320 ₽
Артикул ART-19665
Дата 26.12.2025
Архитектурный стиль Скандинавский
Количество надземных этажей 1
Круглогодичное проживание Да
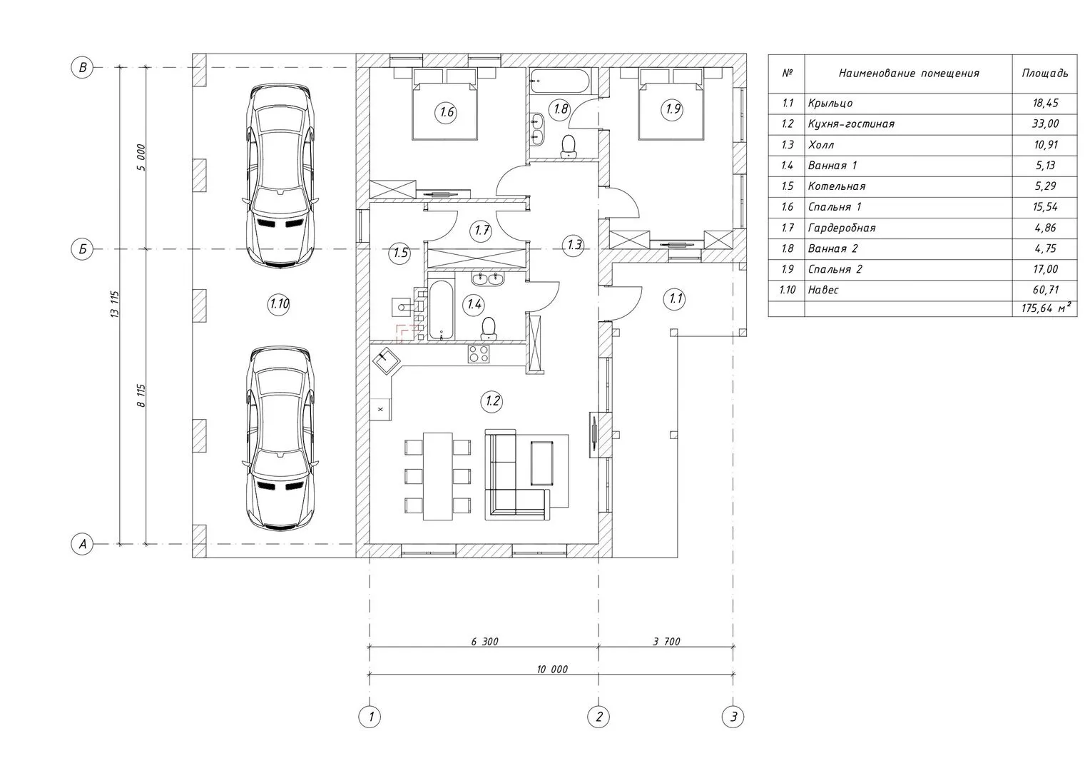
Площадь дома 96 м2
Санузлы 2
Спальни 2

Описание

Прекрасно продуманное одноэтажное жильё площадью B‑175 очаровывает своей простотой и элегантностью. В стиле скандинавской архитектуры дом сочетает в себе лаконичные линии и естественные материалы, создавая атмосферу спокойствия и уюта. Светлая, открытая планировка обеспечивает оптимальную вентиляцию и циркуляцию воздуха, а плоская крыша подчеркивает современный облик. Каждый уголок дома продуман до мелочей: от удобных входных дверей и просторных помещений до практичного встроенного гаража и крытой автостоянки, где можно хранить машину в любую погоду. Стены, выполненные из газобетонных блоков, обеспечивают отличную тепло- и звукоизоляцию, что делает этот дом идеальным для круглогодичного проживания. Никаких лишних балконов, террас или веранд, но зато просторные внутренние пространства, которые легко адаптировать под любой образ жизни. Благодаря своему функциональному дизайну и практическим решениям, этот дом станет идеальной «обратной» точкой для тех, кто ценит комфорт, безопасность и стиль без излишеств. Он предлагает спокойную атмосферу, где каждый сможет почувствовать себя дома, а также простор для реализации собственных идей обустройства и развлечения. Ваша новая жизнь в этом доме – это спокойствие, удобство и эстетика на каждой детали.

Характеристики дома

Архитектурный стиль
Автоматизированное регулирование параметров теплоносителя
Нет
Балконы/лоджии
Отсутствуют
Чердачное помещение
Нет
Датчики протечки воды
Нет
Эксплуатируемая или зеленая кровля
Нет
Электроснабжение
Центральное
Газоснабжение
Центральное
Изоляция воздушного шума
Нет
Камин
Нет
Класс энергоэффективности
-
Класс энергосбережения
-
Количество надземных этажей
1
Круглогодичное проживание
Да
Материал кровли
Битумно-полимерная или Битумно-резиновая мастика
Материал перекрытий
Сборные железобетонные многопустотные плиты
Материал внешних стен
Материал внутренних перегородок
Блочные
Модульное строительство с конструкциями заводского изготовления
Нет
Объем надземной части
145 м3
Основной материал фасадов
Планкен
Отопление
Индивидуальное
Площадь дома
96 м2
Площадь застройки
200 м2
Подвальное помещение
Нет
Показатель компактности здания
-
Приборы учета тепловой энергии
Нет
Пристроенный гараж/крытая автостоянка
Да
Противопожарная система
Нет
Санузлы
2
Совмещенная кухня-гостиная
Да
Спальни
2
Терраса
Нет
Тип фундамента
Плитный
Тип кровли
Толщина внешних стен
375 мм
Толщина внутренних перегородок
100 мм
Улучшенные шумовые характеристики
Нет
Вентиляция
Естественная
Веранда
Нет
Водоотведение
Локальные очистные сооружения
Водоснабжение
Индивидуальное
Высота дома
4.5 м
Высота потолков
3 м

Планировка

Фасад дома

Александр

Закажите выезд инженера

Александр

Выездной инженер
Закажите выезд инженера для точной диагностики и профессиональной консультации по инженерным системам. Специалист приедет в удобное время, проведёт осмотр, рассчитает стоимость работ и подберёт оптимальные решения для вашего дома.


    Похожие проекты

    Ипотека и
    рассрочка
    Загородный дом АС-252
    Стоимость от:
    14 983 980
    Проект от: 98 550
    Этажей 1
    Санузлы 3
    Спальни 3
    Смотреть
    Ипотека и
    рассрочка
    Дом из сборного железобетона FP-3у «Big Boss 2.0»
    Стоимость от:
    13 957 680
    Проект от: 91 800
    Этажей 1
    Санузлы 2
    Спальни 3
    Смотреть
    Ипотека и
    рассрочка
    Авторский проект «Руен»
    Стоимость от:
    11 111 760
    Проект от: 71 550
    Этажей 2
    Санузлы 2
    Спальни 5
    Смотреть
    Ипотека и
    рассрочка
    Барн 97
    Стоимость от:
    6 910 420
    Проект от: 45 450
    Этажей 1
    Санузлы 1
    Спальни 3
    Смотреть
    Ипотека и
    рассрочка
    Загородный дом «Шоколад»
    Стоимость от:
    6 638 280
    Проект от: 42 300
    Этажей 1
    Санузлы 1
    Спальни 3
    Смотреть
    Ипотека и
    рассрочка
    Загородный дом — 115.1
    Стоимость от:
    7 980 060
    Проект от: 50 850
    Этажей 1
    Санузлы 2
    Спальни 3
    Смотреть

    Как узнать стоимость дома

    back
    Оставляете заявку
    Вы заполняете форму на сайте или звоните нам. Менеджер Лайвкрафт связывается с вами для уточнения деталей: тип дома, площадь, материалы, участок строительства.
    back
    Консультация и подбор решения
    Наш специалист помогает выбрать оптимальный тип дома и конструкцию с учётом бюджета, сроков и целей — будь то дом для постоянного проживания или дача.
    back
    Расчёт предварительной стоимости
    Инженер делает первичный расчёт стоимости строительства по вашим параметрам: фундамент, коробка, кровля, отделка. Вы получаете смету с разбивкой по этапам.
    back
    Корректировка и утверждение сметы
    При необходимости вносим изменения — например, замену материалов или сокращение этапов. После согласования формируется окончательная фиксированная смета.
    back
    Заключение договора и старт работ
    После утверждения сметы заключаем официальный договор с гарантией. Вы получаете прозрачный график и точную стоимость — без скрытых расходов.

    Заказать конусльтацию по:Одноэтажный B-175

    Фото 1 Одноэтажный B-175


      Наши
      контакты

      Дмитров
      Опорный проезд 28Б
      (индустриальный парк Ниагара)
      9:00 до 18:00

      Корзина