4.9
Рейтинг на основании 120 отзывов
Дмитров
Опорный проезд 28Б
(индустриальный парк Ниагара)
Бренд "Дмитров-Дело" c 2008 года на рынке строительства в Дмитрове
Звоните 9:00 до 18:00 8 (915) 055-33-61
Бренд "Дмитров-Дело" c 2008 года на рынке строительства в Дмитрове

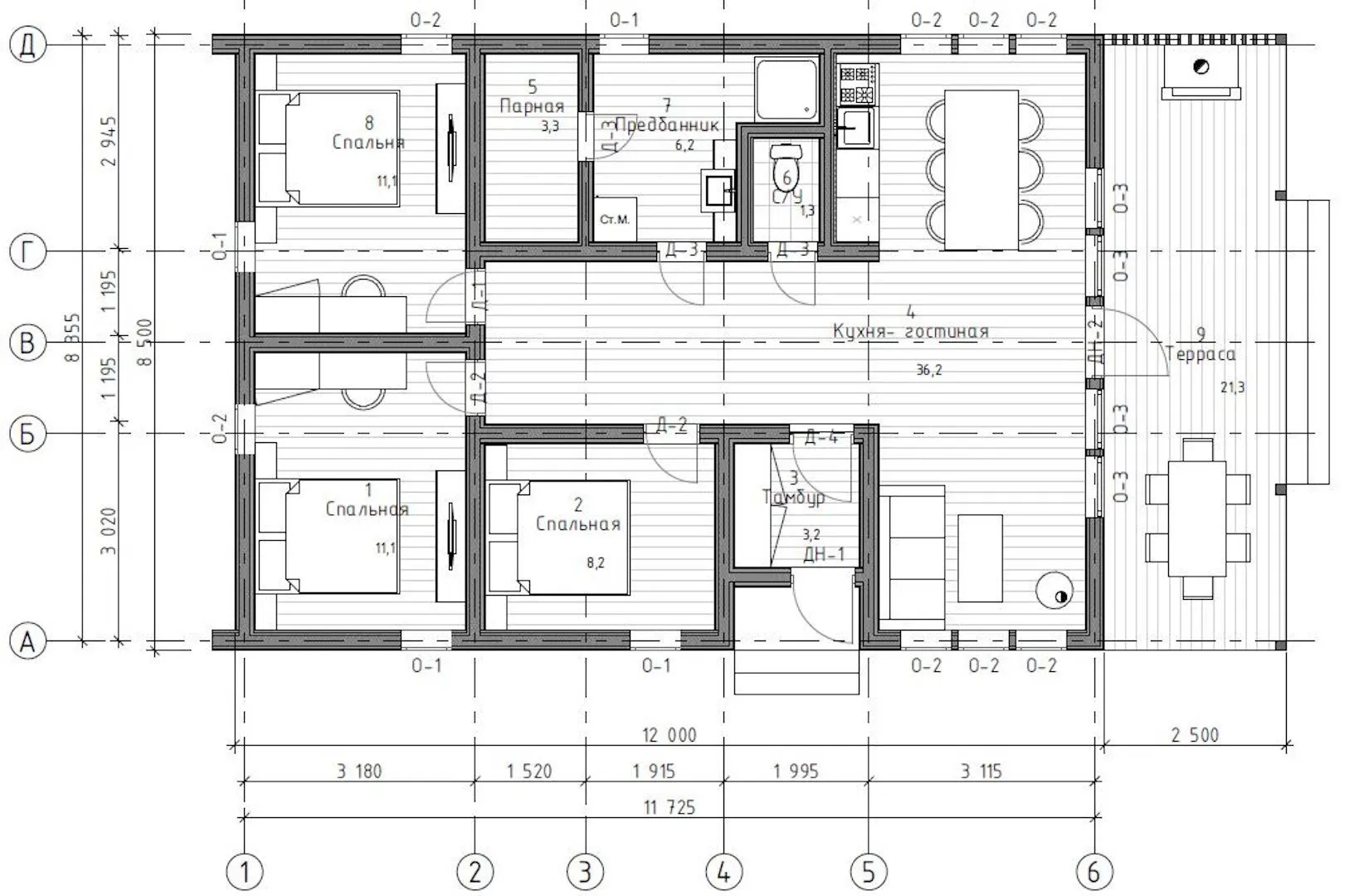
Одноэтажный барнхаус на 3 спальни и сауну LATO-100

Стоимость проекта от:
36 000 ₽
БЕСПЛАТНО! ПРИ ЗАКАЗЕ СТРОИТЕЛЬСТВА
Стоимость строительства от:
5 398 800 ₽
Артикул ART-11421
Дата 25.12.2025
Архитектурный стиль Барнхаус
Количество надземных этажей 1
Круглогодичное проживание Да
Площадь дома 80 м2
Санузлы 1
Спальни 3

Описание

Насладитесь уютом и теплом настоящего барнхауса, спроектированного как идеальный уголок для круглогодичного отдыха. Эта однократная площадка, приправленная атмосферой деревенской просторы, располагает тремя просторными спальнями, где можно отдохнуть после активных дней, и собственной сауной LATO‑100, которая превратит ваш дом в настоящий спа‑космос. Внутренний дизайн сочетает в себе элегантность классического барнхауса и практичность современных решений: деревянные каркасы стен придают дому естественное тепло, а двускатная крыша добавляет нотки традиционного шутского очарования. Отсутствие балконов и веранд делает пространство ещё более приватным, а наличие уютной террасы предлагает вам идеальное место, чтобы наблюдать за рассветом и закатом, наслаждаясь свежим воздухом. В этом доме каждый элемент продуман до мелочей: от продуманного освещения до аккуратных отделок, которые подчёркивают лёгкую, но при этом сильную эстетику барнхауса. Пригласите туда свою семейную компанию, друзей или просто насладитесь тишиной в вашем собственном уголке. Ощутите, как простота и функциональность этой деревянной жемчужины превращают повседневность в истинный праздник уюта и комфорта. Это идеальный выбор для тех, кто ценит неповторимый дух деревни, не отказываясь при этом от современных удобств и комфортных условий проживания.

Характеристики дома

Архитектурный стиль
Автоматизированное регулирование параметров теплоносителя
-
Балконы/лоджии
Отсутствуют
Чердачное помещение
Нет
Датчики протечки воды
-
Эксплуатируемая или зеленая кровля
-
Электроснабжение
Индивидуальное
Газоснабжение
Не предусмотрено
Изоляция воздушного шума
-
Камин
Да
Класс энергоэффективности
-
Класс энергосбережения
-
Количество надземных этажей
1
Круглогодичное проживание
Да
Материал кровли
Металлические листовые гофрированные профили
Материал перекрытий
Деревянные
Материал внешних стен
Материал внутренних перегородок
Деревянные
Модульное строительство с конструкциями заводского изготовления
Нет
Объем надземной части
-
Основной материал фасадов
Планкен
Отопление
Индивидуальное
Площадь дома
80 м2
Площадь застройки
123 м2
Подвальное помещение
Нет
Показатель компактности здания
-
Приборы учета тепловой энергии
-
Пристроенный гараж/крытая автостоянка
Нет
Противопожарная система
Нет
Санузлы
1
Совмещенная кухня-гостиная
Да
Спальни
3
Терраса
Да
Тип фундамента
Свайно-ростверковый
Тип кровли
Толщина внешних стен
275 мм
Толщина внутренних перегородок
250 мм
Улучшенные шумовые характеристики
-
Вентиляция
2 варианта
Веранда
Нет
Водоотведение
Локальные очистные сооружения
Водоснабжение
Индивидуальное
Высота дома
4.5 м
Высота потолков
4 м

Планировка

Фасад дома

Александр

Закажите выезд инженера

Александр

Выездной инженер
Закажите выезд инженера для точной диагностики и профессиональной консультации по инженерным системам. Специалист приедет в удобное время, проведёт осмотр, рассчитает стоимость работ и подберёт оптимальные решения для вашего дома.


    Похожие проекты

    Ипотека и
    рассрочка
    Каркасный дом «Эрвин»
    Стоимость от:
    3 710 080
    Проект от: 28 800
    Этажей 1
    Санузлы 1
    Спальни 2
    Смотреть
    Ипотека и
    рассрочка
    Дом из клееного бруса по проекту БД-106
    Стоимость от:
    6 600 880
    Проект от: 46 800
    Этажей 1
    Санузлы 2
    Спальни 3
    Смотреть
    Ипотека и
    рассрочка
    S 2-125
    Стоимость от:
    8 972 160
    Проект от: 55 800
    Этажей 2
    Санузлы 2
    Спальни 4
    Смотреть
    Ипотека и
    рассрочка
    Гранит 101
    Стоимость от:
    8 403 780
    Проект от: 53 550
    Этажей 1
    Санузлы 1
    Спальни 3
    Смотреть
    Ипотека и
    рассрочка
    Афрейм-56
    Стоимость от:
    3 814 260
    Проект от: 29 250
    Этажей 2
    Санузлы 1
    Спальни 1
    Смотреть
    Ипотека и
    рассрочка
    ЦМС Рошель
    Стоимость от:
    13 528 080
    Проект от: 88 650
    Этажей 2
    Санузлы 3
    Спальни 4
    Смотреть

    Как узнать стоимость дома

    back
    Оставляете заявку
    Вы заполняете форму на сайте или звоните нам. Менеджер Лайвкрафт связывается с вами для уточнения деталей: тип дома, площадь, материалы, участок строительства.
    back
    Консультация и подбор решения
    Наш специалист помогает выбрать оптимальный тип дома и конструкцию с учётом бюджета, сроков и целей — будь то дом для постоянного проживания или дача.
    back
    Расчёт предварительной стоимости
    Инженер делает первичный расчёт стоимости строительства по вашим параметрам: фундамент, коробка, кровля, отделка. Вы получаете смету с разбивкой по этапам.
    back
    Корректировка и утверждение сметы
    При необходимости вносим изменения — например, замену материалов или сокращение этапов. После согласования формируется окончательная фиксированная смета.
    back
    Заключение договора и старт работ
    После утверждения сметы заключаем официальный договор с гарантией. Вы получаете прозрачный график и точную стоимость — без скрытых расходов.

    Заказать конусльтацию по:Одноэтажный барнхаус на 3 спальни и сауну LATO-100

    Фото 1 Одноэтажный барнхаус на 3 спальни и сауну LATO-100


      Наши
      контакты

      Дмитров
      Опорный проезд 28Б
      (индустриальный парк Ниагара)
      9:00 до 18:00

      Корзина