4.9
Рейтинг на основании 120 отзывов
Дмитров
Опорный проезд 28Б
(индустриальный парк Ниагара)
Бренд "Дмитров-Дело" c 2008 года на рынке строительства в Дмитрове
Звоните 9:00 до 18:00 8 (915) 055-33-61
Бренд "Дмитров-Дело" c 2008 года на рынке строительства в Дмитрове

Одноэтажный дом 108м2

Стоимость проекта от:
48 600 ₽
БЕСПЛАТНО! ПРИ ЗАКАЗЕ СТРОИТЕЛЬСТВА
Стоимость строительства от:
6 260 760 ₽
Артикул ART-16676
Дата 26.12.2025
Архитектурный стиль Классический
Количество надземных этажей 1
Круглогодичное проживание Да
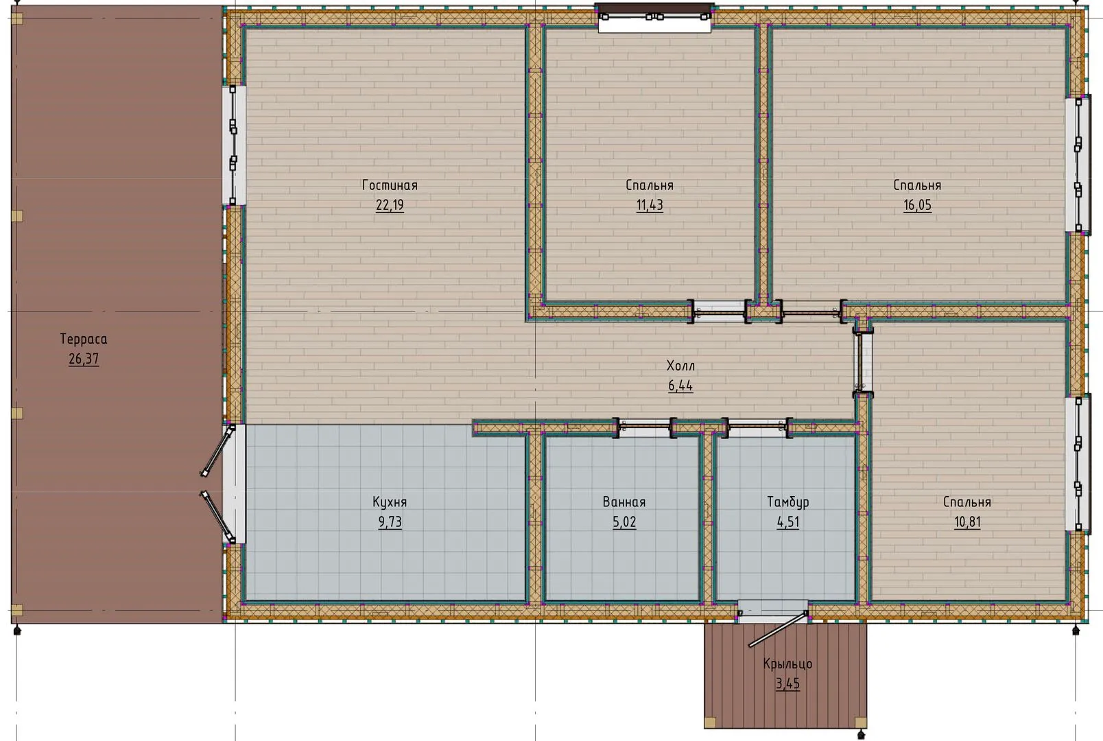
Площадь дома 108 м2
Санузлы 1
Спальни 3

Описание

В сердце тихого городка ждет великолепный одноэтажный дом площадью 108 м², который приглашает вас окунуться в атмосферу уюта и простора. Его классический фасад, выполненный в традиционном деревянно‑каркасном исполнении, мгновенно раскрывает богатую историю времени и заботы о каждой детали. Гладкие линии крыши в два ската, мягко контурируют пространство, создавая ощущение гармонии и гармоничного баланса со природой вокруг. Данный дом - идеальное место для круглогодичного проживания. Внутреннее пространство разделено на уютные, светлые зоны, где каждый угол наполнен теплом и спокойствием. Вместо балконов и веранд здесь выделяется просторная терраса, позволяющая наслаждаться свежим воздухом и видами, а чердачное помещение открывает двери к дополнительному пространству, которое можно использовать как мастерскую, детскую игровую площадку или кабинет. Благодаря отсутствию пристроенных гаражей, хозяева могут выбирать идеальный вариант автостоянки, сохраняя чистоту и порядок в прилегающей зоне. Каждая деталь этого дома говорит о заботе о комфорте и благополучии. Плотно изолированные деревянные стены сохраняют тепло внутри, а просторный, светлый интерьер делает дом местом, где хочется проводить каждый день. Это не просто жильё — это ваш новый образ жизни, где классика встречается с современным уютом, а каждое утро начинается с вдохновляющего солнечного света, падающего сквозь большие окна. Если вы ищете дом, где можно почувствовать себя дома уже с самого первого шага, этот уютный одноэтажный дом станет идеальным выбором.

Характеристики дома

Архитектурный стиль
Автоматизированное регулирование параметров теплоносителя
Нет
Балконы/лоджии
Отсутствуют
Чердачное помещение
Да
Датчики протечки воды
Нет
Эксплуатируемая или зеленая кровля
Нет
Электроснабжение
Не предусмотрено
Газоснабжение
Не предусмотрено
Изоляция воздушного шума
Нет
Камин
Нет
Класс энергоэффективности
-
Класс энергосбережения
-
Количество надземных этажей
1
Круглогодичное проживание
Да
Материал кровли
Металлочерепица
Материал перекрытий
Деревянные
Материал внешних стен
Материал внутренних перегородок
Деревянные
Модульное строительство с конструкциями заводского изготовления
Нет
Объем надземной части
322 м3
Основной материал фасадов
Фасадная плитка
Отопление
Индивидуальное
Площадь дома
108 м2
Площадь застройки
138 м2
Подвальное помещение
Нет
Показатель компактности здания
-
Приборы учета тепловой энергии
Нет
Пристроенный гараж/крытая автостоянка
Нет
Противопожарная система
Нет
Санузлы
1
Совмещенная кухня-гостиная
Да
Спальни
3
Терраса
Да
Тип фундамента
Свайный
Тип кровли
Толщина внешних стен
200 мм
Толщина внутренних перегородок
100 мм
Улучшенные шумовые характеристики
Нет
Вентиляция
Естественная
Веранда
Нет
Водоотведение
Не предусмотрено
Водоснабжение
Не предусмотрено
Высота дома
5.01 м
Высота потолков
2.87 м

Планировка

Фасад дома

Александр

Закажите выезд инженера

Александр

Выездной инженер
Закажите выезд инженера для точной диагностики и профессиональной консультации по инженерным системам. Специалист приедет в удобное время, проведёт осмотр, рассчитает стоимость работ и подберёт оптимальные решения для вашего дома.


    Похожие проекты

    Ипотека и
    рассрочка
    Садовод 7х9
    Стоимость от:
    3 237 080
    Проект от: 25 200
    Этажей 1
    Санузлы 1
    Спальни 2
    Смотреть
    Ипотека и
    рассрочка
    Проект дома «Любава»
    Стоимость от:
    11 264 760
    Проект от: 78 300
    Этажей 2
    Санузлы 2
    Спальни 4
    Смотреть
    Ипотека и
    рассрочка
    Загородный дом А-фрейм 17
    Стоимость от:
    5 215 680
    Проект от: 32 400
    Этажей 2
    Санузлы 1
    Спальни 3
    Смотреть
    Ипотека и
    рассрочка
    Нельсон
    Стоимость от:
    372 240
    Проект от: 63 450
    Этажей 2
    Санузлы 2
    Спальни 3
    Смотреть
    Ипотека и
    рассрочка
    Райго 150
    Стоимость от:
    8 991 000
    Проект от: 67 500
    Этажей 2
    Санузлы 2
    Спальни 4
    Смотреть
    Ипотека и
    рассрочка
    Дом с мансардным этажом «Батур»
    Стоимость от:
    6 006 240
    Проект от: 38 700
    Этажей 2
    Санузлы 2
    Спальни 3
    Смотреть

    Как узнать стоимость дома

    back
    Оставляете заявку
    Вы заполняете форму на сайте или звоните нам. Менеджер Лайвкрафт связывается с вами для уточнения деталей: тип дома, площадь, материалы, участок строительства.
    back
    Консультация и подбор решения
    Наш специалист помогает выбрать оптимальный тип дома и конструкцию с учётом бюджета, сроков и целей — будь то дом для постоянного проживания или дача.
    back
    Расчёт предварительной стоимости
    Инженер делает первичный расчёт стоимости строительства по вашим параметрам: фундамент, коробка, кровля, отделка. Вы получаете смету с разбивкой по этапам.
    back
    Корректировка и утверждение сметы
    При необходимости вносим изменения — например, замену материалов или сокращение этапов. После согласования формируется окончательная фиксированная смета.
    back
    Заключение договора и старт работ
    После утверждения сметы заключаем официальный договор с гарантией. Вы получаете прозрачный график и точную стоимость — без скрытых расходов.

    Заказать конусльтацию по:Одноэтажный дом 108м2

    Фото 1 Одноэтажный дом 108м2


      Наши
      контакты

      Дмитров
      Опорный проезд 28Б
      (индустриальный парк Ниагара)
      9:00 до 18:00

      Корзина