4.9
Рейтинг на основании 120 отзывов
Дмитров
Опорный проезд 28Б
(индустриальный парк Ниагара)
Бренд "Дмитров-Дело" c 2008 года на рынке строительства в Дмитрове
Звоните 9:00 до 18:00 8 (915) 055-33-61
Бренд "Дмитров-Дело" c 2008 года на рынке строительства в Дмитрове

Одноэтажный дом Агат

Стоимость проекта от:
32 400 ₽
БЕСПЛАТНО! ПРИ ЗАКАЗЕ СТРОИТЕЛЬСТВА
Стоимость строительства от:
5 735 840 ₽
Артикул ART-17237
Дата 26.12.2025
Архитектурный стиль Европейский
Количество надземных этажей 1
Круглогодичное проживание Да
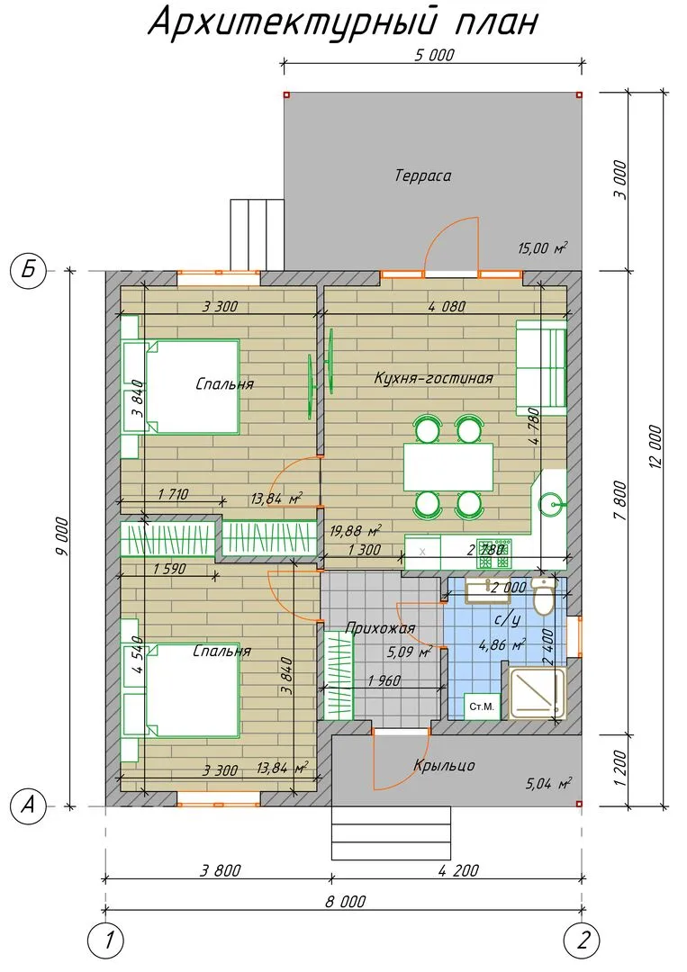
Площадь дома 72 м2
Санузлы 1
Спальни 2

Описание

**Дом «Агат» – уют, стиль и простота в одном объёме** Этот одноквартирный дом, состоящий из одного надземного этажа, воплощает в себе идеальный баланс между европейской элегантностью и практичностью современного быта. Керамзитобетонные блоки, изогнутые крыши вальмовой формы и простая, но изысканная обшивка создают ощущение тепла и непринужденной роскоши, будто вы живёте в спокойном шотландском поместье, но с доступностью и всеми удобствами современной жизни. Уютные двери открывают вам просторный и светлый внутренний мир, где каждый уголок пропитан гармонией и вниманием к деталям. Терраса у «Агата» – настоящая жемчужина для тех, кто ценит связь с природой и простые удовольствия. Здесь вы можете расправить пальто после дождя, насладиться лучами утра, устроить вечерний чай или просто заглянуть в окрестности. Круглогодичное проживание гарантирует вам комфорт в любое время года: утепленные стены, надёжная система отопления и защита от холодных ветров делают этот дом идеальным выбором для тех, кто ищет спокойствие без лишних забот. В «Агате» нет балконов и веранд, но есть просторный внутренний двор, который придает дому ощущение открытости и безмятежности. Пусть «Агат» станет вашим личным уголком, где каждая деталь продумана так, чтобы дарить вам уют и спокойствие в каждом мгновении жизни. Этот дом – воплощение простого европейского шика, где архитектура и тепло сердца идут рука об руку.

Характеристики дома

Архитектурный стиль
Автоматизированное регулирование параметров теплоносителя
Нет
Балконы/лоджии
Отсутствуют
Чердачное помещение
Нет
Датчики протечки воды
Нет
Эксплуатируемая или зеленая кровля
Нет
Электроснабжение
Центральное
Газоснабжение
Не предусмотрено
Изоляция воздушного шума
Нет
Камин
Нет
Класс энергоэффективности
-
Класс энергосбережения
-
Количество надземных этажей
1
Круглогодичное проживание
Да
Материал кровли
Металлочерепица
Материал перекрытий
Деревянные
Материал внешних стен
Материал внутренних перегородок
Блочные
Модульное строительство с конструкциями заводского изготовления
Нет
Объем надземной части
523 м3
Основной материал фасадов
Штукатурка
Отопление
Индивидуальное
Площадь дома
72 м2
Площадь застройки
89 м2
Подвальное помещение
Нет
Показатель компактности здания
-
Приборы учета тепловой энергии
Нет
Пристроенный гараж/крытая автостоянка
Нет
Противопожарная система
Нет
Санузлы
1
Совмещенная кухня-гостиная
Да
Спальни
2
Терраса
Да
Тип фундамента
Ленточный
Толщина внешних стен
250 мм
Толщина внутренних перегородок
200 мм
Улучшенные шумовые характеристики
Нет
Вентиляция
2 варианта
Веранда
Нет
Водоотведение
Локальные очистные сооружения
Водоснабжение
Индивидуальное
Высота дома
5.82 м
Высота потолков
2.8 м

Планировка

Фасад дома

Александр

Закажите выезд инженера

Александр

Выездной инженер
Закажите выезд инженера для точной диагностики и профессиональной консультации по инженерным системам. Специалист приедет в удобное время, проведёт осмотр, рассчитает стоимость работ и подберёт оптимальные решения для вашего дома.


    Похожие проекты

    Ипотека и
    рассрочка
    Авторский проект «Пилион 1.0»
    Стоимость от:
    7 961 760
    Проект от: 51 300
    Этажей 2
    Санузлы 2
    Спальни 3
    Смотреть
    Ипотека и
    рассрочка
    ВС93
    Стоимость от:
    6 567 660
    Проект от: 41 850
    Этажей 1
    Санузлы 2
    Спальни 3
    Смотреть
    Ипотека и
    рассрочка
    Загородный дом «УРБАН»
    Стоимость от:
    19 195 200
    Проект от: 121 500
    Этажей 2
    Санузлы 5
    Спальни 4
    Смотреть
    Ипотека и
    рассрочка
    Стандарт
    Стоимость от:
    8 545 020
    Проект от: 54 450
    Этажей 1
    Санузлы 2
    Спальни 2
    Смотреть
    Ипотека и
    рассрочка
    Двухэтажный загородный дом «Заря»
    Стоимость от:
    8 857 800
    Проект от: 66 600
    Этажей 2
    Санузлы 2
    Спальни 4
    Смотреть
    Ипотека и
    рассрочка
    Дружба — 83/2
    Стоимость от:
    6 019 920
    Проект от: 37 350
    Этажей 2
    Санузлы 2
    Спальни 3
    Смотреть

    Как узнать стоимость дома

    back
    Оставляете заявку
    Вы заполняете форму на сайте или звоните нам. Менеджер Лайвкрафт связывается с вами для уточнения деталей: тип дома, площадь, материалы, участок строительства.
    back
    Консультация и подбор решения
    Наш специалист помогает выбрать оптимальный тип дома и конструкцию с учётом бюджета, сроков и целей — будь то дом для постоянного проживания или дача.
    back
    Расчёт предварительной стоимости
    Инженер делает первичный расчёт стоимости строительства по вашим параметрам: фундамент, коробка, кровля, отделка. Вы получаете смету с разбивкой по этапам.
    back
    Корректировка и утверждение сметы
    При необходимости вносим изменения — например, замену материалов или сокращение этапов. После согласования формируется окончательная фиксированная смета.
    back
    Заключение договора и старт работ
    После утверждения сметы заключаем официальный договор с гарантией. Вы получаете прозрачный график и точную стоимость — без скрытых расходов.

    Заказать конусльтацию по:Одноэтажный дом Агат

    Фото 1 Одноэтажный дом Агат


      Наши
      контакты

      Дмитров
      Опорный проезд 28Б
      (индустриальный парк Ниагара)
      9:00 до 18:00

      Корзина