4.9
Рейтинг на основании 120 отзывов
Дмитров
Опорный проезд 28Б
(индустриальный парк Ниагара)
Бренд "Дмитров-Дело" c 2008 года на рынке строительства в Дмитрове
Звоните 9:00 до 18:00 8 (915) 055-33-61
Бренд "Дмитров-Дело" c 2008 года на рынке строительства в Дмитрове

Одноэтажный дом БАРН-167

Стоимость проекта от:
22 950 ₽
БЕСПЛАТНО! ПРИ ЗАКАЗЕ СТРОИТЕЛЬСТВА
Стоимость строительства от:
2 835 855 ₽
Артикул ART-15419
Дата 25.12.2025
Архитектурный стиль Барнхаус
Количество надземных этажей 1
Круглогодичное проживание Да
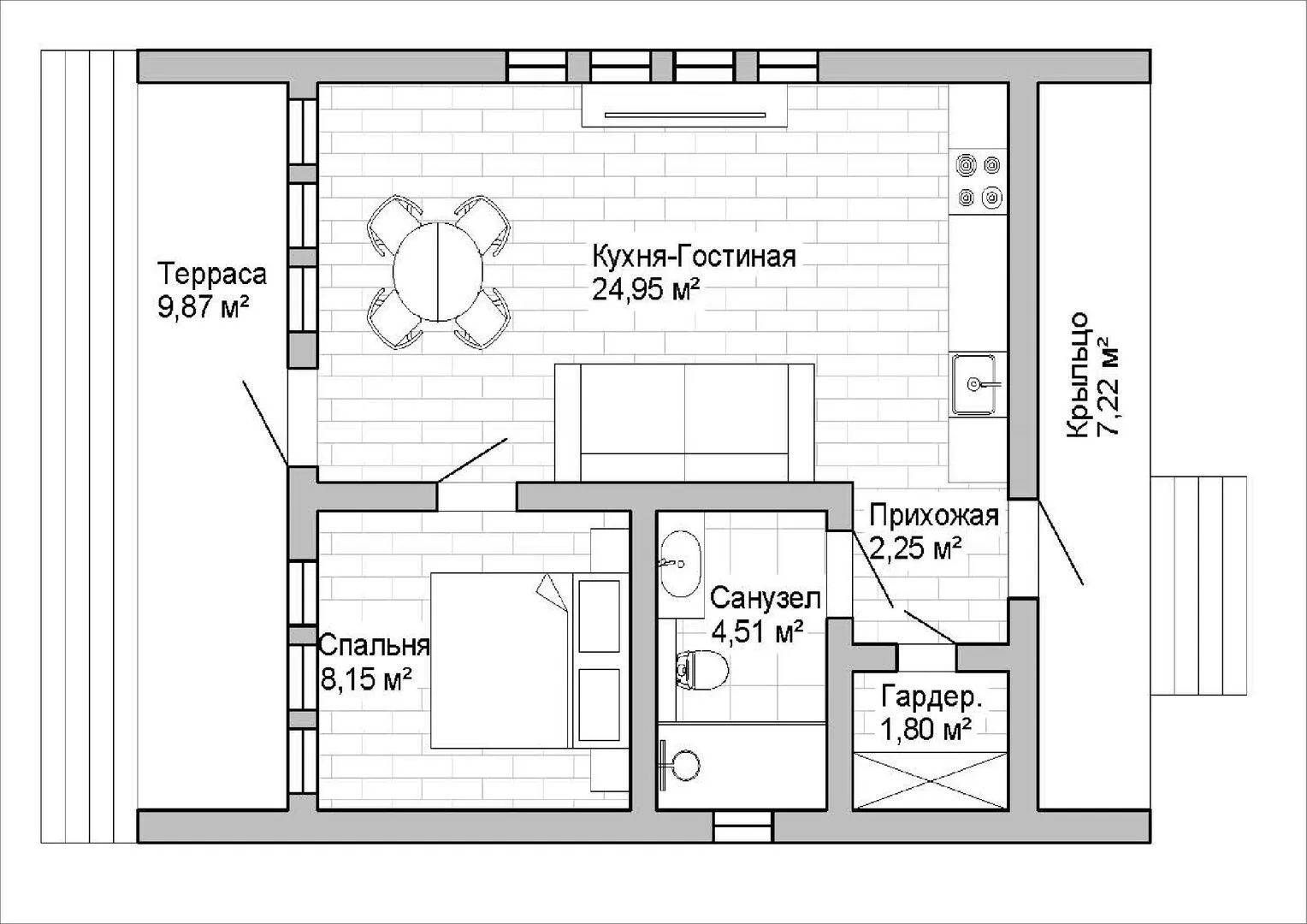
Площадь дома 51 м2
Санузлы 1
Спальни 1

Описание

Небольшой уютный уголок в стиле барнхаус, который будто сам вырвался с обложки романтического журнала о загородной жизни. Один уровень, но всё пространство ощущается как бесконечное открытое поле: открытая кухня, просторная гостиная и светлый кабинет с большим окном, через которое проникает мягкий, золотистый свет рассвета. Весь дом сконструирован из деревянных каркасов, а двойной скат крыши добавляет элегантность и характер, словно это был бы настоящий трактор, но в исполнении, где каждая деталь продумана до мелочей. Круглогодичное проживание здесь не просто возможно – оно хочется. Плотные древесные стенки держат тепло в холодные зимние месяцы, а в летние дожди сохраняют прохладу внутри. При этом в душе всегда ощущается натуральный аромат дерева и свежего воздуха. Снаружи – простая, но эффектная терраса, на которой можно устроить романтический ужин или насладиться утренним кофе, наблюдая, как солнце поднимается над горизонтом. Гости могут почувствовать, что здесь нет места суете: нет балконов, веранд или гаражей, которые отвлекают внимание – все внимание сосредоточено на гармонии природы и домашнего уюта. Этот дом – идеальный выбор для тех, кто ищет спокойствие и функциональность без лишних деталей. Если вы стремитесь к жизни, где главное – простые удовольствия, дружелюбное окружение и ощущение собственного уюта, то этот одноэтажный барнхаус станет вашим новым домом. Заходите и почувствуйте, насколько красиво может быть ваш мир в окружении тёплого дерева, простых форм и живописной природы.

Характеристики дома

Архитектурный стиль
Автоматизированное регулирование параметров теплоносителя
Да
Балконы/лоджии
Отсутствуют
Чердачное помещение
Нет
Датчики протечки воды
Нет
Эксплуатируемая или зеленая кровля
Нет
Электроснабжение
Индивидуальное
Газоснабжение
Не предусмотрено
Изоляция воздушного шума
Нет
Камин
Нет
Класс энергоэффективности
-
Класс энергосбережения
-
Количество надземных этажей
1
Круглогодичное проживание
Да
Материал кровли
Металлические листовые гофрированные профили
Материал перекрытий
Деревянные
Материал внешних стен
Материал внутренних перегородок
Деревянные
Модульное строительство с конструкциями заводского изготовления
Нет
Объем надземной части
350 м3
Основной материал фасадов
Фальцевая кровля кликфальц
Отопление
Индивидуальное
Площадь дома
51 м2
Площадь застройки
74 м2
Подвальное помещение
Нет
Показатель компактности здания
-
Приборы учета тепловой энергии
Нет
Пристроенный гараж/крытая автостоянка
Нет
Противопожарная система
Нет
Санузлы
1
Совмещенная кухня-гостиная
Да
Спальни
1
Терраса
Да
Тип фундамента
Свайно-винтовой
Тип кровли
Толщина внешних стен
350 мм
Толщина внутренних перегородок
274 мм
Улучшенные шумовые характеристики
Нет
Вентиляция
Принудительная
Веранда
Нет
Водоотведение
Не предусмотрено
Водоснабжение
Индивидуальное
Высота дома
4.5 м
Высота потолков
3.9 м

Планировка

Фасад дома

Александр

Закажите выезд инженера

Александр

Выездной инженер
Закажите выезд инженера для точной диагностики и профессиональной консультации по инженерным системам. Специалист приедет в удобное время, проведёт осмотр, рассчитает стоимость работ и подберёт оптимальные решения для вашего дома.


    Похожие проекты

    Ипотека и
    рассрочка
    Бриг с плоской кровлей
    Стоимость от:
    3 831 520
    Проект от: 25 200
    Этажей 1
    Санузлы 1
    Спальни 1
    Смотреть
    Ипотека и
    рассрочка
    SuperDom 5
    Стоимость от:
    7 792 200
    Проект от: 58 500
    Этажей 2
    Санузлы 2
    Спальни 5
    Смотреть
    Ипотека и
    рассрочка
    22МШ14.01 ROSHINKA
    Стоимость от:
    4 219 765
    Проект от: 32 850
    Этажей 1
    Санузлы 1
    Спальни 2
    Смотреть
    Ипотека и
    рассрочка
    Одноэтажный жилой дом Лаос 65 кв.м.
    Стоимость от:
    4 889 500
    Проект от: 29 250
    Этажей 1
    Санузлы 1
    Спальни 2
    Смотреть
    Ипотека и
    рассрочка
    Малина СИП 58
    Стоимость от:
    4 368 045
    Проект от: 31 050
    Этажей 1
    Санузлы 1
    Спальни 2
    Смотреть
    Ипотека и
    рассрочка
    Каркасный дом Адаль 83
    Стоимость от:
    4 797 815
    Проект от: 37 350
    Этажей 1
    Санузлы 1
    Спальни 2
    Смотреть

    Как узнать стоимость дома

    back
    Оставляете заявку
    Вы заполняете форму на сайте или звоните нам. Менеджер Лайвкрафт связывается с вами для уточнения деталей: тип дома, площадь, материалы, участок строительства.
    back
    Консультация и подбор решения
    Наш специалист помогает выбрать оптимальный тип дома и конструкцию с учётом бюджета, сроков и целей — будь то дом для постоянного проживания или дача.
    back
    Расчёт предварительной стоимости
    Инженер делает первичный расчёт стоимости строительства по вашим параметрам: фундамент, коробка, кровля, отделка. Вы получаете смету с разбивкой по этапам.
    back
    Корректировка и утверждение сметы
    При необходимости вносим изменения — например, замену материалов или сокращение этапов. После согласования формируется окончательная фиксированная смета.
    back
    Заключение договора и старт работ
    После утверждения сметы заключаем официальный договор с гарантией. Вы получаете прозрачный график и точную стоимость — без скрытых расходов.

    Заказать конусльтацию по:Одноэтажный дом БАРН-167

    Фото 1 Одноэтажный дом БАРН-167


      Наши
      контакты

      Дмитров
      Опорный проезд 28Б
      (индустриальный парк Ниагара)
      9:00 до 18:00

      Корзина