4.9
Рейтинг на основании 120 отзывов
Дмитров
Опорный проезд 28Б
(индустриальный парк Ниагара)
Бренд "Дмитров-Дело" c 2008 года на рынке строительства в Дмитрове
Звоните 9:00 до 18:00 8 (915) 055-33-61
Бренд "Дмитров-Дело" c 2008 года на рынке строительства в Дмитрове

Одноэтажный дом ДНК Ш135-123

Стоимость проекта от:
60 750 ₽
БЕСПЛАТНО! ПРИ ЗАКАЗЕ СТРОИТЕЛЬСТВА
Стоимость строительства от:
10 739 300 ₽
Артикул ART-17631
Дата 26.12.2025
Архитектурный стиль Классический
Количество надземных этажей 1
Круглогодичное проживание Да
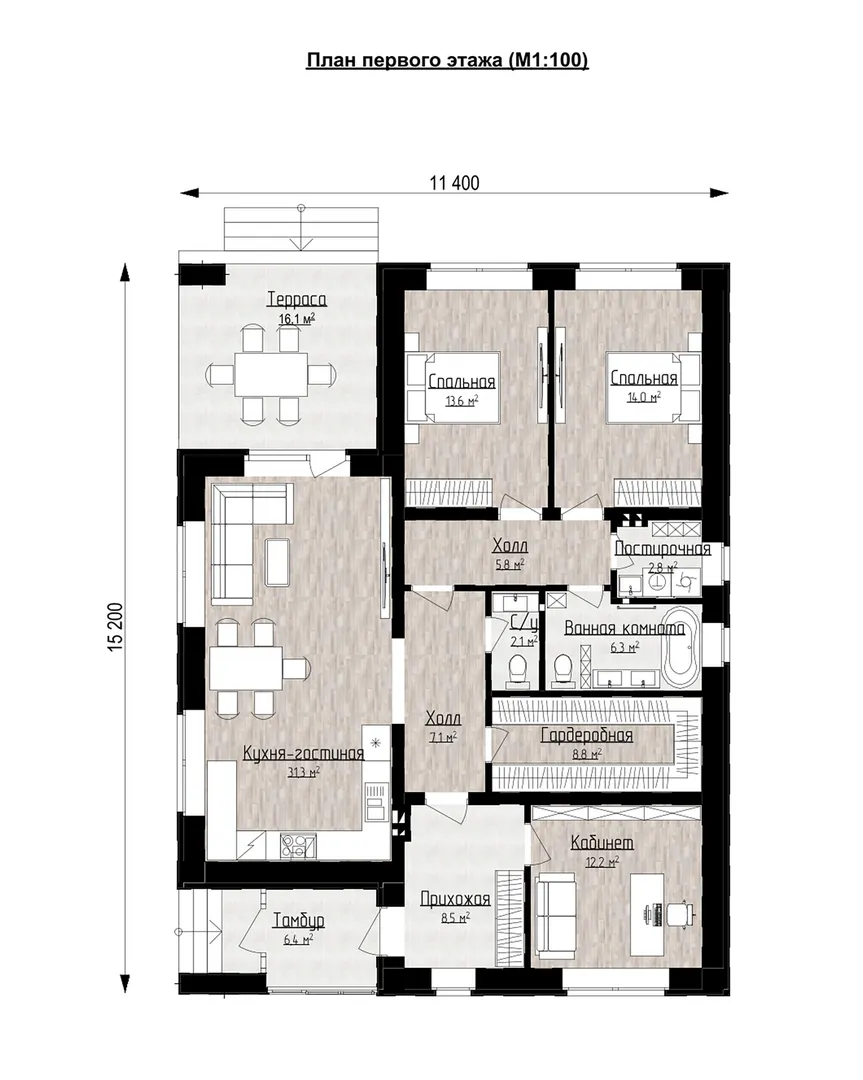
Площадь дома 135 м2
Санузлы 2
Спальни 3

Описание

Добро пожаловать в ваш новый уютный уголок – одноэтажный дом ДНК Ш135‑123, воплощающий идеальное сочетание классического шарма и современных удобств. Он создан из высококачественных газобетонных блоков, которые не только обеспечивают отличную теплоизоляцию, но и дарят ощущение прочности и надёжности. Классический архитектурный стиль подчёркивает элегантность фасада, а четырёхскатная, вальмовая крыша придаёт ему величественный вид, который станет настоящим украшением любого участка. Удобство и комфорт – приоритеты этого дома. Отсутствие лестниц благодаря единому надземному этажу делает его особенно привлекательным для семей с детьми и пожилых людей. Вместе с просторным открытым внутренним пространством гостинная, кухня и уютные спальни легко адаптируются под ваши потребности. Чердачное помещение, прислуживая дополнительному хранилищу или будущему проекту на дому, придаёт дому практичность и потенциал. Терраса, открывающая панорамный вид на ваш персональный ландшафтный участок, превращает каждую вечернюю прогулку в настоящее наслаждение. Выбирая этот дом, вы получаете не только эстетическое удовольствие, но и долгосрочную инвестицию в ваше благополучие. Всё, что нужно для кругового проживания: классический стиль, надёжные материалы, просторный внутренний мир и практичные решения. Не упустите шанс стать хозяином этого идеального места, где каждый день будет радовать комфортом и уютом. Позвоните сейчас, и мы поможем вам воплотить вашу мечту в реальность.

Характеристики дома

Архитектурный стиль
Автоматизированное регулирование параметров теплоносителя
Да
Балконы/лоджии
Отсутствуют
Чердачное помещение
Да
Датчики протечки воды
Нет
Эксплуатируемая или зеленая кровля
Нет
Электроснабжение
Центральное
Газоснабжение
2 варианта
Изоляция воздушного шума
Да
Камин
Нет
Класс энергоэффективности
A
Класс энергосбережения
A
Количество надземных этажей
1
Круглогодичное проживание
Да
Материал кровли
Металлочерепица
Материал перекрытий
Сборно-монолитные железобетонные
Материал внешних стен
Материал внутренних перегородок
Кирпичные
Модульное строительство с конструкциями заводского изготовления
Нет
Объем надземной части
687 м3
Основной материал фасадов
Штукатурка
Отопление
2 варианта
Площадь дома
135 м2
Площадь застройки
173 м2
Подвальное помещение
Нет
Показатель компактности здания
0.8
Приборы учета тепловой энергии
Да
Пристроенный гараж/крытая автостоянка
Нет
Противопожарная система
Нет
Санузлы
2
Совмещенная кухня-гостиная
Да
Спальни
3
Терраса
Да
Тип фундамента
Ленточный
Толщина внешних стен
400 мм
Толщина внутренних перегородок
120 мм
Улучшенные шумовые характеристики
Да
Вентиляция
Естественная
Веранда
Нет
Водоотведение
2 варианта
Водоснабжение
2 варианта
Высота дома
6.1 м
Высота потолков
3 м

Планировка

Фасад дома

Александр

Закажите выезд инженера

Александр

Выездной инженер
Закажите выезд инженера для точной диагностики и профессиональной консультации по инженерным системам. Специалист приедет в удобное время, проведёт осмотр, рассчитает стоимость работ и подберёт оптимальные решения для вашего дома.


    Похожие проекты

    Ипотека и
    рассрочка
    Каркасный дом Бергамо 102
    Стоимость от:
    6 474 160
    Проект от: 50 400
    Этажей 1
    Санузлы 1
    Спальни 3
    Смотреть
    Ипотека и
    рассрочка
    Млечный путь
    Стоимость от:
    12 260 160
    Проект от: 73 800
    Этажей 2
    Санузлы 3
    Спальни 7
    Смотреть
    Ипотека и
    рассрочка
    Проект ГБ-120
    Стоимость от:
    8 380 800
    Проект от: 54 000
    Этажей 2
    Санузлы 2
    Спальни 4
    Смотреть
    Ипотека и
    рассрочка
    №10-06-21 ЭП
    Стоимость от:
    9 722 400
    Проект от: 58 500
    Этажей 2
    Санузлы 2
    Спальни 3
    Смотреть
    Ипотека и
    рассрочка
    Томте
    Стоимость от:
    9 957 420
    Проект от: 63 450
    Этажей 1
    Санузлы 2
    Спальни 4
    Смотреть
    Ипотека и
    рассрочка
    Проект дома 001-13
    Стоимость от:
    16 575 120
    Проект от: 104 850
    Этажей 2
    Санузлы 3
    Спальни 5
    Смотреть

    Как узнать стоимость дома

    back
    Оставляете заявку
    Вы заполняете форму на сайте или звоните нам. Менеджер Лайвкрафт связывается с вами для уточнения деталей: тип дома, площадь, материалы, участок строительства.
    back
    Консультация и подбор решения
    Наш специалист помогает выбрать оптимальный тип дома и конструкцию с учётом бюджета, сроков и целей — будь то дом для постоянного проживания или дача.
    back
    Расчёт предварительной стоимости
    Инженер делает первичный расчёт стоимости строительства по вашим параметрам: фундамент, коробка, кровля, отделка. Вы получаете смету с разбивкой по этапам.
    back
    Корректировка и утверждение сметы
    При необходимости вносим изменения — например, замену материалов или сокращение этапов. После согласования формируется окончательная фиксированная смета.
    back
    Заключение договора и старт работ
    После утверждения сметы заключаем официальный договор с гарантией. Вы получаете прозрачный график и точную стоимость — без скрытых расходов.

    Заказать конусльтацию по:Одноэтажный дом ДНК Ш135-123

    Фото 1 Одноэтажный дом ДНК Ш135-123


      Наши
      контакты

      Дмитров
      Опорный проезд 28Б
      (индустриальный парк Ниагара)
      9:00 до 18:00

      Корзина