4.9
Рейтинг на основании 120 отзывов
Дмитров
Опорный проезд 28Б
(индустриальный парк Ниагара)
Бренд "Дмитров-Дело" c 2008 года на рынке строительства в Дмитрове
Звоните 9:00 до 18:00 8 (915) 055-33-61
Бренд "Дмитров-Дело" c 2008 года на рынке строительства в Дмитрове

Одноэтажный дом FIXPLANS — 1349

Стоимость проекта от:
55 350 ₽
БЕСПЛАТНО! ПРИ ЗАКАЗЕ СТРОИТЕЛЬСТВА
Стоимость строительства от:
8 686 260 ₽
Артикул ART-20160
Дата 26.12.2025
Архитектурный стиль Европейский
Количество надземных этажей 1
Круглогодичное проживание Да
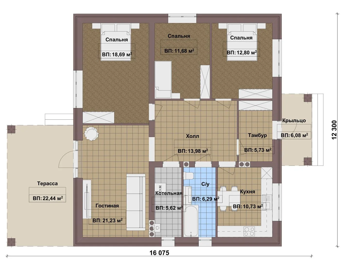
Площадь дома 123 м2
Санузлы 1
Спальни 3

Описание

Один из ваших будущих домиков от FIXPLANS — это гармоничное сочетание классического европейского стиля и современного комфорта, выполненное полностью в чертеже высшего качества. Он легко укроет самые теплые семейные мечты: просторные помещения, безмятежный свет от больших окон и продуманные зоны для отдыха. Благодаря использованию прочных газобетонных блоков внешних стен и надежной четырёхскатной (вальмовой) крыши, ваш дом будет с вами летами и стайками, сохраняя тепло в холодное время и прохладу в летние дни. Признавающийся уютом, дом располагает удобной терраской, где вы сможете наслаждаться утренним кофе или вечерним закатом, а чердачное помещение откроет возможности для создания рабочего уголка, хранилища или маленькой студии творчества. Отсутствие балконов и веранды делает интерьер более открытым и простым, а в отсутствие прикрепленного гаража вы свободно планируете свой задний двор — будь то сад, игровая площадка для детей или даже небольшой бассейн. Это предложение — ваш шанс увидеть, как мечта о идеальном доме становится реальностью без лишних компромиссов. FIXPLANS 1349 приглашает вас не просто строить, а жить, создавая атмосферу, где каждая деталь говорит о заботе и внимании к вашим потребностям. Выберите европейский стиль, прочные материалы и уютные пространства: ваш новый дом уже ждет вашего первого шага в него.

Характеристики дома

Архитектурный стиль
Автоматизированное регулирование параметров теплоносителя
-
Балконы/лоджии
Отсутствуют
Чердачное помещение
Да
Датчики протечки воды
-
Эксплуатируемая или зеленая кровля
-
Электроснабжение
Центральное
Газоснабжение
Центральное
Изоляция воздушного шума
-
Камин
Нет
Класс энергоэффективности
-
Класс энергосбережения
-
Количество надземных этажей
1
Круглогодичное проживание
Да
Материал кровли
Металлочерепица
Материал перекрытий
Деревянные
Материал внешних стен
Материал внутренних перегородок
Пенобетонные
Модульное строительство с конструкциями заводского изготовления
Нет
Объем надземной части
541 м3
Основной материал фасадов
Облицовочный кирпич
Отопление
Индивидуальное
Площадь дома
123 м2
Площадь застройки
135 м2
Подвальное помещение
Нет
Показатель компактности здания
-
Приборы учета тепловой энергии
-
Пристроенный гараж/крытая автостоянка
Нет
Противопожарная система
Нет
Санузлы
1
Совмещенная кухня-гостиная
Нет
Спальни
3
Терраса
Да
Тип фундамента
Плитный
Толщина внешних стен
530 мм
Толщина внутренних перегородок
100 мм
Улучшенные шумовые характеристики
-
Вентиляция
Естественная
Веранда
Нет
Водоотведение
Локальные очистные сооружения
Водоснабжение
Индивидуальное
Высота дома
6 м
Высота потолков
3 м

Планировка

Фасад дома

Александр

Закажите выезд инженера

Александр

Выездной инженер
Закажите выезд инженера для точной диагностики и профессиональной консультации по инженерным системам. Специалист приедет в удобное время, проведёт осмотр, рассчитает стоимость работ и подберёт оптимальные решения для вашего дома.


    Похожие проекты

    Ипотека и
    рассрочка
    Двухэтажный коттедж №299-1
    Стоимость от:
    12 857 280
    Проект от: 77 400
    Этажей 2
    Санузлы 2
    Спальни 5
    Смотреть
    Ипотека и
    рассрочка
    Двухэтажный дом «Гимпи» 61м2
    Стоимость от:
    4 430 640
    Проект от: 27 450
    Этажей 2
    Санузлы 1
    Спальни 2
    Смотреть
    Ипотека и
    рассрочка
    River Hall 76
    Стоимость от:
    6 348 540
    Проект от: 39 150
    Этажей 1
    Санузлы 1
    Спальни 2
    Смотреть
    Ипотека и
    рассрочка
    Загородный дом Green star
    Стоимость от:
    8 474 400
    Проект от: 54 000
    Этажей 1
    Санузлы 2
    Спальни 3
    Смотреть
    Ипотека и
    рассрочка
    Модульный дом CUBA 70 (ВА70)
    Стоимость от:
    4 851 990
    Проект от: 39 150
    Этажей 1
    Санузлы 2
    Спальни 4
    Смотреть
    Ипотека и
    рассрочка
    Уютный дом 178
    Стоимость от:
    12 178 760
    Проект от: 80 100
    Этажей 1
    Санузлы 3
    Спальни 4
    Смотреть

    Как узнать стоимость дома

    back
    Оставляете заявку
    Вы заполняете форму на сайте или звоните нам. Менеджер Лайвкрафт связывается с вами для уточнения деталей: тип дома, площадь, материалы, участок строительства.
    back
    Консультация и подбор решения
    Наш специалист помогает выбрать оптимальный тип дома и конструкцию с учётом бюджета, сроков и целей — будь то дом для постоянного проживания или дача.
    back
    Расчёт предварительной стоимости
    Инженер делает первичный расчёт стоимости строительства по вашим параметрам: фундамент, коробка, кровля, отделка. Вы получаете смету с разбивкой по этапам.
    back
    Корректировка и утверждение сметы
    При необходимости вносим изменения — например, замену материалов или сокращение этапов. После согласования формируется окончательная фиксированная смета.
    back
    Заключение договора и старт работ
    После утверждения сметы заключаем официальный договор с гарантией. Вы получаете прозрачный график и точную стоимость — без скрытых расходов.

    Заказать конусльтацию по:Одноэтажный дом FIXPLANS — 1349

    Фото 1 Одноэтажный дом FIXPLANS — 1349


      Наши
      контакты

      Дмитров
      Опорный проезд 28Б
      (индустриальный парк Ниагара)
      9:00 до 18:00

      Корзина