4.9
Рейтинг на основании 120 отзывов
Дмитров
Опорный проезд 28Б
(индустриальный парк Ниагара)
Бренд "Дмитров-Дело" c 2008 года на рынке строительства в Дмитрове
Звоните 9:00 до 18:00 8 (915) 055-33-61
Бренд "Дмитров-Дело" c 2008 года на рынке строительства в Дмитрове

Одноэтажный дом Floors 80

Стоимость проекта от:
36 450 ₽
БЕСПЛАТНО! ПРИ ЗАКАЗЕ СТРОИТЕЛЬСТВА
Стоимость строительства от:
4 517 370 ₽
Артикул ART-18369
Дата 26.12.2025
Архитектурный стиль Скандинавский
Количество надземных этажей 1
Круглогодичное проживание Да
Площадь дома 81 м2
Санузлы 1
Спальни 3

Описание

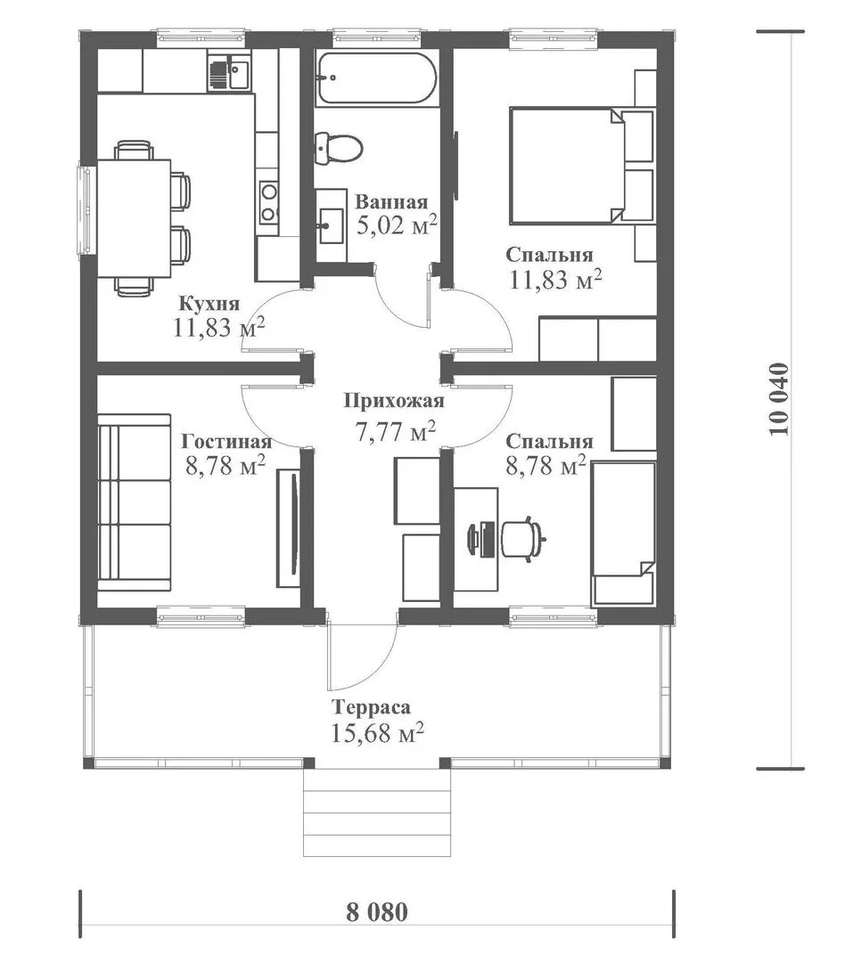
Незабываемый уют и неподдельная простота — так можно охарактеризовать этот очаровательный одноэтажный дом площадью 80 м², выполненный в скандинавском стиле. Легко проникающий свет и открытые пространственные решения создают ощущение простора и свободы. Винтажная деревянная каркасная кладка, подчёркнутая мягкой отделкой, а также изящная двускатная крыша придают фасаду чистую, но в то же время естественную элегантность, которая без труда впишется в любой природный ландшафт. Просторный интерьер, оптимально распределённый по единому уровню, делает этот дом идеальным для круглогодичного проживания: тепло, уют и энергоэффективность в каждой детали. В центре дома находится светлый и функциональный холл, открывающий сразу кухню с обеденной зоной и гостиную, где большие окна пропускают в помещение мягкий естественный свет. Оперативно созданное пространство для отдыха в камере отдыха с панорамными шторками создает волшебную атмосферу, а просторная терраса приглашает к вечерним собраниям и наслаждению свежим воздухом даже в прохладные дни. Отсутствие балконов, лоджий и прицепленного гаража делает дом ещё более спокойным и сдержанным в дизайне. Этот дом — воплощение гармонии между простотой построения и высоким уровнем комфорта. Приглашаем вас оценить его привлекательность лично и сделать ваш новый дом настоящим укрытием от суеты современного мира. Звоните сегодня, чтобы договориться о просмотре и открыть для себя новый стиль жизни!

Характеристики дома

Архитектурный стиль
Автоматизированное регулирование параметров теплоносителя
Нет
Балконы/лоджии
Отсутствуют
Чердачное помещение
Нет
Датчики протечки воды
Нет
Эксплуатируемая или зеленая кровля
Нет
Электроснабжение
Центральное
Газоснабжение
Не предусмотрено
Изоляция воздушного шума
Нет
Камин
Нет
Класс энергоэффективности
-
Класс энергосбережения
-
Количество надземных этажей
1
Круглогодичное проживание
Да
Материал кровли
Фальцевая кровля Кликфальц
Материал перекрытий
Деревянные
Материал внешних стен
Материал внутренних перегородок
Деревянные
Модульное строительство с конструкциями заводского изготовления
Нет
Объем надземной части
381 м3
Основной материал фасадов
Дерево
Отопление
Индивидуальное
Площадь дома
81 м2
Площадь застройки
81 м2
Подвальное помещение
Нет
Показатель компактности здания
-
Приборы учета тепловой энергии
Да
Пристроенный гараж/крытая автостоянка
Нет
Противопожарная система
Нет
Санузлы
1
Совмещенная кухня-гостиная
Нет
Спальни
3
Терраса
Да
Тип фундамента
Свайный
Тип кровли
Толщина внешних стен
225 мм
Толщина внутренних перегородок
175 мм
Улучшенные шумовые характеристики
Нет
Вентиляция
Естественная
Веранда
Нет
Водоотведение
Локальные очистные сооружения
Водоснабжение
Индивидуальное
Высота дома
4.7 м
Высота потолков
2.7 м

Планировка

Фасад дома

Александр

Закажите выезд инженера

Александр

Выездной инженер
Закажите выезд инженера для точной диагностики и профессиональной консультации по инженерным системам. Специалист приедет в удобное время, проведёт осмотр, рассчитает стоимость работ и подберёт оптимальные решения для вашего дома.


    Похожие проекты

    Ипотека и
    рассрочка
    Двухэтажный Особняк СО-170
    Стоимость от:
    11 810 160
    Проект от: 76 050
    Этажей 2
    Санузлы 2
    Спальни 4
    Смотреть
    Ипотека и
    рассрочка
    Новое Аннино
    Стоимость от:
    10 571 165
    Проект от: 77 850
    Этажей 1
    Санузлы 1
    Спальни 3
    Смотреть
    Ипотека и
    рассрочка
    Дом с террасой и антресолью Skandi
    Стоимость от:
    6 227 040
    Проект от: 38 700
    Этажей 2
    Санузлы 1
    Спальни 3
    Смотреть
    Ипотека и
    рассрочка
    Двухэтажный дом 150 м
    Стоимость от:
    10 323 600
    Проект от: 65 250
    Этажей 2
    Санузлы 2
    Спальни 3
    Смотреть
    Ипотека и
    рассрочка
    Дом из CLT «Норильск»
    Стоимость от:
    644 640
    Проект от: 61 200
    Этажей 2
    Санузлы 3
    Спальни 3
    Смотреть
    Ипотека и
    рассрочка
    Минимал-85
    Стоимость от:
    6 389 900
    Проект от: 38 250
    Этажей 1
    Санузлы 1
    Спальни 3
    Смотреть

    Как узнать стоимость дома

    back
    Оставляете заявку
    Вы заполняете форму на сайте или звоните нам. Менеджер Лайвкрафт связывается с вами для уточнения деталей: тип дома, площадь, материалы, участок строительства.
    back
    Консультация и подбор решения
    Наш специалист помогает выбрать оптимальный тип дома и конструкцию с учётом бюджета, сроков и целей — будь то дом для постоянного проживания или дача.
    back
    Расчёт предварительной стоимости
    Инженер делает первичный расчёт стоимости строительства по вашим параметрам: фундамент, коробка, кровля, отделка. Вы получаете смету с разбивкой по этапам.
    back
    Корректировка и утверждение сметы
    При необходимости вносим изменения — например, замену материалов или сокращение этапов. После согласования формируется окончательная фиксированная смета.
    back
    Заключение договора и старт работ
    После утверждения сметы заключаем официальный договор с гарантией. Вы получаете прозрачный график и точную стоимость — без скрытых расходов.

    Заказать конусльтацию по:Одноэтажный дом Floors 80

    Фото 1 Одноэтажный дом Floors 80


      Наши
      контакты

      Дмитров
      Опорный проезд 28Б
      (индустриальный парк Ниагара)
      9:00 до 18:00

      Корзина