4.9
Рейтинг на основании 120 отзывов
Дмитров
Опорный проезд 28Б
(индустриальный парк Ниагара)
Бренд "Дмитров-Дело" c 2008 года на рынке строительства в Дмитрове
Звоните 9:00 до 18:00 8 (915) 055-33-61
Бренд "Дмитров-Дело" c 2008 года на рынке строительства в Дмитрове

Одноэтажный дом «Кастела 2.0»

Стоимость проекта от:
33 750 ₽
БЕСПЛАТНО! ПРИ ЗАКАЗЕ СТРОИТЕЛЬСТВА
Стоимость строительства от:
5 296 500 ₽
Артикул ART-10386
Дата 25.12.2025
Архитектурный стиль Европейский
Количество надземных этажей 1
Круглогодичное проживание Да
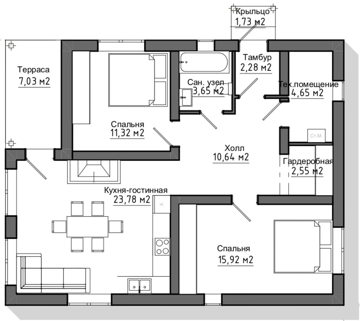
Площадь дома 75 м2
Санузлы 1
Спальни 2

Описание

Один из редких истинных уголков сказочного европейского стиля, который становится вашим убежищем уже сегодня. Дом «Кастела 2.0» – это не просто одиннадцатый этаж, это целый дом, где каждая деталь пронизана элегантностью и функциональностью. Вдохновленный классикой, он гармонично вписывается в любую ландшафтную композицию, благодаря своей мягкой форме и изящным каменным фасадам из газобетонных блоков. Комбинированная крыша, которая сочетает в себе прочность и эстетичность, защищает от непогоды и придает дому неповторимый силуэт. Внутреннее пространство дома раскрывает простор и свет. Отдельный чердачный уголок, превращенный в уютный загородный кабинет или дополнительную спальню, дополняет возможности вашей семейной жизни. Тёплая открытая терраса становится идеальным местом для завтраков, обедов на свежем воздухе и вечерних встреч с близкими – здесь каждый момент превращается в праздник. «Кастела 2.0» – это место, где круглогодичное проживание превращается воедино с комфортом, а отсутствие лишних балконов и автостоянок освобождает пространство для творчества и уюта. Выбирая «Кастела 2.0», вы выбираете дом, где стиль и удобство идут рука об руку. Это ваш островок гармонии и спокойствия в современном мире, где каждая деталь продумана до мелочей, а каждый день начинается с вдохновения новым пространством. Приглашаем вас открыть для себя элегантность европейского дома, где ваш дом становится настоящим произведением искусства.

Характеристики дома

Архитектурный стиль
Автоматизированное регулирование параметров теплоносителя
-
Балконы/лоджии
Отсутствуют
Чердачное помещение
Да
Датчики протечки воды
-
Эксплуатируемая или зеленая кровля
-
Электроснабжение
Индивидуальное
Газоснабжение
Индивидуальное
Изоляция воздушного шума
-
Камин
Нет
Класс энергоэффективности
-
Класс энергосбережения
-
Количество надземных этажей
1
Круглогодичное проживание
Да
Материал кровли
Металлочерепица
Материал перекрытий
Деревянные
Материал внешних стен
Материал внутренних перегородок
Блочные
Модульное строительство с конструкциями заводского изготовления
Нет
Объем надземной части
-
Основной материал фасадов
Штукатурка
Отопление
Индивидуальное
Площадь дома
75 м2
Площадь застройки
104 м2
Подвальное помещение
Нет
Показатель компактности здания
-
Приборы учета тепловой энергии
-
Пристроенный гараж/крытая автостоянка
Нет
Противопожарная система
Нет
Санузлы
1
Совмещенная кухня-гостиная
Да
Спальни
2
Терраса
Да
Тип фундамента
Плитный
Тип кровли
Толщина внешних стен
375 мм
Толщина внутренних перегородок
100 мм
Улучшенные шумовые характеристики
-
Вентиляция
Естественная
Веранда
Нет
Водоотведение
Локальные очистные сооружения
Водоснабжение
Индивидуальное
Высота дома
4.67 м
Высота потолков
2.75 м

Планировка

Фасад дома

Александр

Закажите выезд инженера

Александр

Выездной инженер
Закажите выезд инженера для точной диагностики и профессиональной консультации по инженерным системам. Специалист приедет в удобное время, проведёт осмотр, рассчитает стоимость работ и подберёт оптимальные решения для вашего дома.


    Похожие проекты

    Ипотека и
    рассрочка
    Одноэтажный дом с тремя спальнями и террасой
    Стоимость от:
    10 065 880
    Проект от: 60 300
    Этажей 1
    Санузлы 2
    Спальни 3
    Смотреть
    Ипотека и
    рассрочка
    Дом «Эйлин 166» в скандинавском стиле
    Стоимость от:
    9 950 040
    Проект от: 74 700
    Этажей 2
    Санузлы 3
    Спальни 4
    Смотреть
    Ипотека и
    рассрочка
    Загородный дом АС-204
    Стоимость от:
    7 190 760
    Проект от: 49 050
    Этажей 2
    Санузлы 2
    Спальни 3
    Смотреть
    Ипотека и
    рассрочка
    Свой дом М-125
    Стоимость от:
    7 256 040
    Проект от: 54 450
    Этажей 2
    Санузлы 2
    Спальни 4
    Смотреть
    Ипотека и
    рассрочка
    Двухэтажное шале №110
    Стоимость от:
    10 553 040
    Проект от: 67 950
    Этажей 2
    Санузлы 2
    Спальни 4
    Смотреть
    Ипотека и
    рассрочка
    S 1-103
    Стоимость от:
    7 665 240
    Проект от: 45 900
    Этажей 1
    Санузлы 2
    Спальни 3
    Смотреть

    Как узнать стоимость дома

    back
    Оставляете заявку
    Вы заполняете форму на сайте или звоните нам. Менеджер Лайвкрафт связывается с вами для уточнения деталей: тип дома, площадь, материалы, участок строительства.
    back
    Консультация и подбор решения
    Наш специалист помогает выбрать оптимальный тип дома и конструкцию с учётом бюджета, сроков и целей — будь то дом для постоянного проживания или дача.
    back
    Расчёт предварительной стоимости
    Инженер делает первичный расчёт стоимости строительства по вашим параметрам: фундамент, коробка, кровля, отделка. Вы получаете смету с разбивкой по этапам.
    back
    Корректировка и утверждение сметы
    При необходимости вносим изменения — например, замену материалов или сокращение этапов. После согласования формируется окончательная фиксированная смета.
    back
    Заключение договора и старт работ
    После утверждения сметы заключаем официальный договор с гарантией. Вы получаете прозрачный график и точную стоимость — без скрытых расходов.

    Заказать конусльтацию по:Одноэтажный дом «Кастела 2.0»

    Фото 1 Одноэтажный дом «Кастела 2.0»


      Наши
      контакты

      Дмитров
      Опорный проезд 28Б
      (индустриальный парк Ниагара)
      9:00 до 18:00

      Корзина