4.9
Рейтинг на основании 120 отзывов
Дмитров
Опорный проезд 28Б
(индустриальный парк Ниагара)
Бренд "Дмитров-Дело" c 2008 года на рынке строительства в Дмитрове
Звоните 9:00 до 18:00 8 (915) 055-33-61
Бренд "Дмитров-Дело" c 2008 года на рынке строительства в Дмитрове

Одноэтажный дом «Кристалл»

Стоимость проекта от:
52 650 ₽
БЕСПЛАТНО! ПРИ ЗАКАЗЕ СТРОИТЕЛЬСТВА
Стоимость строительства от:
8 262 540 ₽
Артикул ART-6203
Дата 26.12.2025
Архитектурный стиль Классический
Количество надземных этажей 1
Круглогодичное проживание Да
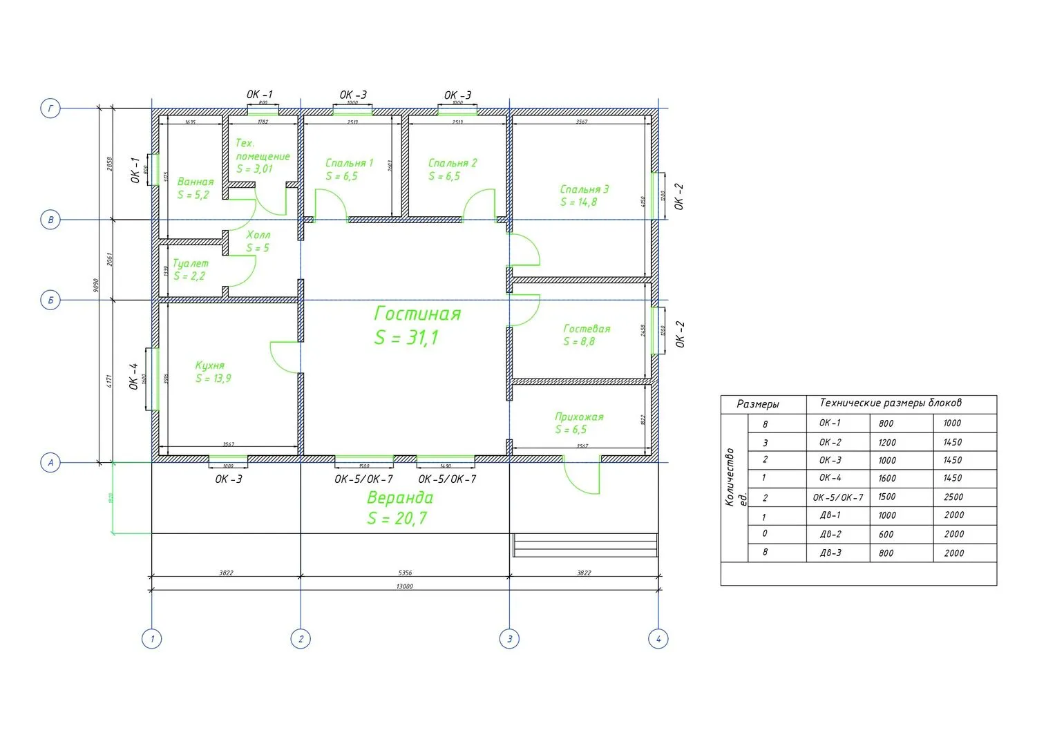
Площадь дома 117 м2
Санузлы 1
Спальни 3

Описание

Добро пожаловать в дом «Кристалл» – элегантный символ уюха и стиля, где каждый уголок пронизан традициями классической архитектуры. Весь дом построен на одном уровне, что делает его идеальным для круглогодичного проживания: удобно и безопасно, без лестниц, и все помещения легко доступны. Современный профильный брус, обрамлённый чёткими линиями, придаёт фасаду чистоту и устойчивость, а двускатная крыша дополняет образ традиционного, но в то же время свежего дома. Здесь каждая деталь продумана так, чтобы подчеркнуть изящество простых форм и скрещивать тепло классики с практической функциональностью. Внутри «Кристалл» раскрывается просторное, светлое пространство, где свободные зоны плавно переходят из комнаты в комнату. Начиная с уютной гостиной, проходящей к обширной кухне с открытым планом, гости могут легко создавать семейные моменты и принимать гостей. Дизайн – это сочетание строгой классицизма и естественности: деревянные детали, панорамные окна, позволяющие впустить максимум дневного света. Спальни располагаются в тихих уголках, обеспечивая спокойный отдых после насыщенного дня, а ванных комнат с душевыми зонами создают ощущение роскоши и уюта. Неотъемлемой частью дома является просторная веранда и терраса, где засыпанная живой зеленью зона приглашает проводить вечера на свежем воздухе, устраивать барбекю или просто наслаждаться тишиной у окна. Открытая веранда становится продолжением внутреннего пространства, позволяя ощутить связь с природой, а площадка на террасе – идеальное место для вечерних грилей или тихой романтической встречи. Дом «Кристалл» – это гармония архитектурного стиля, практичности и живого комфорта, который приглашает вас стать частью его уютного семейного уюта.

Характеристики дома

Архитектурный стиль
Автоматизированное регулирование параметров теплоносителя
-
Балконы/лоджии
Отсутствуют
Чердачное помещение
Нет
Датчики протечки воды
-
Эксплуатируемая или зеленая кровля
-
Электроснабжение
Индивидуальное
Газоснабжение
Индивидуальное
Изоляция воздушного шума
-
Камин
Нет
Класс энергоэффективности
-
Класс энергосбережения
-
Количество надземных этажей
1
Круглогодичное проживание
Да
Материал кровли
Металлочерепица
Материал перекрытий
Деревянные
Материал внешних стен
Материал внутренних перегородок
Деревянные
Модульное строительство с конструкциями заводского изготовления
Нет
Объем надземной части
137 м3
Основной материал фасадов
Дерево
Отопление
Индивидуальное
Площадь дома
117 м2
Площадь застройки
137 м2
Подвальное помещение
Нет
Показатель компактности здания
-
Приборы учета тепловой энергии
-
Пристроенный гараж/крытая автостоянка
Нет
Противопожарная система
Нет
Санузлы
1
Совмещенная кухня-гостиная
Нет
Спальни
3
Терраса
Да
Тип фундамента
Плитный
Тип кровли
Толщина внешних стен
180 мм
Толщина внутренних перегородок
100 мм
Улучшенные шумовые характеристики
-
Вентиляция
Естественная
Веранда
Да
Водоотведение
Не предусмотрено
Водоснабжение
Индивидуальное
Высота дома
5 м
Высота потолков
3 м

Планировка

Фасад дома

Александр

Закажите выезд инженера

Александр

Выездной инженер
Закажите выезд инженера для точной диагностики и профессиональной консультации по инженерным системам. Специалист приедет в удобное время, проведёт осмотр, рассчитает стоимость работ и подберёт оптимальные решения для вашего дома.


    Похожие проекты

    Ипотека и
    рассрочка
    Проект загородного дома NHD-136
    Стоимость от:
    7 527 360
    Проект от: 46 800
    Этажей 2
    Санузлы 2
    Спальни 4
    Смотреть
    Ипотека и
    рассрочка
    Двухэтажное шале КЦ4-3
    Стоимость от:
    12 584 160
    Проект от: 78 300
    Этажей 2
    Санузлы 3
    Спальни 4
    Смотреть
    Ипотека и
    рассрочка
    Nodo-80. Одноэтажный дом с крыльцом
    Стоимость от:
    5 939 780
    Проект от: 35 550
    Этажей 1
    Санузлы 2
    Спальни 2
    Смотреть
    Ипотека и
    рассрочка
    К 1-103
    Стоимость от:
    7 665 240
    Проект от: 45 900
    Этажей 1
    Санузлы 2
    Спальни 3
    Смотреть
    Ипотека и
    рассрочка
    Загородный дом Барн 55
    Стоимость от:
    2 937 275
    Проект от: 24 750
    Этажей 1
    Санузлы 1
    Спальни 2
    Смотреть
    Ипотека и
    рассрочка
    Двухэтажный дом «Бодиам»
    Стоимость от:
    8 378 880
    Проект от: 50 400
    Этажей 2
    Санузлы 2
    Спальни 4
    Смотреть

    Как узнать стоимость дома

    back
    Оставляете заявку
    Вы заполняете форму на сайте или звоните нам. Менеджер Лайвкрафт связывается с вами для уточнения деталей: тип дома, площадь, материалы, участок строительства.
    back
    Консультация и подбор решения
    Наш специалист помогает выбрать оптимальный тип дома и конструкцию с учётом бюджета, сроков и целей — будь то дом для постоянного проживания или дача.
    back
    Расчёт предварительной стоимости
    Инженер делает первичный расчёт стоимости строительства по вашим параметрам: фундамент, коробка, кровля, отделка. Вы получаете смету с разбивкой по этапам.
    back
    Корректировка и утверждение сметы
    При необходимости вносим изменения — например, замену материалов или сокращение этапов. После согласования формируется окончательная фиксированная смета.
    back
    Заключение договора и старт работ
    После утверждения сметы заключаем официальный договор с гарантией. Вы получаете прозрачный график и точную стоимость — без скрытых расходов.

    Заказать конусльтацию по:Одноэтажный дом «Кристалл»

    Фото 1 Одноэтажный дом «Кристалл»


      Наши
      контакты

      Дмитров
      Опорный проезд 28Б
      (индустриальный парк Ниагара)
      9:00 до 18:00

      Корзина