4.9
Рейтинг на основании 120 отзывов
Дмитров
Опорный проезд 28Б
(индустриальный парк Ниагара)
Бренд "Дмитров-Дело" c 2008 года на рынке строительства в Дмитрове
Звоните 9:00 до 18:00 8 (915) 055-33-61
Бренд "Дмитров-Дело" c 2008 года на рынке строительства в Дмитрове

Одноэтажный дом М-152

Стоимость проекта от:
68 400 ₽
Стоимость строительства от:
10 734 240 ₽
Артикул ART-14432
Дата 25.12.2025
Архитектурный стиль Шале
Количество надземных этажей 1
Круглогодичное проживание Да
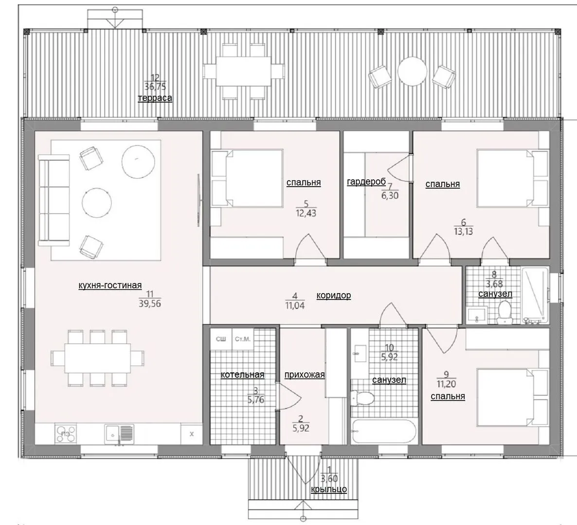
Площадь дома 152 м2
Санузлы 2
Спальни 3

Описание

Наслаждайтесь уютом и теплом настоящего шале в одном из самых востребованных одноквартирных комплексов – дом М‑152. Его единственный надземный этаж, выполненный в традиционном шале‑стиле, создаёт атмосферу уюта и спокойствия, словно вы живёте в очаровательной горной хижине, но в сердце своего города. Внутри вас ждёт просторное и светлое пространство, где каждый уголок раскрывает потенциал для комфортной повседневной жизни. Потрясающая двухплановая крыша добавляет нотки элегантности, а окна, открывшие вид на живописные пейзажи, делают восходы и закаты особенно живыми. Зонтичный материал внешних стен – газобетонные блоки – обеспечивает отличную теплоизоляцию и долговечность, а наличие чердачного помещения даёт свободный вариант для персонального развития: кабинет, игровая комната, хобби‑помещение или просто дополнительное место для хранения. Терраса внизу, покрытая природным камнем, приглашает к релаксации после трудного дня, где можно разложить пледы и насладиться ароматом свежего воздуха. И, конечно, удобный двускатный покров гарантирует надежную защиту от капризов погоды – будь то весенний дождь или снежный покров. Этот дом – идеальный выбор для тех, кто ценит традиционный шарм, тепло и современный комфорт, не жертвуя при этом уютом и функциональностью.

Характеристики дома

Архитектурный стиль
Шале
Автоматизированное регулирование параметров теплоносителя
Да
Балконы/лоджии
Отсутствуют
Чердачное помещение
Да
Датчики протечки воды
Да
Эксплуатируемая или зеленая кровля
Нет
Электроснабжение
Центральное
Газоснабжение
Центральное
Изоляция воздушного шума
Да
Камин
Нет
Класс энергоэффективности
A+
Класс энергосбережения
A+
Количество надземных этажей
1
Круглогодичное проживание
Да
Материал кровли
Металлочерепица
Материал перекрытий
Деревянные
Материал внешних стен
Газобетонные блоки
Материал внутренних перегородок
Блочные
Модульное строительство с конструкциями заводского изготовления
Нет
Объем надземной части
530 м3
Основной материал фасадов
Штукатурка
Отопление
Индивидуальное
Площадь дома
152 м2
Площадь застройки
173 м2
Подвальное помещение
Нет
Показатель компактности здания
1
Приборы учета тепловой энергии
Да
Пристроенный гараж/крытая автостоянка
Нет
Противопожарная система
Нет
Санузлы
2
Совмещенная кухня-гостиная
Да
Спальни
3
Терраса
Да
Тип фундамента
Плитный
Тип кровли
Двускатная
Толщина внешних стен
400 мм
Толщина внутренних перегородок
100 мм
Улучшенные шумовые характеристики
Да
Вентиляция
Принудительная
Веранда
Нет
Водоотведение
Локальные очистные сооружения
Водоснабжение
Индивидуальное
Высота дома
5.16 м
Высота потолков
3 м

Планировка

Фасад дома

Александр

Закажите выезд инженера

Александр

Выездной инженер
Закажите выезд инженера для точной диагностики и профессиональной консультации по инженерным системам. Специалист приедет в удобное время, проведёт осмотр, рассчитает стоимость работ и подберёт оптимальные решения для вашего дома.


    Похожие проекты

    Ипотека и
    рассрочка
    Каркасный дом Айнбек 77
    Стоимость от:
    4 309 200
    Проект от: 32 400
    Этажей 2
    Санузлы 1
    Спальни 3
    Смотреть
    Ипотека и
    рассрочка
    Одноэтажный дом в скандинавском стиле «Рерик 103»
    Стоимость от:
    5 953 915
    Проект от: 46 350
    Этажей 1
    Санузлы 1
    Спальни 2
    Смотреть
    Ипотека и
    рассрочка
    Одноэтажный дом FIXPLANS — 1943
    Стоимость от:
    12 923 460
    Проект от: 82 350
    Этажей 1
    Санузлы 2
    Спальни 4
    Смотреть
    Ипотека и
    рассрочка
    Загородный дом по проекту «Вашингтон».
    Стоимость от:
    8 880 960
    Проект от: 62 550
    Этажей 2
    Санузлы 1
    Спальни 4
    Смотреть
    Ипотека и
    рассрочка
    Генуя
    Стоимость от:
    6 581 300
    Проект от: 38 250
    Этажей 1
    Санузлы 1
    Спальни 3
    Смотреть
    Ипотека и
    рассрочка
    SVOBODA-77
    Стоимость от:
    5 789 740
    Проект от: 34 650
    Этажей 1
    Санузлы 1
    Спальни 2
    Смотреть

    Как узнать стоимость дома

    back
    Оставляете заявку
    Вы заполняете форму на сайте или звоните нам. Менеджер Лайвкрафт связывается с вами для уточнения деталей: тип дома, площадь, материалы, участок строительства.
    back
    Консультация и подбор решения
    Наш специалист помогает выбрать оптимальный тип дома и конструкцию с учётом бюджета, сроков и целей — будь то дом для постоянного проживания или дача.
    back
    Расчёт предварительной стоимости
    Инженер делает первичный расчёт стоимости строительства по вашим параметрам: фундамент, коробка, кровля, отделка. Вы получаете смету с разбивкой по этапам.
    back
    Корректировка и утверждение сметы
    При необходимости вносим изменения — например, замену материалов или сокращение этапов. После согласования формируется окончательная фиксированная смета.
    back
    Заключение договора и старт работ
    После утверждения сметы заключаем официальный договор с гарантией. Вы получаете прозрачный график и точную стоимость — без скрытых расходов.

    Заказать конусльтацию по:Одноэтажный дом М-152

    Фото 1 Одноэтажный дом М-152


      Наши
      контакты

      Дмитров
      Опорный проезд 28Б
      (индустриальный парк Ниагара)
      9:00 до 18:00