4.9
Рейтинг на основании 120 отзывов
Дмитров
Опорный проезд 28Б
(индустриальный парк Ниагара)
Бренд "Дмитров-Дело" c 2008 года на рынке строительства в Дмитрове
Звоните 9:00 до 18:00 8 (915) 055-33-61
Бренд "Дмитров-Дело" c 2008 года на рынке строительства в Дмитрове

Одноэтажный дом ПГ — 8

Стоимость проекта от:
37 800 ₽
БЕСПЛАТНО! ПРИ ЗАКАЗЕ СТРОИТЕЛЬСТВА
Стоимость строительства от:
5 331 480 ₽
Артикул ART-19812
Дата 26.12.2025
Архитектурный стиль Классический
Количество надземных этажей 1
Круглогодичное проживание Да
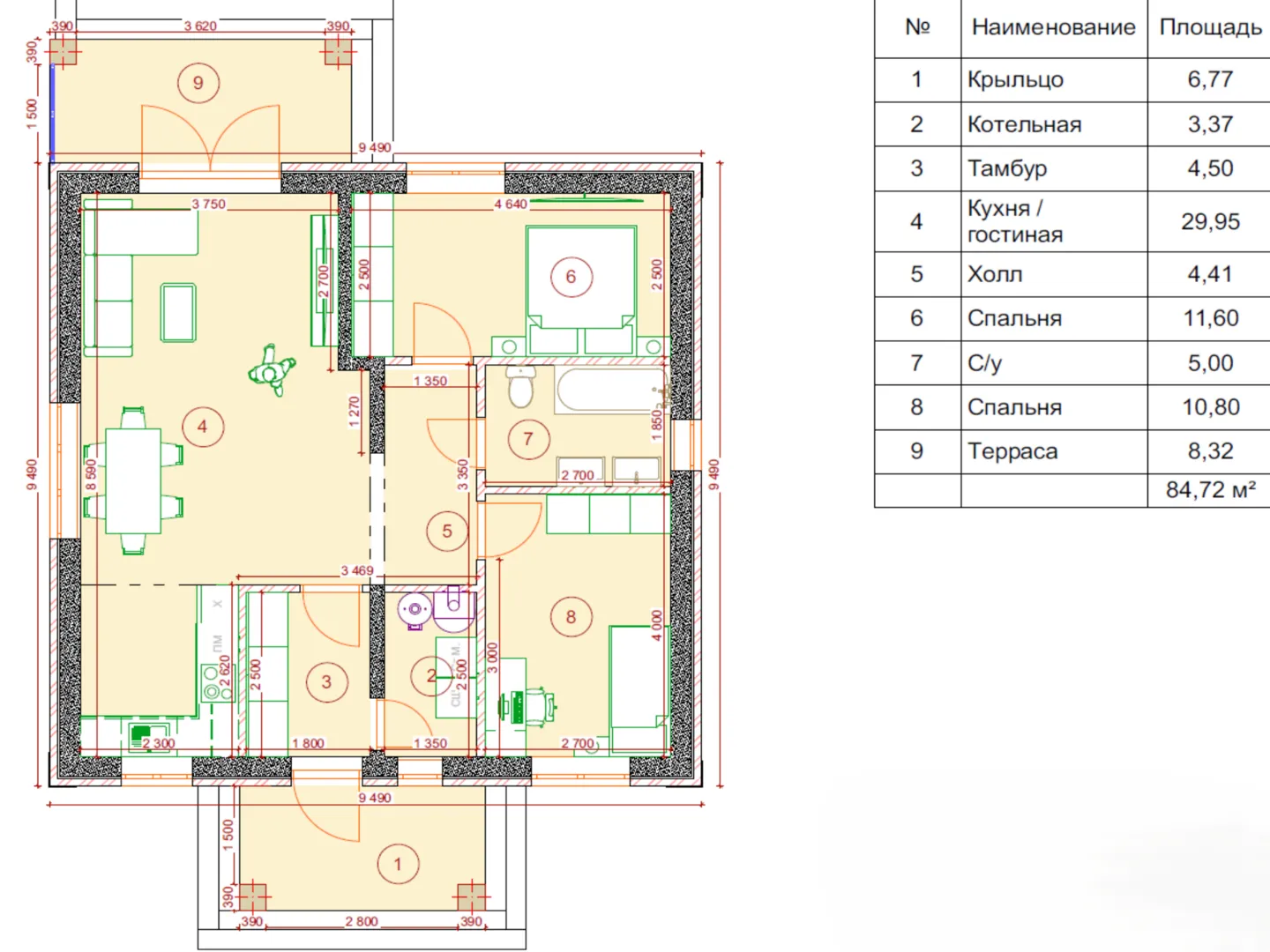
Площадь дома 84 м2
Санузлы 1
Спальни 2

Описание

Носите свой дом в сердце старинного поселения, где каждая кирпичная стена хранит тепло и уют. Одноэтажный дом в стиле классической архитектуры с четырёхскатной (вальмовой) крышей создаёт ощущение гармонии и устойчивости. Круглогодичное проживание гарантирует безмятежность в любой поре, а внутреннее пространство, обрамлённое высокими дверями, позволяет наслаждаться природой прямо у порога. Отсутствие балконов и веранд не умаляет ощущение простора – здесь каждый угол пронизан светом, а тихая тьма ночи, проникающая сквозь большие окна, напоминает, что вы в полном уединении с природой. Чердачное помещение становится незаменимым залом для творчества, хобби или семейных игр. Терраса открывает окно на мир: лёгкий ветер, запах свежего дерева и закатные краски – всё это доступно из вашего личного уголка. Выбирая этот дом, вы выбираете неповторимый ритм жизни, без лишних шумов и беспокойства: гаража, автостоянки и шумной улицы вы избежите, а каждая кирпичная стена напомнит о вашем решении жить в уюте, который остаётся непоколебимым несмотря на перемены времени. Эта квартира – ваш безопасный островок в мире бытия, где каждый день начинается с радости и заканчивается восхищением за архитектурное совершенство.

Характеристики дома

Архитектурный стиль
Автоматизированное регулирование параметров теплоносителя
Нет
Балконы/лоджии
Отсутствуют
Чердачное помещение
Да
Датчики протечки воды
Нет
Эксплуатируемая или зеленая кровля
Нет
Электроснабжение
Центральное
Газоснабжение
Центральное
Изоляция воздушного шума
Да
Камин
Нет
Класс энергоэффективности
-
Класс энергосбережения
-
Количество надземных этажей
1
Круглогодичное проживание
Да
Материал кровли
Металлочерепица
Материал перекрытий
Деревянные
Материал внешних стен
Материал внутренних перегородок
Блочные
Модульное строительство с конструкциями заводского изготовления
Нет
Объем надземной части
-
Основной материал фасадов
Облицовочный кирпич
Отопление
Индивидуальное
Площадь дома
84 м2
Площадь застройки
105 м2
Подвальное помещение
Нет
Показатель компактности здания
-
Приборы учета тепловой энергии
Нет
Пристроенный гараж/крытая автостоянка
Нет
Противопожарная система
Нет
Санузлы
1
Совмещенная кухня-гостиная
Да
Спальни
2
Терраса
Да
Тип фундамента
Свайный
Толщина внешних стен
450 мм
Толщина внутренних перегородок
120 мм
Улучшенные шумовые характеристики
Да
Вентиляция
Естественная
Веранда
Нет
Водоотведение
Локальные очистные сооружения
Водоснабжение
Индивидуальное
Высота дома
6 м
Высота потолков
3 м

Планировка

Фасад дома

Александр

Закажите выезд инженера

Александр

Выездной инженер
Закажите выезд инженера для точной диагностики и профессиональной консультации по инженерным системам. Специалист приедет в удобное время, проведёт осмотр, рассчитает стоимость работ и подберёт оптимальные решения для вашего дома.


    Похожие проекты

    Ипотека и
    рассрочка
    Сапфир
    Стоимость от:
    14 666 400
    Проект от: 94 500
    Этажей 2
    Санузлы 3
    Спальни 3
    Смотреть
    Ипотека и
    рассрочка
    Проект 12
    Стоимость от:
    13 765 680
    Проект от: 88 650
    Этажей 2
    Санузлы 2
    Спальни 4
    Смотреть
    Ипотека и
    рассрочка
    Черноситово
    Стоимость от:
    5 747 280
    Проект от: 37 800
    Этажей 1
    Санузлы 1
    Спальни 3
    Смотреть
    Ипотека и
    рассрочка
    Проект загородного дома NHD-161
    Стоимость от:
    8 683 200
    Проект от: 54 000
    Этажей 2
    Санузлы 2
    Спальни 4
    Смотреть
    Ипотека и
    рассрочка
    Индивидуальный жилой дом площадью 75 м2
    Стоимость от:
    5 974 100
    Проект от: 33 750
    Этажей 1
    Санузлы 1
    Спальни 2
    Смотреть
    Ипотека и
    рассрочка
    Vst-85
    Стоимость от:
    6 768 300
    Проект от: 38 250
    Этажей 1
    Санузлы 1
    Спальни 3
    Смотреть

    Как узнать стоимость дома

    back
    Оставляете заявку
    Вы заполняете форму на сайте или звоните нам. Менеджер Лайвкрафт связывается с вами для уточнения деталей: тип дома, площадь, материалы, участок строительства.
    back
    Консультация и подбор решения
    Наш специалист помогает выбрать оптимальный тип дома и конструкцию с учётом бюджета, сроков и целей — будь то дом для постоянного проживания или дача.
    back
    Расчёт предварительной стоимости
    Инженер делает первичный расчёт стоимости строительства по вашим параметрам: фундамент, коробка, кровля, отделка. Вы получаете смету с разбивкой по этапам.
    back
    Корректировка и утверждение сметы
    При необходимости вносим изменения — например, замену материалов или сокращение этапов. После согласования формируется окончательная фиксированная смета.
    back
    Заключение договора и старт работ
    После утверждения сметы заключаем официальный договор с гарантией. Вы получаете прозрачный график и точную стоимость — без скрытых расходов.

    Заказать конусльтацию по:Одноэтажный дом ПГ — 8

    Фото 1 Одноэтажный дом ПГ — 8


      Наши
      контакты

      Дмитров
      Опорный проезд 28Б
      (индустриальный парк Ниагара)
      9:00 до 18:00

      Корзина