4.9
Рейтинг на основании 120 отзывов
Дмитров
Опорный проезд 28Б
(индустриальный парк Ниагара)
Бренд "Дмитров-Дело" c 2008 года на рынке строительства в Дмитрове
Звоните 9:00 до 18:00 8 (915) 055-33-61
Бренд "Дмитров-Дело" c 2008 года на рынке строительства в Дмитрове

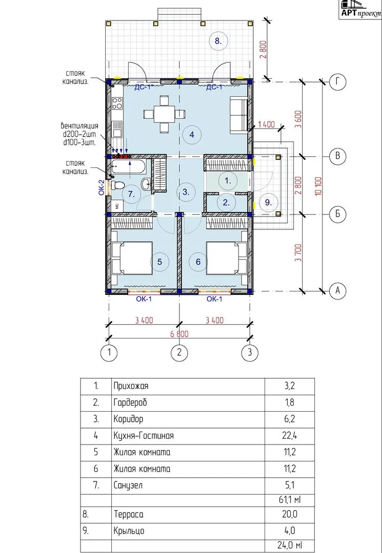
Одноэтажный дом площадью 81 кв.м.

Стоимость проекта от:
36 450 ₽
БЕСПЛАТНО! ПРИ ЗАКАЗЕ СТРОИТЕЛЬСТВА
Стоимость строительства от:
6 450 620 ₽
Артикул ART-17564
Дата 26.12.2025
Архитектурный стиль Классический
Количество надземных этажей 1
Круглогодичное проживание Да
Площадь дома 81 м2
Санузлы 1
Спальни 2

Описание

Привет, будущий владелец! Представляем уютный, но изысканный однолетний дом площадью 81 м², где каждая деталь продумана до мелочей. Его классический архитектурный стиль в сочетании с высоким качеством исполнения — это сочетание современной комфортабельной жизни и традиционного очарования. Внутреннее пространство размыкается на свободных перегородках, создавая ощущение простора, в то время как теплые оттечи краски и акустика приглушенных потолков делают комнату мягкой и домашней. Снаружи дом обрамлен кирпичной керамической панелью, материалом внешних стен является легкий, но прочный керамзитобетонный блок, придающий зданию солидность и тепло. Четырёхскатная (валмовая) кровля, выполненная с мастерством, не только защищает от непогоды, но и придает фасаду благородную хрупкую линию. Отсутствие балконов и веранд не затрудняет планировку: вся уютная атмосфера сосредоточилась внутри, где удобно разместится семейная кухня, светлый спальная зона и комната для отдыха. Выбирая этот дом, вы получаете просторное место для круглогодичного проживания, где каждая ночь будет наполнена уютом и стилем. И в завершение — собственная терраса. Прямо за окнами открывается небольшой садовый уголок, где можно наслаждаться летними закатами, ароматным кофе в обеденный час, а зимой уют и тепло создают атмосферу уюта. Это действительно единственное место, где классическое обаяние встречается с современной жизнью, и вы сможете насладиться обоими стилями, сделав ваш новый дом собственным уголком счастья.

Характеристики дома

Архитектурный стиль
Автоматизированное регулирование параметров теплоносителя
Да
Балконы/лоджии
Отсутствуют
Чердачное помещение
Нет
Датчики протечки воды
Нет
Эксплуатируемая или зеленая кровля
Нет
Электроснабжение
Центральное
Газоснабжение
Не предусмотрено
Изоляция воздушного шума
Нет
Камин
Нет
Класс энергоэффективности
-
Класс энергосбережения
-
Количество надземных этажей
1
Круглогодичное проживание
Да
Материал кровли
Металлочерепица
Материал перекрытий
Деревянные
Материал внешних стен
Материал внутренних перегородок
Блочные
Модульное строительство с конструкциями заводского изготовления
Нет
Объем надземной части
430 м3
Основной материал фасадов
Штукатурка
Отопление
Индивидуальное
Площадь дома
81 м2
Площадь застройки
76 м2
Подвальное помещение
Нет
Показатель компактности здания
-
Приборы учета тепловой энергии
Нет
Пристроенный гараж/крытая автостоянка
Нет
Противопожарная система
Нет
Санузлы
1
Совмещенная кухня-гостиная
Да
Спальни
2
Терраса
Да
Тип фундамента
Ленточный
Толщина внешних стен
200 мм
Толщина внутренних перегородок
200 мм
Улучшенные шумовые характеристики
Нет
Вентиляция
Естественная
Веранда
Нет
Водоотведение
Локальные очистные сооружения
Водоснабжение
Индивидуальное
Высота дома
5.7 м
Высота потолков
3 м

Планировка

Фасад дома

Александр

Закажите выезд инженера

Александр

Выездной инженер
Закажите выезд инженера для точной диагностики и профессиональной консультации по инженерным системам. Специалист приедет в удобное время, проведёт осмотр, рассчитает стоимость работ и подберёт оптимальные решения для вашего дома.


    Похожие проекты

    Ипотека и
    рассрочка
    Одноэтажный дом FIXPLANS — 1799
    Стоимость от:
    8 820 680
    Проект от: 51 300
    Этажей 1
    Санузлы 2
    Спальни 3
    Смотреть
    Ипотека и
    рассрочка
    БМ 212
    Стоимость от:
    12 429 840
    Проект от: 81 450
    Этажей 2
    Санузлы 2
    Спальни 3
    Смотреть
    Ипотека и
    рассрочка
    Одноэтажный дом 157м2
    Стоимость от:
    11 087 340
    Проект от: 70 650
    Этажей 1
    Санузлы 2
    Спальни 3
    Смотреть
    Ипотека и
    рассрочка
    Одноэтажный дом Смарт 7
    Стоимость от:
    5 474 700
    Проект от: 33 750
    Этажей 1
    Санузлы 1
    Спальни 2
    Смотреть
    Ипотека и
    рассрочка
    Одноэтажный дом «Мечты»
    Стоимость от:
    11 341 220
    Проект от: 67 950
    Этажей 1
    Санузлы 2
    Спальни 3
    Смотреть
    Ипотека и
    рассрочка
    Классик
    Стоимость от:
    9 533 700
    Проект от: 60 750
    Этажей 1
    Санузлы 2
    Спальни 3
    Смотреть

    Как узнать стоимость дома

    back
    Оставляете заявку
    Вы заполняете форму на сайте или звоните нам. Менеджер Лайвкрафт связывается с вами для уточнения деталей: тип дома, площадь, материалы, участок строительства.
    back
    Консультация и подбор решения
    Наш специалист помогает выбрать оптимальный тип дома и конструкцию с учётом бюджета, сроков и целей — будь то дом для постоянного проживания или дача.
    back
    Расчёт предварительной стоимости
    Инженер делает первичный расчёт стоимости строительства по вашим параметрам: фундамент, коробка, кровля, отделка. Вы получаете смету с разбивкой по этапам.
    back
    Корректировка и утверждение сметы
    При необходимости вносим изменения — например, замену материалов или сокращение этапов. После согласования формируется окончательная фиксированная смета.
    back
    Заключение договора и старт работ
    После утверждения сметы заключаем официальный договор с гарантией. Вы получаете прозрачный график и точную стоимость — без скрытых расходов.

    Заказать конусльтацию по:Одноэтажный дом площадью 81 кв.м.

    Фото 1 Одноэтажный дом площадью 81 кв.м.


      Наши
      контакты

      Дмитров
      Опорный проезд 28Б
      (индустриальный парк Ниагара)
      9:00 до 18:00

      Корзина