4.9
Рейтинг на основании 120 отзывов
Дмитров
Опорный проезд 28Б
(индустриальный парк Ниагара)
Бренд "Дмитров-Дело" c 2008 года на рынке строительства в Дмитрове
Звоните 9:00 до 18:00 8 (915) 055-33-61
Бренд "Дмитров-Дело" c 2008 года на рынке строительства в Дмитрове

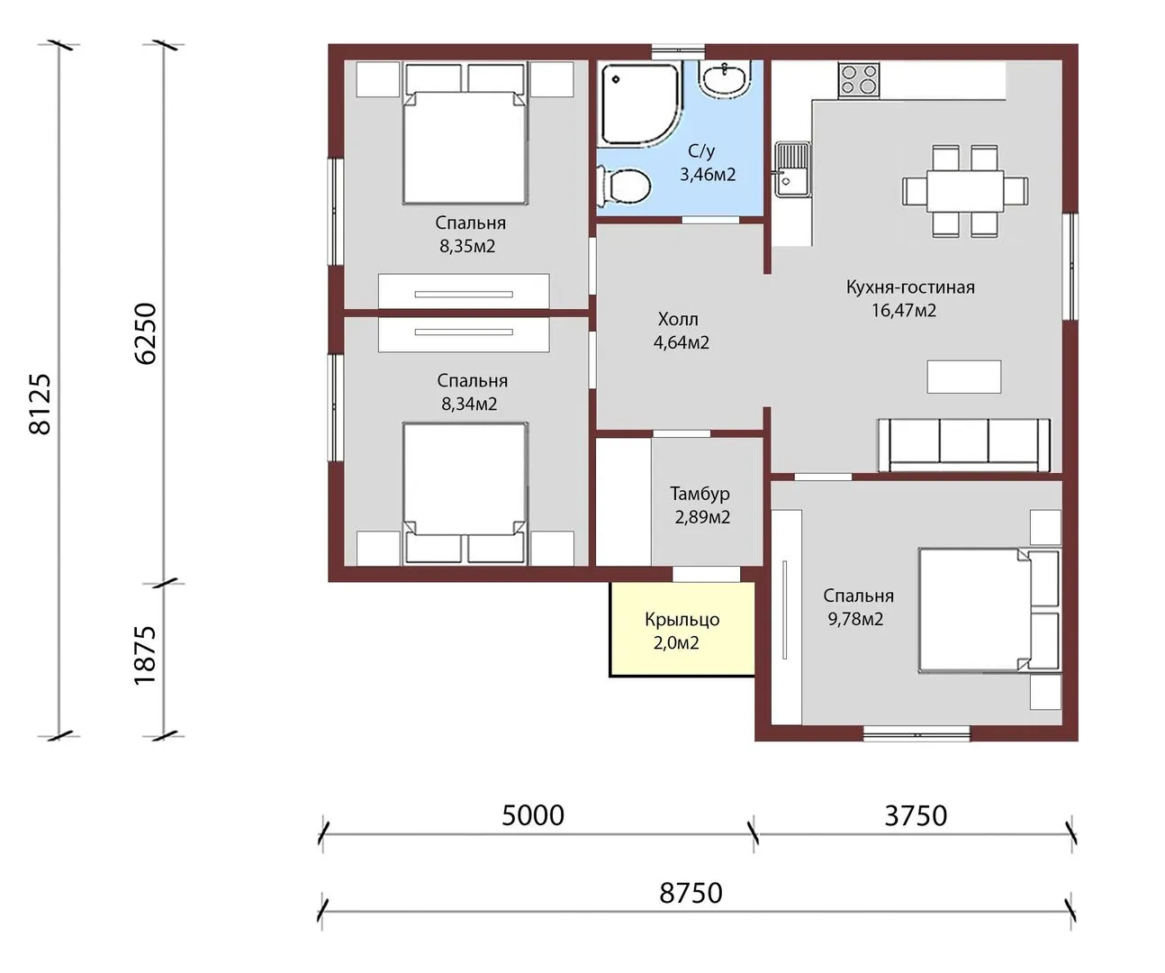
Одноэтажный дом по проекту № 14

Стоимость проекта от:
23 850 ₽
Стоимость строительства от:
3 355 165 ₽
Артикул ART-10406
Дата 25.12.2025
Архитектурный стиль Классический
Количество надземных этажей 1
Круглогодичное проживание Да
Площадь дома 53 м2
Санузлы 1
Спальни 3

Описание

Приглашаем Вас познакомиться с уютным произведением классической архитектуры – одноэтажным домом по проекту № 14. Его строгие, но приветливые линии создают ощущение гармонии и спокойствия, а материал внешних стен – современные SIP‑панели – гарантируют непревзойденную тепло- и звукоизоляцию. Весь дом рассчитан на круглогодичную эксплуатацию: от мягких зимних морозов до летних дней, когда к просторам открывается нежный свет. Внутри вас ждёт просторная светлая планировка с живописными окнами, раскрывающими вид на собственный двор. В отличие от типичных одноэтажных конструкций, здесь присутствует чердачное помещение, которое легко превратится во вторую спальню, кабинет творчества или уютную игровую зону для детей. Отсутствие балконов и веранд не умаляет потенциал, ведь внутри вы сможете создать собственный уголок зелёного уединения – например, огородный уголок у входа или домашний сад прямо под крышей. Дом воплощает идеальный баланс традиционного стиля и современных технологий. Двускатная крыша придаёт зданию характерный силуэт, а аккуратные линии фасада усиливают его элегантность. Удобный планировку, доступный в проекте, без труда подстроить под любые потребности семьи – от уютной летней кулинарной зоны до тихих уголков для чтения и работы. Это ваше пространство, где комфорт и стиль идут рука об руку, создавая атмосферу дома, в которой хочется жить, расти и проводить время с близкими.

Характеристики дома

Архитектурный стиль
Классический
Автоматизированное регулирование параметров теплоносителя
Нет
Балконы/лоджии
Отсутствуют
Чердачное помещение
Да
Датчики протечки воды
Нет
Эксплуатируемая или зеленая кровля
Нет
Электроснабжение
Индивидуальное
Газоснабжение
Индивидуальное
Изоляция воздушного шума
Нет
Камин
Нет
Класс энергоэффективности
-
Класс энергосбережения
-
Количество надземных этажей
1
Круглогодичное проживание
Да
Материал кровли
Металлочерепица
Материал перекрытий
Иной вид материалов перекрытий
Материал внешних стен
SIP-панели
Материал внутренних перегородок
Деревянные
Модульное строительство с конструкциями заводского изготовления
Нет
Объем надземной части
-
Основной материал фасадов
Фасадная плитка
Отопление
Индивидуальное
Площадь дома
53 м2
Площадь застройки
53 м2
Подвальное помещение
Нет
Показатель компактности здания
-
Приборы учета тепловой энергии
Нет
Пристроенный гараж/крытая автостоянка
Нет
Противопожарная система
Нет
Санузлы
1
Совмещенная кухня-гостиная
Да
Спальни
3
Терраса
Нет
Тип фундамента
Свайно-винтовой
Тип кровли
Двускатная
Толщина внешних стен
224 мм
Толщина внутренних перегородок
124 мм
Улучшенные шумовые характеристики
Нет
Вентиляция
2 варианта
Веранда
Нет
Водоотведение
Локальные очистные сооружения
Водоснабжение
Индивидуальное
Высота дома
-
Высота потолков
2.5 м

Планировка

Фасад дома

Александр

Закажите выезд инженера

Александр

Выездной инженер
Закажите выезд инженера для точной диагностики и профессиональной консультации по инженерным системам. Специалист приедет в удобное время, проведёт осмотр, рассчитает стоимость работ и подберёт оптимальные решения для вашего дома.


    Похожие проекты

    Ипотека и
    рассрочка
    Кошачий поселок 1- 80
    Стоимость от:
    5 939 780
    Проект от: 35 550
    Этажей 1
    Санузлы 1
    Спальни 2
    Смотреть
    Ипотека и
    рассрочка
    Одноэтажный П-105
    Стоимость от:
    7 203 240
    Проект от: 45 900
    Этажей 1
    Санузлы 2
    Спальни 3
    Смотреть
    Ипотека и
    рассрочка
    Загородный
    Стоимость от:
    6 041 280
    Проект от: 36 900
    Этажей 2
    Санузлы 1
    Спальни 4
    Смотреть
    Ипотека и
    рассрочка
    Авторский проект «Санфор 2.0»
    Стоимость от:
    6 779 520
    Проект от: 43 200
    Этажей 1
    Санузлы 1
    Спальни 3
    Смотреть
    Ипотека и
    рассрочка
    Проект ГБ‑165
    Стоимость от:
    11 289 300
    Проект от: 74 250
    Этажей 1
    Санузлы 3
    Спальни 2
    Смотреть
    Ипотека и
    рассрочка
    Азов 2-169
    Стоимость от:
    12 028 560
    Проект от: 76 050
    Этажей 2
    Санузлы 2
    Спальни 3
    Смотреть

    Как узнать стоимость дома

    back
    Оставляете заявку
    Вы заполняете форму на сайте или звоните нам. Менеджер Лайвкрафт связывается с вами для уточнения деталей: тип дома, площадь, материалы, участок строительства.
    back
    Консультация и подбор решения
    Наш специалист помогает выбрать оптимальный тип дома и конструкцию с учётом бюджета, сроков и целей — будь то дом для постоянного проживания или дача.
    back
    Расчёт предварительной стоимости
    Инженер делает первичный расчёт стоимости строительства по вашим параметрам: фундамент, коробка, кровля, отделка. Вы получаете смету с разбивкой по этапам.
    back
    Корректировка и утверждение сметы
    При необходимости вносим изменения — например, замену материалов или сокращение этапов. После согласования формируется окончательная фиксированная смета.
    back
    Заключение договора и старт работ
    После утверждения сметы заключаем официальный договор с гарантией. Вы получаете прозрачный график и точную стоимость — без скрытых расходов.

    Заказать конусльтацию по:Одноэтажный дом по проекту № 14

    Фото 1 Одноэтажный дом по проекту № 14


      Наши
      контакты

      Дмитров
      Опорный проезд 28Б
      (индустриальный парк Ниагара)
      9:00 до 18:00

      Корзина