4.9
Рейтинг на основании 120 отзывов
Дмитров
Опорный проезд 28Б
(индустриальный парк Ниагара)
Бренд "Дмитров-Дело" c 2008 года на рынке строительства в Дмитрове
Звоните 9:00 до 18:00 8 (915) 055-33-61
Бренд "Дмитров-Дело" c 2008 года на рынке строительства в Дмитрове

Одноэтажный дом ПР 1-110 Чистополь

Стоимость проекта от:
49 050 ₽
БЕСПЛАТНО! ПРИ ЗАКАЗЕ СТРОИТЕЛЬСТВА
Стоимость строительства от:
8 190 380 ₽
Артикул ART-12938
Дата 25.12.2025
Архитектурный стиль Классический
Количество надземных этажей 1
Круглогодичное проживание Да
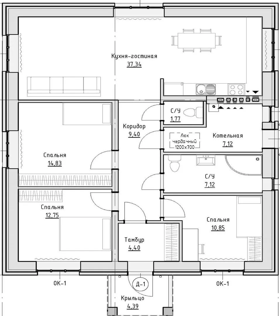
Площадь дома 109 м2
Санузлы 2
Спальни 3

Описание

Сердце Чистополя ждёт вас в этом уютном однобетонном доме на участке PR 1‑110. Он создан для тех, кто ценит гармонию стиля и комфорта: классический фасад из крепкого кирпича, традиционная четырёхскатная (вальмовая) крыша, а в тёплые и холодные часы дня в доме всегда тепло. Её один надземный этаж обеспечивает идеальный баланс пространства и приватности, а наличие чердачного помещения даёт вам возможность превратить его в кабинет, игровую комнату или дополнительное жилое пространство по вашему вкусу. В доме нет открытых балконов и веранд, но каждый уголок проработан с вниманием к деталям, чтобы вы могли наслаждаться домашним уютом в любой момент года. Стены, выполненные из классического кирпича, дарят тепло и ощущение надёжности, а простая, но элегантная крыша подчёркивает утончённость традиционного архитектурного подхода. Внутри вы найдёте просторные и светлые помещения, идеально подходящие для создания домашнего очага с близкими и друзьями. Хотя в доме нет прицепленного гаража, открытая автостоянка соседних домов предоставит вам удобный доступ к вашему автомобилю, а отсутствие балконов и веранд придаёт интерьеру чистоту и элегантность. Это место, где каждый камень пропитан историей, а пространство готово стать вашим настоящим уютным домом. Не упустите шанс стать владельцем этого красивого, практичного и надёжного дома в Чистополе — он ждёт вас с открытыми дверями.

Характеристики дома

Архитектурный стиль
Автоматизированное регулирование параметров теплоносителя
Нет
Балконы/лоджии
Отсутствуют
Чердачное помещение
Да
Датчики протечки воды
Нет
Эксплуатируемая или зеленая кровля
Нет
Электроснабжение
2 варианта
Газоснабжение
Не предусмотрено
Изоляция воздушного шума
Нет
Камин
Нет
Класс энергоэффективности
-
Класс энергосбережения
-
Количество надземных этажей
1
Круглогодичное проживание
Да
Материал кровли
Металлочерепица
Материал перекрытий
Монолитные железобетонные
Материал внешних стен
Материал внутренних перегородок
Кирпичные
Модульное строительство с конструкциями заводского изготовления
Нет
Объем надземной части
-
Основной материал фасадов
Облицовочный кирпич
Отопление
Индивидуальное
Площадь дома
109 м2
Площадь застройки
143 м2
Подвальное помещение
Нет
Показатель компактности здания
-
Приборы учета тепловой энергии
Нет
Пристроенный гараж/крытая автостоянка
Нет
Противопожарная система
Нет
Санузлы
2
Совмещенная кухня-гостиная
Да
Спальни
3
Терраса
Нет
Тип фундамента
Свайно-ростверковый
Толщина внешних стен
500 мм
Толщина внутренних перегородок
125 мм
Улучшенные шумовые характеристики
Нет
Вентиляция
Естественная
Веранда
Нет
Водоотведение
Не предусмотрено
Водоснабжение
Не предусмотрено
Высота дома
5.76 м
Высота потолков
3 м

Планировка

Фасад дома

Александр

Закажите выезд инженера

Александр

Выездной инженер
Закажите выезд инженера для точной диагностики и профессиональной консультации по инженерным системам. Специалист приедет в удобное время, проведёт осмотр, рассчитает стоимость работ и подберёт оптимальные решения для вашего дома.


    Похожие проекты

    Ипотека и
    рассрочка
    Одноэтажный дом «Бунин»
    Стоимость от:
    6 499 900
    Проект от: 42 750
    Этажей 1
    Санузлы 1
    Спальни 3
    Смотреть
    Ипотека и
    рассрочка
    Одноэтажный кирпичный дом MIDDLE — 87 m2 (Декоративная штукатурка)
    Стоимость от:
    4 941 640
    Проект от: 27 900
    Этажей 1
    Санузлы 1
    Спальни 2
    Смотреть
    Ипотека и
    рассрочка
    Загородный дом по проекту «mini — азарий».
    Стоимость от:
    9 959 040
    Проект от: 70 200
    Этажей 2
    Санузлы 2
    Спальни 2
    Смотреть
    Ипотека и
    рассрочка
    D125
    Стоимость от:
    8 940 580
    Проект от: 53 550
    Этажей 1
    Санузлы 2
    Спальни 3
    Смотреть
    Ипотека и
    рассрочка
    FORTRESS-2
    Стоимость от:
    7 123 680
    Проект от: 45 900
    Этажей 2
    Санузлы 2
    Спальни 3
    Смотреть
    Ипотека и
    рассрочка
    Одноэтажный дом «Флоки 99» в скандинавском стиле
    Стоимость от:
    5 722 695
    Проект от: 44 550
    Этажей 1
    Санузлы 1
    Спальни 2
    Смотреть

    Как узнать стоимость дома

    back
    Оставляете заявку
    Вы заполняете форму на сайте или звоните нам. Менеджер Лайвкрафт связывается с вами для уточнения деталей: тип дома, площадь, материалы, участок строительства.
    back
    Консультация и подбор решения
    Наш специалист помогает выбрать оптимальный тип дома и конструкцию с учётом бюджета, сроков и целей — будь то дом для постоянного проживания или дача.
    back
    Расчёт предварительной стоимости
    Инженер делает первичный расчёт стоимости строительства по вашим параметрам: фундамент, коробка, кровля, отделка. Вы получаете смету с разбивкой по этапам.
    back
    Корректировка и утверждение сметы
    При необходимости вносим изменения — например, замену материалов или сокращение этапов. После согласования формируется окончательная фиксированная смета.
    back
    Заключение договора и старт работ
    После утверждения сметы заключаем официальный договор с гарантией. Вы получаете прозрачный график и точную стоимость — без скрытых расходов.

    Заказать конусльтацию по:Одноэтажный дом ПР 1-110 Чистополь

    Фото 1 Одноэтажный дом ПР 1-110 Чистополь


      Наши
      контакты

      Дмитров
      Опорный проезд 28Б
      (индустриальный парк Ниагара)
      9:00 до 18:00

      Корзина