4.9
Рейтинг на основании 120 отзывов
Дмитров
Опорный проезд 28Б
(индустриальный парк Ниагара)
Бренд "Дмитров-Дело" c 2008 года на рынке строительства в Дмитрове
Звоните 9:00 до 18:00 8 (915) 055-33-61
Бренд "Дмитров-Дело" c 2008 года на рынке строительства в Дмитрове

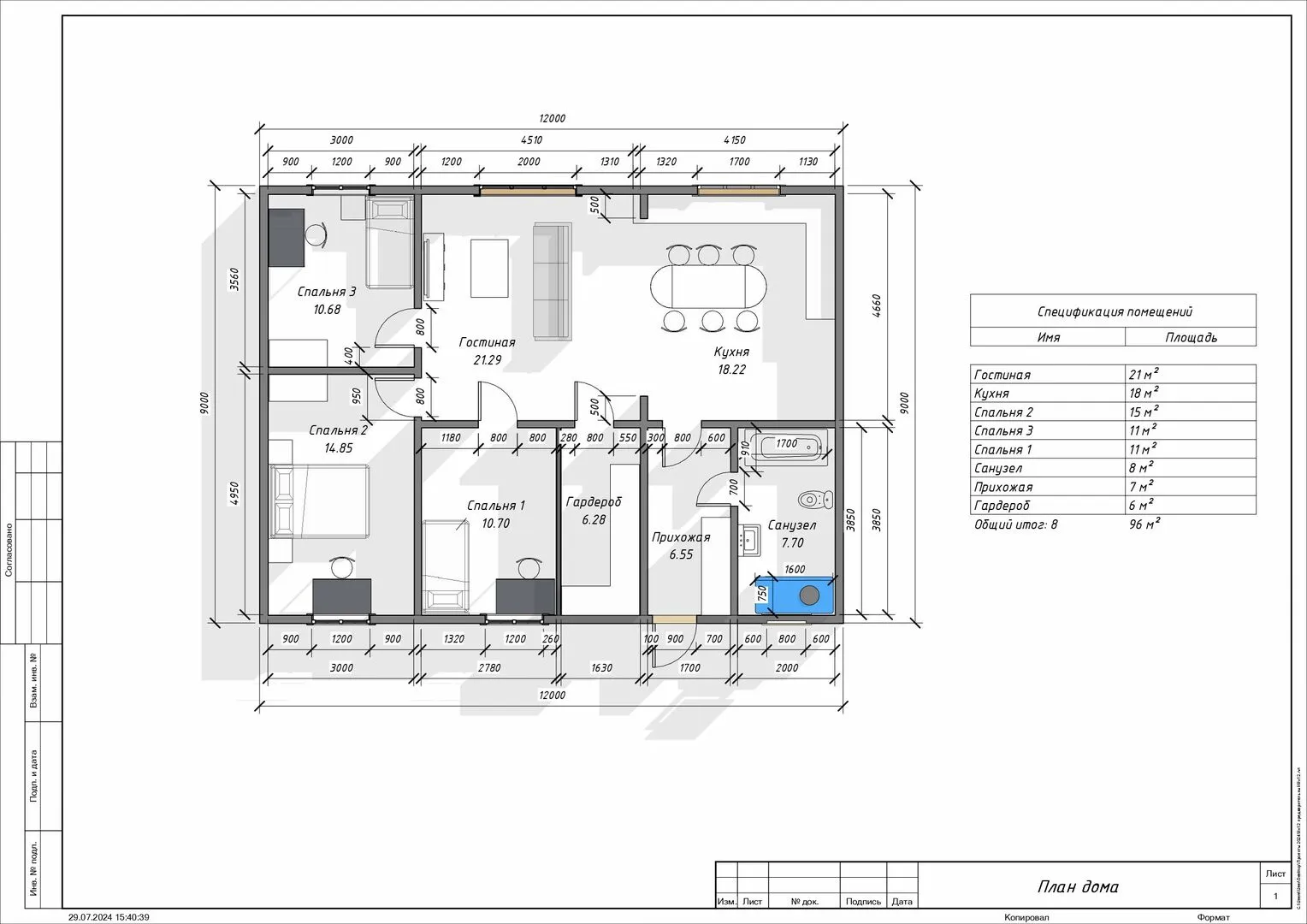
Одноэтажный дом размером 9*12

Стоимость проекта от:
48 600 ₽
БЕСПЛАТНО! ПРИ ЗАКАЗЕ СТРОИТЕЛЬСТВА
Стоимость строительства от:
8 594 960 ₽
Артикул ART-12260
Дата 25.12.2025
Архитектурный стиль Классический
Количество надземных этажей 1
Круглогодичное проживание Да
Площадь дома 108 м2
Санузлы 1
Спальни 3

Описание

Прекрасный одноэтажный дом площадью 108 м² (9 м × 12 м) воплощает в себе гармоничное сочетание традиционных ценностей и современного комфорта. Его классический фасад из профилированного бруса не только сохраняет тепло и защищает от внешних воздействий, но и создаёт ощущение надёжности и уюта, словно вы приглашён в домашний круг друзей. Двускатная крыша подчёркивает элегантность архитектуры, придавая дому строгую, но при этом открывающую на мир простоту, позволяющую влюбиться в каждый уголок. Дом идеально подходит для круглогодичного проживания. Современные инженерные системы, продуманная планировка и качественные материалы делают его комфортным оазисом в любое время года. Внутри царит тёплая атмосфера, где каждый квадратный метр наполнен светом и уютом. Классический стиль не только ценен визуально, но и практичен — простые, но изысканные линии, которые легко вписать в любой ландшафт и окружение. Уникальность этого жилья заключена в его отсутствии лишних структур: нет балконов, веранды, чердака или крытой автостоянки, но и в отсутствии стеснительных элементов, благодаря которым пространство раскрывается полностью. Это идеальное решение для тех, кто ценит чистую, функциональную жилую площадь, а не лишние детали. Приходите и убедитесь сами: этот дом — ваш новый уголок счастья, где каждая деталь сделана с любовью к вам и вам будет уютно, в нём!

Характеристики дома

Архитектурный стиль
Автоматизированное регулирование параметров теплоносителя
Нет
Балконы/лоджии
Отсутствуют
Чердачное помещение
Нет
Датчики протечки воды
Нет
Эксплуатируемая или зеленая кровля
Нет
Электроснабжение
Не предусмотрено
Газоснабжение
Не предусмотрено
Изоляция воздушного шума
Нет
Камин
Нет
Класс энергоэффективности
-
Класс энергосбережения
-
Количество надземных этажей
1
Круглогодичное проживание
Да
Материал кровли
Металлочерепица
Материал перекрытий
Деревянные
Материал внешних стен
Материал внутренних перегородок
Деревянные
Модульное строительство с конструкциями заводского изготовления
Нет
Объем надземной части
324 м3
Основной материал фасадов
Дерево
Отопление
Не предусмотрено
Площадь дома
108 м2
Площадь застройки
108 м2
Подвальное помещение
Нет
Показатель компактности здания
-
Приборы учета тепловой энергии
Нет
Пристроенный гараж/крытая автостоянка
Нет
Противопожарная система
Нет
Санузлы
1
Совмещенная кухня-гостиная
Да
Спальни
3
Терраса
Нет
Тип фундамента
Ленточный
Тип кровли
Толщина внешних стен
170 мм
Толщина внутренних перегородок
150 мм
Улучшенные шумовые характеристики
Нет
Вентиляция
Естественная
Веранда
Нет
Водоотведение
Не предусмотрено
Водоснабжение
Не предусмотрено
Высота дома
6.5 м
Высота потолков
2.7 м

Планировка

Фасад дома

Александр

Закажите выезд инженера

Александр

Выездной инженер
Закажите выезд инженера для точной диагностики и профессиональной консультации по инженерным системам. Специалист приедет в удобное время, проведёт осмотр, рассчитает стоимость работ и подберёт оптимальные решения для вашего дома.


    Похожие проекты

    Ипотека и
    рассрочка
    Одноэтажный проект AMIANA
    Стоимость от:
    9 390 700
    Проект от: 56 250
    Этажей 1
    Санузлы 2
    Спальни 3
    Смотреть
    Ипотека и
    рассрочка
    Одноэтажный дом FK-98 Мирный
    Стоимость от:
    7 365 160
    Проект от: 44 100
    Этажей 1
    Санузлы 1
    Спальни 2
    Смотреть
    Ипотека и
    рассрочка
    Сканди 2
    Стоимость от:
    4 517 370
    Проект от: 36 450
    Этажей 1
    Санузлы 1
    Спальни 2
    Смотреть
    Ипотека и
    рассрочка
    Загородный одноэтажный дом с двускатной кровлей GSB-1F-139-Т46
    Стоимость от:
    12 657 700
    Проект от: 83 250
    Этажей 1
    Санузлы 2
    Спальни 4
    Смотреть
    Ипотека и
    рассрочка
    Дом из клееного бруса «Смоленск»
    Стоимость от:
    10 813 680
    Проект от: 75 150
    Этажей 2
    Санузлы 2
    Спальни 6
    Смотреть
    Ипотека и
    рассрочка
    Мир 2202
    Стоимость от:
    14 843 840
    Проект от: 86 400
    Этажей 1
    Санузлы 3
    Спальни 4
    Смотреть

    Как узнать стоимость дома

    back
    Оставляете заявку
    Вы заполняете форму на сайте или звоните нам. Менеджер Лайвкрафт связывается с вами для уточнения деталей: тип дома, площадь, материалы, участок строительства.
    back
    Консультация и подбор решения
    Наш специалист помогает выбрать оптимальный тип дома и конструкцию с учётом бюджета, сроков и целей — будь то дом для постоянного проживания или дача.
    back
    Расчёт предварительной стоимости
    Инженер делает первичный расчёт стоимости строительства по вашим параметрам: фундамент, коробка, кровля, отделка. Вы получаете смету с разбивкой по этапам.
    back
    Корректировка и утверждение сметы
    При необходимости вносим изменения — например, замену материалов или сокращение этапов. После согласования формируется окончательная фиксированная смета.
    back
    Заключение договора и старт работ
    После утверждения сметы заключаем официальный договор с гарантией. Вы получаете прозрачный график и точную стоимость — без скрытых расходов.

    Заказать конусльтацию по:Одноэтажный дом размером 9*12

    Фото 1 Одноэтажный дом размером 9*12


      Наши
      контакты

      Дмитров
      Опорный проезд 28Б
      (индустриальный парк Ниагара)
      9:00 до 18:00

      Корзина