4.9
Рейтинг на основании 120 отзывов
Дмитров
Опорный проезд 28Б
(индустриальный парк Ниагара)
Бренд "Дмитров-Дело" c 2008 года на рынке строительства в Дмитрове
Звоните 9:00 до 18:00 8 (915) 055-33-61
Бренд "Дмитров-Дело" c 2008 года на рынке строительства в Дмитрове

Одноэтажный дом «Романов»

Стоимость проекта от:
53 550 ₽
Стоимость строительства от:
8 141 980 ₽
Артикул ART-12706
Дата 25.12.2025
Архитектурный стиль Европейский
Количество надземных этажей 1
Круглогодичное проживание Да
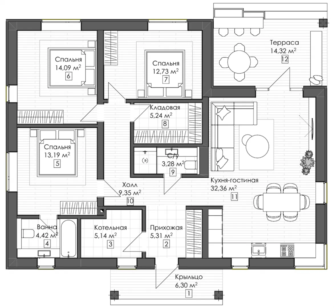
Площадь дома 119 м2
Санузлы 2
Спальни 3

Описание

Прекрасный одноэтажный дом «Романов» — идеальная находка для тех, кто ценит уют и европейскую элегантность. Стены в керамическом блоке придают зданию тепло и долговечность, а величественная четырехскатная (вальмовая) крыша добавляет нотки традиционной европейской архитектуры. Дом рассчитан на круглогодичное проживание: тепло сохраняется в уютных помещениях, в то время как открытая веранда и отсутствие лишних балконов делают пространство более гармоничным и приглашающим. Внутри вас встретит просторная гостиная с открытой планировкой, созданная для комфортного отдыха и бесконечных семейных вечеров. В интерьере дом «Романов» сочетает строгие линии и мягкие детали: нейтральные тона стен, качественные материалы напольных покрытий и продуманное освещение создают атмосферу современного европейского стиля. В каждом уголке ощущается внимательное отношение к деталям, а наличие чердачного помещения предлагает дополнительное пространство для хранения или будущего расширения. Терраса дома открывает вам возможность наслаждаться свежим воздухом, создавать саду и загорать даже в прохладные зимние дни. Несмотря на отсутствие привального гаража, площадь вокруг дома оставлена свободной для организации собственного участка с огородом, прудом или детской площадкой. Дом «Романов» сочетает в себе практичность, эстетичность и непревзойденный комфорт, предлагая идеальное место для жизни и отдыха вашей семьи.

Характеристики дома

Архитектурный стиль
Европейский
Автоматизированное регулирование параметров теплоносителя
Нет
Балконы/лоджии
Отсутствуют
Чердачное помещение
Да
Датчики протечки воды
Нет
Эксплуатируемая или зеленая кровля
Нет
Электроснабжение
Центральное
Газоснабжение
Индивидуальное
Изоляция воздушного шума
Нет
Камин
Нет
Класс энергоэффективности
A++
Класс энергосбережения
A++
Количество надземных этажей
1
Круглогодичное проживание
Да
Материал кровли
Битумная черепица
Материал перекрытий
Деревянные
Материал внешних стен
Керамический блок
Материал внутренних перегородок
Кирпичные
Модульное строительство с конструкциями заводского изготовления
Нет
Объем надземной части
375 м3
Основной материал фасадов
Облицовочный кирпич
Отопление
Индивидуальное
Площадь дома
119 м2
Площадь застройки
143 м2
Подвальное помещение
Нет
Показатель компактности здания
1
Приборы учета тепловой энергии
Нет
Пристроенный гараж/крытая автостоянка
Нет
Противопожарная система
Нет
Санузлы
2
Совмещенная кухня-гостиная
Да
Спальни
3
Терраса
Да
Тип фундамента
Плитный
Тип кровли
Четырехскатная (вальмовая)
Толщина внешних стен
475 мм
Толщина внутренних перегородок
120 мм
Улучшенные шумовые характеристики
Да
Вентиляция
Естественная
Веранда
Нет
Водоотведение
Локальные очистные сооружения
Водоснабжение
Индивидуальное
Высота дома
6.09 м
Высота потолков
3 м

Планировка

Фасад дома

Александр

Закажите выезд инженера

Александр

Выездной инженер
Закажите выезд инженера для точной диагностики и профессиональной консультации по инженерным системам. Специалист приедет в удобное время, проведёт осмотр, рассчитает стоимость работ и подберёт оптимальные решения для вашего дома.


    Похожие проекты

    Ипотека и
    рассрочка
    Загородный дом №373
    Стоимость от:
    7 324 240
    Проект от: 41 400
    Этажей 1
    Санузлы 2
    Спальни 3
    Смотреть
    Ипотека и
    рассрочка
    Авторский проект «Нексис 1.0»
    Стоимость от:
    8 686 260
    Проект от: 55 350
    Этажей 1
    Санузлы 1
    Спальни 3
    Смотреть
    Ипотека и
    рассрочка
    Невонка
    Стоимость от:
    8 187 630
    Проект от: 58 050
    Этажей 1
    Санузлы 1
    Спальни 3
    Смотреть
    Ипотека и
    рассрочка
    Одноэтажный дом с большими окнами S-108
    Стоимость от:
    11 446 160
    Проект от: 66 600
    Этажей 1
    Санузлы 2
    Спальни 3
    Смотреть
    Ипотека и
    рассрочка
    ТН-169
    Стоимость от:
    11 005 800
    Проект от: 76 500
    Этажей 2
    Санузлы 3
    Спальни 4
    Смотреть
    Ипотека и
    рассрочка
    Одноэтажный дом СД-4
    Стоимость от:
    6 426 420
    Проект от: 40 950
    Этажей 1
    Санузлы 2
    Спальни 3
    Смотреть

    Как узнать стоимость дома

    back
    Оставляете заявку
    Вы заполняете форму на сайте или звоните нам. Менеджер Лайвкрафт связывается с вами для уточнения деталей: тип дома, площадь, материалы, участок строительства.
    back
    Консультация и подбор решения
    Наш специалист помогает выбрать оптимальный тип дома и конструкцию с учётом бюджета, сроков и целей — будь то дом для постоянного проживания или дача.
    back
    Расчёт предварительной стоимости
    Инженер делает первичный расчёт стоимости строительства по вашим параметрам: фундамент, коробка, кровля, отделка. Вы получаете смету с разбивкой по этапам.
    back
    Корректировка и утверждение сметы
    При необходимости вносим изменения — например, замену материалов или сокращение этапов. После согласования формируется окончательная фиксированная смета.
    back
    Заключение договора и старт работ
    После утверждения сметы заключаем официальный договор с гарантией. Вы получаете прозрачный график и точную стоимость — без скрытых расходов.

    Заказать конусльтацию по:Одноэтажный дом «Романов»

    Фото 1 Одноэтажный дом «Романов»


      Наши
      контакты

      Дмитров
      Опорный проезд 28Б
      (индустриальный парк Ниагара)
      9:00 до 18:00