4.9
Рейтинг на основании 120 отзывов
Дмитров
Опорный проезд 28Б
(индустриальный парк Ниагара)
Бренд "Дмитров-Дело" c 2008 года на рынке строительства в Дмитрове
Звоните 9:00 до 18:00 8 (915) 055-33-61
Бренд "Дмитров-Дело" c 2008 года на рынке строительства в Дмитрове

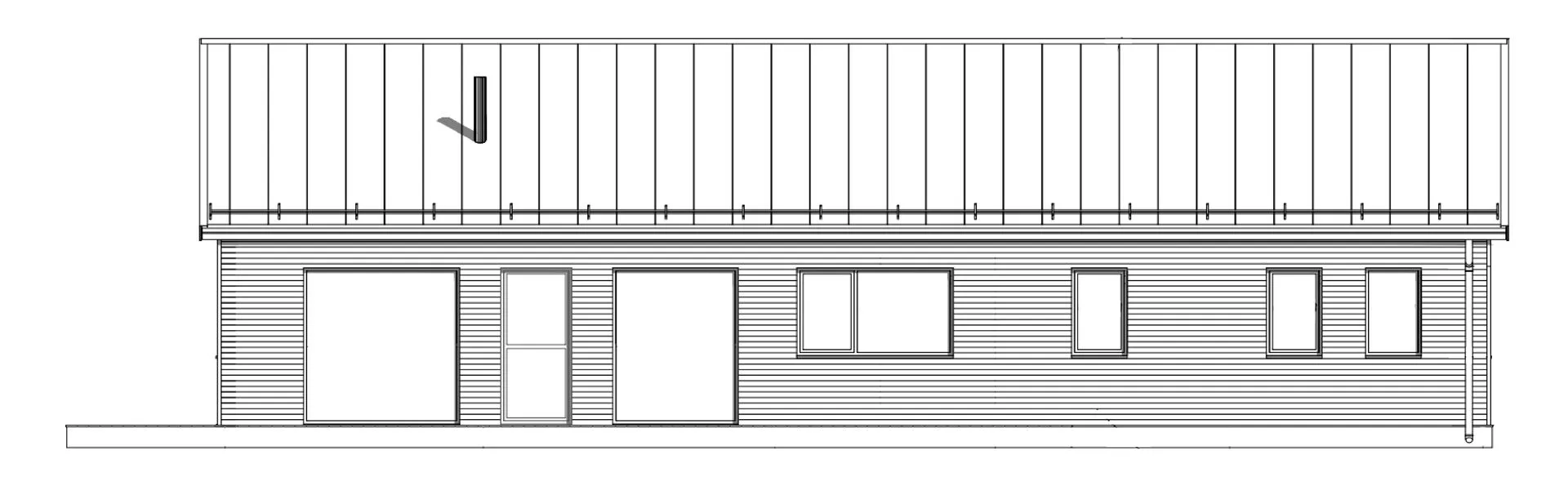
Одноэтажный дом Швеция 130

Стоимость проекта от:
78 750 ₽
БЕСПЛАТНО! ПРИ ЗАКАЗЕ СТРОИТЕЛЬСТВА
Стоимость строительства от:
11 107 250 ₽
Артикул ART-19357
Дата 26.12.2025
Архитектурный стиль Скандинавский
Количество надземных этажей 1
Круглогодичное проживание Да
Площадь дома 175 м2
Санузлы 2
Спальни 4

Описание

Небольшой, но уютный одностояний дом площадью 130 м², расположенный в живописном уголке Швеции, очарует своей простотой и функциональностью. Понравится семье, которая ценит комфорт, открывает окна для прохладного северного воздуха, а также всем, кто ищет простор для творчества и семейного уюта. Стильный скандинавский фасад, выполненный в каркасно‑панельной технологии, подчёркивает современную эстетику и гарантирует высокий уровень тепло- и звукоизоляции. Двускатная крыша в сочетании с натуральными материалами и изысканным светом создаёт гармоничную атмосферу, в которой каждый уголок ощущается как часть природы. Одный уровень, без лестниц и подъёмов, делает дом идеальным для пожилых и людей с ограниченной мобильностью. Большое и светлое внутреннее пространство с открытой планировкой превращает кухню, столовую и гостиную в единый живой круг, где каждый ощущает связь с общим пространством. Большие панорамные окна и элегантные деревянные детали придают помещению тепло и естественность, а мягкие, нейтральные тона фасада подчеркивают скандинавскую традицию лаконичности и практичности. Терраса на задней части дома – это ваш личный уголок для уютных вечеров, барбекю с семьёй или просто отдыха под звёздами. Минимальное количество наружных элементов (отсутствие балконов и веранды) повышает энергоэффективность и делает дом лаконичным и стильным, а отсутствие прикрепленного гаража делает пространство более свободным и открытым. В итоге вы получаете компактный, но ярко оформленный дом, в котором каждый сантиметр максимально продуман, а атмосфера всегда наполнена теплом, светом и благородной простотой.

Характеристики дома

Архитектурный стиль
Автоматизированное регулирование параметров теплоносителя
Нет
Балконы/лоджии
Отсутствуют
Чердачное помещение
Нет
Датчики протечки воды
Нет
Эксплуатируемая или зеленая кровля
Нет
Электроснабжение
Центральное
Газоснабжение
Центральное
Изоляция воздушного шума
Нет
Камин
Нет
Класс энергоэффективности
-
Класс энергосбережения
-
Количество надземных этажей
1
Круглогодичное проживание
Да
Материал кровли
Металлочерепица
Материал перекрытий
Деревянные
Материал внешних стен
Материал внутренних перегородок
Деревянные
Модульное строительство с конструкциями заводского изготовления
Да
Объем надземной части
-
Основной материал фасадов
Дерево
Отопление
2 варианта
Площадь дома
175 м2
Площадь застройки
257 м2
Подвальное помещение
Нет
Показатель компактности здания
-
Приборы учета тепловой энергии
Нет
Пристроенный гараж/крытая автостоянка
Нет
Противопожарная система
Нет
Санузлы
2
Совмещенная кухня-гостиная
Да
Спальни
4
Терраса
Да
Тип фундамента
Свайный
Тип кровли
Толщина внешних стен
195 мм
Толщина внутренних перегородок
170 мм
Улучшенные шумовые характеристики
Нет
Вентиляция
Принудительная
Веранда
Нет
Водоотведение
2 варианта
Водоснабжение
2 варианта
Высота дома
-
Высота потолков
3.3 м

Планировка

Фасад дома

Александр

Закажите выезд инженера

Александр

Выездной инженер
Закажите выезд инженера для точной диагностики и профессиональной консультации по инженерным системам. Специалист приедет в удобное время, проведёт осмотр, рассчитает стоимость работ и подберёт оптимальные решения для вашего дома.


    Похожие проекты

    Ипотека и
    рассрочка
    Проект ГБ-170-24
    Стоимость от:
    12 492 480
    Проект от: 81 900
    Этажей 2
    Санузлы 3
    Спальни 4
    Смотреть
    Ипотека и
    рассрочка
    Проект загородного дома NHD-136
    Стоимость от:
    7 527 360
    Проект от: 46 800
    Этажей 2
    Санузлы 2
    Спальни 4
    Смотреть
    Ипотека и
    рассрочка
    КВ-1-65barn
    Стоимость от:
    3 625 050
    Проект от: 29 250
    Этажей 1
    Санузлы 1
    Спальни 2
    Смотреть
    Ипотека и
    рассрочка
    Индивидуальный жилой дом с гаражом
    Стоимость от:
    11 511 060
    Проект от: 73 350
    Этажей 1
    Санузлы 2
    Спальни 3
    Смотреть
    Ипотека и
    рассрочка
    Дом, Проект 885, 1эт, 9х9м, брус 140х190мм
    Стоимость от:
    5 735 840
    Проект от: 32 400
    Этажей 1
    Санузлы 1
    Спальни 2
    Смотреть
    Ипотека и
    рассрочка
    ФД 96
    Стоимость от:
    5 508 360
    Проект от: 35 100
    Этажей 1
    Санузлы 1
    Спальни 3
    Смотреть

    Как узнать стоимость дома

    back
    Оставляете заявку
    Вы заполняете форму на сайте или звоните нам. Менеджер Лайвкрафт связывается с вами для уточнения деталей: тип дома, площадь, материалы, участок строительства.
    back
    Консультация и подбор решения
    Наш специалист помогает выбрать оптимальный тип дома и конструкцию с учётом бюджета, сроков и целей — будь то дом для постоянного проживания или дача.
    back
    Расчёт предварительной стоимости
    Инженер делает первичный расчёт стоимости строительства по вашим параметрам: фундамент, коробка, кровля, отделка. Вы получаете смету с разбивкой по этапам.
    back
    Корректировка и утверждение сметы
    При необходимости вносим изменения — например, замену материалов или сокращение этапов. После согласования формируется окончательная фиксированная смета.
    back
    Заключение договора и старт работ
    После утверждения сметы заключаем официальный договор с гарантией. Вы получаете прозрачный график и точную стоимость — без скрытых расходов.

    Заказать конусльтацию по:Одноэтажный дом Швеция 130

    Фото 1 Одноэтажный дом Швеция 130


      Наши
      контакты

      Дмитров
      Опорный проезд 28Б
      (индустриальный парк Ниагара)
      9:00 до 18:00

      Корзина