4.9
Рейтинг на основании 120 отзывов
Дмитров
Опорный проезд 28Б
(индустриальный парк Ниагара)
Бренд "Дмитров-Дело" c 2008 года на рынке строительства в Дмитрове
Звоните 9:00 до 18:00 8 (915) 055-33-61
Бренд "Дмитров-Дело" c 2008 года на рынке строительства в Дмитрове

Одноэтажный дом Сканди Вилье ВМ

Стоимость проекта от:
68 400 ₽
БЕСПЛАТНО! ПРИ ЗАКАЗЕ СТРОИТЕЛЬСТВА
Стоимость строительства от:
8 811 440 ₽
Артикул ART-18422
Дата 26.12.2025
Архитектурный стиль Скандинавский
Количество надземных этажей 1
Круглогодичное проживание Да
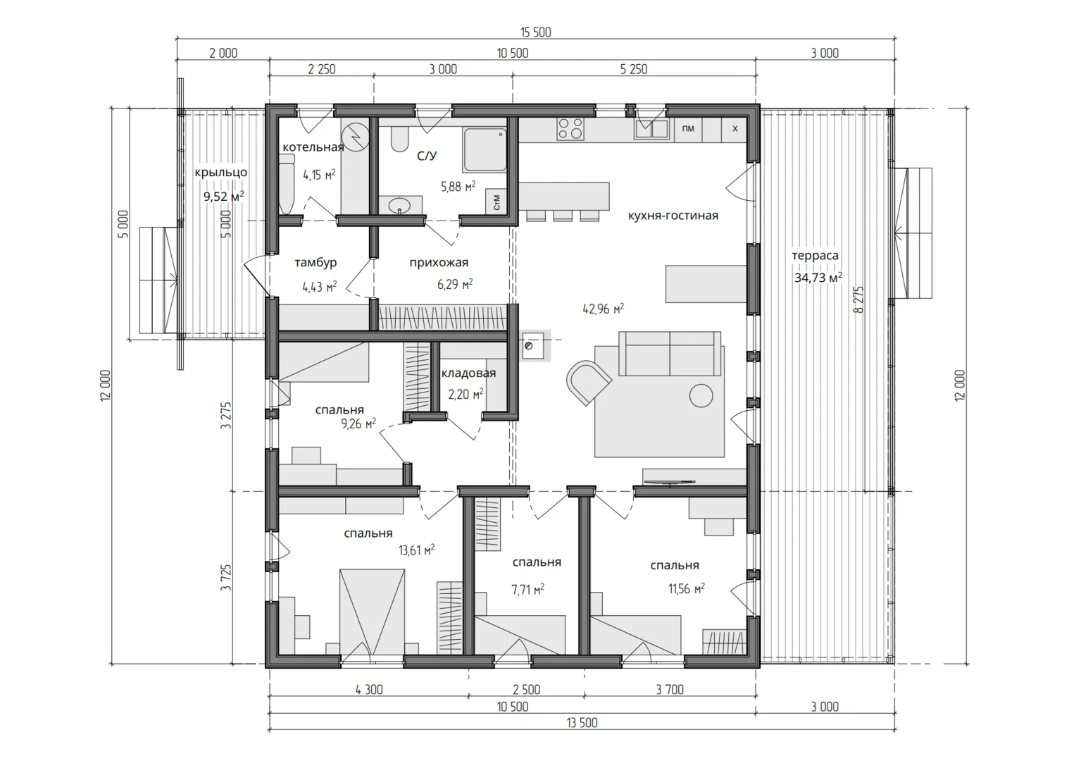
Площадь дома 152 м2
Санузлы 1
Спальни 4

Описание

**Уютное одноэтажное убежище в скандинавском стиле** Эта замечательная квартира в доме «Сканди Вилье ВМ» воплощает в себе все преимущества северной эстетики: простота форм, функциональность и гармоничное соединение природы с жизнью. Огромный простор внутри и открытая планировка создают ощущение лёгкости и свободы, позволяя адаптировать пространство под любые потребности. Внутри вы почувствуете тепло деревянного каркаса, уютную атмосферу и тёплое освещение, которое меняется в течение дня. **Практичная и продуманная обстановка** Зимы здесь не страшны – дома с круглогодичным проживанием, в том числе крытая, защищена от холода. Большие оконные проёмы пропускают мягкий свет, а терраса приглашает проводить вечерние мгновения на свежем воздухе, погружившись в звуки природы. Наличие чердачного пространства открывает новые возможности: можно превратить его в мастерскую, детскую комнату, офис или просто хранить сезонные вещи. **Современные решения и экологичность** Стены построены из деревянного каркаса, что обеспечивает не только долговечность, но и экологическую чистоту. Многощипковая кровля не только красива, но и экономична в обслуживании. Нет лишних элементов: как веранда, так и прикрытая автостоянка, что позволяет сосредоточиться на том, что действительно важно – доме как месте для отдыха и самовыражения. Этот дом – идеальный выбор для тех, кто ценит чистую архитектуру, комфорт и связь с природой, но не хочет жертвовать функциональностью и простотой. Здесь каждый день напоминает прогулку по тёплым, светлым улицам северного города.

Характеристики дома

Архитектурный стиль
Автоматизированное регулирование параметров теплоносителя
Нет
Балконы/лоджии
Отсутствуют
Чердачное помещение
Да
Датчики протечки воды
Нет
Эксплуатируемая или зеленая кровля
Нет
Электроснабжение
Не предусмотрено
Газоснабжение
Не предусмотрено
Изоляция воздушного шума
Да
Камин
Да
Класс энергоэффективности
-
Класс энергосбережения
-
Количество надземных этажей
1
Круглогодичное проживание
Да
Материал кровли
Металлочерепица
Материал перекрытий
Деревянные
Материал внешних стен
Материал внутренних перегородок
Деревянные
Модульное строительство с конструкциями заводского изготовления
Нет
Объем надземной части
665 м3
Основной материал фасадов
Дерево
Отопление
Не предусмотрено
Площадь дома
152 м2
Площадь застройки
179 м2
Подвальное помещение
Нет
Показатель компактности здания
-
Приборы учета тепловой энергии
Нет
Пристроенный гараж/крытая автостоянка
Нет
Противопожарная система
Нет
Санузлы
1
Совмещенная кухня-гостиная
Да
Спальни
4
Терраса
Да
Тип фундамента
Свайный
Тип кровли
Толщина внешних стен
270 мм
Толщина внутренних перегородок
140 мм
Улучшенные шумовые характеристики
Да
Вентиляция
Естественная
Веранда
Нет
Водоотведение
Не предусмотрено
Водоснабжение
Не предусмотрено
Высота дома
6.7 м
Высота потолков
3 м

Планировка

Фасад дома

Александр

Закажите выезд инженера

Александр

Выездной инженер
Закажите выезд инженера для точной диагностики и профессиональной консультации по инженерным системам. Специалист приедет в удобное время, проведёт осмотр, рассчитает стоимость работ и подберёт оптимальные решения для вашего дома.


    Похожие проекты

    Ипотека и
    рассрочка
    Жилой одноэтажный дом с тремя спальнями
    Стоимость от:
    7 743 340
    Проект от: 54 900
    Этажей 1
    Санузлы 2
    Спальни 3
    Смотреть
    Ипотека и
    рассрочка
    С 10
    Стоимость от:
    14 071 640
    Проект от: 81 900
    Этажей 1
    Санузлы 1
    Спальни 3
    Смотреть
    Ипотека и
    рассрочка
    ГБ-073
    Стоимость от:
    9 180 600
    Проект от: 58 500
    Этажей 1
    Санузлы 2
    Спальни 3
    Смотреть
    Ипотека и
    рассрочка
    Цмс Островский
    Стоимость от:
    9 884 160
    Проект от: 64 800
    Этажей 2
    Санузлы 3
    Спальни 3
    Смотреть
    Ипотека и
    рассрочка
    05-c-2024
    Стоимость от:
    5 338 740
    Проект от: 30 150
    Этажей 1
    Санузлы 1
    Спальни 3
    Смотреть
    Ипотека и
    рассрочка
    Оптимальный D 110
    Стоимость от:
    6 636 740
    Проект от: 43 650
    Этажей 1
    Санузлы 2
    Спальни 3
    Смотреть

    Как узнать стоимость дома

    back
    Оставляете заявку
    Вы заполняете форму на сайте или звоните нам. Менеджер Лайвкрафт связывается с вами для уточнения деталей: тип дома, площадь, материалы, участок строительства.
    back
    Консультация и подбор решения
    Наш специалист помогает выбрать оптимальный тип дома и конструкцию с учётом бюджета, сроков и целей — будь то дом для постоянного проживания или дача.
    back
    Расчёт предварительной стоимости
    Инженер делает первичный расчёт стоимости строительства по вашим параметрам: фундамент, коробка, кровля, отделка. Вы получаете смету с разбивкой по этапам.
    back
    Корректировка и утверждение сметы
    При необходимости вносим изменения — например, замену материалов или сокращение этапов. После согласования формируется окончательная фиксированная смета.
    back
    Заключение договора и старт работ
    После утверждения сметы заключаем официальный договор с гарантией. Вы получаете прозрачный график и точную стоимость — без скрытых расходов.

    Заказать конусльтацию по:Одноэтажный дом Сканди Вилье ВМ

    Фото 1 Одноэтажный дом Сканди Вилье ВМ


      Наши
      контакты

      Дмитров
      Опорный проезд 28Б
      (индустриальный парк Ниагара)
      9:00 до 18:00

      Корзина