4.9
Рейтинг на основании 120 отзывов
Дмитров
Опорный проезд 28Б
(индустриальный парк Ниагара)
Бренд "Дмитров-Дело" c 2008 года на рынке строительства в Дмитрове
Звоните 9:00 до 18:00 8 (915) 055-33-61
Бренд "Дмитров-Дело" c 2008 года на рынке строительства в Дмитрове

Одноэтажный дом СМ-15

Стоимость проекта от:
76 950 ₽
БЕСПЛАТНО! ПРИ ЗАКАЗЕ СТРОИТЕЛЬСТВА
Стоимость строительства от:
13 598 420 ₽
Артикул ART-15682
Дата 25.12.2025
Архитектурный стиль Классический
Количество надземных этажей 1
Круглогодичное проживание Да
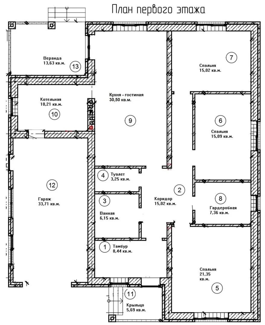
Площадь дома 171 м2
Санузлы 2
Спальни 3

Описание

Привлекательный одноэтажный дом SM‑15 воплощает в себе гармонию классического стиля и практичность современного жилья. Его архитектура с плавными линиями, строгим фронтоном и элементами декоративной резьбы придаёт дому благородный вид, а изящество фасада делает его уютной опорой в любых климатических условиях. Отсутствие балконов и лоджий создаёт ощущение единой, непрерывной объёмной просторы, а наличие просторной веранды — идеальное место для вечерами в компании друзей и семейных пикников на свежем воздухе. Экстерьер дома выполнен из газобетонных блоков, что обеспечивает отличную энергоэффективность, шумоизоляцию и долговечность. Четырехскатная (валмовая) крыша не только подчеркивает классический облик, но и быстро отводит дождевую и снежную нагрузку, защищая интерьер от непогодных сюрпризов. Пристроенный гараж и крытая автостоянка делают повседневную жизнь более удобной и защищённой от непогоды. При этом дом сохраняет круглогодичную пригодность благодаря хорошей тепло- и гидроизоляции, что позволяет наслаждаться комфортом в любое время года. Дом SM‑15 — это не просто место для жизни, а настоящий оазис спокойствия и стиля, где каждая деталь продумана для вашего комфорта. Здесь вы найдёте гармонию между классическим искусством и удобствами современного быта, а веранда станет вашим личным уголком для отдыха и уединения. Это идеальное решение для тех, кто ценит элегантность, уют и практичность в одном обьекте.

Характеристики дома

Архитектурный стиль
Автоматизированное регулирование параметров теплоносителя
Нет
Балконы/лоджии
Отсутствуют
Чердачное помещение
Нет
Датчики протечки воды
Нет
Эксплуатируемая или зеленая кровля
Нет
Электроснабжение
Не предусмотрено
Газоснабжение
Не предусмотрено
Изоляция воздушного шума
Нет
Камин
Нет
Класс энергоэффективности
-
Класс энергосбережения
-
Количество надземных этажей
1
Круглогодичное проживание
Да
Материал кровли
Металлочерепица
Материал перекрытий
Деревянные
Материал внешних стен
Материал внутренних перегородок
Кирпичные
Модульное строительство с конструкциями заводского изготовления
Нет
Объем надземной части
1024 м3
Основной материал фасадов
Облицовочный кирпич
Отопление
Не предусмотрено
Площадь дома
171 м2
Площадь застройки
225 м2
Подвальное помещение
Нет
Показатель компактности здания
-
Приборы учета тепловой энергии
Нет
Пристроенный гараж/крытая автостоянка
Да
Противопожарная система
Нет
Санузлы
2
Совмещенная кухня-гостиная
Да
Спальни
3
Терраса
Нет
Тип фундамента
Ленточный
Толщина внешних стен
510 мм
Толщина внутренних перегородок
120 мм
Улучшенные шумовые характеристики
Нет
Вентиляция
Естественная
Веранда
Да
Водоотведение
Не предусмотрено
Водоснабжение
Не предусмотрено
Высота дома
7.33 м
Высота потолков
2.75 м

Планировка

Фасад дома

Александр

Закажите выезд инженера

Александр

Выездной инженер
Закажите выезд инженера для точной диагностики и профессиональной консультации по инженерным системам. Специалист приедет в удобное время, проведёт осмотр, рассчитает стоимость работ и подберёт оптимальные решения для вашего дома.


    Похожие проекты

    Ипотека и
    рассрочка
    Дом «Premier» серии «NOVA»
    Стоимость от:
    8 977 500
    Проект от: 67 500
    Этажей 2
    Санузлы 1
    Спальни 2
    Смотреть
    Ипотека и
    рассрочка
    Каркасный дом «ДК-88»
    Стоимость от:
    4 392 795
    Проект от: 35 550
    Этажей 1
    Санузлы 1
    Спальни 2
    Смотреть
    Ипотека и
    рассрочка
    Индивидуальный проект Николино
    Стоимость от:
    17 022 720
    Проект от: 111 600
    Этажей 2
    Санузлы 2
    Спальни 4
    Смотреть
    Ипотека и
    рассрочка
    Семейный дом Тим-1
    Стоимость от:
    10 442 300
    Проект от: 60 750
    Этажей 1
    Санузлы 2
    Спальни 3
    Смотреть
    Ипотека и
    рассрочка
    Каркасный дом «Лион»
    Стоимость от:
    5 565 120
    Проект от: 43 200
    Этажей 1
    Санузлы 1
    Спальни 3
    Смотреть
    Ипотека и
    рассрочка
    Саяны
    Стоимость от:
    7 480 080
    Проект от: 48 150
    Этажей 2
    Санузлы 2
    Спальни 4
    Смотреть

    Как узнать стоимость дома

    back
    Оставляете заявку
    Вы заполняете форму на сайте или звоните нам. Менеджер Лайвкрафт связывается с вами для уточнения деталей: тип дома, площадь, материалы, участок строительства.
    back
    Консультация и подбор решения
    Наш специалист помогает выбрать оптимальный тип дома и конструкцию с учётом бюджета, сроков и целей — будь то дом для постоянного проживания или дача.
    back
    Расчёт предварительной стоимости
    Инженер делает первичный расчёт стоимости строительства по вашим параметрам: фундамент, коробка, кровля, отделка. Вы получаете смету с разбивкой по этапам.
    back
    Корректировка и утверждение сметы
    При необходимости вносим изменения — например, замену материалов или сокращение этапов. После согласования формируется окончательная фиксированная смета.
    back
    Заключение договора и старт работ
    После утверждения сметы заключаем официальный договор с гарантией. Вы получаете прозрачный график и точную стоимость — без скрытых расходов.

    Заказать конусльтацию по:Одноэтажный дом СМ-15

    Фото 1 Одноэтажный дом СМ-15


      Наши
      контакты

      Дмитров
      Опорный проезд 28Б
      (индустриальный парк Ниагара)
      9:00 до 18:00

      Корзина