4.9
Рейтинг на основании 120 отзывов
Дмитров
Опорный проезд 28Б
(индустриальный парк Ниагара)
Бренд "Дмитров-Дело" c 2008 года на рынке строительства в Дмитрове
Звоните 9:00 до 18:00 8 (915) 055-33-61
Бренд "Дмитров-Дело" c 2008 года на рынке строительства в Дмитрове

Одноэтажный дом СР-100-2

Стоимость проекта от:
38 700 ₽
БЕСПЛАТНО! ПРИ ЗАКАЗЕ СТРОИТЕЛЬСТВА
Стоимость строительства от:
6 847 720 ₽
Артикул ART-11186
Дата 25.12.2025
Архитектурный стиль Русский
Количество надземных этажей 1
Круглогодичное проживание Да
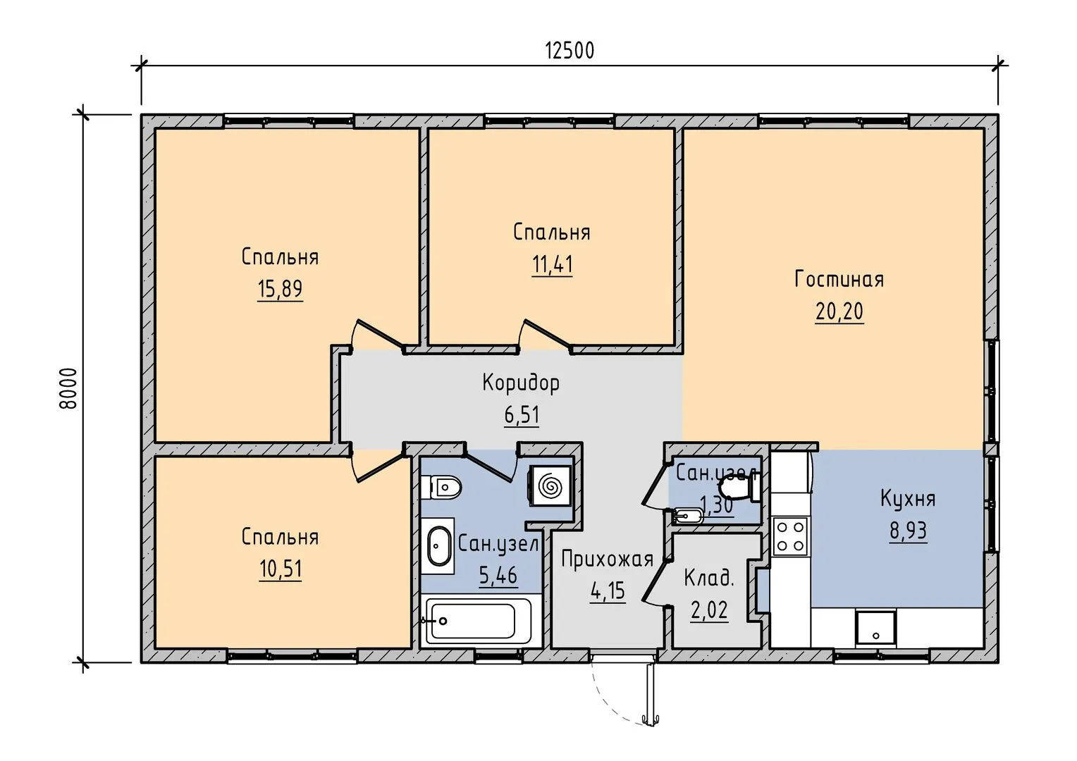
Площадь дома 86 м2
Санузлы 2
Спальни 3

Описание

Первые шаги в дом СР‑100‑2 — это встреча с утонченным, но одновременно практичным пространством, созданным в традиционном русском архитектурном стиле. Одноэтажная планировка открывает свободный и просторный внутренний двор, где каждый уголок пропитан теплом и светом. Внутри встречает простор, где открытая кухня и гостиная соединены в единую зональную композицию, а из окна видно аккуратно обрамленные ландшафтные просторы. Уютный, традиционный интерьер в сочетании с инновационными материалами делает проживание здесь не только комфортным, но и эстетически вдохновляющим. Керамикобетонные блоки, использованные в наружных стенах, обеспечивают отличную тепло- и звукоизоляцию, а четырёхскатная (вальмовая) крыша, с классическим русским колоритом, не только защищает от неблагоприятных погодных условий, но и придаёт дому характерный силуэт. Благодаря круглогодичному проживанию, дому легко приспособить любое время года, а простая, но элегантная архитектура делает его идеальным выбором для тех, кто ценит функциональность, безопасность и уют в одном. Этот дом — сочетание времени и современности: традиционный русский стиль вкупе с продуманной планировкой и экономичными материалами создают пространство, где каждый день начинается с приятных ощущений и завершается ощущением уюта. Если вы ищете место, где тепло, стиль и простота сливаются в гармоничном целостном опыте, то СР‑100‑2 – ваш идеальный выбор.

Характеристики дома

Архитектурный стиль
Автоматизированное регулирование параметров теплоносителя
-
Балконы/лоджии
Отсутствуют
Чердачное помещение
Нет
Датчики протечки воды
-
Эксплуатируемая или зеленая кровля
-
Электроснабжение
Не предусмотрено
Газоснабжение
Не предусмотрено
Изоляция воздушного шума
-
Камин
Нет
Класс энергоэффективности
-
Класс энергосбережения
-
Количество надземных этажей
1
Круглогодичное проживание
Да
Материал кровли
Металлочерепица
Материал перекрытий
Деревянные
Материал внешних стен
Материал внутренних перегородок
Блочные
Модульное строительство с конструкциями заводского изготовления
Нет
Объем надземной части
610 м3
Основной материал фасадов
Штукатурка
Отопление
Не предусмотрено
Площадь дома
86 м2
Площадь застройки
100 м2
Подвальное помещение
Нет
Показатель компактности здания
-
Приборы учета тепловой энергии
-
Пристроенный гараж/крытая автостоянка
Нет
Противопожарная система
Нет
Санузлы
2
Совмещенная кухня-гостиная
Да
Спальни
3
Терраса
Нет
Тип фундамента
Ленточный
Толщина внешних стен
200 мм
Толщина внутренних перегородок
120 мм
Улучшенные шумовые характеристики
-
Вентиляция
Естественная
Веранда
Нет
Водоотведение
Не предусмотрено
Водоснабжение
Не предусмотрено
Высота дома
6.1 м
Высота потолков
3 м

Планировка

Фасад дома

Александр

Закажите выезд инженера

Александр

Выездной инженер
Закажите выезд инженера для точной диагностики и профессиональной консультации по инженерным системам. Специалист приедет в удобное время, проведёт осмотр, рассчитает стоимость работ и подберёт оптимальные решения для вашего дома.


    Похожие проекты

    Ипотека и
    рассрочка
    Двухэтажный фахверк MIDI UP
    Стоимость от:
    12 070 320
    Проект от: 82 350
    Этажей 2
    Санузлы 4
    Спальни 3
    Смотреть
    Ипотека и
    рассрочка
    Одноэтажный каркасный дом К-23 (три спальни)
    Стоимость от:
    3 826 020
    Проект от: 29 700
    Этажей 1
    Санузлы 1
    Спальни 3
    Смотреть
    Ипотека и
    рассрочка
    Загородный дом Ulm K 1/130/2
    Стоимость от:
    9 392 460
    Проект от: 59 850
    Этажей 1
    Санузлы 2
    Спальни 3
    Смотреть
    Ипотека и
    рассрочка
    Дом из клееного бруса БД-83
    Стоимость от:
    5 077 600
    Проект от: 36 000
    Этажей 1
    Санузлы 1
    Спальни 2
    Смотреть
    Ипотека и
    рассрочка
    Финский дом К137
    Стоимость от:
    4 392 795
    Проект от: 35 550
    Этажей 1
    Санузлы 1
    Спальни 3
    Смотреть
    Ипотека и
    рассрочка
    Каркасный дом «ДК-194»
    Стоимость от:
    5 060 055
    Проект от: 40 950
    Этажей 1
    Санузлы 1
    Спальни 2
    Смотреть

    Как узнать стоимость дома

    back
    Оставляете заявку
    Вы заполняете форму на сайте или звоните нам. Менеджер Лайвкрафт связывается с вами для уточнения деталей: тип дома, площадь, материалы, участок строительства.
    back
    Консультация и подбор решения
    Наш специалист помогает выбрать оптимальный тип дома и конструкцию с учётом бюджета, сроков и целей — будь то дом для постоянного проживания или дача.
    back
    Расчёт предварительной стоимости
    Инженер делает первичный расчёт стоимости строительства по вашим параметрам: фундамент, коробка, кровля, отделка. Вы получаете смету с разбивкой по этапам.
    back
    Корректировка и утверждение сметы
    При необходимости вносим изменения — например, замену материалов или сокращение этапов. После согласования формируется окончательная фиксированная смета.
    back
    Заключение договора и старт работ
    После утверждения сметы заключаем официальный договор с гарантией. Вы получаете прозрачный график и точную стоимость — без скрытых расходов.

    Заказать конусльтацию по:Одноэтажный дом СР-100-2

    Фото 1 Одноэтажный дом СР-100-2


      Наши
      контакты

      Дмитров
      Опорный проезд 28Б
      (индустриальный парк Ниагара)
      9:00 до 18:00

      Корзина