4.9
Рейтинг на основании 120 отзывов
Дмитров
Опорный проезд 28Б
(индустриальный парк Ниагара)
Бренд "Дмитров-Дело" c 2008 года на рынке строительства в Дмитрове
Звоните 9:00 до 18:00 8 (915) 055-33-61
Бренд "Дмитров-Дело" c 2008 года на рынке строительства в Дмитрове

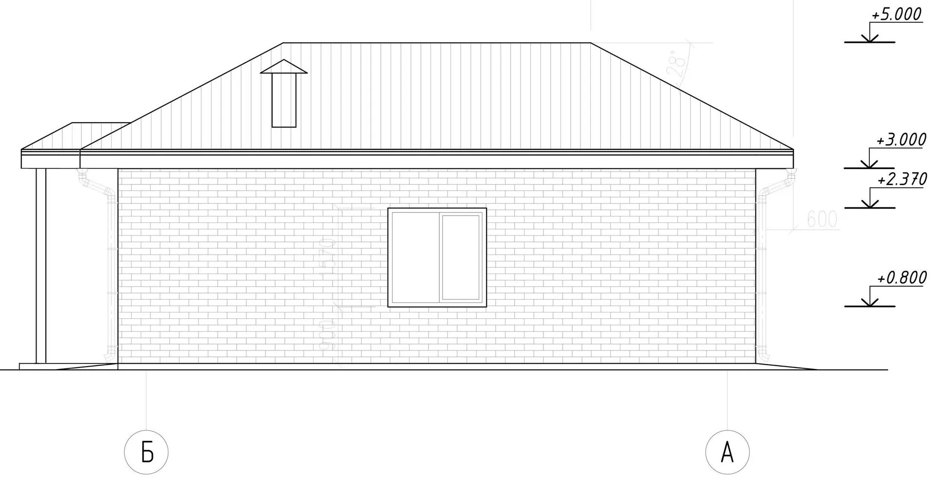
Одноэтажный дом ЦМС Руан

Стоимость проекта от:
32 400 ₽
БЕСПЛАТНО! ПРИ ЗАКАЗЕ СТРОИТЕЛЬСТВА
Стоимость строительства от:
5 084 640 ₽
Артикул ART-18153
Дата 26.12.2025
Архитектурный стиль Европейский
Количество надземных этажей 1
Круглогодичное проживание Да
Площадь дома 72 м2
Санузлы 1
Спальни 3

Описание

Вас зовут, как будто в новый дом, отступив в уют и тепло европейского дизайна. Одноэтажный дом от CМС Руан сочетает в себе простоту и элегантность: мощные кирпичные стены, которые дарят чувство прочности и благородства, а четыре скатные линии крыши создают образ классического загородного резиденства. Такой стиль в сочетании с круглогодичным комфортом приглашает не только к жизни, но и к отдыху: в холодные зимы и жаркие летние дни вам будет комфортно, а архитектура, проработанная с заботой о деталях, обеспечивает оптимальное распределение тепла и света. Дом изолирован от шумных улиц и лишён лишних пристроек, а это значит, что вся площадка отведена под удобства и пространство, где вы можете воплотить свои идеи: будь то уютный семейный уголок, домашний офис или творческая мастерская. Отсутствие балконов и веранд не умаляет, а, напротив, подчёркивает внутренний потенциал. Здесь вы сможете создать свой личный оазис, где каждый уголок напоминает о домашнем тепле и уединённости. Экономика и практичность в одном – без крытой автостоянки в доме найдется место для компактной автостоянки под ближайшим участком, при этом большая часть площади посвящена жилому пространству. Это дом, где каждый элемент продуман так, чтобы стать частью вашей уверенной, спокойной жизненной истории. Если вы ищете место, где комфорт и стиль неразрывны, CМС Руан предложит вам идеальный вариант, который превратит ваш дом в настоящий уголок мира.

Характеристики дома

Архитектурный стиль
Автоматизированное регулирование параметров теплоносителя
Нет
Балконы/лоджии
Отсутствуют
Чердачное помещение
Нет
Датчики протечки воды
Нет
Эксплуатируемая или зеленая кровля
Нет
Электроснабжение
Центральное
Газоснабжение
Не предусмотрено
Изоляция воздушного шума
Нет
Камин
Нет
Класс энергоэффективности
-
Класс энергосбережения
-
Количество надземных этажей
1
Круглогодичное проживание
Да
Материал кровли
Металлочерепица
Материал перекрытий
Деревянные
Материал внешних стен
Материал внутренних перегородок
Кирпичные
Модульное строительство с конструкциями заводского изготовления
Нет
Объем надземной части
350 м3
Основной материал фасадов
Облицовочный кирпич
Отопление
Индивидуальное
Площадь дома
72 м2
Площадь застройки
100 м2
Подвальное помещение
Нет
Показатель компактности здания
-
Приборы учета тепловой энергии
Нет
Пристроенный гараж/крытая автостоянка
Нет
Противопожарная система
Нет
Санузлы
1
Совмещенная кухня-гостиная
Да
Спальни
3
Терраса
Нет
Тип фундамента
Плитный
Толщина внешних стен
490 мм
Толщина внутренних перегородок
120 мм
Улучшенные шумовые характеристики
Нет
Вентиляция
Принудительная
Веранда
Нет
Водоотведение
Локальные очистные сооружения
Водоснабжение
Индивидуальное
Высота дома
5 м
Высота потолков
2.85 м

Планировка

Фасад дома

Александр

Закажите выезд инженера

Александр

Выездной инженер
Закажите выезд инженера для точной диагностики и профессиональной консультации по инженерным системам. Специалист приедет в удобное время, проведёт осмотр, рассчитает стоимость работ и подберёт оптимальные решения для вашего дома.


    Похожие проекты

    Ипотека и
    рассрочка
    Одноэтажный дом с террасой Просто
    Стоимость от:
    11 116 160
    Проект от: 66 600
    Этажей 1
    Санузлы 2
    Спальни 4
    Смотреть
    Ипотека и
    рассрочка
    К 2-101-2
    Стоимость от:
    7 031 280
    Проект от: 43 650
    Этажей 2
    Санузлы 2
    Спальни 4
    Смотреть
    Ипотека и
    рассрочка
    Двухэтажный дом по проекту №2
    Стоимость от:
    6 399 480
    Проект от: 43 650
    Этажей 2
    Санузлы 2
    Спальни 4
    Смотреть
    Ипотека и
    рассрочка
    Одноэтажный дом ТКБ-1
    Стоимость от:
    12 146 640
    Проект от: 77 400
    Этажей 1
    Санузлы 2
    Спальни 4
    Смотреть
    Ипотека и
    рассрочка
    Одноэтажный дом «Тендо 77»
    Стоимость от:
    4 450 985
    Проект от: 34 650
    Этажей 1
    Санузлы 1
    Спальни 1
    Смотреть
    Ипотека и
    рассрочка
    Загородный дом ДГ-86
    Стоимость от:
    6 073 320
    Проект от: 38 700
    Этажей 1
    Санузлы 1
    Спальни 3
    Смотреть

    Как узнать стоимость дома

    back
    Оставляете заявку
    Вы заполняете форму на сайте или звоните нам. Менеджер Лайвкрафт связывается с вами для уточнения деталей: тип дома, площадь, материалы, участок строительства.
    back
    Консультация и подбор решения
    Наш специалист помогает выбрать оптимальный тип дома и конструкцию с учётом бюджета, сроков и целей — будь то дом для постоянного проживания или дача.
    back
    Расчёт предварительной стоимости
    Инженер делает первичный расчёт стоимости строительства по вашим параметрам: фундамент, коробка, кровля, отделка. Вы получаете смету с разбивкой по этапам.
    back
    Корректировка и утверждение сметы
    При необходимости вносим изменения — например, замену материалов или сокращение этапов. После согласования формируется окончательная фиксированная смета.
    back
    Заключение договора и старт работ
    После утверждения сметы заключаем официальный договор с гарантией. Вы получаете прозрачный график и точную стоимость — без скрытых расходов.

    Заказать конусльтацию по:Одноэтажный дом ЦМС Руан

    Фото 1 Одноэтажный дом ЦМС Руан


      Наши
      контакты

      Дмитров
      Опорный проезд 28Б
      (индустриальный парк Ниагара)
      9:00 до 18:00

      Корзина