4.9
Рейтинг на основании 120 отзывов
Дмитров
Опорный проезд 28Б
(индустриальный парк Ниагара)
Бренд "Дмитров-Дело" c 2008 года на рынке строительства в Дмитрове
Звоните 9:00 до 18:00 8 (915) 055-33-61
Бренд "Дмитров-Дело" c 2008 года на рынке строительства в Дмитрове

Одноэтажный дом Верона

Стоимость проекта от:
28 350 ₽
БЕСПЛАТНО! ПРИ ЗАКАЗЕ СТРОИТЕЛЬСТВА
Стоимость строительства от:
4 674 560 ₽
Артикул ART-19925
Дата 26.12.2025
Архитектурный стиль Скандинавский
Количество надземных этажей 1
Круглогодичное проживание Да
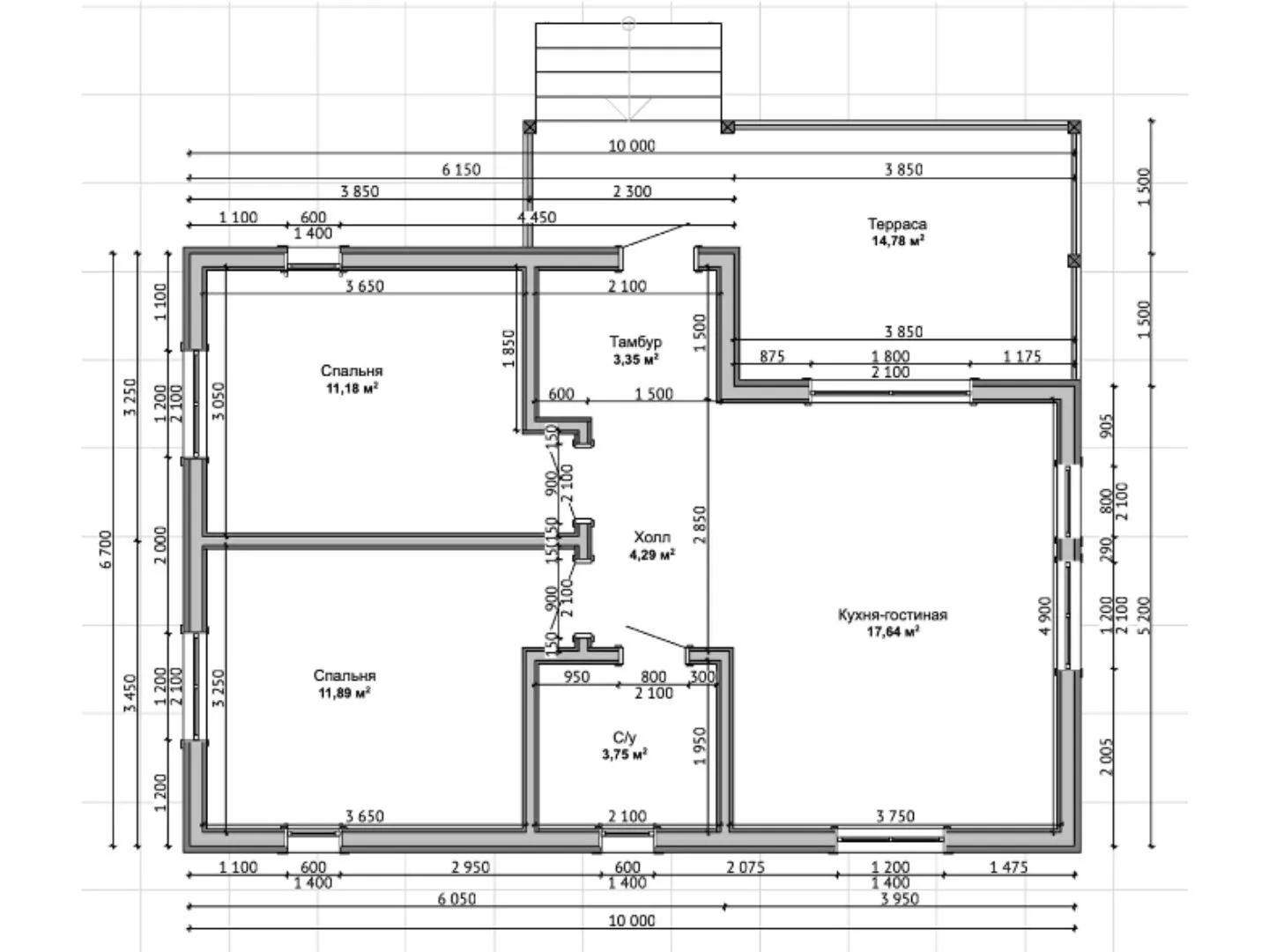
Площадь дома 63 м2
Санузлы 1
Спальни 2

Описание

Вас ждёт неповторимый шедевр скандинавской гармонии – дом Верона, где каждая деталь пронизана светом и простотой. Одноэтажная площадка, удобная для круглогодичного проживания, открывает просторные комнаты, наполненные естественным дневным светом. Деревянный каркасные экстерьер, обрамленный лаконичными линиями и изящными формами, дарит ощущение уюта и теплоты, характерного для северной архитектуры. Величественная двускатная крыша добавляет дому динамичности и придает ему характерный «северный» облик. Терраса, обрамленная простыми, но элегантными баляками, становится идеальным местом для уединенных вечеров с книгой, чаепития у зноя летнего заката или утренних чашек кофе, наблюдая за первым светом. Просторы внутри выполнены таким образом, чтобы вы ощущали пространство – свободный от балконов и перегородок, но обставленный продуманно: каждый уголок отвечает вашим потребностям. Внутренние зоны гармонично сочетаются: уютная кухня, просторная гостиная и тёплый спальня, все в гармонии с природой и окружающей средой. Дом Верона – это идеальное сочетание современности и природы. Он дарит спокойствие и уют, а лаконичный дизайн помогает сосредоточиться на самых важных вещах – семье, природе и собственных желаниях. Приглашаем вас открыть для себя новый уровень жизни, где каждый день начинается с восхищения прекрасным и гармоничным пространством.

Характеристики дома

Архитектурный стиль
Автоматизированное регулирование параметров теплоносителя
Нет
Балконы/лоджии
Отсутствуют
Чердачное помещение
Нет
Датчики протечки воды
Нет
Эксплуатируемая или зеленая кровля
Нет
Электроснабжение
Центральное
Газоснабжение
Не предусмотрено
Изоляция воздушного шума
Нет
Камин
Нет
Класс энергоэффективности
-
Класс энергосбережения
-
Количество надземных этажей
1
Круглогодичное проживание
Да
Материал кровли
Металлочерепица
Материал перекрытий
Деревянные
Материал внешних стен
Материал внутренних перегородок
Деревянные
Модульное строительство с конструкциями заводского изготовления
Нет
Объем надземной части
205 м3
Основной материал фасадов
Дерево
Отопление
2 варианта
Площадь дома
63 м2
Площадь застройки
76 м2
Подвальное помещение
Нет
Показатель компактности здания
-
Приборы учета тепловой энергии
Нет
Пристроенный гараж/крытая автостоянка
Нет
Противопожарная система
Да
Санузлы
1
Совмещенная кухня-гостиная
Да
Спальни
2
Терраса
Да
Тип фундамента
Ленточный
Тип кровли
Толщина внешних стен
200 мм
Толщина внутренних перегородок
100 мм
Улучшенные шумовые характеристики
Нет
Вентиляция
2 варианта
Веранда
Нет
Водоотведение
Локальные очистные сооружения
Водоснабжение
2 варианта
Высота дома
4.5 м
Высота потолков
2.7 м

Планировка

Фасад дома

Александр

Закажите выезд инженера

Александр

Выездной инженер
Закажите выезд инженера для точной диагностики и профессиональной консультации по инженерным системам. Специалист приедет в удобное время, проведёт осмотр, рассчитает стоимость работ и подберёт оптимальные решения для вашего дома.


    Похожие проекты

    Ипотека и
    рассрочка
    EFFECT LIGHT 88
    Стоимость от:
    5 689 200
    Проект от: 39 600
    Этажей 2
    Санузлы 2
    Спальни 3
    Смотреть
    Ипотека и
    рассрочка
    Микеа 7
    Стоимость от:
    19 568 120
    Проект от: 128 700
    Этажей 1
    Санузлы 2
    Спальни 4
    Смотреть
    Ипотека и
    рассрочка
    1 этажный » One 85″
    Стоимость от:
    5 911 620
    Проект от: 36 450
    Этажей 1
    Санузлы 1
    Спальни 3
    Смотреть
    Ипотека и
    рассрочка
    Одноэтажный дом КД-71
    Стоимость от:
    4 231 810
    Проект от: 32 850
    Этажей 1
    Санузлы 1
    Спальни 2
    Смотреть
    Ипотека и
    рассрочка
    Одноэтажный дом «Калибан»
    Стоимость от:
    7 403 660
    Проект от: 41 850
    Этажей 1
    Санузлы 2
    Спальни 2
    Смотреть
    Ипотека и
    рассрочка
    Коттедж Финский Дом
    Стоимость от:
    5 585 360
    Проект от: 39 600
    Этажей 1
    Санузлы 1
    Спальни 3
    Смотреть

    Как узнать стоимость дома

    back
    Оставляете заявку
    Вы заполняете форму на сайте или звоните нам. Менеджер Лайвкрафт связывается с вами для уточнения деталей: тип дома, площадь, материалы, участок строительства.
    back
    Консультация и подбор решения
    Наш специалист помогает выбрать оптимальный тип дома и конструкцию с учётом бюджета, сроков и целей — будь то дом для постоянного проживания или дача.
    back
    Расчёт предварительной стоимости
    Инженер делает первичный расчёт стоимости строительства по вашим параметрам: фундамент, коробка, кровля, отделка. Вы получаете смету с разбивкой по этапам.
    back
    Корректировка и утверждение сметы
    При необходимости вносим изменения — например, замену материалов или сокращение этапов. После согласования формируется окончательная фиксированная смета.
    back
    Заключение договора и старт работ
    После утверждения сметы заключаем официальный договор с гарантией. Вы получаете прозрачный график и точную стоимость — без скрытых расходов.

    Заказать конусльтацию по:Одноэтажный дом Верона

    Фото 1 Одноэтажный дом Верона


      Наши
      контакты

      Дмитров
      Опорный проезд 28Б
      (индустриальный парк Ниагара)
      9:00 до 18:00

      Корзина