4.9
Рейтинг на основании 120 отзывов
Дмитров
Опорный проезд 28Б
(индустриальный парк Ниагара)
Бренд "Дмитров-Дело" c 2008 года на рынке строительства в Дмитрове
Звоните 9:00 до 18:00 8 (915) 055-33-61
Бренд "Дмитров-Дело" c 2008 года на рынке строительства в Дмитрове

Одноэтажный дом ВК-160

Стоимость проекта от:
54 000 ₽
БЕСПЛАТНО! ПРИ ЗАКАЗЕ СТРОИТЕЛЬСТВА
Стоимость строительства от:
290 400 ₽
Артикул ART-3925
Дата 26.12.2025
Архитектурный стиль -
Количество надземных этажей 1
Круглогодичное проживание Да
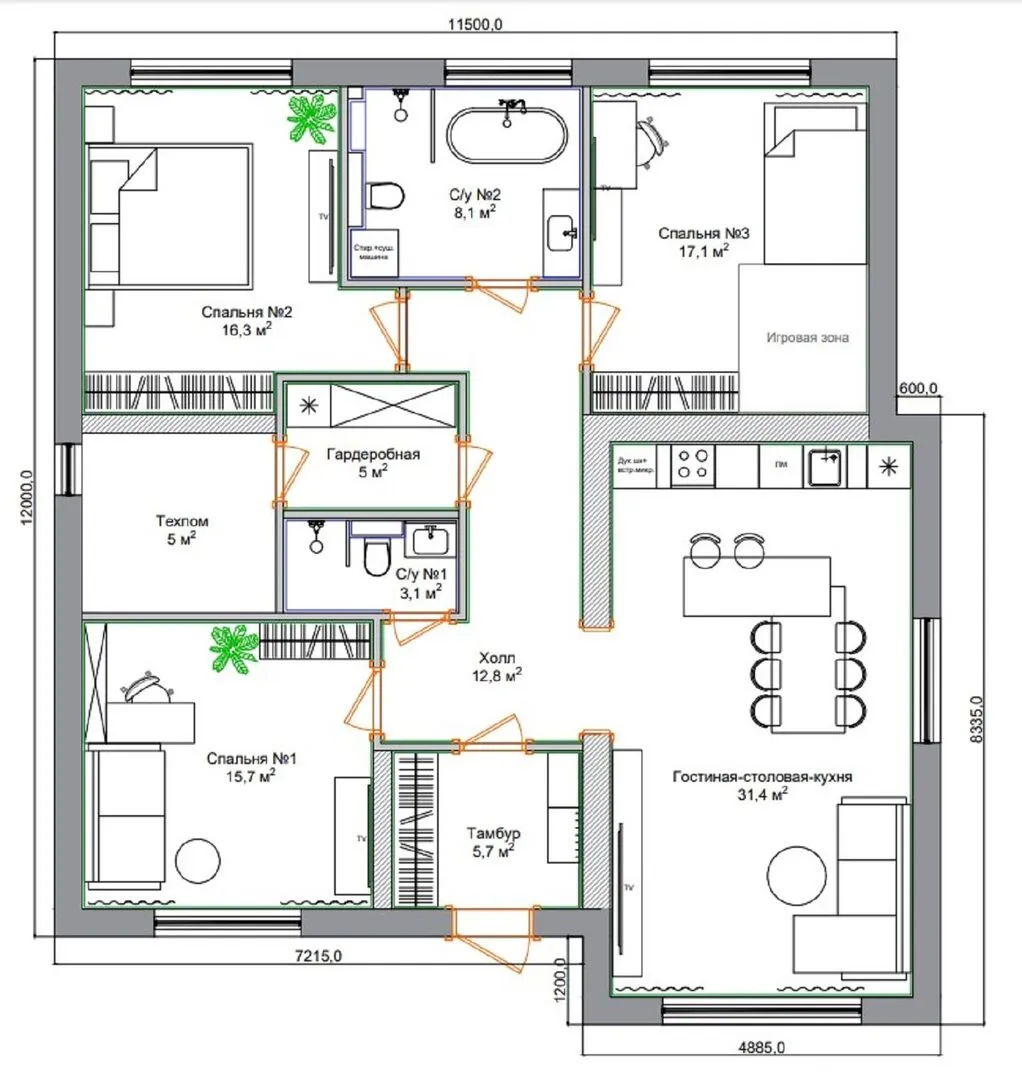
Площадь дома 120 м2
Санузлы 2
Спальни 3

Описание

Новый однеквартционный дом ВК‑160 – это уют и удобство в одном, а главное, он подходит даже тем, кто ценит комфорт в любое время года. Один этаж – простота и доступность: порой именно отсутствие лестницы и лишних перекрытий делает проживание менее напряжённым, особенно для пожилых соседей и маленьких детишек. Крыша спроектирована так, чтобы обеспечить надёжную изоляцию и защиту от дождя, ветра и снега, а внутренняя отделка выдержана в светлых, гармоничных тонах, подчёркивающих простор и тепло. Внутри вы найдёте продуманную планировку – открытая гостиная с большой напольной панорамой, где солнечный свет льётся в каждую комнату, создавая ощущение лёгкости и безмятежности. Прихожая плавно переходит в кухонную зону, где на столе всегда найдётся место для семейных обедов и совместных ужинов. В доме предусмотрен настоящий «открытый уголок» для отдыха, а просторный чердачий отдел – это ваш личный кладовочный оазис или же дополнительное жилое пространство, которое можно превратить в уютный кабинет или игровую комнату для детей. Дом ВК‑160 – идеальный выбор для тех, кто ищет практичность и беззаботность. Установленные сегодня энергосберегающие технологии позволяют сохранять комфортную температуру в любое время года, а высококачественные материалы гарантируют долгую эксплуатацию без лишних хлопот. Оставьте заботы о ремонте и модернизации — в этом доме всё сделано по принципу «дом сразу готов к жизни»; теперь вам нужно лишь ввести привычки и вкусы, и жить в изысканном, но простом доме.

Характеристики дома

Архитектурный стиль
-
Автоматизированное регулирование параметров теплоносителя
Да
Балконы/лоджии
Отсутствуют
Чердачное помещение
Да
Датчики протечки воды
Нет
Эксплуатируемая или зеленая кровля
Нет
Электроснабжение
-
Газоснабжение
-
Изоляция воздушного шума
Нет
Камин
Нет
Класс энергоэффективности
-
Класс энергосбережения
-
Количество надземных этажей
1
Круглогодичное проживание
Да
Материал кровли
-
Материал перекрытий
-
Материал внешних стен
-
Материал внутренних перегородок
-
Модульное строительство с конструкциями заводского изготовления
Нет
Объем надземной части
-
Основной материал фасадов
-
Отопление
-
Площадь дома
120 м2
Площадь застройки
160 м2
Подвальное помещение
Нет
Показатель компактности здания
-
Приборы учета тепловой энергии
Нет
Пристроенный гараж/крытая автостоянка
Нет
Противопожарная система
Нет
Санузлы
2
Совмещенная кухня-гостиная
Да
Спальни
3
Терраса
Нет
Тип фундамента
-
Тип кровли
-
Толщина внешних стен
375 мм
Толщина внутренних перегородок
100 мм
Улучшенные шумовые характеристики
Нет
Вентиляция
-
Веранда
Нет
Водоотведение
-
Водоснабжение
-
Высота дома
6.6 м
Высота потолков
3 м

Планировка

Фасад дома

Александр

Закажите выезд инженера

Александр

Выездной инженер
Закажите выезд инженера для точной диагностики и профессиональной консультации по инженерным системам. Специалист приедет в удобное время, проведёт осмотр, рассчитает стоимость работ и подберёт оптимальные решения для вашего дома.


    Похожие проекты

    Ипотека и
    рассрочка
    Двухэтажный дом FK-158 в Казани
    Стоимость от:
    11 365 680
    Проект от: 70 650
    Этажей 2
    Санузлы 3
    Спальни 5
    Смотреть
    Ипотека и
    рассрочка
    Рождественское 101Н
    Стоимость от:
    6 842 000
    Проект от: 45 000
    Этажей 1
    Санузлы 1
    Спальни 3
    Смотреть
    Ипотека и
    рассрочка
    Загородный дом «Жемчужина»
    Стоимость от:
    5 939 780
    Проект от: 35 550
    Этажей 1
    Санузлы 1
    Спальни 3
    Смотреть
    Ипотека и
    рассрочка
    Дом100м2
    Стоимость от:
    7 515 200
    Проект от: 45 000
    Этажей 1
    Санузлы 1
    Спальни 3
    Смотреть
    Ипотека и
    рассрочка
    Каркасный дом «Зеркальный»
    Стоимость от:
    4 985 420
    Проект от: 38 700
    Этажей 1
    Санузлы 2
    Спальни 3
    Смотреть
    Ипотека и
    рассрочка
    Дом с мансардным этажом «Лефрой»
    Стоимость от:
    6 984 000
    Проект от: 45 000
    Этажей 2
    Санузлы 2
    Спальни 3
    Смотреть

    Как узнать стоимость дома

    back
    Оставляете заявку
    Вы заполняете форму на сайте или звоните нам. Менеджер Лайвкрафт связывается с вами для уточнения деталей: тип дома, площадь, материалы, участок строительства.
    back
    Консультация и подбор решения
    Наш специалист помогает выбрать оптимальный тип дома и конструкцию с учётом бюджета, сроков и целей — будь то дом для постоянного проживания или дача.
    back
    Расчёт предварительной стоимости
    Инженер делает первичный расчёт стоимости строительства по вашим параметрам: фундамент, коробка, кровля, отделка. Вы получаете смету с разбивкой по этапам.
    back
    Корректировка и утверждение сметы
    При необходимости вносим изменения — например, замену материалов или сокращение этапов. После согласования формируется окончательная фиксированная смета.
    back
    Заключение договора и старт работ
    После утверждения сметы заключаем официальный договор с гарантией. Вы получаете прозрачный график и точную стоимость — без скрытых расходов.

    Заказать конусльтацию по:Одноэтажный дом ВК-160

    Фото 1 Одноэтажный дом ВК-160


      Наши
      контакты

      Дмитров
      Опорный проезд 28Б
      (индустриальный парк Ниагара)
      9:00 до 18:00

      Корзина