4.9
Рейтинг на основании 120 отзывов
Дмитров
Опорный проезд 28Б
(индустриальный парк Ниагара)
Бренд "Дмитров-Дело" c 2008 года на рынке строительства в Дмитрове
Звоните 9:00 до 18:00 8 (915) 055-33-61
Бренд "Дмитров-Дело" c 2008 года на рынке строительства в Дмитрове

Одноэтажный дом+антресоль «Бартон 76»

Стоимость проекта от:
34 200 ₽
БЕСПЛАТНО! ПРИ ЗАКАЗЕ СТРОИТЕЛЬСТВА
Стоимость строительства от:
4 393 180 ₽
Артикул ART-5280
Дата 26.12.2025
Архитектурный стиль Барнхаус
Количество надземных этажей 1
Круглогодичное проживание Да
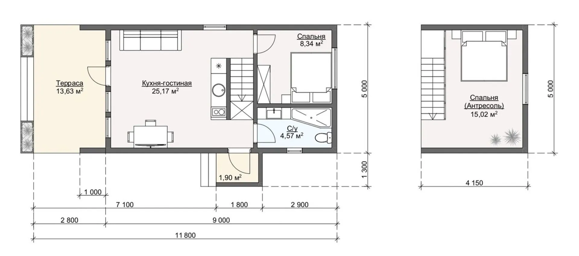
Площадь дома 76 м2
Санузлы 1
Спальни 2

Описание

Погрузитесь в атмосферу спокойствия и уюта, которую дарит наш дом «Барnton 76». Это однолетняя жемчужина в стиле Barnhouse, где традиционный фермерский шарм встречается с современным комфортом. Приглушённое освещение, широкие окна и свободные площади создают ощущение лёгкости и простора, а открытая антресоль добавляет функционального пространства без лишних перегородок. В сердце дома живёт тёплое деревянное скамейное покрытие, а просторная кухня в стиле «открытой планировки» позволит вам творить и наслаждаться каждым моментом вместе с семьёй. Экстерьер дома – это живописный образ деревянного каркаса, выполненного в классическом двускатном виде. Идеальная комбинация дерева и стекла обеспечивает отличную тепло- и звукоизоляцию, что делает «Барnton 76» идеальным выбором для круглогодичного проживания. Тераса, выходящая на задний двор, – ваш личный оазис, где можно наслаждаться ароматом утреннего кофе и вечерним закатом. Отсутствие балконов и веранд не мешает, а наоборот, делает дизайн ещё более чистым и лаконичным, подчёркивая беззавершенную простоту и лаконичность интерьера. Если вы ищете дом, в котором каждая деталь продумана до мелочей, а каждая сцена напоминает уютный уголок вашего собственного мира – «Барnton 76» станет идеальным выбором. Позвольте себе окунуться в гармонию природы и современного удобства: откройте двери в своё новое, радостное и вдохновляющее пространство. Присоединяйтесь к нам, и ваш новый дом станет местом, где живёт ваша мечта.

Характеристики дома

Архитектурный стиль
Автоматизированное регулирование параметров теплоносителя
-
Балконы/лоджии
Отсутствуют
Чердачное помещение
Нет
Датчики протечки воды
-
Эксплуатируемая или зеленая кровля
-
Электроснабжение
Центральное
Газоснабжение
Центральное
Изоляция воздушного шума
-
Камин
Нет
Класс энергоэффективности
-
Класс энергосбережения
-
Количество надземных этажей
1
Круглогодичное проживание
Да
Материал кровли
Металлочерепица
Материал перекрытий
Деревянные
Материал внешних стен
Материал внутренних перегородок
Деревянные
Модульное строительство с конструкциями заводского изготовления
Нет
Объем надземной части
418 м3
Основной материал фасадов
Дерево
Отопление
Индивидуальное
Площадь дома
76 м2
Площадь застройки
76 м2
Подвальное помещение
Нет
Показатель компактности здания
-
Приборы учета тепловой энергии
-
Пристроенный гараж/крытая автостоянка
Нет
Противопожарная система
Нет
Санузлы
1
Совмещенная кухня-гостиная
Да
Спальни
2
Терраса
Да
Тип фундамента
Свайно-винтовой
Тип кровли
Толщина внешних стен
150 мм
Толщина внутренних перегородок
100 мм
Улучшенные шумовые характеристики
-
Вентиляция
Естественная
Веранда
Нет
Водоотведение
Локальные очистные сооружения
Водоснабжение
Индивидуальное
Высота дома
5.5 м
Высота потолков
2.6 м

Планировка

Фасад дома

Александр

Закажите выезд инженера

Александр

Выездной инженер
Закажите выезд инженера для точной диагностики и профессиональной консультации по инженерным системам. Специалист приедет в удобное время, проведёт осмотр, рассчитает стоимость работ и подберёт оптимальные решения для вашего дома.


    Похожие проекты

    Ипотека и
    рассрочка
    Проект №269
    Стоимость от:
    10 814 160
    Проект от: 73 800
    Этажей 2
    Санузлы 3
    Спальни 4
    Смотреть
    Ипотека и
    рассрочка
    Загородный дом по проекту «Торвальд».
    Стоимость от:
    8 791 200
    Проект от: 60 750
    Этажей 1
    Санузлы 2
    Спальни 2
    Смотреть
    Ипотека и
    рассрочка
    Дом из ж/б панелей с сауной и комбинированным фасадом SP-143-1
    Стоимость от:
    12 645 380
    Проект от: 71 550
    Этажей 1
    Санузлы 3
    Спальни 3
    Смотреть
    Ипотека и
    рассрочка
    Загородный дом «Шумлянский»
    Стоимость от:
    5 861 460
    Проект от: 37 350
    Этажей 1
    Санузлы 2
    Спальни 3
    Смотреть
    Ипотека и
    рассрочка
    Дом Мансардный 200 м2
    Стоимость от:
    13 488 480
    Проект от: 91 800
    Этажей 2
    Санузлы 2
    Спальни 4
    Смотреть
    Ипотека и
    рассрочка
    Трехкомнатный дом, площадью 73 кв.м., проект №65
    Стоимость от:
    4 994 660
    Проект от: 32 850
    Этажей 1
    Санузлы 1
    Спальни 2
    Смотреть

    Как узнать стоимость дома

    back
    Оставляете заявку
    Вы заполняете форму на сайте или звоните нам. Менеджер Лайвкрафт связывается с вами для уточнения деталей: тип дома, площадь, материалы, участок строительства.
    back
    Консультация и подбор решения
    Наш специалист помогает выбрать оптимальный тип дома и конструкцию с учётом бюджета, сроков и целей — будь то дом для постоянного проживания или дача.
    back
    Расчёт предварительной стоимости
    Инженер делает первичный расчёт стоимости строительства по вашим параметрам: фундамент, коробка, кровля, отделка. Вы получаете смету с разбивкой по этапам.
    back
    Корректировка и утверждение сметы
    При необходимости вносим изменения — например, замену материалов или сокращение этапов. После согласования формируется окончательная фиксированная смета.
    back
    Заключение договора и старт работ
    После утверждения сметы заключаем официальный договор с гарантией. Вы получаете прозрачный график и точную стоимость — без скрытых расходов.

    Заказать конусльтацию по:Одноэтажный дом+антресоль «Бартон 76»

    Фото 1 Одноэтажный дом+антресоль «Бартон 76»


      Наши
      контакты

      Дмитров
      Опорный проезд 28Б
      (индустриальный парк Ниагара)
      9:00 до 18:00

      Корзина